重庆龙湖·宸峯
Longfor·ChenFeng
中国·重庆
Chongqing,China
■ 项目简介
PROFILE
- 城市印象,山水重庆 -
“山城”重庆,古称渝州。既以江城、雾都、桥都著称,又以山城扬名。山即是城,城即是山。”
■产品设计
UNIT PRODUCT
◎ 效果图
宸峯仅有的60席超级大平层产品,为尽收嘉陵江景专门定制,全系标配面宽18.2米的五开间临江面,无疑是礼嘉板块同类户型的顶级“高光”产品——独立的专享候梯厅;
豪华的入户玄关;LDKG一体化设计与多功能大横厅的流动空间,让每一位家人享受亲密无间的互动和自由平等的关爱;
14.2米面宽的大尺度观景阳台更像是一个空中院子,为家人提供了与大自然亲密接触的无界空间;超豪华的主卧空间自成一体。
◎ 223㎡大平层标准户型
◎ 窗外视野
在建筑顶层,揽江瞰城的天际复式还拥有双层挑空空间、3起居室、4大露台、高配双主卧、360度视野全景模式。
◎ 325㎡顶层复式户型(下层)
◎ 325㎡顶层复式户型(上层)
◎ 顶跃观景效果图
■立面设计
FACADE
回归建筑美学初心,摒弃繁杂元素,让建筑与光影对话。
立面设计源于极简主义理念,强调删繁就简、返璞归真。建筑光影的律动和大开大合的色彩着墨,又将阐释东方美学的黑白灰色调洒脱的运用到极致。
顶部:为两层通高的类幕墙体系,用框架式造型勾勒出极强的公建化住宅轮廓,展现城市尺度的标示性。
中部:采用铝板线条强调横向的韵律感,阳台及飘窗的虚实对比体现建筑立面的肌理感。
材质以大面的水晶灰钢化玻璃和浅灰色铝板为主,局部采用浅灰色和深灰色的质感涂料,使总体的光影关系与局部的材料质感和美共生。
基座:入户门头保证舒适的尺度,采用浅灰色花岗岩石材和古铜色不锈钢板作为建筑主材,营造出极具艺术美学的视觉感受。
- 精雕细琢,诠释静谧美学 -
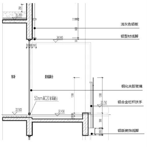
阳台:阳台之间做隔断,既能保证住户实用性和私密性,又能确保阳台界面的连续性。
栏板:采用外挂方式固定,外梁下方用浅灰色铝板外包,形成贯穿14.2米阔景阳台的横向线条,使建筑立面拥有独特精致的工业美感。
飘窗:采用了铝型材,将阔景阳台的横向线条作延伸,在节省材料用量的同时,又保证了立面效果。
◎ 阳台节点
◎ 栏板节点
◎ 飘窗节点
在宸峯,每一种材料都有其自身的情感和温度。我们用平整厚实的石材面板展现力量与坚定,用动感舒展的金属流线勾勒摩登与时尚,用纯净明快的类幕墙表达自由与轻盈……远离尘嚣,理想的家本就应该是这样一个坚固安全又轻松自由的地方。
- 得天独厚,礼嘉之巅 -
◎ 项目区位
宸峯项目用地位于重庆市北部新区礼嘉板块,居于该板块商务区及高品质生态住区的核心地段,交通便捷,位置优越,距重庆市中心直线距离约14KM,紧邻嘉陵江和崖壁公园,周边生态绿地环绕。作为礼嘉云系的收官之作,如何充分利用绝版景观资源成为本案的关键。
■规划设计
LAYOUT
- 前庭后院,户户佳景 -
总图布局
项目用地11188.00㎡,总计容面积约14043.94㎡,容积率1.2,建筑密度17.14%,共60户,停车位150辆,车位配比高达1:2.5(户/车)。
项目仅由3栋11F洋房组成,其中包含54户202-223㎡的大平层产品和6户325㎡的顶跃复式产品,致力打造低密度低容积率的高端社区,最大化利用嘉陵江和崖壁公园景色,形成“远瞰江近赏园”的规划思路。
3栋建筑沿用地退界一字排开,每栋选取了各自最佳的景观朝向,远可观桥、瞰江,近可赏园,在满足业主对场地功能及精神生活需求的同时,创造居住空间体验的多样性。
前庭:道路的曲折,空间的灵动,树林的掩映,带来移步异景的游赏体验。
◎ 前庭
后院:以“无界”的手法凌江打造精致的会客厅、开阔的观江台,活力的健身角,体验不同的瞰江方式。

一开一合,“入”可享宁静诗意,“出”可观天地壮阔,在这里,身可憩、心可静。
归家动线
采用人车分流的双重动线——人行通过林荫大道、奢隐门庭、景观长廊塑造归家仪式感;车行通过地块东西两个街角的地库出入口入户,避免了车库出入口对内部环境的影响。
将东方美学与现代艺术相融,以远山为底、临崖就势,将自然之景引入场地之内,创造人文与自然交融的极致感受。引领业主体验“度假”、“私享”的极简生活美学,实现心灵的放松与沉淀。
此岸,宸峯尽揽蜿蜒壮阔的嘉陵江色;
彼岸,宸峯是与自然共生的绝美风景。
设计主创
唐 聃
董事总经理
王 旭
设计总监
高 磊
设计总监
项目档案
项目名称丨龙湖·宸峯
项目位置丨重庆市两江新区礼诚路25号
项目功能丨住宅区
建设体量丨14043.94㎡(计容)
业主单位丨重庆龙湖科恒地产发展有限公司
建筑设计丨承构建筑
设计主创丨唐聃、王旭、高磊
设计团队丨何如婧、陈星宇、王吉伟、王尹钰、高大坤、马赟、邹臣、刘羿霄、李鑫迪、程依博、肖龙生
施工图设计丨中机中联工程有限公司
景观设计丨道远景观设计公司
精装设计丨重庆倍广建筑工程有限公司
摄影机构丨PrismImage三棱镜
撰文排版丨承构品牌部
本资料声明:
1.本文为建筑设计技术分析,仅供欣赏学习。
2.本资料为要约邀请,不视为要约,所有政府、政策信息均来源于官方披露信息,具体以实物、政府主管部门批准文件及买卖双方签订的商品房买卖合同约定为准。如有变化恕不另行通知。
3.因编辑需要,文字和图片无必然联系,仅供读者参考;
2022年·新产品方向
搜建筑·矩阵平台
—— 作品展示、直播、访谈、招聘 ——
合作、宣传、投稿
联系微信:soujianzhu006
推荐一个
专业的地产+建筑平台
每天都有新内容
扫描二维码关注

微信公众号“搜建筑”(ID:sjz9999)



