天空之城——送给生活的浪漫仪式感。在当前的市场环境的大背景下,示范区也在面临体验、功能、服务三大升级的急切需求。作为面向未来的示范区形态,我们希望能创造一个把美好生活具象化的场所打造一处和谐的理想人居。
设计师以宫崎骏的漫画“天空之城”为设计缘起,以纯净玻璃体的形态,把一座“城堡”轻巧的介入城市的街角,打造一个充满浪漫情怀和童话趣味的打卡圣地,诠释生活美学。
设计师不仅是打造一个示范区,更像为体验者创造一个自然、童话的国度。进入梦幻国度,我们可以存放每一个奇幻想法,天真的探索。
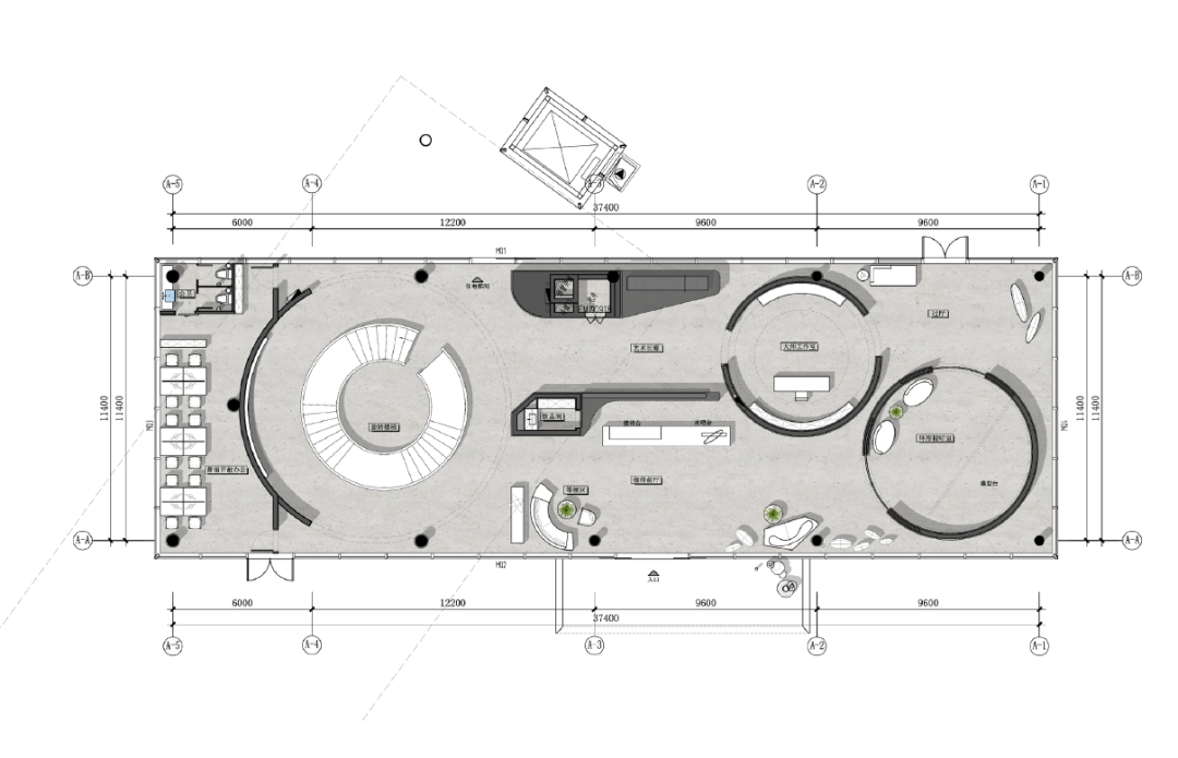
项目位于四川省南充市,南充市西临成都,东至重庆,是成渝经济区和“一带一路”战略的重要节点城市。项目用地位于南充市的核心片区顺庆区,展示区位于用地的西北角,面向两条城市主干道的十字交叉口,展示效果最佳。
根据展示区两大功能体系把展示中心分为两个体块,一层接待,二层展示,把二层展示部分的体块旋转135°,使box的短边直对十字路口,长边则围合成一个小广场,正对城市主干道,从而使展示效果达到最佳,最后我们通过一个竖向交通核串联整个一层二层功能空间,另外建筑的旋转和组合也为场地带来了丰富的灰空间。
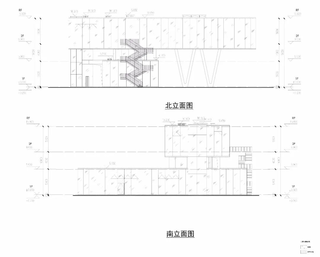
建筑形态上,通过双V支撑的大悬挑结构体系使建筑获得十足的悬浮感,以打破传统示范区的固有模式,在城市的街角重组一处有情感、有记忆、有温度的社区场所,成为区域的视觉焦点。理性审美与浪漫主义融合,塑造超现实般童话感受。
在整体简洁干净的建筑语言的基础上,我们在灰空间吊顶的部分增加了“星空与银河”的设计,丰富了空间也将想象的空间无限的延续。建筑的扭转与架空带来丰富的空间变化,搭配上室内开放,半开放以及私密空间的变化共同打造出一个有界,无界的建筑空间。在夜景灯光设计上,室内丰富的灯光设计配合通透的玻璃幕墙,使建筑在夜幕降临后的表情蕴含着情绪与故事,水晶般的晶莹通透使整体建筑充满未来感,时空感的梦幻空间。
简洁的金属线条与玻璃材质的组合,使建筑体量更加轻盈通透,虚实对比更加明显。选择清淡优雅色调、细腻逼真的材质,同时在细部工艺把控上把好关,以保证呈现的品质。
本资料声明:
1.本文为建筑设计技术分析,仅供欣赏学习。
2.本资料为要约邀请,不视为要约,所有政府、政策信息均来源于官方披露信息,具体以实物、政府主管部门批准文件及买卖双方签订的商品房买卖合同约定为准。如有变化恕不另行通知。
3.因编辑需要,文字和图片无必然联系,仅供读者参考;
搜建筑·矩阵平台
—— 作品展示、直播、访谈、招聘 ——
合作、宣传、投稿
联系微信:soujianzhu006

推荐一个
专业的地产+建筑平台
每天都有新内容
扫描二维码关注

微信公众号“搜建筑”(ID:sjz9999)