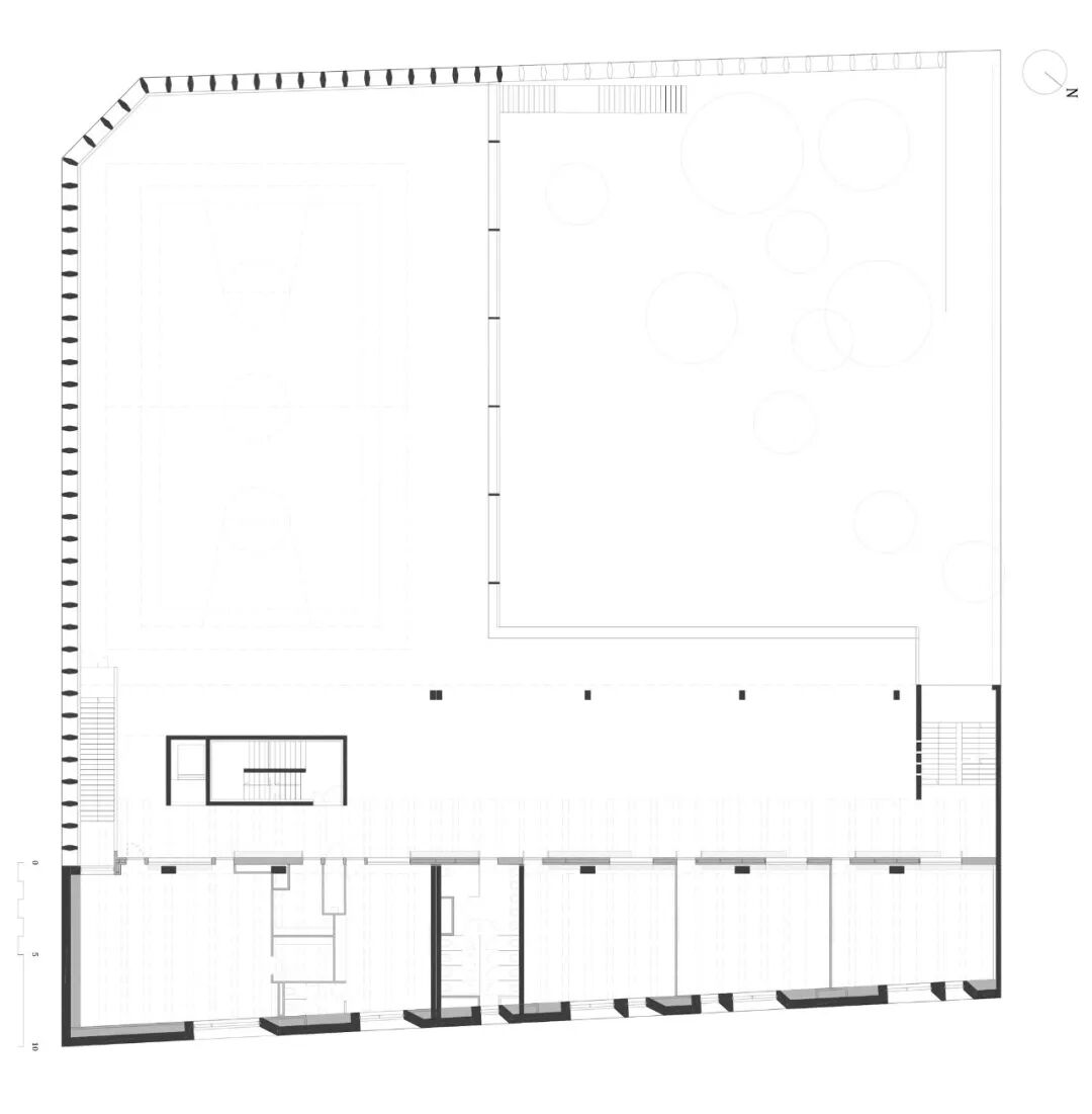
建筑包含22间教室和公共区域,这个矿物单体建筑具有严格的几何形状和壮观的体量。它的浅色混凝土外墙是雕刻的,这种厚度的镂空设计在港口一侧形成了一个柱廊,在城市一侧形成了一个大楼梯,在其环抱中创造了光与影的相互作用。与建筑的围护结构相比,由于色彩和木材的使用,室内是温暖和舒适的。
Housing 22 classrooms and common areas, this mineral monolith features strict geometry and spectacular volumes. Its light-colored concrete façades are sculpted, and the openwork of this thickness forms a colonnade on the port side and a grand staircase on the city side, creating the interplay of light and shadow in its embrasures. In contrast to the building’s envelope, the interiors are warm and comfortable thanks to the use of color and wood.
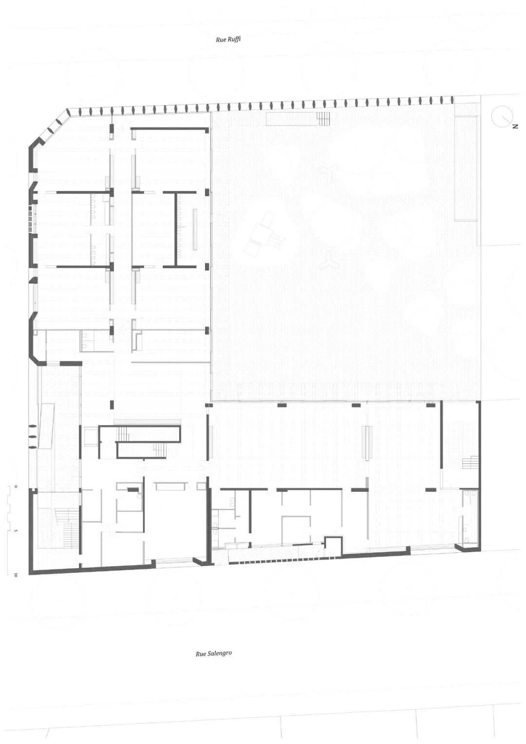
一个非凡的地点。安托万-德-鲁菲学校集团占据了一个战略性的位置,位于地中海新区的入口处,以及由城市学家伊夫-莱昂协调的 "居住公园"。它的位置一方面提供了发展中的郊区结构的视野,包括分散的仓库、筒仓、肥皂厂、1970年代的大型住宅区,以及远处的艾托尔山。从反面看,向西看,可以看到港口及其巨大的船只,扎哈-哈迪德和让-努维尔设计的塔楼,以及连续不断的高速公路高架桥。
A remarkable site. The Antoine de Ruffi school group occupies a strategic spot between the entrance to the new Méditerranée district, and its “inhabited park” coordinated by the urbanist Yves Lion. Its situation offers, on one hand, a view over the developing suburban fabric, with scattered warehouses, silos, soap factories, large-scale housing estates from the 1970s, and in the distance, the Massif de l’Etoile. In the reverse view, towards the west, one sees the port and its huge ships, the towers by Zaha Hadid and Jean Nouvel, as well as the continuous sweep of the highway viaduct.
雕刻的巨石。乍一看,这块巨石结合了庞大的规模和矿物性。纪念性是保证它在这个密集区存在的条件,那里的高层公寓楼(高达17层)正在计划建设中。建筑师们自愿限制了建筑和技术部件的数量,以保证其简单性和持久性,并确保易于维护。
用 "低碳 "的浅色混凝土建造,介于珍珠白的淡色和珍珠白的米色之间的椰壳砂(普永的挚爱),建筑是就地浇筑的,没有接缝。 对 "皮肤 "的艰苦工作产生了交替的椰壳砂和光滑、哑光和闪亮的表面,并在环形空间中产生了光和影的相互作用。
Sculpted monolith. At first glance, this monolith combines massiveness and minerality. The monumentality is the condition guaranteeing its existence in this dense district where high rise apartment buildings (up to 17 stories) are slated for construction. The architects have voluntarily limited the number of architectural and technical components to guarantee simplicity and longevity and to ensure easy maintenance. Built with “low carbon,” light-colored concrete, between the pearl white blanc and beige of the coquina sand (dear to Pouillon), the building was poured in place and without joints. The painstaking work of the “skin” has produced alternating parts of coquina and smooth, mat and shiny surfaces and an interplay of light and shadow in the embrasures.
生物气候设计:适应其暴露的外墙。外墙起到了保护作用。 它们的厚度为100厘米,是 "双壁 "的结果,这是一个同时浇筑两层混凝土的过程,在其间插入一个刚性的绝缘形式。它们结合了热性能和两个矿物外墙的质量。在其厚度上,放置在这里的深凹槽为内部提供了有用的空隙,用于安装存储、工作站和流体循环。
Bio-climatic design: façades adapted to their exposure. The façades play a protective role. With a thickness of 100 cm, they are the result of a “double wall”, a process of simultaneous pouring of two veils of concrete between which a rigid form of insulation is inserted. They combine thermal performance and massiveness to the two mineral façades. In their thickness, the deep embrasures placed here provide the interior with useful voids for installing storage, work stations and fluid circulations.
把自己放在儿童的高度。为3至11岁的儿童设计一所学校的挑战是确保他们喜欢上学,并且他们发现学习环境既温馨又有保护作用,就像人们对这样的机构所期望的那样。人体工程学、舒适性和考虑到儿童身高的关注指导了整个设计工作,一直到最细微的细节。
Placing ourselves at the height of children. The challenge of designing a school for children ages 3 to 11 is to ensure that they love to go to school and that they find the learning environment both as welcoming and protective as one expects of such an institution. The ergonomics, the comfort and the attention of taking into account the height of children guided the overall design work all the way down to the slightest details.
欢乐和光亮的室内环境。为了创造惊喜,并与信封的矿物质形成对比,而且总是在这种地中海风格中,室内感觉到欢乐和多彩。曲线的柔和性和木材的使用使这个儿童的宇宙,温暖而包围着。这种木材,来自阿尔卑斯山的生物落叶松,被有节制地用于主要的墙面,用木板覆盖,在教室和通道之间有玻璃,并用于内置的家具。
Joyful and luminous interiors. To create surprise and contrast with the minerality of the envelope and always in this Mediterranean style, the interior feels joyful and colorful. The softness of curves and the use of wood enabled this children’s universe, warm and enveloping. This wood, bio-sourced larch from the Alpes, was used with restraint, for the major walls covered in wood paneling and glazed between the class rooms and circulations and for built in furnishings.
建筑师:TAUTEM Architecture , bmc2 Architects
本资料声明:
1.本文为建筑设计技术分析,仅供欣赏学习。
2.本资料为要约邀请,不视为要约,所有政府、政策信息均来源于官方披露信息,具体以实物、政府主管部门批准文件及买卖双方签订的商品房买卖合同约定为准。如有变化恕不另行通知。
3.因编辑需要,文字和图片无必然联系,仅供读者参考;
合作、宣传、投稿
联系微信:soujianzhu006

推荐一个
专业的地产+建筑平台
每天都有新内容
扫描二维码关注

微信公众号“搜建筑”(ID:sjz9999)