新URCA 总部包含所有中央服务和兰斯香槟阿登大学校长办公室,以前分散,新的 URCA 总部结合了功能效率、灵活性和工作舒适度。
Housing all the central services and the offices of the Presidency of the University of Reims Champagne Ardenne, previously dispersed, the new URCA headquarters combines functional efficiency, flexibility, and working comfort.
作为 URCA 为更新和振兴其设施而发起的 Campus 3.0 计划的领导者,这座建筑通过强烈而充满活力的建筑信号体现了它所代表的机构,在一个六分之一的居民是学生的城市。最后,这个致力于教育的主要公共机构的总部位于一个敏感的社区,是向所有人开放的追求卓越冲动的强烈象征。
At the head of the Campus 3.0 program initiated by URCA to renew and revitalize its facilities, the building embodies the institution it represents through a strong and dynamic architectural signal, in a city where one in six inhabitants is a student. Finally, the location of the headquarters of this major public institution dedicated to education in a sensitive neighborhood is a strong symbol of the impulse for excellence open to all.
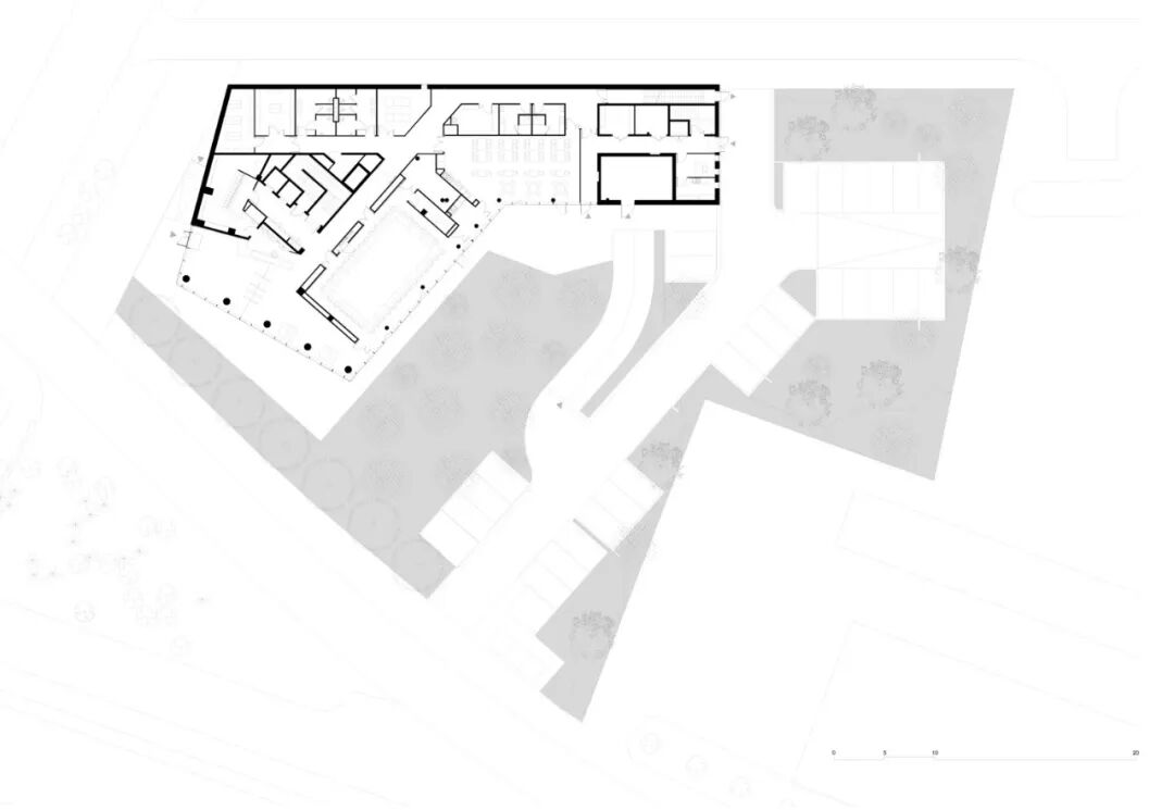
大学的新总部位于兰斯历史中心西南部的 Croix-Rouge 区,构成了该地区城市更新的结构纽带。这个异质的区域相当稀疏,主要由大型集体住宅区和活动建筑组成,与赛马场接壤。该项目位于两条街道的拐角处,与现有和未来的运营相结合,成为该行业转型的重要杠杆。
Located in the Croix-Rouge district, in the southwest of the historic center of Reims, the new headquarters of the University constitutes a structuring link in the urban renewal of this part of the city. This heterogeneous sector, which is rather sparse, is mainly composed of large collective housing complexes and activity buildings, bordering a racecourse. The project is inserted at the corner of two streets, weaving a continuity with the existing and future operations, becoming an essential lever for the transformation of this sector.
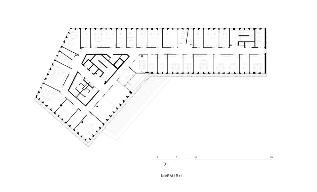
该场地分为建筑体量和一个自由空间,建筑体量由围绕植被岛弯曲折叠的图形组成,而自由空间专门用于通过玩斜坡而展开的花园。在一楼,矿物基地被大厅打断,大厅自然地融入建筑物的角落。
The site is divided between the volume of the building, composed as a figure folded in inflection around an island of vegetation, and a free space devoted to a garden that unfolds by playing with the slope. On the ground floor, the mineral base on which the rest of the level is interrupted by the hall which naturally fits into the corner of the building.
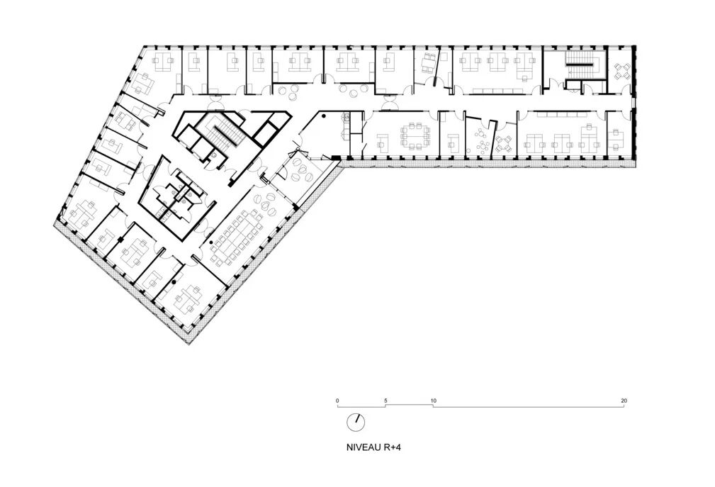
大面积的玻璃,清楚地标志着进入总部的通道。它的处理方式从主立面略微向后退,安装了一个缓坡,使其远离街道。一楼的公共区域(大厅、会议室、餐厅)朝南,朝向花园,并通向宽敞、阳光充足的露台。在上层,四个办公楼层在基地上方旋转。它们完全模块化,旨在根据需求和部门之间的协同作用完全灵活和可扩展。
Largely glazed, it clearly marks the access to the headquarters. Its treatment, slightly set back from the main facade, and the installation of a gentle ramp set it at a distance from the street. The common areas grouped together on the ground floor (hall, boardroom, restaurant) face south, towards the garden, and open onto generous, sunny terraces. On the upper levels, the four office floors pivot above the base. Entirely modular, they are designed to be totally flexible and scalable according to needs and synergies between departments.
尽管该图案是单一的,但对围护结构的差异化处理,其立面根据其方向而有所不同,响应了程序的特殊性。在包围整个建筑的相对光滑的外墙和南部的外墙之间实现了对比和互补的结合,在其上添加了金属遮阳板,形成了双层太阳能保护系统。
Although the figure is unitary, the differentiated treatment of the envelope, whose facades differ according to their orientation, responds to the specificities of the program. A combination of contrasts and complementarity is implemented between the relatively smooth façades enveloping the entire building and the southern ones, to which metal sun breakers have been added to form a double-skin solar protection system.
它们经过精心设计和定向,可调节每个空间的光线以适应不同的活动。在南立面弯曲的角度,罗缎打断了双层表皮的节奏,为室外露台让路。各个楼层都可以使用,它们为居住者提供了额外的交换和休息空间。
Carefully designed and oriented, they modulate the light in each space to adapt to the different activities. At the angle of the flexion of the south façade, a faille interrupts the rhythm of the double skin to make way for outdoor terraces. Accessible on all levels, they offer additional spaces for exchange and breaks to the occupants.
本资料声明:
1.本文为建筑设计技术分析,仅供欣赏学习。
2.本资料为要约邀请,不视为要约,所有政府、政策信息均来源于官方披露信息,具体以实物、政府主管部门批准文件及买卖双方签订的商品房买卖合同约定为准。如有变化恕不另行通知。
3.因编辑需要,文字和图片无必然联系,仅供读者参考;
合作、宣传、投稿
联系微信:soujianzhu006

推荐一个
专业的地产+建筑平台
每天都有新内容
扫描二维码关注

微信公众号“搜建筑”(ID:sjz9999)
阅读原文:更多精品