David Chipperfield Architects
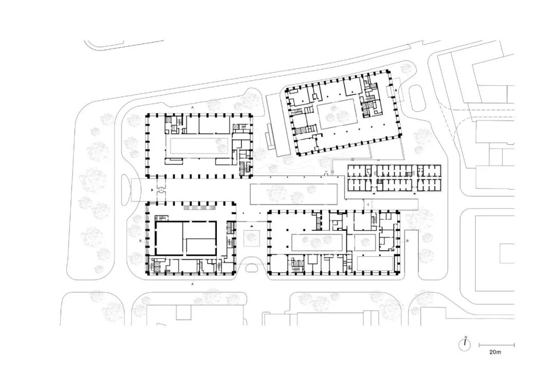
景德镇的城市遗产靠近市中心,包括一大片20世纪中期当地生产瓷器的大型工厂建筑。在第一个项目阶段,基地西部的现有建筑被翻新和开发,成为城市肌理中一个活跃的公共场所。新功能如博物馆、瓷器店和陶瓷市场,该地区形成了与过去工业的联系。
Situated close to the city centre, the urban heritage of Jingdezhen includes an extensive area with large factory buildings from the local porcelain production in the middle of the 20th century. In the first project phase, the existing buildings in the western part of the site were refurbished and developed to become a lively and public place within the urban fabric. With new functions such as a museum, porcelain shops, and a ceramics market, the area forms a connection to its industrial past.
在第二个项目阶段,东侧被改造成一个表演艺术校园,有大学、表演场地和进一步的基础设施。David Chipperfield Architects Berlin为该地区制定了一个总体规划,不仅保留和改造现有的建筑,以供再利用,而且还用新建筑补充城市区域,以获得当代的存在,作为更广泛的城市背景的一部分。
In a second project phase, the eastern side is transformed into a campus for the performing arts with colleges, performance venues, and further infrastructure. David Chipperfield Architects Berlin developed a master plan for this area, not only preserving and converting the existing buildings for re-use but also complementing the urban quarter with new buildings to gain a contemporary presence as part of the broader city context.
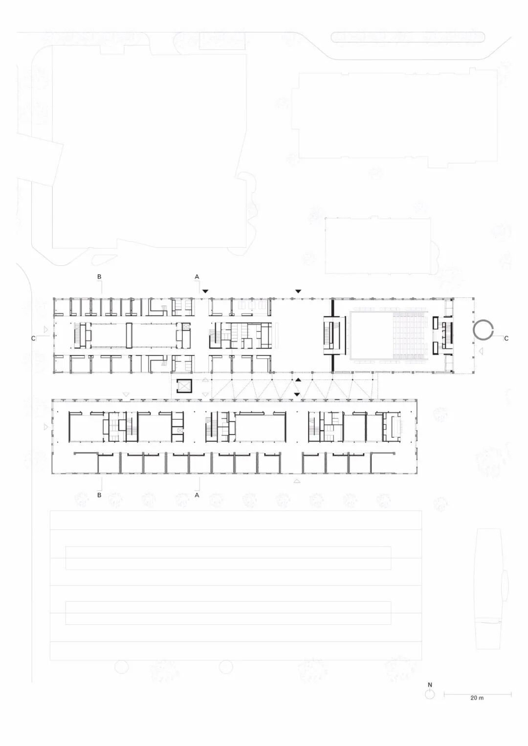
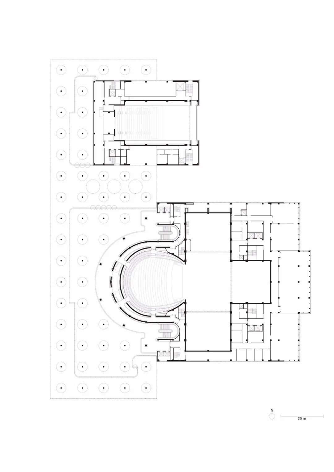
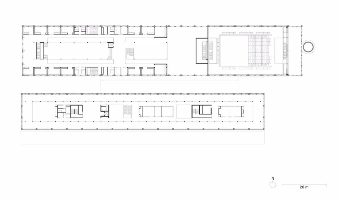
一条穿过前生产基地中心的步行长廊和一条西面的林荫大道向南北方向打开了该地区。沿着林荫大道,新建了公共建筑,例如北面有两个场馆的大剧院和南面的酒店综合体和图书馆,将校园打造成新的城市地标。新建筑与位于校园中心的音乐学院等历史悠久的工厂空间内的文化机构相得益彰。除了这些公共用途外,还提供商店和住宅楼,包括学生宿舍。
A pedestrian promenade leading through the centre of the former production site and a boulevard to its west open up the area in a north-south direction. Along the boulevard, new public buildings are placed such as a Grand Theatre with two venues to the north and a hotel complex and library to the south, establishing the campus as a new city landmark. The new buildings complement the cultural institutions housed in the historic factory spaces, such as the music academy at the heart of the campus. In addition to these public uses, shops and residential buildings are also provided, including student accommodation.
市中心校园的公共特征主要是通过向公众开放工厂建筑的地面层而产生的,将公共室外空间延伸到室内。由于它们的物理存在和与当地瓷器生产的历史相关性,现有的工业建筑赋予了这个地区的身份和意义。因此,它们的保存和继续使用对整个总体规划至关重要。
The public character of the inner-city campus is primarily generated by opening the ground levels of the factory buildings to the general public, extending the public outdoor space into the interior. Due to their physical presence and historic relevance for the local porcelain production, the existing industrial buildings give identity and meaning to this area. Their preservation and continued use are therefore essential for the whole master plan.
建筑师:David Chipperfield Architects
本资料声明:
1.本文为建筑设计技术分析,仅供欣赏学习。
2.本资料为要约邀请,不视为要约,所有政府、政策信息均来源于官方披露信息,具体以实物、政府主管部门批准文件及买卖双方签订的商品房买卖合同约定为准。如有变化恕不另行通知。
3.因编辑需要,文字和图片无必然联系,仅供读者参考;
搜建筑·矩阵平台

合作、宣传、投稿
联系微信:soujianzhu006
推荐一个
专业的地产+建筑平台
每天都有新内容
扫描二维码关注

微信公众号“搜建筑”(ID:sjz9999)