01.一水中堑·环绕如月
/ 场所与原型 /
△漳州月港“海舶鳞集,商贾咸聚”
漳州是一座因海而兴、拓海而荣的港口城市。漳州与泉州同属于“海上丝绸之路”起点。明代中后期,漳州月港是唯一合法的“海丝”始发港,是当时中国最大的对外贸易港口。本项目正位于福建漳州,承载着创立漳州生活样本的使命。同时,漳州的历史及地理位置使地块骨子里天生带有“海与帆”的城市基因。我们希望它不只是座展示建筑,更是城市生活的重要组成,为市民带来不一样的生活体验。
场所承载着闽南人民独有的“大航海”的文化传承和拼搏创新的海商精神,建筑作为时代的见证 , 能够反映漳州海丝文化的海洋历史背景和乐观探索的独特时代精神。
△新城标准化的地域性演绎
02.东风入怀·沧海方舟
/ 抽离与蜕变 /
△实景图
设计从“海上丝绸之路”的地域标签作为起点,舟应海而生,以“方舟·启航”作为设计概念,构建起一个沉稳大气的空间场域,以”风云际会、沧海方舟;大洋通衢、源远流长”寓意项目及漳州的蓬勃发展。
△设计草图
主体建筑以微弧饱满的曲线形态展示扬帆前行的蓬勃趋势,前后主体的轮廓设计在统一的建筑语境之下,高低错落,前后叠合,形成人民广场街角对位的点睛之笔。
△鸟瞰图
△局部透视图
△体块生成
多维度延展使原有的边界被打破,同时使其自身从限制的既有空间的单一作用拓展为容纳并创造多元空间。围墙、建筑、场所形成一个整体,不仅是形式上的相连,也是空间上的互融。
△实景图
项目结合立面设计配置了裸眼3D屏幕,将艺术与科技相结合,通过光筑艺术、数字科技,使人们的视野与裸眼3D屏幕产生美学关联。
△裸眼3D屏
在设计中将建筑与空间流线进行重组,结合叙事的手法又将空间进行转化,实现了开放与私密空间的自由切换,促进人与自然的交互行为,将空间归还城市的同时又具有一定的私密性。
△流线分析
△实景图
项目作为城市归家的必经流线,以城市客厅的定位,链接城市与家庭,注重多功能场景化打造。设计关注个性需求与群体归属,展现对于现代分裂个体之间的链接思考,以开放多元、生长延续的姿态,成为未来社区的有机组成部分。
△室内实景图
室内设计以“沉梦昂志,扬帆起航”为主题,通过大跨度的帆拱形样式和木质柔和的内装色调营造出平易近人又不乏高级感的审美体验,同时与立面构成中方舟的概念形成呼应。
△室内实景图
03.借景互动·精致建构
/ 材料与建造 /
·材料的精细化策略
△局部细节图
建筑材料选择阳极氧化穿孔复合板配以玻璃幕墙来分割和界定空间,最大限度的塑造空间的流动性和整体性。轻盈灵动,户外的自然光与景观得以渗透进室内,空间开敞明亮,焕发出新的生机。
·表皮的数字化推演
△局部细节图
提取漳州市花为基本元素,抽象化为六瓣花的形象,运用参数化的手段将形象代号与穿孔铝板有机的融合。抽象的图案在阳光下错落更迭,与建筑整体的方舟形象交相呼应。
·细节的可视性雕琢
△墙身节点图
·施工还原性把控
△施工现场
本项目通过对节点的研究和对现场施工的把控,最大程度保证方案设计的落地效果。
04.城市反哺·赋形建筑
/ 创新与传承 /
△实景图
正如路易斯 · 康所言,“建筑师的责任就是去发掘这种深思熟虑的空间特质(realm of space),不仅仅接受约俗的计划,而是应该试着去创造一些非约俗也能理解为是有效的东西。”
海寓意顺流而动、顺势而为,舟代表开放、交流、包容的机遇所在。本项目基于原始的直觉,从社会造物中抽象和提炼美学价值的空间进行重构。它是简单的,方舟以形,赋予建筑以单纯简洁的视觉体验;它是复杂的,海航以势,设计尝试重构一种可以映射闽南人民精神风貌的城市空间,达到建造与需求共生的状态。
好的故事从来都不是一个人的故事,一个好的项目也需要各方齐心协力。特别感谢业主方团队在其各专业默契配合的同时,给予设计团队足够的发挥空间。在双方共同探讨与推进下,不仅解决了场地的难题,也获得了令人欣喜的落地效果。
技术图纸
▼

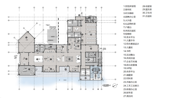
△一层平面图

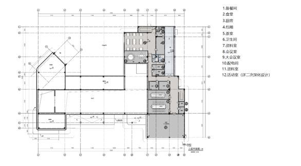
△二层平面图
本资料声明:
1.本文为建筑设计技术分析,仅供欣赏学习。
2.本资料为要约邀请,不视为要约,所有政府、政策信息均来源于官方披露信息,具体以实物、政府主管部门批准文件及买卖双方签订的商品房买卖合同约定为准。如有变化恕不另行通知。
3.因编辑需要,文字和图片无必然联系,仅供读者参考;
搜建筑·矩阵平台
作品展示、招聘发布、特色建材
合作、宣传、投稿
联系微信:soujianzhu006
推荐一个
专业的地产+建筑平台
每天都有新内容
扫描二维码关注

微信公众号“搜建筑”(ID:sjz9999)


