▲ 更新消息,关注“建筑行业注册考试”
说明:仅供参考
1、大设计——对答案(今日第一部分)
7、二注大设计——对答案(点击我查看)
第一部分
大设计对答案
今年大设计考题终于揭晓了,考试测试综合楼,这要归类的话,可能可以算是行政类吧。
这道题确定各个分区的位置并不难,根据题目条件应该能判断出三个分区的大致位置如下图所示:
但是这道题出题人还是给我们挖了一个坑:
出题人在文字说明里面明确说了:除卷库用房外,其它房间(表中带#号房间及空间,包括其备注中的管理室、男女卫)均要求有自然通风和天然采光。
这句话就很奇怪,因为对房间通风采光的要求,一般都是在面积表里面有明确要求的,文字说明里面过去几年都只是简单说一句:附表中“通风采光”栏内标注#号的房间,要求有天然采光和自然通风。
就是说,往年都不会在文字说明里专门强调有哪些房间不需要通风采光,你自己看面积表就行,但是今天出题人特意强调了卷库用房不用通风采光。这其实就是在给一些没有经验的同学挖坑。这些同学很容易在做方案的时候坚持不让卷库用房靠建筑外墙,结果就是方案怎么做都不对。
我记得今年线下班第二天的题目有很多同学跟我抱怨:
“密室逃脱明明是不通风采光的房间,标答怎么放在靠建筑外墙的地方?这不就能通风采光了吗?”
“做方案的时候一直在想着:密室肯定不能靠外墙,结果做出来的方案与标答差了十万八千里。”
实际上这也是我们特意在线下班的题目里面给大家挖坑,因为很多同学脑海中有固定思维,觉得不通风采光的房间一定不能靠外墙。实际上这些房间完全可以靠外墙,只要不开窗就行。只有打破这个错误的固定思维,你才能做出接近标答的方案,否则你的方案就只会在错误的轨道上越走越远……
👇
下面直接给大家放我们试做的答案:
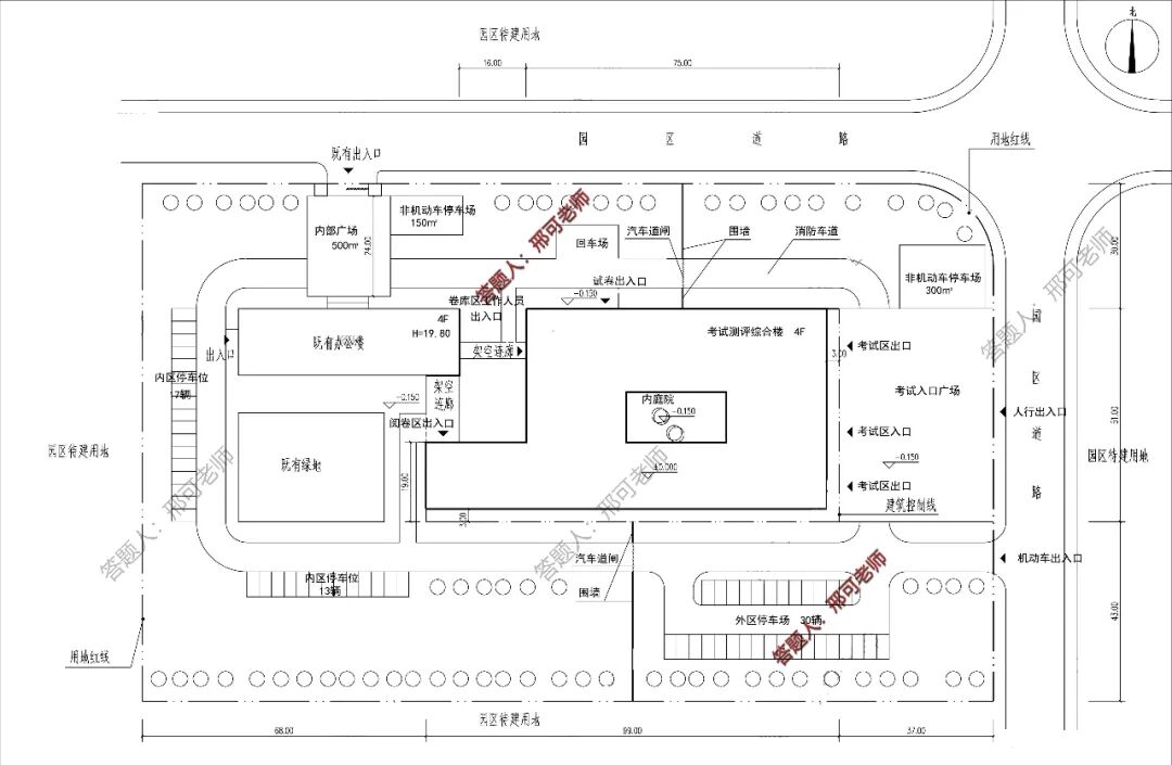
总 图

一层平面图

二层平面图

说几个可能大家会比较容易扣分的点:
◇ 总图:
没有人车分流扣3分
没有做消防环路扣3分
没有画围墙把内外分开扣3分
道路在围墙处没有画汽车道闸每处扣1分
总图层数标两层扣1分(别忘了这个建筑一共有四层!)
建筑压控制线不扣分(标答是压线的)
◇ 平面图:
小考场分区不明确扣10分
没标门禁每处扣1分(有多少人画到最后忘了题目要求画门禁的?)
寄存处没有独立对外开门扣5分(注意题目要求:外存外取)
门太小,卸货间不能让货车直接开入扣3分(注意题目要求货车要进去卸货间装卸试卷)
大考场、多功能厅、阅卷室中间设柱每处扣5分
一共有四种闸机,每缺一处扣2分,10分封顶
注册考试交流
扫描二维码 加好友联系

第二部分
大设计评分标准+重大扣分点分析
今年的题目,无论是从文字描述的语气,还是面积表的格式、气泡图的格式和表达特点,都保持着前几年出题人的一贯风格。按以往的评分标准,我给大家整理了2022大设计模拟评分表。红色字的部分是今年的一些重大扣分点,大家也可以先跳过表格直接看我后面的重大扣分点分析,再回来翻看表格。
以下是我们整理的2022大设计模拟评分表

今年大设计比较重大的扣分点包括:
采光方向错误,最高可扣20分
有一些同学这里理解错误,把“长边南北向”理解成了“长轴南北向”,这就出大事了!长轴南北向一般用来形容室外运动场地,而长边南北向一般用来形容房间的采光,这个概念必须要分清楚!
大考场、多功能厅、阅卷室短边采光每处扣3分
小考场短边采光每处扣2分
每层累加到10分封顶,两层加起来20分封顶
为什么扣分这么重,因为这是题目里面非常明确的设计要求,而且涉及的都是题目的主要使用空间的使用效果!
比如下面这两张图都犯了这个错误,都会扣不少分。


考生进场流线:考试区入口→安检处→签到大厅→候场厅→考场
考生离场流线:考场→候场厅→离场厅
试卷入库流线:卸货间→卸货登记处→卷库区门厅→整理录入室→卷库
试卷出库流线:卷库→收发管理室→考试区/阅卷区
每缺一条流线一般都是扣5分,如果不小心错了几处,那也是十几二十分就没了。
疏散距离不够历年都是5分一处,也算是扣得比较多的扣分点。这道题有一些同学容易在中间把走道打断,形成袋形走道,这样就很容易疏散距离不足的分数。

因为缺图例而扣分往往是最可惜的,因为这个东西就是你多花点时间,细心一点就能拿到的分数。
而今年题目里面的图例又特别多,总图上的围墙、汽车道闸、平面图上的门禁、闸机,这些都是分!如果你没有意识到图例的重要性,觉得画不画无所谓,那这里可能最多能扣到20分左右。
题目强调的无柱空间,如果一不小心点了柱子,那一般就是5分一处。大小考场、多功能厅、阅卷室中间设柱都是每处扣5分
不压红线
西侧建筑不压红线做会导致外墙与连廊不对齐,由于连廊只是接到建筑的门,就算不对齐错开一点,门还是能开向连廊,所以这里没有产生使用功能上的问题,不会直接扣分,但是新旧建筑交接的地方建筑外轮廓不规整,会影响阅卷老师的印象分。至于印象分最终会导致多扣多少分,要看设计和图面质量,我估计平均会影响两到三分。
内庭院太小
按2010年和2011年真题的评分标准,内庭院短边宽度需要大于遮挡的建筑高度才能算是有效采光。但问题是我们这道题有四层,按四层来算建筑高度,那就接近20米,对庭院的宽度要求特别高。但是我们这道题由于空间限制,很难把庭院宽度做到20米以上。
我个人认为这道题出题人在这里放宽了,只需要按两层算遮挡建筑高度就行,因为三层和四层没有设计,所以没有人知道三四层长什么样,有可能三四层的建筑面积减少了一半,没有遮挡到内庭院呢对吧,只要三四层面积和形态不确定,就可能不会遮挡到内庭院。
所以出题人在这里应该是放宽了,只需要庭院短边尺寸大于两层建筑高度,大概是10米,就不扣分。如果庭院短边只做了一跨8米,那可能用这个庭院采光的房间都会被当成黑房间扣分。

卷库区工作人员流线

小考场一字排开不扣分
其实小考场一字排开并不会造成功能上的问题,所以这里不扣分。当然我们经过研究认为,标答很可能是小考场两南两北布置,但这并不意味着一字排开会扣分,因为没有产生功能上的问题。
注册考试交流
扫描二维码 加好友联系

学习更多注册考试内容
▼ 点击关注
一注考试精品课程
点击下方图片可观看
搜建筑·矩阵平台
作品展示、招聘发布、特色建材
合作、宣传、投稿
联系微信:soujianzhu006
推荐一个
专业的地产+建筑平台
每天都有新内容
扫描二维码关注

微信公众号“搜建筑”(ID:sjz9999)



