▲
_____________________
江山云和 地下玄关艺术品
初识台州,山海相依、傲岸秀拔为表,和合圆融、佛宗道源为里。飞龙湖畔 、青瓷窑边,背山面水之地,邂逅一群东方面貌的建筑……在自然与人文想象的交界,我与德信·江山云和的对话不止于设计。
或吟风弄月,或借景抒怀,思及东方园林,总有一个「名字」诱引我们由境及意,以想象赋趣。与项目的前期接触时,这座落在「浙东唐诗之路」上的城市先天具有的文学意趣,以及庭园、建筑处处可见的江南人文印迹,成为室内空间设计发想的起点。
▲ ▼
________________________________
东方神话里,风神飞廉形态狰狞;而在波提切利的蛋彩画中,风神鼓腮、吹出玫瑰。「风生水起-起舞」以童趣、禅意,兼容东西方关于「风」的想象
由上风上水的区位条件出发,演绎出「风生水起」的题眼,我们在空间创作之时同步构想艺术,力图用色彩、叙事、想象力将室内建构为一幅移动画轴:以白描为始,以和合之境为终。雕塑景题、家具陈设、视看关系共同扣题……技与艺合谋,调动居者探问关乎空间与境界的艺术。
▲ ▼
________________________________
「风生水起-圆舞曲」由垂悬的水滴环抱而成,将「银河之水天上来」的意向与圆舞曲自由、热情的弦音融汇一体,圆舞曲男女相拥、舞步进退,亦是对圆融、和合精神的诠释
东西方文化关于风与水的想象被融合、物化为两尊雕塑,它们安放于地下,赋予其「标题性」,使之反客为主,由昏暗的冗余空间转化为整个别墅的诗意核心。「风生水起-圆舞曲」悬于入户玄关中,临靠一方下沉庭院,任天光与灯光染上不同颜色,又反射着院中葱茏绿意;「风生水起-起舞」则处在一处圆形天窗下方,将地上庭院的锦鲤池收于眼底,观微波荡漾、鱼跃云飞……
在自我的世界,
你可稚嫩如孩提,
而强大如飞廉。
阴阳相拥、进退相成,
在万事万物的变化中,
生成「道」。
▲
________________________________
概念草图 从艺术单品至空间艺术概念
水,是万物之源,因水而有生命;风,是流动的空气,因风而有鲜活。若以当代语境解读,「风生水起」即与自然共生,感知生命的节序——这亦点明了东方园居别墅的内涵意蕴。
在江山云和,设计以「艺」叙话,将自然之形、自然之声、自然之气、自然之意引入室内,以求重组时空、重构感知。受限于建筑条件,地下空间成为这一系列「重构」动作的核心与原点。
▲
_____________________________
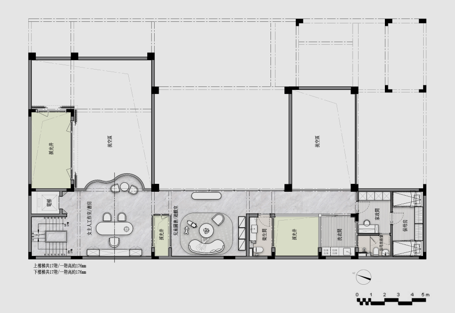
地下一层平面图调整前后对照
▲
__________________________________________
分析图 中轴之上,以礼序连接层高的起落
原始建筑平面被零散的墙体切分为彼此独立的「房间」,仅有的四处采光井将自然光有限地引至临近功能房,致使大面积空间昏暗、幽闭,难以停留。在台州德信的支持下,我们得以「再造」建筑。
▲ ▼
___________________________________________
主轴线上 空间以自然为始,亦以自然为终
以室内为「实体」,祛除非必要的隔墙、化零为整,使空间开朗舒阔;扩大采光庭院的「留白」,并令其均匀分布,让光线和视线自由流动;渐变瓦楞玻璃、书架、壁炉成为功能转换的「提示语」,亦形成漏景和框景……虚实之间,东方园林的空间结构悄然成型。
▲
__________________________________________
由宴会厅回望会客厅,柱与壁炉形成引景
▲ ▼
______________________________________________________
上:艺术品成为会客厅及私人博物馆的对景
下:由宴会厅透过壁炉与墙体的廊道空间回望艺术品
一条中轴自地下玄关开始蔓延,男女衣帽间与洗手间于两侧排开,墙上装饰画以水墨演绎「风生水起-圆舞曲」,延展了「雕塑景题」的生命力,又以互为图底的色彩回应主雕塑「阴阳相合」的艺术脉络。这种「非严谨轴对称」将地下空间整体串联,既还原了中式建筑平衡沉稳之美,又允许适当的跳脱,形成灵动生趣、步移景异的园林之韵。
▲
_________________________________________________
会客厅空间全景,壁炉位于中部,下方形成框景
▲
______________________________________
宴会厅正对酒窖 夹层的岛台成为装饰
「风生水起」之「水」经抽象演绎,流淌于天花、岛台、墙面,凝练于艺术品与装饰,又雾化于屏风……因上部结构差异(建筑或覆土层),地下空间形成层高差,我们以功能为依托局部做夹层,丰富并合理化高差,于空间漫游,颇有「山石开合共花木环抱」之雅意。山非山,水非水,一幅超现实的奇景引人翱翔杳冥,兼忘物我,像极了深藏于台州血脉中的山水佛画所讲述的细水流长。
首层空间 庭与院共生
大面积落地窗与中式建筑相配,各空间互为对景
左右滑动
▲
___________________________________________
茶室前有花院后有水园 室内室外皆为自然
行至地上,自然以更为显性的方式统领庭园、建筑及室内。首层空间是传统「三进式院落」的变体,大面积落地窗将建筑化为「廊」,一步一瞥,廊景相融。室内一应坐具、床具尽可能朝向风景,使居者心神汇聚于生机流转之自然、旷奥自如之山水,品咂庄子「率真忘我」的逍遥。
▲
______________________________________
上:客厅 以中轴实现空间的礼序
下:茶室效果图 以榻榻米区隔两空间
茶室顶部,透光的特殊材质描绘着「云」的模样,如日式手作皱纸,禅意延绵。自客厅望去,「云」似挂于树梢,在动与静的相对论中,以云游,喻风生。
▲
__________________________
首层平面图调整前后对照
茶室由原建筑平面中封闭的客房及会客厅转换而来,依结构条件,被一分为二。我们将里间的地面抬升,做榻榻米,保留其转化为临时客房的可能性。透明镜面将两空间连为一体,地面的高差又被桌面拉平……或抬或举,或围或遮,或景或境,空间总归是对人的关照。
东方不止于视觉,东方是一种生活。它既指向「与天地精神往来」的宏阔洒脱,亦兼容「团圆过朝夕」的和乐亲睦。在「江山云和」,我们由平面、剖面起笔,梳理甚至再造与家宅相关的「关系场」。
▲
_____________________
新增的地下夹层空间
新增的夹层空间以一条廊道串联各功能,提升了地下空间的使用价值,女主人工作室、家政套间分列于儿童游戏室两侧,便于以最短的路径照料玩耍的孩童。
夹层 女主人工作室
一侧经天井与儿童游戏室相连,另一侧对望宴会厅
左右滑动
透明的玻璃盒子、完全开放的岛台不仅为室内引入流动的空气,更让临近空间(女主人工作室与儿童游戏室/宴会厅)视线可流动。一方案几、一张圆桌,清茶与咖啡为伴,或阅读,或创作,又或与挚友小聚……心有挂念的女主人总能抽离出来,看家人闲坐,灯火可亲。
▲
________________________________________
宴会厅与夹层的女主人工作室视线相通
挑空的宴会厅尺度恢弘,可容纳20余人,与两侧吧台、酒窖共同谱写「置酒高会」的热闹。鲜花佳肴、长桌细语的西式宴饮补足了首层餐厅推杯换盏、圆桌相对的热闹,东与西的交融再次得到呈现。壁炉上的圆形装饰在宴会厅与会客厅呈现出色彩与形态的细微差异,似硬币的正反两面,暗喻文化在差异之上的共鸣。
▲ ▼
_________________________________________________
从会客厅看向宴会厅,沙发区成为被观赏的对象
装饰物的镜面材质成为借景的道具,记录着日光明灭、人影往来,反射的虚像与真实的空间共构属于生活的绚丽。挣脱画框的蓝色艺术装饰点题了沙发区,使之超脱功能,成为被观赏的对象。退行至会客厅,墙、窗、框、镜令艺术与自然隐约断续,借位置的经营关照身体的行游居停。
▲ ▼
____________________________________________________
上:从夹层俯瞰下方会客厅
下:剖面图 地下会客厅与夹层儿童游戏室视线互动
一个被德信营销团队戏称为「猫眼」的槽为夹层儿童活动区与下方会客厅建立关联。因上设覆土层,两空间交界处有厚实的梁架,夹层楼板与梁底相距不足一米。我们并未以一面墙来粗暴地封堵空间的可能性,而是开出形如微笑的窗,梳理人与人、人与景的关系。
▲
________________________________________________
从夹层的儿童游戏空间看向下方会客厅及艺术
它诱导夹层空间的孩子(甚至成人)为一隅风景弯腰或匍匐,去窥探抚琴礼茶、雅士相聚,去静观波光为艺术镀上的奇幻,任好奇心如树参天……陈列于儿童游戏室的家具来自T.K Home德光居Smile :P系列,每个单品均是「邱德光家庭成员」的标志性脸谱。
▲ ▼
_____________________________________________________
上:儿童游戏室看向天井中的艺术品
下:儿童游戏室所用的家具皆来自T.K Home德光居
它们以各自的方式微笑,与窗的造型对话,以童趣之形与「风生水起-起舞」的稚子之态对话,又构筑出创作者与居住者以「家」为单位的对话。我们希望借审美主体与客体的共鸣,诱发一种不局限于画面视域的知觉,一种更关乎诗意的想象。
东方文化主张主客融合,人与自然、社会、人际、心灵、文明……既涵摄又度越冲突、融合,世间万物即是相互依存的和合体。而将「和合」作为城市名片对外展示的,恰好是台州。
▲ ▼
_______________________________________________________
上:地下会客厅,圆形成为天花与墙面装饰的母题
下:地下庭院 艺术品顶部圆形的天窗与灯带扩散开来
作为和合文化的渊薮之地,这里三教合一、万善同归,滋养台州人形成豁朗包容、积极乐观的性情,亦使江山云和成为当代儒商的竞合之地、居游之所。若以一图腾概述台州文化精髓,无终无始的圆恰到好处。会客厅、餐厅、卧室……圆无处不在,得圆者即得和合之妙韵。圆润的曲线淌过传统的屋顶,使之经过变形和次序的重组,消解高差、隐匿棱角。
▲
______________________________________________
首层空间 客餐厅 以圆形天花为造型。 两空间在层高上的差异经流畅的曲面被弥合,墙面装饰灵感来自瓦片
二层 主卧套房
床背板运动的云是对「风生」的再次回应
左右滑动
形式表象之上,江山云和的室内设计与艺术创作反复呈现着对差异与对立的弥合,连接着高与低、此与彼、内与外、中与西、过去和现在、物质空间与飘渺梦幻的两端,与天地合其德,与四时合其序。
自2021年底项目落成、开放、同户型产品售罄;至2022年3月以「邱德光会客厅」之名重聚台州,4月荣登《Tatler Homes》封面,5月与《CHIC》共话传统与当下、艺术与设计的「对倒」;再至本文已属「后记」。
自左及右
《Tatler Homes》封面;《CHIC》;邱德光会客厅
左右滑动
真实与幻境的「和合」因技术的反复迭代逐渐生成新的可能。或许会有一场以「元宇宙」为终极形态的社会变革,世界终将不分虚实,空间即幻想;或许作为肉身世界创建者的设计师,最应参与甚至主导一个更为梦幻、更与性灵相通的「元宇宙」。未来已至,不妨一试。
项目名称:台州德信·江山云和
项目名称:台州德信·江山云和
主创人员:邱德光
项目管理:朱晓东
参与者:刘琼文、陈惠君、林纯萱、张喻捷、张舒涵、蔡欣妤、白澍云、江鎷如、赵铭、朱奕男
空间摄影师:朱迪
视频制作:李培桦(导演)、邱德光设计(监制)、李昊梦(摄影)、郑羽嘉(剪辑)
撰文及排版:Susanna Bai
空间性质:样板房
坐落位置:浙江台州
主要材料:特殊石材、木饰面、烤漆、特殊墙纸、不锈钢
家具品牌:T.K HOME, B&B, Reflex and Molteni & C
饰品品牌: Robert KUO, Kim Syberet, Tom Dixon, Gardeco, Gilles Caffier and Georg Jensen
面积:900㎡
设计时间:2020年10月至 2021年03月
施工时间:2021年09月至 2021年12月
本资料声明:
1.本文为建筑设计技术分析,仅供欣赏学习。
2.本资料为要约邀请,不视为要约,所有政府、政策信息均来源于官方披露信息,具体以实物、政府主管部门批准文件及买卖双方签订的商品房买卖合同约定为准。如有变化恕不另行通知。
3.因编辑需要,文字和图片无必然联系,仅供读者参考;
搜建筑·矩阵平台
作品展示、招聘发布、行业相关
合作、宣传、投稿
联系微信:soujianzhu006
推荐一个
专业的地产+建筑平台
每天都有新内容
扫描二维码关注

微信公众号“搜建筑”(ID:sjz9999)
阅读原文:“邱德光设计”更多精品


