▲ 更多精品,关注“搜建筑”
品牌地产 | 精品楼盘考察 | 厦门
本次楼盘考察活动时间
7月28日 、7月29日两天
(周四、周五)

厦门九大精品项目
融创 · 东麓
中海 · 杏林鹭湾
建发 · 叁里云庐
首开·万科璞悦山
中骏 · 天宸
建发 · 缦玥长滩
世茂 · 国风长安
首开龙湖 · 璟宸府
中海 · 环东时代
温馨提示:厦门楼盘活动,以上项目中安排8个参观,部分参观项目根据现场情况可能会有调整。时间为7月28日-7月29日(周四、周五),满员即止,感兴趣的朋友请及时联系报名。
另外可免费参加
《全球建筑大师论坛》
《第二十二届中国厦门国际石材展览会》
报名+咨询

咨询微信:soujianzhu03

咨询微信:soujianzhu002
2、联系电话:18132657351(微信同号)
中海•杏林鹭湾
建筑方案:梁黄顾建筑设计(深圳)
景观方案:北京创翌善策景观设计


▲中海·杏林鹭湾 实景图
▲中海·杏林鹭湾 实景图
融创·东麓
设计单位:南方设计院;GTS蓝颂设计
东麓之名的灵感,来自它的伟大溯源:取意古山水意境。这一次东麓呈现的,是天地间真正的大山水——融创东麓,在眠虎山和芦青湖两大山水间的建筑居所。

▲融创·东麓 实景图

▲融创·东麓 实景图
而“山水”这个具有中国气质的词汇,不仅是设计东麓的灵魂,更是融创深耕闽南,丰富闽南人居维度直观而凝练的证言。

▲融创·东麓 实景图
社区内部空间升级拓宽,巷道之间彼此互通,给予城市山民更为流畅的游园体验,也增强了邻里之间的互动感;新增风雨连廊、红雨曼妙等组团景观,赋予生活更多逸趣。

▲融创·东麓 实景图
结庐成境,山水相依,以合院式建筑形态,赋新城市里没有的院生活。

▲融创·东麓 实景图
黛瓦白墙、低坡屋檐,以泼墨留白之势,彰显城市高净值人群的高雅气韵;

▲融创·东麓 实景图
有天有地的合院建筑形态,将私密与独立归还生活天地,依据不同组团,设计了不同的植被景观。

▲融创·东麓 实景图
整体采用仿石漆材质,结合中空玻璃、高级铝合金等甄选材料,为建筑能够在山湖盛景中历久弥新奠定了品质基础。

▲融创·东麓 实景图
城市低密之上,建筑面积约88-178㎡山水合院,不远城市繁华,寻常的日子更因园林的丰盛妙趣横生。

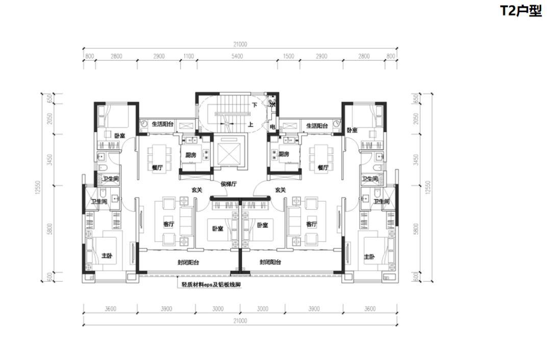
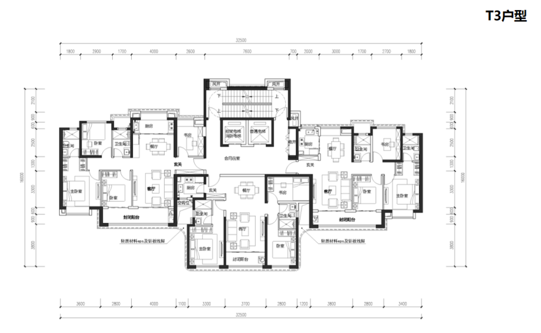
▲融创·东麓 户型图

▲融创·东麓 户型图

▲融创·东麓 户型图
约15°阳台内倾扶手、人性化窗户防坠落设计、舒适化中空玻璃设计等,无一不以人为中心,升华着美好生活。

▲融创·东麓 实景图

▲融创·东麓 实景图

▲融创·东麓 实景图

▲融创·东麓 实景图
在山湖之间,依然引入“有家、有生活、有知己”的归心社区。包括书享Zone、果壳Park、Party House等归心配套。

▲融创·东麓 归心社区
▲融创·东麓 归心社区
中骏·天宸
建筑设计:厦门上城建筑设计
景观设计:上海广亩景观设计
中骏集团的天字系列产品一直都是厦门岛内的豪宅标杆,【天宸】是东方气韵运用现代手法的演绎,以写意手法对传统美学进行的延伸,将闽南特色元素与设计自然的融入空间。

▲中骏·天宸 实景图
项目周边政府机要单位密布,紧邻学府,出将入相,故而顶部用飘檐造型,以“官帽”、“博士帽”的立意。
中骏天宸在遵循总设计理念的同时,回溯当地文化,延续城市肌理,因地制宜,延伸出“梦、阔、雅、奢” 的设计脉络。

▲中骏·天宸 实景图
主墙身以仿石漆与金属漆结合,塑造典雅端庄与简洁大气并存的表皮。在建筑底部采用石材与铝板,营造高雅立面质感,增加近人尺度的尊贵感。

▲中骏·天宸 实景图
空间层次上,营造“地标入口-精奢大堂-泳池会所”三进式雅奢空间,以转折流动的空间秩序,来体现“之山折水”的设计哲思。

▲中骏·天宸 实景图

▲中骏·天宸 实景图
大门设计以干净简洁的结构凸显入口门楼的张力,以现代精奢艺术呈现出典雅美学,强化小区入口的地标性。

▲中骏·天宸 实景图
营造“移步易景,一景一情”的空间意境。泳池会所整体兼具实用与审美,处处彰显对品质格调生活的追求。

▲中骏·天宸 泳池实景图
健康生活,品质与趣味并在。
拾光陪伴花园,静谧的时光中,悠闲会客廊架。

▲中骏·天宸 实景图
奢华“双大堂”配置,打造气度非凡的地上地下大堂入户,带来关怀备至的归家体验。

▲中骏·天宸 实景图
全明户型,空间通透,流线合理;动静分区,让家人相处更加和谐;宽阔落地窗,让室外风光成为室内的延伸,产生更加无限的空间效果;光照充足,流泻舒适生活意境。

▲中骏·天宸 248㎡户型图

▲中骏·天宸 150㎡户型图

▲中骏·天宸 实景图

▲中骏·天宸 实景图
地下车库的设计,墙面选择采用当下流行的清新色调,让整个车库显得清新明亮,舒适雅致。

▲中骏·天宸 实景图
首开·万科璞悦山
建筑设计:上海天华建筑设计
景观设计:深圳·道远设计
该项目从城市界面到售楼部后场,以“山”与“石”作为设计符号,缔造了人与自然共生的八大生活空间。同时,山石意向的融入,一定程度上也消解了景观延期介入而与场地造成的隔阂,使空间风格意向升华,最终完美呈现了项目的预期效果。

▲首开·万科璞悦山 实景图

▲首开·万科璞悦山 实景图
首开·万科璞悦山,遍寻城市与自然,希望用一座都市桃源,实现回归院落生活的居住理想。

▲首开·万科璞悦山 实景图

▲首开·万科璞悦山 实景图
在喧杂中,于忙碌里,去白墙黛瓦的留白之中,归于诗意生活。

▲首开·万科璞悦山 实景图
璞悦山用现代手法与传统相碰撞,将东方韵味融入现代生活,粉墙黛瓦,翼角起翘,延续闽南传统建筑色彩,融入地域特色,打造符合厦门人心中的院墅生活。

▲首开·万科璞悦山 实景图
中国园林向来讲究天人合一修为深厚的园艺师会把技艺、学识与感悟融入到园林营造中。

▲首开·万科璞悦山 实景图

▲首开·万科璞悦山 实景图
在璞悦山先后建成配有真人CS等丰富体验区的约60亩山体休闲区(代建)和集健身、瑜伽、桑拿、麻将、德州扑克、飞镖、乒乓球、桌球等于一体的悦动生活馆。

▲首开·万科璞悦山 实景图
厦门罕见的“新中式温泉院墅”,天然源脉温泉私家入户。

▲首开·万科璞悦山 创造展示空间实景图

▲首开·万科璞悦山 创造展示空间实景图
首开龙湖·璟宸府
设计公司:汇张思建筑设计咨询;广州山水比德
首开龙湖·璟宸府作为集大成之作,在产品设计上实现了极大的飞跃。超低容积率,社区客群高端纯粹,打造厦门绝版纯复式社区。

▲首开龙湖·璟宸府 鸟瞰图
首开龙湖·璟宸府秉承龙湖园林造诣,以三苑三廊八景,盛载墅居图景,师法圆明园,造三苑纳山藏水;

▲首开龙湖·璟宸府 实景图

▲首开龙湖·璟宸府 实景图
取苏州园林造园手法,匠造归宇三廊,营造璟宸八景,打造出艺术与舒适兼具的大美生活空间。

▲首开龙湖·璟宸府 实景图

▲首开龙湖·璟宸府 实景图
高级殿阁三段式结构,部分精选干挂石材外立面,利用耐腐蚀的螺栓与柔性连接件,将天然石材直接挂在建筑结构的外表面,淋漓尽致地体现高贵、奢华之感,让建筑历久弥新。

▲首开龙湖·璟宸府 实景图
采用中空LOW-E玻璃,通过对中远红外线的高反射,调节室温冬暖夏凉;同时具备隔音降噪的效果,可将室外噪音降低约27-53分贝。

▲首开龙湖·璟宸府 实景图

▲首开龙湖·璟宸府 实景图
奢配室内泳池、超大空间健身会所,打造高品质的层峰生活体验。

▲首开龙湖·璟宸府 会所
双精装入户大堂:以近300则标准设计入户、车库双精装大堂,约6米深挑空。

▲首开龙湖·璟宸府 效果图
在户型产品上,项目规划打造建筑面积约90-120㎡墅区大复式和建筑面积约102-150㎡花园极致墅两大业态,以卓越的居住品质,重塑高端人居想象。

▲首开龙湖·璟宸府 93㎡户型图

▲首开龙湖·璟宸府 120㎡户型图

▲首开龙湖·璟宸府 样板间
建发•缦玥长滩
设计公司:盘石设计
建发·缦玥长滩是由建发房产与招商蛇口强强联袂,打造的海沧2021HP03地块,包含约13万方花园城商业综合体。除了商业航母配置外,还拥有最高能级的配套规划。外部坐拥三大公园、双十系名校,湾、海、岛、城、园五大资源,造就TOD新城及其罕见的优越环境和顶尖配套。

▲建发•缦玥长滩 效果图
三段式现代立面,匹配湾区的人居高度:结合湾区的建筑规划风格,取法世界著名建筑精髓,打造三段式现代立面,尽显湾区建筑的优雅秩序,勾勒优雅天际线。

▲建发•缦玥长滩 效果图

▲建发•缦玥长滩 效果图

▲建发•缦玥长滩 效果图

▲建发•缦玥长滩 效果图
大面积全景落地窗运用,让南向客厅呈现近乎无墙式天幕级视野。材料甄选双层中空玻璃,洋房南向玻璃面宽度近3倍于墙体宽度,完美呈现湾区之上的城市会客厅。

▲建发•缦玥长滩 效果图
项目的架空层,孩子们既可以在这里玩耍,也可以和伙伴一起学习、做手工,以此达到寓教于乐的目的;家长们既可健身锻炼身体,又可坐着聊天喝茶下棋,陶冶情操。

▲建发•缦玥长滩 架空层
客厅配置巨幕落地观景窗,私享无界视野。

▲建发•缦玥长滩 89㎡户型图
四房设计给予居住者尊崇仪式感,有孩子的成长天地,有父母的私密空间,也有老人的颐养居所。

▲建发•缦玥长滩 142㎡户型图

▲建发•缦玥长滩 样板间

▲建发•缦玥长滩 样板间
厦门建发缦玥长滩营销中心由盘石设计倾力筑造,寄情于叠绕的翠微、灵秀的山水小境,再现悠然世外的桃花源。

▲建发•缦玥长滩 实景图

▲建发•缦玥长滩 实景图

▲建发•缦玥长滩 实景图
世茂•国风长安
世茂承袭千载建筑文化内涵进行提取与再创造,继承大量闽南古厝元素,植入吉祥寓意符号,重塑一席国风长安。

▲世茂·国风长安 实景图
在聚变城市的中心之上,世茂国风长安以承袭千古造园精粹,打造近万方中式园林,内延续盛唐国风中式景观内核“起、承、转、合”,营造移步异景诗意园景;“国风六大体系”贯穿园林景观, 三进门仪归家礼序,萃取东方之韵,成就闽南人文传承。

▲世茂·国风长安 实景图

▲世茂·国风长安 实景图
整个建筑外观也是采用目前非常高端大气的中式盛唐国风来打造,以轻盈的铝板作为挑檐,立面格局稳重大气,又显得灵动飘逸,配以格栅,步步锦、回字纹、万字纹,不仅代表着美好的寓意而且还能使建筑整体传达出唐朝文化的底蕴。

▲世茂·国风长安 实景图
社区拥有约 1500 ㎡的中庭花园。整个中庭三环相扣,步步有景一步一景,一树一世界并且融入人性化的六大全龄设计。

▲世茂·国风长安 实景图
项目注重横向面宽、全屋整体采光面及人居生活秩序感的变化,匠造区域难得宽境复式:约5.1m大横厅,足以装下聚会待客的欢声笑语;约23㎡套房式主卧,体现主人尊贵。

▲世茂·国风长安 样板间

▲世茂·国风长安 样板间

▲世茂·国风长安 户型图
建发•叁里云庐
建发·叁里云庐,集禅境之大成,使用传统的造园手法、运用中国传统韵味的色彩、提取中国传统的图案符号等,将东方美学与禅意栖居相结合,营造一个出则繁花尽揽,入则静谧私享的栖居之所。

▲建发•叁里云庐 实景图

▲建发•叁里云庐 实景图
项目规划南北双轴园林,南轴打造景观会客空间;北轴营造五大活力空间。

▲建发•叁里云庐 洋房效果图
项目迭代建筑风格,开创性运用大面积落地玻璃等现代建筑元素,让建筑立面更富层次,成为屹立时代前沿的建筑艺术品。

▲建发•叁里云庐 高层效果图
兼具现代元素,项目又很尊重地方资源和人文资源,体现了闽南地域特色和文化,使人们在情感上得到一种认同和归属。

▲建发•叁里云庐 高层效果图
大门的设计保留了传统的材质和色彩,可以很强烈地感受历史痕迹与浑厚的文化底蕴,同时又摒弃了过于复杂的机理和装饰,简化了线条。

▲建发•叁里云庐 高层效果图
厅卧一体大阳台配超大落地窗,休闲生活,兼得体面;大尺度落观景窗,公园盛景私享。

▲建发•叁里云庐 115㎡洋房户型图

▲建发•叁里云庐 115㎡样板间
中海·环东时代
厦门中海·环东时代落位3000亿固投的环东海域新城核芯区,帷幄高量级城市配套,地理位置优势突出。打造80-130㎡城芯阔宅,倾情呈现最纯粹的高端国际化中央住区生活。

▲中海·环东时代 效果图
迭新市场V型楼栋设计,杜绝中间户,实现户户边套,所有户型三边对外,均能实现通风对流。

▲中海·环东时代 效果图
运用空间“大面积玻璃+定制金属线脚”的细节元素搭配,尽呈界面连续、节奏明快的立面形象,打造封面级“IMAX天幕”。朝南1:1超高窗墙比,畅揽更多的阳光与清风。

▲中海·环东时代 效果图
中海·环东时代完好地保留了社区内外两棵近百年榕树,并以其为主体进行景观打造,彰显央企中海的诚意与匠心。

▲中海·环东时代 实景图
以社区内具有时代记忆的百年榕树为核心记忆点串联空间,构建社区归家、安心、社交三大体系,打造九维园林,户内户外与自然共生共融,最终完美呈现了“与自然共鸣,与城市共生”的成长共享型社区空间。

▲园林效果图
环东时代的示范区,以顶尖精工品质,实景呈现归家大堂-精装阳光花园地库-实景精装样板房的归家全流线、全要素展示。展示区即大区,所见即所得!

▲中海·环东时代 效果图
地库与社区“百年榕树”下沉庭院广场相融合,设置5处采光天井,超前BIM设计,实现约 2.4-2.6m 净高,可以高出国家规范约 20-40cm,五星级入户大堂,带来尊贵的归家仪式感。

▲中海·环东时代 效果图

▲中海·环东时代 实景图

▲中海·环东时代 实景图
环东时代的129㎡四室两厅两卫,超12m的南向开间带来无与伦比的采光面,同时具备约5.9m的IMAX观影级宽厅和超20㎡的舒朗主卧套房。

▲中海·环东时代 129㎡四室两厅两卫户型图

▲中海·环东时代 129㎡四室两厅两卫实景图
环东时代的111㎡的极致3+1房,超12m的南向开间带来无与伦比的采光面,同时具备约6.2m的IMAX观影级宽厅和餐客厅LDK,一体化格局。

▲中海·环东时代 111㎡四室两厅两卫户型图

▲中海·环东时代 111㎡四室两厅两卫实景图
【楼盘考察活动时间】
2022年7月28日 、7月29日两天
温馨提示:
本次考察活动名额有限,满员即止
感兴趣的朋友请及时联系报名。
另外可免费参加
《全球建筑大师论坛》
《第二十二届中国厦门国际石材展览会》
【活动报名】
■活动组织:
主办方:搜建筑 & 经典人居
■报名+咨询 联系如下
1.扫描二维码 加好友咨询

咨询微信:soujianzhu03

咨询微信:soujianzhu002
2、联系电话:18132657351(微信同号)
2022年·新产品方向
《 品牌地产 | 精品楼盘活动 》
杭州、苏州、上海
成都、郑州......
广州、福州、重庆
西安、青岛......
扫描二维码 加好友咨询
领队微信:soujianzhu008
本资料声明:
1、本文资料为要约邀请,不视为要约,所有政府、政策信息均来源于官方披露信息,具体以实物、政府主管部门批准文件及买卖双方签订的商品房买卖合同约定为准。如有变化恕不另行通知。
2.因编辑需要,文字和图片无必然联系,仅供读者参考;
推荐一个
专业的地产+建筑平台
每天都有新内容
扫描二维码关注

微信公众号“搜建筑”(ID:jz9999)
合作、宣传、投稿
联系微信:soujianzhu006




