Scheunenviertel是柏林米特Spandauer Vorstadt区的一部分,是一个时尚街区,受到国际时尚界、手机、电子和IT公司以及创意创业公司的欢迎,并以其多样化的餐馆和文化产品而闻名。
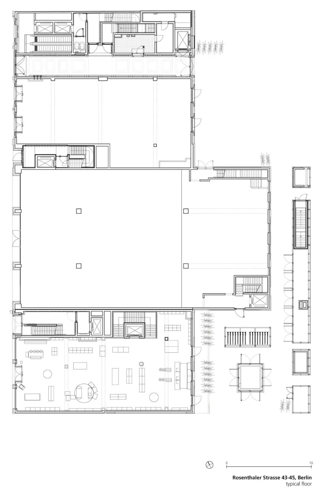
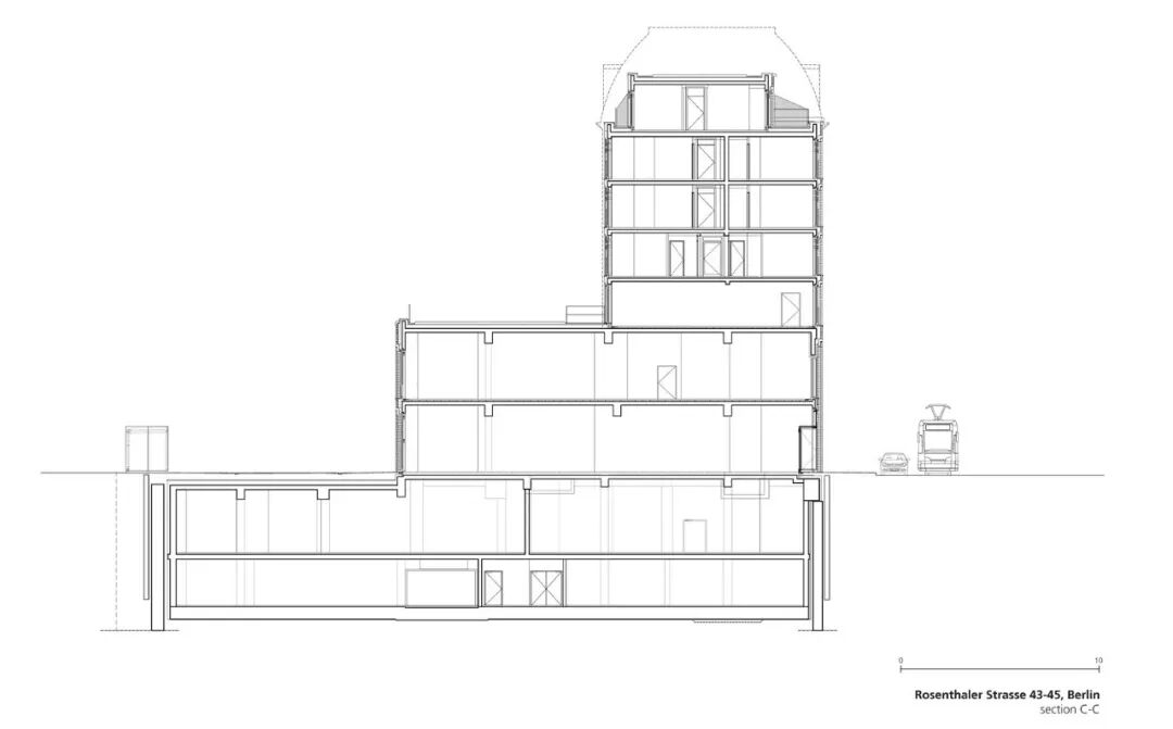
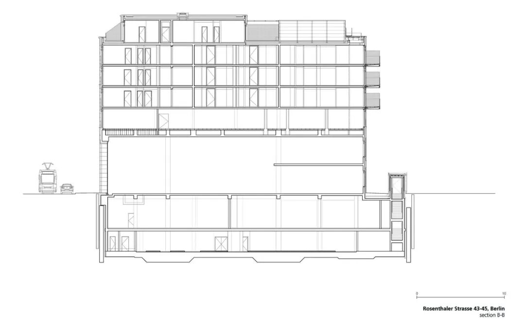
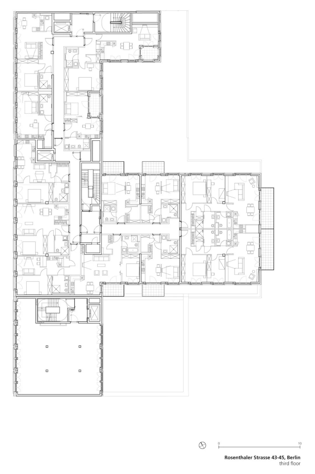
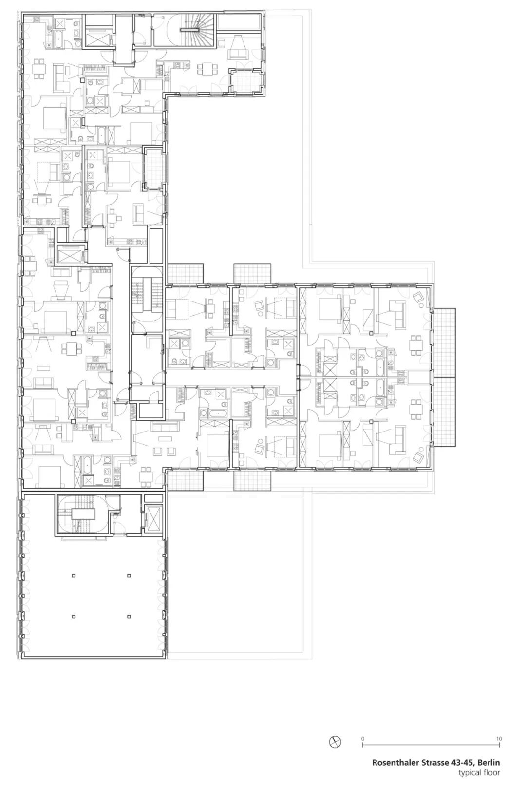
在罗森塔尔大街(Rosenthaler Strasse)43-45号,正对着哈克舍宫(Hackesche Höfe)的新艺术风格建筑群,一座由三部分组成的现代化新建筑已经建成,采用了钢筋混凝土结构。它有地上七层,地下两层,总建筑面积为15,000平方米。它继承并补充了周围居民区的住宅、商业和办公功能的组合。这三座建筑不同的、细致的立面是对建筑场地的历史分割的直接参考。
The Scheunenviertel, part of the Spandauer Vorstadt district in Berlin-Mitte, is a trendy neighbourhood which is popular with the international fashion industry, mobile phone, electronics and IT companies, and creative start-ups and is known for its diverse range of restaurants and cultural offerings. At Rosenthaler Strasse 43-45, directly opposite the Art Nouveau ensemble of the Hackesche Höfe, a modern, three-part, new building has been erected using reinforced-concrete construction. It has seven storeys above ground, two basement levels, and a gross floor area of 15,000 sqm. It picks up on and complements the surrounding neighbourhood's mix of residential, commercial, and office functions. The varied, detailed façades of the three buildings are a direct reference to the historical parcelling of the building site.
在内部44个苹果大卖场在2021年12月开业。这三栋楼的地下室和底层都有宽敞的零售空间。44号和45号房屋的商业单元上方是办公室和40至100平方米的一到三室公寓。另一方面,43号房屋则完全是办公室和商业空间。
In house 44 an Apple megastore opened in December 2021. Each of the three buildings has generous retail spaces in its basement and on its ground floor. Above the commercial units in houses 44 and 45 are offices and one- to three-room apartments of between 40 and 100 sqm. House 43, on the other hand, is entirely given over to offices and commercial spaces.
六楼的后置层有屋顶露台,由无框玻璃元素相互隔开。两个庭院侧的屋顶露台还设有绿色凉棚。
The set-back storey on the sixth floor has roof terraces that are separated from one other by frameless glass elements. The two courtyard-side roof terraces also feature green pergolas.
它们不同的街道立面给这个建筑群的三个建筑单元带来了不同的和不相干的建筑作品的外观。另一方面,它们在建筑上与相邻建筑的新旧立面相融合,其精心的设计和高质量的材料使整个街区具有全新的质量和活力。
Their different street façades give the ensemble’s three building units the appearance of distinct and disconnected works of architecture. On the other hand, they blend in architecturally with the old and new façades of the adjacent buildings, and their elaborate design and high-quality materials give the entire block a completely new quality and dynamism.
例如,43号房屋的垂直立面采用了灰色的Kohlplatter贝壳石灰石。Kohlplatter是一种来自巴登-符腾堡州Kirchheim附近的天然石材,具有独特的锈棕色大理石纹路。这个立面由支架和半圆形壁柱条衔接起来。从二楼开始,落地窗上安装了棕色的粉末涂层钢条栏杆。44号房屋的外墙是由来自葡萄牙的浅色水平带状天然石材制成的,也是垂直结构的,但这次只使用了支撑物。
House 43, for example, has a vertically oriented façade of grey Kohlplatter shell limestone. A natural stone from near Kirchheim in Baden-Wuerttemberg, Kohlplatter has distinctive rust-brown marbling. This façade is articulated by supports and semicircular pilaster strips. The floor-to-ceiling windows are fitted with brown, powder-coated steel-bar railings from the second floor upwards. The façade of house 44 is of light-coloured, horizontally banded natural stone from Portugal, also vertically structured, but this time using supports alone.
这些窗户和45号房屋的窗户一样,都有玻璃护栏。45号房屋由于其浅色熟料砖的外墙而从其他两座建筑中脱颖而出。同时,它也暗示了相邻的历史建筑Rote Apotheke(一家药店)的立面设计。窗户上方的浅色建筑混凝土门楣是另一个衔接元素。
The windows, like the windows of house 45, have glass parapets. House 45 stands out from the other two buildings thanks to its façade of light-coloured clinker brick. At the same time, it alludes to the façade design of the adjacent listed historical building, the Rote Apotheke (a pharmacy). An additional articulating element is lintels of light-coloured architectural concrete above the windows.
院子的外墙更加低调,与柏林的建筑传统保持一致,但同时也是高质量的设计。它们有一个复合保温系统,上面覆盖着一层细粒度的石膏。底层和二层的庭院立面与街道立面一样,43号的立面采用天然石材,45号的立面采用面砖;44号的立面采用高品质的石膏托架区。从二楼开始,所有的建筑都有毛毡石膏挡板作为窗框。
The courtyard façades are more discreet, in keeping with the Berlin building tradition, but at the same time of high-quality design. They have a composite thermal insulation system overlaid with a layer of fine-grained plaster. The ground floor and second floor of the courtyard façades are, like the street façades, clad with natural stone in the case of number 43 and facing brick in the case of number 45; number 44 has a plaster socle zone with high-quality profiling. From the second floor upwards, all buildings have felted plaster flaps as window frames.
为了吸收雨水并为各种昆虫和鸟类提供栖息地,所有的屋顶,包括废物区,都进行了绿化。已经安装了一个蓄水池,以重复利用雨水。
To absorb rainwater and provide a habitat for a wide variety of insects and birds, all roofs, including waste areas, are greened. A cistern has been installed to reuse rainwater.
景观内院有一个200平方米的儿童游乐场和许多自行车停车位。停车位和技术区被一个由科腾钢板组成的隐私屏风隔开。这些屏风有一个由TCHOBAN VOSS Architekten专门开发的冲孔图案。
The landscaped inner courtyard has a 200-sqm children's playground and numerous parking spaces for bicycles. Parking spaces and technical areas are separated by a privacy screen of Corten steel panels. These have a punched pattern developed specially by TCHOBAN VOSS Architekten.
建筑师:Tchoban Voss Architects
本资料声明:
1.本文为建筑设计技术分析,仅供欣赏学习。
2.本资料为要约邀请,不视为要约,所有政府、政策信息均来源于官方披露信息,具体以实物、政府主管部门批准文件及买卖双方签订的商品房买卖合同约定为准。如有变化恕不另行通知。
3.因编辑需要,文字和图片无必然联系,仅供读者参考;
合作、宣传、投稿
联系微信:soujianzhu006

推荐专业
地产建筑平台
每天都有新内容
扫描二维码关注

微信公众号“搜建筑”(ID:sjz9999)