Malmö体校位于Malmö体育场区。这是一所体育学校,有540名7-9年级的学生。它提供与学校课程相结合的12种不同的运动项目。这是市政府和Malmö上一些领先的体育俱乐部的合作,它使学生们能够专注于他们选择的运动和他们的学业。这似乎是一个很好的安排,学校在Malmö排名第一,吸引了来自全市以及其他地区和城镇的不同背景的学生。
Malmö Sports School is situated in the stadium area in Malmö. It is a school with a sports profile, home to 540 pupils, grades 7-9. It offers 12 different sports integrated with the school’s curriculum. It is a collaboration between the city and some of the leading sports clubs in Malmö and it enables the pupils to focus on their sport of choice as well as their academic work. This seems to be an excellent arrangement and the school is ranked as number one in Malmö and attracts pupils from different backgrounds from all over the city as well as other areas and towns outside the municipality.
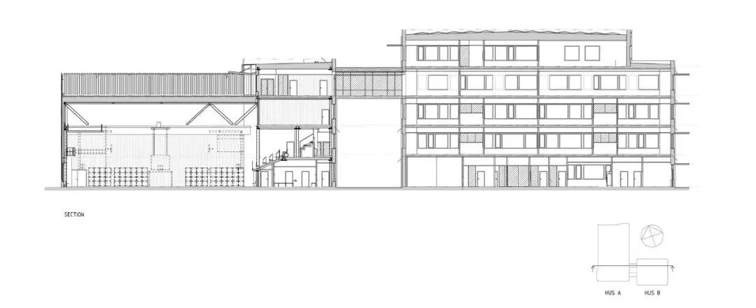
与教学楼融为一体的是一个可容纳500名观众的体育馆和一个攀岩馆,在幕墙后面有一个14米高的攀岩墙。这创造了一个从外部向北立面的壮观景色。
Integrated with the school building is a gymnasium with seats for 500 spectators and a climbing hall with a 14 meters high climbing wall displayed behind a curtain wall. This creates a spectacular view from the outside toward the north façade.
该项目面临的挑战是在一个相对较小的场地上创建一个可以容纳540名学生的学校。这还包括满足行人和自行车道的要求,消防车可以直接通过地块,以及保护许多现有的树木,地下设施的限制,以及对一个有凝聚力的校园的要求。
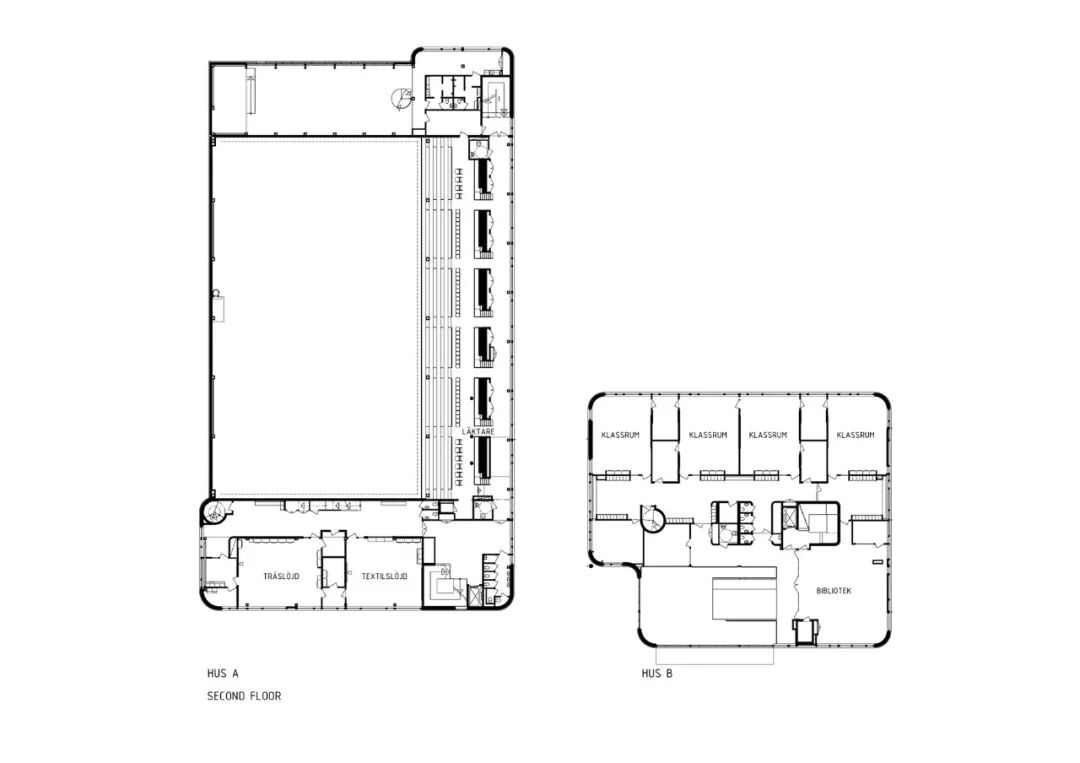
这导致了一所五层楼的学校被分成两座建筑,以便行人和自行车道可以穿过该地块。这两座建筑在第三和第四层用玻璃桥连接。学校的部分操场被放置在第四层的体育馆屋顶上。
The challenges of the project were to create a school for 540 pupils on a relatively small site. This also included meeting the requirements for a pedestrian and bicycle path with access for fire trucks going straight through the plot, as well as conservation of many existing trees, restrictions due to underground installations, and requirements for a cohesive schoolyard. This resulted in a school in five stories divided into two buildings so that the pedestrian and bicycle path could run through the site. The two buildings are connected on the third and fourth levels with glass bridges. Part of the schoolyard is placed on the roof of the gymnasium on level four.
学校位于体育场区,以60年代标志性的白色混凝土体育建筑而闻名。新建筑的设计是基于它的住宅活动,以及该地区和现有的周围建筑。学校的建筑散发着活力和活力,同时给人一种友好的印象。建筑采用白色混凝土立面和圆角设计,与历史联系在一起,同时有助于开发该地区的独特性。
The school is located in the Stadium Area famous for its iconic white concrete sports buildings from the 60s. The design of the new building is based on the activities it is housing as well as the area and existing surrounding buildings. The architecture of the school radiates energy and activity and at the same time, it gives a friendly impression. The building is designed with white concreate facades and round corners which links to the history and simultaneously contributes to developing the uniqueness of the area.
窗户和遮阳板像跑道一样一直环绕着建筑。暖色调的元素显示出这是一个适合儿童和青少年的活动场所。该建筑的设计也是为了改善缺乏住宅楼的地区的安全。新的学校和体育建筑没有封闭的外墙,这使它与周围的环境相互影响。即使在较暗的时间里,窗户也能照亮这个地区,显示出它的活动。
The windows and sunscreens are running all the way around the building like running tracks. Elements of warm accent colors show that it is an active place for children and teens. The building is also designed to improve the safety in areas that is lacking residential buildings. The new school and sports building have no closed facades which makes it interact with its surroundings. The windows light up the area even during the darker hours, displaying the activities it houses.
本资料声明:
1.本文为建筑设计技术分析,仅供欣赏学习。
2.本资料为要约邀请,不视为要约,所有政府、政策信息均来源于官方披露信息,具体以实物、政府主管部门批准文件及买卖双方签订的商品房买卖合同约定为准。如有变化恕不另行通知。
3.因编辑需要,文字和图片无必然联系,仅供读者参考;
合作、宣传、投稿
联系微信:soujianzhu006

推荐一个
专业的地产+建筑平台
每天都有新内容
扫描二维码关注

微信公众号“搜建筑”(ID:sjz9999)