▲ 更多精品,关注“搜建筑”
做有灵魂的商业设计
运营思维对商业设计的重要性
UA尤安设计
关键词
资源不确定性、销售逻辑先导、限制运营发展
板块快速升级
能级更大的理想定位
现实条件制约
散售商铺开发策略
项目面临现状
地块资源升级提出全新需求
Design · Tips
在项目初期就准确把握未来的运营方式,对于前期设计有重要的指导作用,正大缤纷城由于开发时间早,可引入资源还处于初步开发阶段,采用风险低的策划策略,而未能与高速发展的板块条件相匹配,进而出现如今不甚理想的运营现状,难免令人遗憾。
关键词
精准把握诉求、公园超级主力店、开放空间可能
诉求决定定位
联结居民的社区配套
定位决定规划
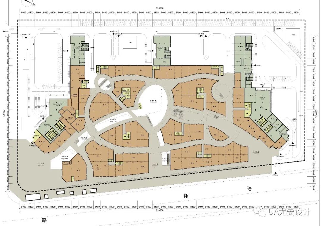
中心公园“超级主力店”
规划盘活空间
提升社区的场景活力
Design · Tips
作为与正大缤纷城同一设计团队所打造的精彩天地,是基于板块运营阶段成熟,充分运用后续运营定位逻辑指导商业设计的典型案例,设计团队充分考虑到了社区商业的需要与居民使用诉求,以公园为主力店项目切入突破点,最终为浦兴居住地块打开了人与空间积极的交往互动。
本资料声明:
1.本文为建筑设计技术分析,仅供欣赏学习。
2.本资料为要约邀请,不视为要约,所有政府、政策信息均来源于官方披露信息,具体以实物、政府主管部门批准文件及买卖双方签订的商品房买卖合同约定为准。如有变化恕不另行通知。
3.因编辑需要,文字和图片无必然联系,仅供读者参考;
推荐一个
专业的地产+建筑平台
每天都有新内容
扫描二维码关注

微信公众号“搜建筑”(ID:sjz9999)
合作、宣传、投稿
联系微信:soujianzhu006


