▲ 更多精品,关注“搜建筑”
我们为什么追求多开间、大面宽?
五开间大面宽优势:
• 宽且薄;
• 布局与设计更加多元化,满足每个家庭成员需求;
• 空间大气,能满足有孩子、与父母同住的需求;
• 扁平户型通风性更好,景观视野俱佳;
• 采光面大而进深小,室内阳光充沛,不会形成暗厅。
.....
今天,搜建筑在全国各大楼盘、几百个户型中,千挑万选了一批惊艳的五开间户型,都是大面宽、短进深、视野开阔的网红产品,总结其特点,希望对大家有所启发。
01
增大开间、面宽扩大视野

正荣紫阙洋房约196㎡户型
天津正荣紫阙洋房约196㎡的四居户型,整体南向面宽达到了约18.25米,进深约9.3米,面宽进深比约1.96:1。三个卧室朝南,8.8米超级大横厅+4.55米开间餐厅,面积高达50㎡,

杭州雅棠轩约139㎡户型
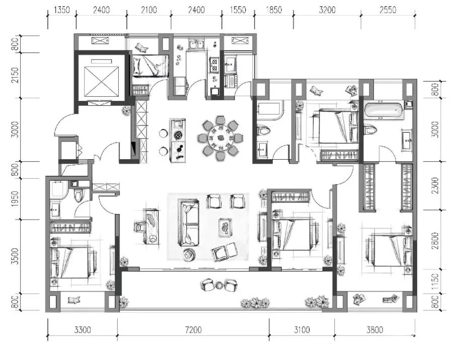
常州碧桂园都市森林143㎡面积在做了四房两卫的同时,还能做到五开间朝南,南向面宽超15米、“3卧+客房书房大横厅”设计,客房书房横厅的面宽达整整5.8米,约8.7米超大阳台,这是一个真正意义上的超大面宽的阳台。

常州碧桂园都市森林143㎡户型
常州碧桂园都市森林143㎡样板房实景
保利大都会173平米这种仪式感,从踏进门的那一刻开始,就已开启。

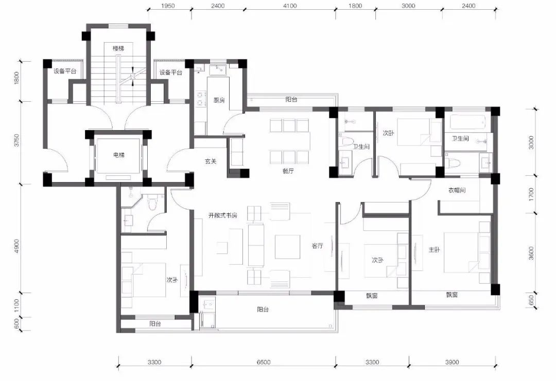
中旅·名门府建筑面积约169㎡户型,约18.7米大面宽,主卧+次卧+客厅+餐厅+客房以独栋尺度造高层。

中旅·名门府建筑面积约169㎡户型
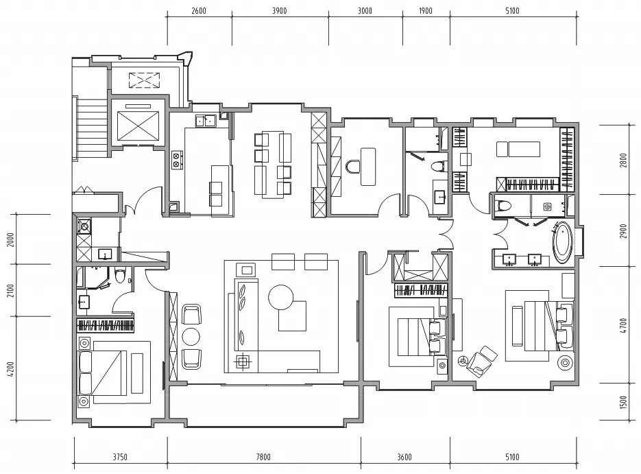
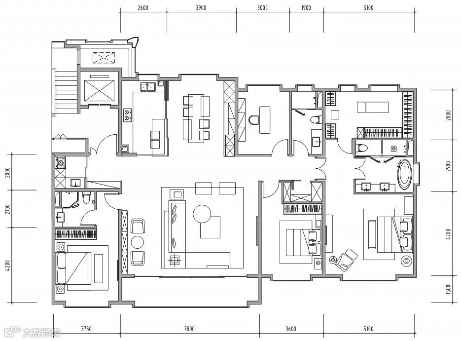
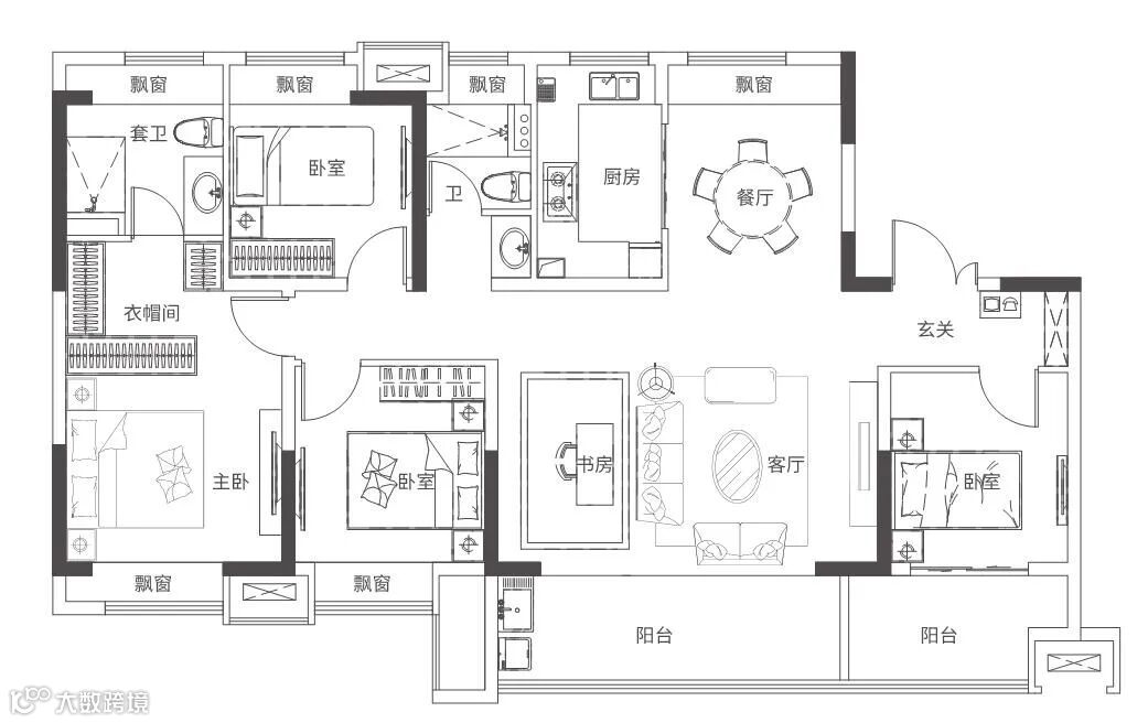
天津融创梅江壹号院252㎡户型整体面宽约20.25m,除了别墅,真的很难找到,甚至很多别墅都达不到20米的面宽,进深做到10.4-11.9m,采光条件真的非常优越。

天津融创梅江壹号院252㎡

客厅实景图
02
五开间未来发展趋势
1、细节创新
① 独立入户,提升改善私密性
天空之城的168㎡洋房户型也是五开间南格局。独立玄关+独立电梯厅设计,超大独立玄关厅,实现入户电梯与家的自然过渡,尊重户内的私密性与隐蔽性。

杭州天空之城168㎡洋房户型图
它还是一个超级宽薄户型,总体南向总面宽达17米;大横厅宽6.5米,主卧3.9米,次卧3.3米,餐厅位置和尺度非常舒服,宽4.1米。
东原·印未央约168 m²户型是独立电梯入户,内外双玄关,约7m面宽的巨大方厅,整体18米南向面宽,全面向湖打开宽平的IMAX视野。

② 独立家政
重庆·融创壹号院推出了约139㎡的户型,套内能达到约117㎡,北侧观景阳台作为独立家政间,次卫做到了干湿分离。
4室、总面宽约17米,5开间、约7米的横厅。约85%的得房率,主卧圆弧形的玻璃,一落到底的玻璃窗,意境拓达。

香港置地·衿湖翠林约139㎡的户型,厨房连接独立家政间,带储物间,总面宽16.3米,大横厅约7米。

香港置地·衿湖翠林139㎡户型
中骏·天荟约166㎡户型,五开间朝南,约7米大横厅设计,厨房旁边多了一个独立的家政空间。

中骏·天荟166㎡户型

重庆阳光城未来悦建面133㎡户型

晓风印月套内155㎡户型
③ 独立家政+中西厨
仁恒公园世纪210平方米的4室2厅3卫和245平方米的“4+1”室2厅3卫这两款户型均设计了独立的家政间和中西双厨,西厨自带L型岛台。

210平户型
210平户型,整体开间达到18.4米,进深扣除阳台只有10.5米。横厅开间达到7.8米,双套房设计。

245平的“4+1”户型,整体开间超过了20米,进深11.3米。横厅开间达到8.1米,双套房设计。
④ 新增独立消杀
融创梅江壹号院整体面宽,达到了惊人的约20.25米!除了超大面宽的客厅和主卧、独立次卧套房等等尺度上的阔绰以外,还有很多细节非常人性化。

建筑面积约252㎡洋房户型图
后疫情时代,很多户型设计在玄关处设计了入户先洗手、消毒的空间,该户型独立玄关入户后,旁边设置了一个家政间。带上下水,里面可以放置洗衣机、烘干机,更能安装洗手盆。还设计了独立储藏间,方便收纳家中各类换季大件物品。
2、客厅进化,增加可变空间
比如国兴西江樾户型建筑面积约135㎡户型,横厅中的开放式书房在实际使用过程中也有许多可变性,一开始它可以是小茶室或书房,是全家人的休闲区和交流区,在家庭成员增多之后,这里就可以开辟为孩子的玩耍、成长的空间。关注经典人居

国兴西江樾户型建筑面积约135㎡户型
旭辉敔山公元项目165平四房户型,整体非常方正,有三个房间朝南,客厅面宽约6.6米,能放下环形沙发,阳台约9.2米,休闲空间足够大。


客厅示意图
西安正荣·紫阙台178㎡层高3.15m,南北通透,宽敞明朗,客餐厅书房一体,搭配9.4m双阳台设计,宽厅可改造为五房。主卧4.2m面宽套房设计,自带独立卫浴,四房三卫,四开间朝南设计,满足三代同堂家庭所需。

西安正荣·紫阙台178㎡

178㎡户型客厅 餐厅
首创天阅嘉陵这个建筑面积约188㎡的户型整户有约17m采光面宽,多功能厅设计,生活更加丰富多彩。长约10m,面积约18㎡的景观阳台,全明采光,实在是太诱人了。

建筑面积约188㎡大平层户型平面 示意图

建筑面积约188㎡大平层样板间 实景图

图源:北京葛洲坝

竟然能做到约15.5米的面宽,独立电梯厅+独立玄关,餐厅开间竟有约3.3米,配合深“U”厨房,可配置中西厨。客厅开间约6米,且自带阳台,休闲社交功能更加复合。
维科·水岸春晖洋房156平做到了双套房。5开间朝南+大横厅+多房多卫,完全可以把180平以上的豪宅比下去。

洋房156平户型图
同样杭州棠玥湾洋房神164㎡户型。所有卧室开间都很舒适,主卧套开间达3.9米,次卧套3.3米。南向总面宽达15.9米,阳台足足有8.7米长。

杭州棠玥湾164㎡洋房户型图
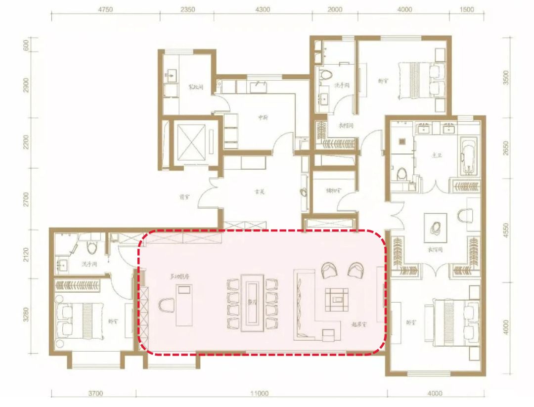
江南润园220平米的江景大平层,约20米的南向面宽,房间不仅是多,更是拥有三个带独立卫生间的大套房!同等面积,一般只能做到双套房。三段式布局的主卧,享有独立卫生间+步入式衣帽间的豪华配置。关注经典人居

江南润园220平米户型图
结语:
“大面宽”户型设计,代表着更多的采光、更好的通风、更佳的居住体验,是衡量品质住宅的重要标准。五开间户型,在空间设计上考虑得更加细致。但是户型设计应该在追求大面宽的同时,实现“面宽、观景、采光、通透”的均好性,以而赢得市场的认可。
延伸阅读:(点击标题查看)
本资料声明:
1.本文为建筑设计技术分析,仅供欣赏学习。
2.本资料为要约邀请,不视为要约,所有政府、政策信息均来源于官方披露信息,具体以实物、政府主管部门批准文件及买卖双方签订的商品房买卖合同约定为准。如有变化恕不另行通知。
3.因编辑需要,文字和图片无必然联系,仅供读者参考;


