▲ 更多精品,关注“搜建筑”
品牌地产 | 精品楼盘考察 | 成都
本次楼盘考察活动时间
8月25日 、8月26日两天
(周四、周五)

成都九大精品项目
万科·高线公园
绿城•桂语朝阳
新希望•天府锦麟壹品
融创•至和雅颂
绿城•凤起朝鸣
中海•浣云居
志达•港汇天地
锦江金茂府
首开金地 • 鹭鸣北湖
温馨提示:成都楼盘活动,以上项目中安排7-8个参观,部分项目根据现场情况可能会有调整。时间为8月25日-8月26日(周四、周五),满员即止,感兴趣的朋友请及时联系报名。
报名+咨询

咨询微信:soujianzhu03

咨询微信:soujianzhu002
2、联系电话:18132657351(微信同号)
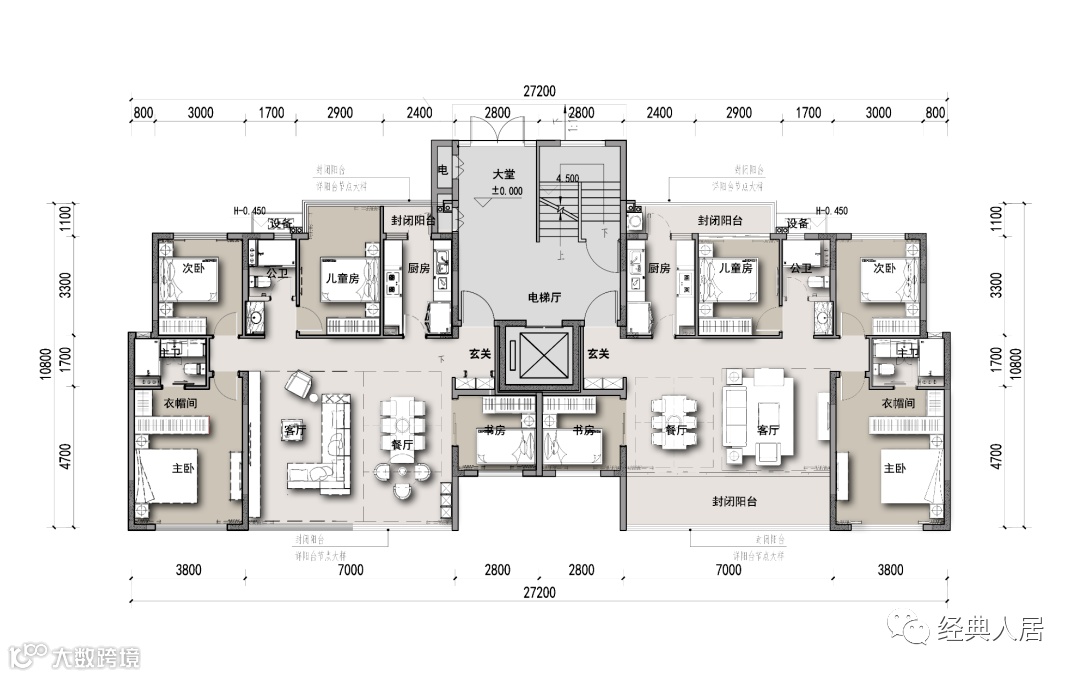
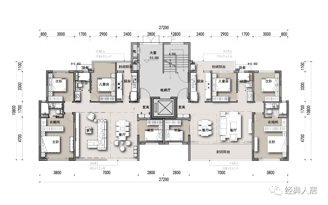
首开金地 • 鹭鸣北湖
建筑设计:成执设计 \ 景观设计:奥雅设计
本案占据北湖板块一线观湖核心位置,尽享自然无界与广袤的湖居视野,纯洋房社区采光及视野充裕,期望展现湖园相映,城湖和鸣的湖居大境。
▲首开金地 • 鹭鸣北湖 实景图
整个项目呈现大围合+内部阵列式布局,高低错落的排布方式保持了视线的通透,避免遮挡,使得大部分楼栋能获得较好的观湖视野。

▲首开金地 • 鹭鸣北湖 实景图
圆角挑檐,弧形线脚,律动感的屋顶组成丰富的造型,层间采用宽窄两条弧线线条交错有序,使立面更加灵动。入户大堂简约典雅,追求近人尺度的温暖和细腻感受。

▲首开金地 • 鹭鸣北湖 实景图

▲首开金地 • 鹭鸣北湖 实景图
精心打造的美学样板间简约不失典雅,活泼的亮色加以点缀,给人居家的温馨感。共享星湖森海,私享花墅八园,宅间景观亦经过精心设计,较为宽敞的开间下,大玻璃窗带来明亮的采光,同时能让住户尽享内部景观及北湖公园的一线湖景。

▲首开金地 • 鹭鸣北湖 户型图

▲首开金地 • 鹭鸣北湖 户型图

▲首开金地 • 鹭鸣北湖 样板间
设计希望把鹭鸣北湖示范区打造成一个“漂浮的艺居”,能给游人一种诗意栖居的享受,打造充满属地特色的建筑展示空间。因此提出了“舟泊烟渚”的设计概念,为了实现理想中的画面,如何体现整个建筑的虚无缥缈感是需要着重解决的关键点。
▲首开金地 • 鹭鸣北湖 示范区建筑手绘
▲首开金地 • 鹭鸣北湖 示范区实景图
建筑立面取意“舟泊烟渚”之“舟”,以玻璃幕墙与金属线条共同勾勒出建筑的整体形象,流线型的形体关系流畅舒展,展现了自由的后现代建筑风格,打造出一个极具未来、科技感的示范区。
建筑首层架空,利用深色仿石铝板装饰结构柱,弱化其存在,同时采用下小上大的倒锥形结构,让整个建筑呈现一种漂浮感、失重感,进而达到首层消隐的效果。

▲首开金地 • 鹭鸣北湖 示范区材料分析
二层主体空间以大面积超白玻璃和香槟金、香槟银铝板为主,打造一艘极具动感的“舟”。自上而下看,香槟金色格栅天花板丰富视觉效果,香槟银铝板与灯带勾勒出波浪般起伏的屋面。
▲首开金地 • 鹭鸣北湖 示范区材料分析
锦江金茂府
锦江金茂府占地约56.4亩,容积率1.5,规划了15栋6层板式洋房,项目采用阵列围合式布局。

▲锦江金茂府 区位图
锦江金茂府,成都的第二座“府系”作品,金茂没有简单的重复自己,其在建筑、户型、科技、智慧、景观、服务等方面进行6大升级。

▲锦江金茂府
项目在6层洋房形态上大胆创新,底跃通过花园及下沉庭院的设计,利用地势天然高差,实现了夹层的全采光,强化了墅居体验感。

▲锦江金茂府 实景图

▲锦江金茂府 实景图
锦江金茂府对立面细节和材质进行了升级,50%的窗墙比,搭配双玻三银玻璃,保障室内恒温的同时,赋予更多的阳光与风景。横向增加金属线条,立体感更强。

▲锦江金茂府 实景图
宅间景观以梯台式的绿化空间 + 景墙与乔木的搭配,增加了空间的趣味性,丰富空间体验感,讲解新一代森林景观故事。

▲锦江金茂府 实景图

▲锦江金茂府 实景图
大门形态取自蜿蜒曲折的府河水系,以模拟府河绕城穿梭的的形态,体现项目对锦江文化的致敬。

▲锦江金茂府 实景图
项目的跃层做了很强的产品创新,通过抬高首层和地面高差的办法,将夹层做到了地面以上,这就相当于“双首层设计”,即:夹层外露并与地面花园接平。
▼左右滑动查看更多
▲锦江金茂府 跃层户型图
一梯一户,环幕平墅,项目的客厅加上景观阳台,面宽可达15.15米,公区的功能空间已经不是LDK所能囊括。

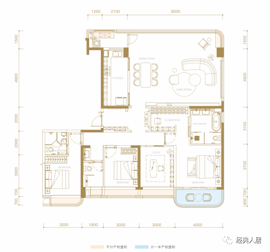
▲锦江金茂府 255㎡户型图
项目将更多空间留给动区,不仅丰富居家功能,更能将全场景社交需求植入其中,给业主带来精神享受。
▲锦江金茂府 样板间
志达•港汇天地
设计单位:基准方中
景观设计:成都黑白之间景观规划设计
面对人们更高层次需求,志达港汇天地项目将购物体验、极具冲击力的建筑空间体验和自然生态环境完美融合,打造一个综合生态型时尚潮流地,沉浸体验式商业新部落,科幻前卫极具冲击建筑空间,成为代表城南新生活的商业地标!










新希望•天府锦麟壹品
景观设计:上海亦构景观
新希望·天府锦麟壹品再产品打造上做出突破,在东二环寸土寸金的土地上,将大量土地还原生活,打造主城罕有的滨河极致景观大宅。

▲新希望·天府锦麟壹品 鸟瞰图
结合项目地形的自然高差,打造了173㎡起的纯端户、纯版式T2环幕大平层,以及以二叠拼、类独栋纯端呈现的叠拼。

▲新希望·天府锦麟壹品 高层效果图
产品摒弃了传统砖石外立面,采用Low-E玻璃里面、金属铝板的材质,未来将是极具观赏性的人居地标。

▲新希望·天府锦麟壹品 高层实景图
叠拼产品亲水、低密、超大采光面、占据绝佳城市视野。

▲新希望·天府锦麟壹品 叠拼实景图

▲新希望·天府锦麟壹品 叠拼实景图
约270°环幕视野,尽享头牌视野;约40㎡超尺度社交宽厅,餐客一体空间。

▲新希望·天府锦麟壹品 高层204㎡户型图
一体化客餐厅布局,高定生活排场;中西双厨设计,丰富生活的味道;主卧套房设计,尽显主人尊贵。

▲新希望·天府锦麟壹品 样板间
项目还打造出了约10000㎡“沉浸式森系景观”的颠覆式概念示范区,以“蝴蝶”为设计概念,由中间向两翼展开。

▲新希望·天府锦麟壹品 实景图

▲新希望·天府锦麟壹品 实景图
巧妙选取地面、墙面石材材质,有一种古朴的岁月感。

▲新希望·天府锦麟壹品 实景图

▲新希望·天府锦麟壹品 实景图
融创·至和雅颂
室内设计:赛拉维设计
在成都主城中环的融创至和雅颂通过对在地文化和山水自然的理解,以容积率约1.5的百亩大盘,在成都开始了一场主城低密墅院作品的迭新。

▲融创·至和雅颂 下叠实景图

▲融创·至和雅颂 效果图
定调风雅宋,再叙今朝雅。融创至和雅颂取意造极之世,打造成都首个完整溯源宋风的低密作品,精研宋词宋画,还原至纯至雅的宋式美学风貌。

▲融创·至和雅颂 示范区实景图
建筑立面上,至和雅颂提取宋代建筑“纤细、文雅、灵动”的特点,以现代设计手法,演绎东方美学。

园林营造上,至和雅颂循千年风雅,造一园如画,实现四时院子,四时林的沉浸式体验。

▲融创·至和雅颂 示范区实景图
室内空间,如岁月时光般复刻还原,宋代“明造”、至和红、歇山顶,塑造光影阵列、温润质朴,沉浸极简美学。整体空间设计手法简洁整合,浅色石材墙面结合木制窗格糅合呈现,搭配特色歇山顶,细节金属构件勾勒局部点缀,温润质朴。

在面积约207㎡-296㎡的叠拼产品中,下叠预留独立电梯井道,中上叠配置独立电梯,以及所有户型均配置舒享庭院,来打造多重入户体验。同时,每户均连接车库,兼备地上游园式归家与地下车库归家体系。

▲融创·至和雅颂 归家流线

▲融创·至和雅颂 上中下叠入户方式及庭院分布
至和雅颂两叠样板间在户型优化过程中以强化“三面宽的舒适型叠拼”户型优势为首要原则。

▲两叠-下叠 五室三厅六卫 | 约286-296㎡
负一层拥有空间感极强的挑空,结合天井采光的优势在这里布置了会客区,空间明亮,但避免了阳光的刺眼直射,夹层茶室则光线更需柔和才能传达出东方禅茶的精神。

▲负一层衣帽楼梯间实景图

▲负一层会客厅实景图
一层老人房顶部米白,辅墙面延续客餐厅米灰色墙布,床头背景墙以木饰面倒圆弧角对床品进行围合形成视觉中心,整体设计手法轻盈简练,重在营造舒适氛围。

客餐厅空间落位奢尺宽厅打造。空间共享并视线通畅,非常的宽敞舒适,清新爽朗,大尺度更宽敞。

▲客餐厅实景图
至和雅颂三叠样板间在设计过程中,以居住舒适,视觉美观为基本原则,充分利用三叠户型优势演绎现代轻奢时尚生活。

▲三叠-下叠 五室三厅四卫 | 约248-275㎡

▲客餐厅实景图

▲卧室实景图
万科•高线公园
建筑设计:HKS建筑设计/景观设计:致澜景观
项目作为片区优先革新打造的TOD项目,首发即由轨道城市、万科、美的三家重磅企业联袂打造,以重构时代和世界品位的国际高度立于市场并与成都共创世界TOD典范城市。

▲万科·高线公园 实景图

▲万科·高线公园 实景图
规划总建筑面积约50万方,综合容积率仅2.23(其中小高层地块2.5,叠墅地块仅为1-1.5)。在主城用地较为稀缺的背景下,大用地,低容积,已经给未来舒适的居住品质设定了良好的条件。

▲万科·高线公园 实景图
建筑外立面采用现代简约风格,浅白色+蓝灰色+暖咖色的国际流行色搭配,类玻璃幕墙体系,屋顶全泛光的夜景处理方式,使立面层次、色调、感官都是当代建筑的美学表达。

▲万科·高线公园 实景图
项目汲取度假式园林设计灵感,通过亭廊院的功能性节点与周围主题公园过渡相融,打造“归家即度假”的高级场域。

▲万科·高线公园 实景图

▲万科·高线公园 实景图

▲万科·高线公园 实景图
通过艺术感的风物、林荫下的光影,引发人们内心的愉悦感。

▲万科·高线公园 实景图

▲万科·高线公园 实景图
建面约47㎡宽阔客厅,预留西厨空间,满足当代社交的品质要求。

▲万科·高线公园 166㎡户型图

▲万科·高线公园 样板间
殿堂级大四房,建面约50㎡震撼公厅,建面约10米大面宽。

设置在旱喷广场上的“未来之风”雕塑,设计感十足,引人注目。

▲万科·高线公园 实景图
以不同的手法逐步地将TOD、餐厅、画廊、花艺、公园、展厅等成都的生活场景叠加,使得整个高线公园的游逛成为充满变化的城市叙事。

▲万科·高线公园 社区餐厅实景图
绿城•凤起朝鸣
建筑设计:绿城设计(GAD)
景观设计:苏州园林设计院、上海大器
3200年的金沙大地上,绿城·金沙凤起朝鸣作为西南战略级作品引入了绿城中国三大产品序列——中式合院、城市叠墅、超扁平美学大宅,以历史美学与当代美学的碰撞,契合成都传统与现代交织的城市气质,雕琢出一种新生的极致之美。

▲绿城•凤起朝鸣 鸟瞰图
[凤起]为苏风杭韵,礼献成都的10个江南院子(建面约460-655㎡),基于对传统中式建筑和东方居住美学的理解,展现江南街巷生活之美,中国建筑之韵。

▲绿城•凤起朝鸣 合院实景图

▲绿城•凤起朝鸣 合院实景图
[朝鸣]为绿城中国原创级城市叠墅(建面约220-400㎡),超现代主义建筑风格,主张流动空间的新概念,如翅膀的羽毛一般浮动在空中,致敬现代简约主义审美志趣。

▲绿城•凤起朝鸣 叠墅实景图

▲绿城•凤起朝鸣 叠墅实景图
[月映]为超扁平美学城市大宅(建面约165-300㎡),源自日本艺术大师村上隆SuperFlat的设计理念。强调横向面宽,扁平的楼层线,细腻的材质对比和光影变化,引领当代建筑美学新的高度。

▲绿城•凤起朝鸣 高层实景图

▲绿城•凤起朝鸣 高层实景图
纯粹苏风杭韵的中式园林,打造“四感九锦十八韵” 园林景观体系,带来原汁原味的江南士大夫生活感受。

▲绿城•凤起朝鸣 实景图
四感:是指荟客厅、高层、叠拼、合院区四个区域的,我们结合对生活的睿智与思考,并参考了《花间集》的词牌名,以观、闻、思、悟四感进行命名,分别是观贤宾、闻清乐、思玉楼、悟江南。

▲绿城•凤起朝鸣 四感示意图

▲绿城•凤起朝鸣 实景图
九锦:是园区九个小的景观组团,有“湖亭清影”、“雨山前”、“垂玉巷”等,每个小组团的名字中取一个字,连起来正好是:“九九消寒图”——亭前垂柳珍重待春风。

▲绿城•凤起朝鸣 九锦示意图

▲绿城•凤起朝鸣 实景图
十八韵:花间美集18韵,是指从江南园林之中引入18处典藏园林小品。这些小品包括听仪三景,亭台湖榭、得闲五门等等,名字均是结合《花间集》,由苏风杭韵演化而来。

▲绿城•凤起朝鸣 十八韵示意图

▲绿城•凤起朝鸣 实景图

▲绿城•凤起朝鸣 实景图
高透光玻璃与三种材质的搭配组合方式,充分展现绿城对建筑美学的艺术追求。

▲绿城•凤起朝鸣 下叠样板间实景图

▲绿城•凤起朝鸣 下叠户型图
颠覆传统窗地比的束缚,270度采光空间,让室内获得更多的阳光。

▲绿城•凤起朝鸣 叠墅样板间实景图
在独特的东方建筑美学,与匠人卓越的手法呈现下成都金沙凤起朝鸣合院分获三项国际大奖美国建筑师大奖(2021);美国MUSE DESIGN铂金奖(2021);意大利ADESIGN银奖(2021)。既是对中华建筑的礼赞,也是凤起朝鸣身价的弥足臻贵。

▲绿城•凤起朝鸣 合院实景图

▲绿城•凤起朝鸣 合院约460㎡户型图
设计从中国传统建筑“天人合一”的思想出发,将蜀地文化元素结合现代设计手法,重现自然的山林风水、更在细节处时时显露西南人文风情,强调大自然与人类的和谐共处,使现代人产生“此中有真意,欲辨已忘言”的心旷神怡之感。

▲绿城•凤起朝鸣 合院样板间
中海·浣云居
设计公司:深圳伯立森景观规划设计
”建筑是生活的珠宝盒“,是20世纪著名建筑大师勒柯布西耶的建筑理念。”以人为建筑的尺度“,也正是现代建筑追求的精髓。中海浣云居项目,在奢宅领域,与大多数追求美学设计、艺术表达的手法不同,聚焦居住情绪的引导,更强调营造放松、舒适、愉悦的居家环境,开展了一场现代人居理念的新演绎。

▲中海浣云居 入户门廊合成图
归家仪式营造,引入度假级酒店标准
仪式感是高端住宅不可或缺的表达,酒店式归家入口配合风雨连廊是一线城市豪宅标配。但能像浣云居一样把功能和气派兼顾的很少。社区的主大门,结合台地高差条件,建造了横跨近70m的巨幅门廊入户,不弱于五星级酒店的气势。相较于普通豪宅大气磅礴的入户门廊,浣云居增设了车行落客环岛和迎宾大堂,业主通过电梯或扶梯进入地面园区,更兼具实用性,归家体验的仪式感对标高端度假级酒店。

▲中海浣云居 迎宾大堂实景图
风雨连廊无缝连接酒店式入户门廊,串联高层楼栋大堂。在遮风避雨的功能之外,更注重观景体验的表达,和视线端景的营造,与园林造景结合,不沾风雨,感受四季,在自然中漫步归家。

▲中海浣云居 风雨连廊实景图
全龄健康社区,多点式泛会所设计
中海浣云居充分利用架空层及12000㎡的中庭园林,针对成人、老人、儿童不同群体的需求打造了丰富的配套空间。
约1000㎡蝶影仙踪乐园
采取主题式设计,实现分龄分区
满足0-3岁、3-6岁、6-12岁
不同阶段儿童所需

▲中海浣云居 蝶影仙踪乐园效果图
浣云书馆
与言几又联合打造文化定制空间
营造更具人文社交属性的社区环境

▲中海浣云居 浣云书馆实景图
邻里共享客厅
强调人情温暖,为业主社交派对
闺蜜聚会、生日PARTY…创造独立空间

▲中海浣云居 邻里共享客厅效果图
亲子互动运动区
设置约800m亲子环线跑道
轮滑旱冰练习场、高尔夫推杆
羽毛球等多功能亲子活动区
融合健康生活与社交功能

▲中海浣云居 亲子互动运动区效果图
滨水会客区
下沉庭院、休闲廊架、景观布局
充分兼顾人与景的互动
观景会客,营造轻松会晤的舒适场所

▲中海浣云居 滨水会客区效果图
类独栋化叠墅设计,墅居产品创新
中海浣云居规划高层和叠墅两类产品。浣云居的叠墅是经典的上下两叠产品,通过分南北的花园入户和私家电梯连接户内空间,实现了独立化的归家动线体验,上下叠均有地面、地下空间,形成类独栋化的居住空间。
▲中海浣云居 叠墅视频解析
高标准采用了10.55m的开间设计,实现所有卧室超南布局,单层面积超过100㎡,居住的尺度感超越传统叠墅的拘谨,空间感与大平层产品比肩。上叠通过退台设计,形成了近20㎡的空中花园,同时实现上下叠视线的隔离,增强私密性的居住体验。

▲中海浣云居 上叠实景图

▲中海浣云居 上叠实景图
地下空间通过下沉庭院实现自然采光,解决了地下室阴暗,利用率低的弊端。上叠空间预留了双面采光的阁楼空间,各个空间的舒适度优化到了极致。

▲中海浣云居 地下空间实景图
高层产品的再创新,LDK厅的更高标准
空间会影响情感,好的空间会让身处其中的人产生安定、愉悦、满足的心理感受,这也正是LDK厅备受喜爱的内在原因。
▲中海浣云居 大平层188㎡户型视频解析
中海浣云居采用了2梯2户的楼型设计,不同于豪宅偏好的端厅设计,而是在横厅的基础上引入LDK空间的打造理念,形成了南北通透的社交客厅空间。并开创性的增加了洄游动线设计和270度环幕卫生间设计,居住的便捷度、惊喜感倍增。

▲中海浣云居 大平层188㎡户型图
入户玄关尺度扩深,营造宽敞舒适的归家体验,规划入户洄游动线,满足后疫情居家消杀需求。
全景采光主卧、270°环幕采光卫浴,VILLA的标准是对空间的情景化表达,私享格调生活。

▲中海浣云居 大平层168㎡实景图

▲中海浣云居 大平层188㎡实景图
绿城•桂语朝阳
室内设计:朴悦设计
桂语朝阳占地约55亩,容积率2.0,绿地率30%,采用了南北朝向, “中轴对称”的高低配布局,北高南低。其中8栋15-17层的高层产品,共计322套,已全面售罄;目前正在热销的是9栋6F叠拼产品,仅138席。

▲绿城•桂语朝阳 鸟瞰示意图
叠墅阵列式的建筑立面垂直扁平,水晶灰玻璃窗面折射着日光月影,衬托得整个建筑如同一座站立的“无边玻璃盒子”,无过多修饰,呈现出极简的纯粹之美与工业美学之感。

▲绿城•桂语朝阳 实景图
叠拼是绿城最新的Trees Villa原创叠拼产品,也是继凤起朝鸣、凤起兰庭后成都第三座Trees Villa。

▲绿城•桂语朝阳 实景图
除了通过中轴对称、简洁横向线条等特点传达出精细、安定和恒久的诉求外,在建筑形态上,更加弱化竖向线条,强化横向面宽,使整体呈现大面落地玻璃的效果。

▲绿城•桂语朝阳 实景图
不一样的是它的活动区互动性很强,甚至还有个约700㎡专门拿给业主随便踩下雨不反水的阳光大草坪。

▲绿城•桂语朝阳 实景图
大面积的落地玻璃取代传统“墙体”,解放更多的空间视野,让建筑设计、景观设计、空间设计高度协同,使得空间的景观视野尽可能最大化,让生活存在于景观之中。

▲绿城•桂语朝阳 实景图
下叠约235-242㎡,享阳光雕刻的院子。

▲绿城•桂语朝阳 装修参考案例

▲绿城•桂语朝阳 装修参考案例
整个户型共有4层,其中地下2层(底下部分总层高约5.3米),地上2层。

▲绿城•桂语朝阳 装修参考案例

▲绿城•桂语朝阳 装修参考案例
南侧庭院,让心灵多了一处栖息之地,许你向往的生活。

▲绿城•桂语朝阳 装修参考案例
生活美学馆亦展现出绿城独具匠心的建筑设计和空间规划。首先,在设计理念上以“隐庐四趣”为主题,诠释入礼——逐影——浮舟——幕林,运用光、林、石、船、墙元素,造景穿插艺术。

▲绿城•桂语朝阳 生活美学馆实景图
其次,内部空间秉持“天圆地方”之哲学思考,和“大道西径,成都宽窄”的格局观,梳理成“宽中有窄,窄中有宽”的丰富境界。

▲绿城•桂语朝阳 生活美学馆实景图
【活动时间】
2022年8月25日 、8月26日两天
温馨提示:本次活动名额有限,满员即止,感兴趣的朋友请及时联系报名。
【活动报名】
■活动组织:
主办方:搜建筑 & 经典人居
■报名+咨询:
1.扫描二维码 加好友咨询

咨询微信:soujianzhu03

咨询微信:soujianzhu002
2、联系电话:18132657351(微信同号)
2022年·新产品方向
《 品牌地产 | 精品楼盘活动 》
杭州、苏州、上海
成都、郑州......
广州、福州、重庆
西安、青岛......
扫描二维码 加好友咨询
领队微信:soujianzhu008
本资料声明:
1、本文资料为要约邀请,不视为要约,所有政府、政策信息均来源于官方披露信息,具体以实物、政府主管部门批准文件及买卖双方签订的商品房买卖合同约定为准。如有变化恕不另行通知。
2.因编辑需要,文字和图片无必然联系,仅供读者参考;
推荐一个
专业的地产+建筑平台
每天都有新内容
扫描二维码关注

微信公众号“搜建筑”(ID:sjz9999)
合作、宣传、投稿
联系微信:soujianzhu006




