▲ 更多精品,关注“搜建筑”
U型玻璃(亦称槽型玻璃),因其横截面呈“U”型,故而得名,是一种新颖的建筑型材玻璃。
U型玻璃是朦胧感的缔造者,也是创造理想光感的擅长者,它与光共舞时可以营造各类氛围:艺术的、迷幻的、神秘的、未来科技的...

-01-
U型玻璃种类
Category
U型玻璃品种很多,如普通u型玻璃、钢化u型玻璃、超白u型玻璃、彩釉u型玻璃、喷砂蒙砂u型玻璃、镀膜u型玻璃、夹丝u型玻璃等等。
透明U型玻璃
喷砂U型玻璃
-02-
材料性能以及特征
Performance
U型玻璃作为理想的安全、耐腐蚀、透光性墙体材料,拥有超高的性能和优点。
1、透光不透视
由于非光面U型玻璃的透光不透视性能,运用于墙体时保持室内私密性,同时能够产生柔和的光线漫射效果,使室内照度更为均匀,避免了阳光直射引起的不适。
2、美感度、装饰性、构造性强,形式多样
U玻幕墙呈条幅状造型,线条感明显;玻璃之间无边框,干净透彻,简洁时尚;还可以制作成弧形、多边形等各种造型。U型玻璃纹理、色彩、形状、安装方式均可定制,以呈现建筑或空间视觉效果。
3、独特的光影效果
夜间配合灯光,独特的U型玻璃光影效果美轮美奂。经常配合不同颜色的灯光给人强烈的色彩冲击。

4、隔音、保温、隔热性较好
保温隔热性能和隔声性能良好,与相应的保温材料搭配可以更好地发挥节能效果;现代建筑对节能的要求越来越高,双层安装的U型玻璃,采用不同的填充材料,其传热系数可以达到2.0—0.82W/(㎡.k)。
5、较高的机械强度,承载力强,无需结构支撑
因截面呈U型,使之比普通平板玻璃有较高的机械强度。U玻幕墙为无钢架龙骨结构,两翼起到加强作用,强度超过同厚度普通平板玻璃的10倍以上,能够自成墙体。关注材料公社
注:当U型玻璃双排安装或单排安装长度小于4m时,抗弯强度取值为30~50N/mm2。当U型玻璃单排安装且安装长度大于4m时,照此表取值。
6、施工方便、绿色环保
施工简单,安装成本低,节约大量金属,极低的维护成本,并且可以配合安装组件来提供特殊解决方案,业主可二次拆除重复循环使用,绿色环保。
-03-
生产工艺及施工流程
Technic
1、 制作工艺
U型玻璃,其原料为废旧玻璃和石英砂,原料在1470℃左右温度下熔化,采用压延成形法连续生产出来,从压延机组出来的玻璃带温度约为850°℃~900°℃,连续玻璃带随即被送入U型玻璃成形机,成形后的U形玻璃带要在退火窑中接受退火处理,以保证良好的退火质量。

2、安装方式
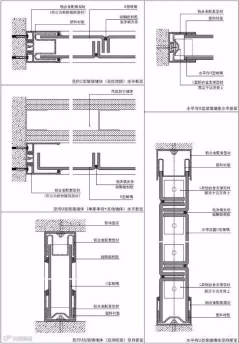
U型玻璃规格可单层、双层安装,可以按照造型及使用功能分别采取以下八种常规组合方式。
八种常规组合方式
常用规格
3、施工工艺
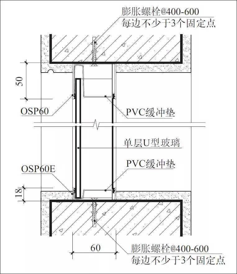
A.用膨胀螺栓或射钉将边框料固定在建筑物的洞口中,边框可用指直角或斜角连接。边框每侧应至少由个固定点。上下框料每隔400~600应有一个固定点。
B.将起稳定作用的塑料件截成相应长度,放入框中上下型材内。
C.U型玻璃入框时,应将玻璃内面仔细擦洗干净。
D.将U型玻璃条依次插入。U型玻璃插入上框料的深度应≥20。插入下框料的深度应≥12,插入左右框料的深度应≥20。关注材料公社
当U型玻璃插至最后一块,洞口宽于玻璃宽不一致时,沿长度方向裁切玻璃,按18页“端头玻璃安装顺序”将所裁切玻璃装入,同时将塑料件截成与玻璃相应长度放入边框一侧。
E.在边框与玻璃间的缝中塞入弹性垫条,垫条与玻璃和边框接触面不得少于10。
F.在边框与玻璃,玻璃与玻璃,边框与建筑结构体的接缝中,填入玻璃胶类弹性密封材料(或称硅酮胶)密封 。玻璃与边框的弹性密封厚度最窄处≥2,深度应≥3,U型玻璃块之间的弹性密封厚度应在3-5之间。
G.玻璃全部安装完,将表面的污垢清除干净。
U型玻璃的安装一般由厂商提供专用配套型材、固定卡具等,根据其断面受力特点它一般沿竖直方向安装,但偶尔也有追求横向纹理设计成水平向安装的。

4、安装要点
(1)U型玻璃的端面和平面应无锯齿状缺口或裂纹。
(2)各独立的U型玻璃构件应支撑在具有均匀弹性的衬垫上。
(3)玻璃与临近的金属件、混凝土和砂浆结构之间不能有硬性接触。
(4)在U型玻璃的上端与更高处的建筑物件(如过梁、大梁、屋面板等)之间必须留有缝隙。
(5)U型玻璃上端与临近的上部结构之间的空气缝隙不应小于25mm,以应付其变形,便于安装更换。
(6)必须用弹性密封材料填充U型玻璃之间的纵缝。
(7)密封材料,通常有二组分的聚硫塑料、硅铜胶、柔性聚氯乙烯型材等,用于U型玻璃与固定件、U形玻璃条之间的密封。
(8)圆绳,用于U型玻璃与边框之间的密封。
(9)条形衬垫、柔性聚氯乙烯型材、浸过沥青的条带、硬泡沫塑料等,用作U型玻璃与边框之间的胀缝和滑缝。
(10)膨胀螺栓,用于固定边框。
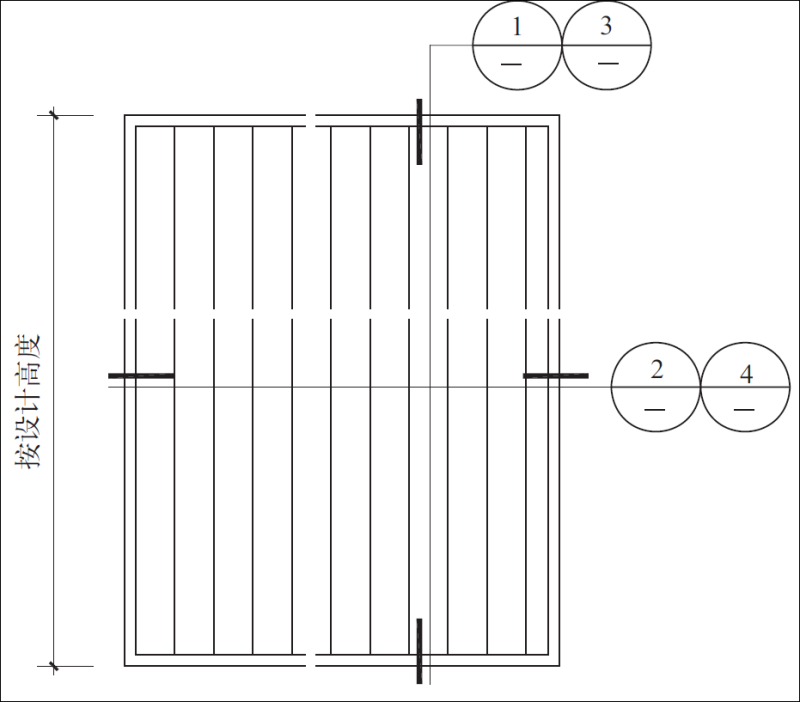
典型的U型玻璃安装示意图:

U玻外墙安装截面:
-04-
应用广泛
Application case
U型玻璃作为墙体材料可用于建筑内墙、外墙、隔断等部位。外墙一般用于多层建筑,在建筑上有很多应用。关注材料公社
①、 售楼处
西安宸阅和鸣售楼部,外立面以U玻体块为基本元素,将文化藏于建筑表皮肌理之中,以艺术的语汇在建筑和室内形成现代与东方之间的有机过度,人成为空间的中心,足够亲和力的空间制造,还原更好的空间体验。

西安宸阅和鸣售楼部 摄影:路径建筑摄影
济宁中梁壹号院,售楼处造型构思取自济宁的文化和山水地形,承京杭大运河之韵,进行抽象演绎。朦胧的山水画隐喻了济宁城市的文化意蕴,水景景观配合山水画卷,相得益彰,引人入胜。

济宁中梁壹号院 实景图
售楼处二层主立面,采用可拆卸并能二次利用的U型玻璃幕墙,既能满足功能需求又环保节能;当夜晚降临室内的灯光使建筑反衬出一个发光体,映出朦胧的山水画,既大气又玲珑剔透。

济宁中梁壹号院 U玻幕墙设计
山东保利·济宁保利城艺术馆,为了打造缥缈梦幻的意境,项目选材上以素雅通透的材料为主。展示中心建筑两层体量,首层外观为极致的通透玻璃,二层为银白色金属框镶嵌喷砂半通透的发光参数化U玻、晶亮聚碳酸酯板。
山东保利·济宁保利城艺术馆 来源:霍普股份
通过U玻的平面参数化干扰,运用模块化思路,将U玻模块等距排列并依次水平旋转固定角度。通过实际参数模拟,确定由单层模块变为双层U玻模块,强化编织效果。
山东保利·济宁保利城艺术馆 来源:霍普股份
通过U玻的竖向参数化干扰,在保证U玻的结构稳定性和材料安全性基础上,经过电脑参数反复推敲、对比,最终确定控制倾角在3度可以保证较好的立面效果。

U玻大样 来源:霍普股份

U玻排列方式 来源:霍普股份
奥园誉景湾生活美学展示馆,建筑主体设计探索了的建筑“透明性”,用超白玻、U型玻璃幕墙及格栅,形成不同透明度体量的穿插。在镜面水景的映衬之下,项目展现出一幅抽象的中式山水画卷,以气韵生动之感呼应西安十三朝古都北境的地缘文化特征。

西安奥园誉景湾 摄影:明境建筑摄影

细节图
江苏·淮安新城金樾府售楼处上部选用创新的U玻幕墙,色泽上采用白色与深灰色相辅,整体感受时尚不失稳重。


新城金樾府 建筑摄影:筑作视觉
西安新希望· 锦鳞天玺,中国传统山水画作为建筑外表皮主要造型元素,与现代建材有机关联,通过解构、简化、重构、再生,以U玻立面形式最终呈现。

色泽上采用白色与深灰色相辅,通过光与影的营造,构筑远山青黛的自然风景,在使建筑体上部块呈现出轻盈效果的同时表达出中国传统文化中归隐山林之意趣。
售楼处细节图
南京·世茂天誉售楼处,二层内壁由白色的环保材料U玻组成,视觉上的感受是一块被切割成了正方形的天空。

江阴融创 · 敔山桃源玻璃盒子的观湖界面形成悬挑空间,三个玻璃盒子采用不同材质,底层采用透明玻璃和银灰色铝板结合金属框,形成开放的入口迎客空间。二层喷砂超白u型玻璃和白色铝压条,与三层的透明玻璃结合镜面不锈钢横向檐板,上下错动,形成简洁通透又极具雕塑感的建筑形象。

建筑摄影:吴志盛
U玻立面:通过模数化U玻立面排列设计,形成序列感的立面造型,精细化细节设计体现高品质工艺。

建筑摄影:吴志盛
沈阳融创·观澜壹号售楼处实景 超白钢化喷砂U型玻璃

杭州世纪金宸

台州中南远洋樾府 拍摄:@Holi河狸景观摄影

西安华润置地悦府展厅实拍图
②、其他公建
以色列生物技术研究所围护结构采用双层表皮体系,由内部玻璃幕墙和外部绿色U型玻璃构成,酸性U型玻璃百叶窗形成垂直向开口,让建筑使用者与外部景观相互联系。

摄影:Amit Geron, Dan Chyutin

细节图
马德里综合性社会服务中心,该建筑群由一圈走廊围绕,由U型玻璃(U玻|槽型玻璃)覆盖在立面上的所有开口,充当一个吸热体,并允许所有楼层的外部区域都用于休息区和房间。这个走廊将提供建筑所需要的隐私,改善居住条件,并达到一个高质量的外观,随着你的位置点变化,从半透明到透明,一天中充满了变幻。

©Pablo Vicens

韩国当代历史国家博物馆 © 云南家华U型玻璃 摄影:Namgoong Sun
③、景观装饰墙
在景观设计运用中,它最常用的地方就是景墙,建筑及围墙组成虚实变化的边界,水池与出水口辅助勾勒线性空间的延展感,U玻打造出光感围墙。

合肥·融创滨湖印
有纹理的U玻,无论是弧线还是直线,都如同一幅朦胧的画卷,展开在我们面前。

成都龙湖·天宸原著 拍摄:雪尔空间摄影 唐曦

万科重庆天地艺术馆 摄影:存在建筑 苏哲维
河南郑州康桥美庐湾售楼处,磨砂白/U玻——纯洁的颜色述说光影,美丽的纹理宛如朦胧的画面。

景观摄影|小花摄影、冰里的鱼
-05-
U型玻璃价格
Price
U型玻璃幕墙价格完成价包含U型玻璃、人工及支撑结构组件,分为单层U型玻璃幕墙和双层U型玻璃幕墙。
根据实际使用的U型玻璃类型、支撑材料、现场安装环境,200-300元/平米(玻璃),单层U型玻璃幕墙价格约500-700元/平方米,双层U型玻璃幕墙价格约600-800元/平方米。具体看型号和高度。
(以上价格仅为市场普通中端产品价格,材料价格会因不同项目、不同品牌以及订制等多方原因有较大浮动,仅供参考)
结语:
U型玻璃品种很多,有着理想的透光性、隔热性、保温性和较高的机械强度,不但用途广泛、施工简便,而且有着独特的建筑与装饰效果,并能节约大量轻金属型材,所因其独特的魅力和性能越来越受到业主欢迎和建筑设计师青睐。
本资料声明:
1.本文为建筑设计技术分析,仅供欣赏学习。
2.本资料为要约邀请,不视为要约,所有政府、政策信息均来源于官方披露信息,具体以实物、政府主管部门批准文件及买卖双方签订的商品房买卖合同约定为准。如有变化恕不另行通知。
3.因编辑需要,文字和图片无必然联系,仅供读者参考;
推荐一个
专业的地产+建筑平台
每天都有新内容
扫描二维码关注

微信公众号“搜建筑”(ID:sjz9999)
合作、宣传、投稿
联系微信:soujianzhu006




