济宁华地鸿顺•天泰城展示中心位于山东省济宁市东汤地块,南侧与东侧为城市主要昭示面,为建筑主入口主要方向,北侧为景观界面,面向展示中心后场景观。设计充分分析有限场地的关系,让建筑的体量为街角的城市绿地出让更多空间,并透过设置景观界面将自然引入住宅区方向,利用建筑的退让呈现最佳展示界面,结合济宁的石建筑文化,为城市提供一座具有雕塑感、文化感,也更具昭示性的展示中心。
▲回应场域特色的昭示感空间©章鱼见筑
在不超过3000㎡的有限基地面积内,设计团队基于界面分析,在设计初期定义建筑的南侧及北侧为城市主要昭示面与主入口方向,通过首层向内挤压收缩和端部增加向外出挑的手法,将建筑的方体量沿场地南侧尽量拉长,使昭示感更长足。
▲形体生成理念手绘
▲形体生成过程
▲总平面图
通过建筑体块的退让,场地在受限空间内规划出从入口到前场的洄游动线,将建筑作为前场与后场展示景观的一部分进行铺陈,最终在有限的场地内,构筑起更具故事性的步行场景体验。
▲场地内外动线设置
由外引入的故事性入口 在入口处,建筑设置幕墙构架的局部出挑,形成有天光洒入的入口灰空间,将人们引入特定的空间与场域,营造神秘感、艺术感和场景感。黑色大理石雕琢而成的景观石小品轻轻托起入口构架,在形成结构支撑的同时,创造了话题感与戏剧性。
▲富有话题性的入口前场©章鱼见筑
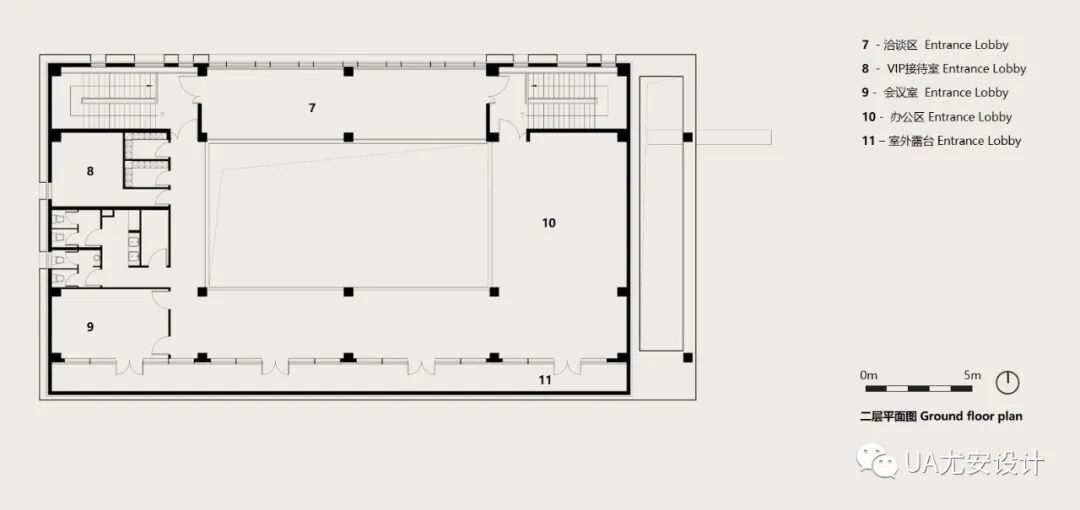
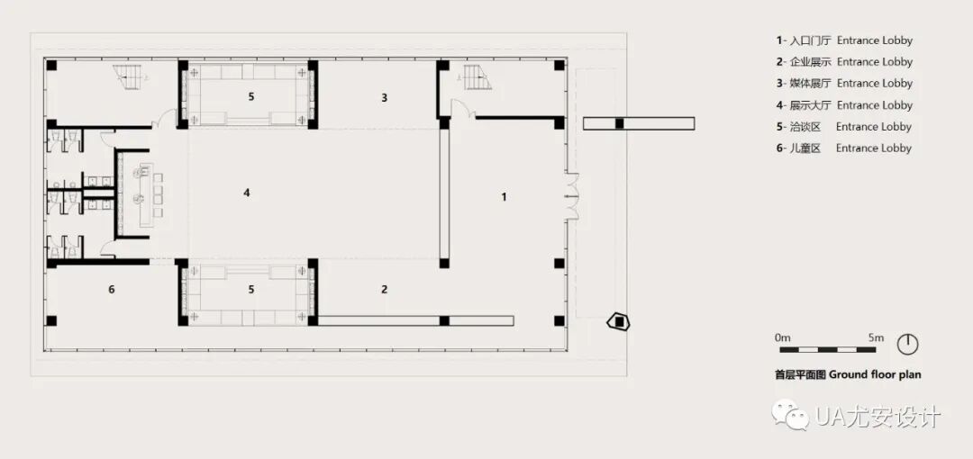
内外交融的合围空间 建筑体量上下切分,透过首层通透的玻璃幕墙,建筑室内与室外实现了视线上的交流与互动,二层方正的形体经由天井的交错设置,形成四周合围石头垒砌般的空间,与济宁鲁西南的石砌建筑传统相呼应,也为建筑内部引入了多样采光与高效通风,令建筑的使用与周边环境更为契合。
▲建筑内外交互系统
▲富有交流性的内外空间©章鱼见筑
精致极简的立面材质 建筑选材的原则始终遵循对雕塑感的打造,材质简洁而富有肌理感,一层采用超白LOW-E中空玻璃,营造通透可视的漂浮感;二层则使用白色水泥硅酸钙板进行拼接,通过肌理的微变化,增加立面的丰富度与精致度。立面着重打造更具昭示感的南侧与东侧界面,实现完成度与丰富度兼具的成熟营造。
▲立面材质划分
为保证立面的落地还原度,设计团队对建筑二层各面立面的材质板拼贴原则进行了详细的位置定位,形成简明韵味的石材感,并依据横向1600mm、2400mm,纵向300mm、600mm的原则规定分缝方案,构成错落而不呆板的仿石砖视觉。
▲南、北立面二层拼贴位置定位
▲立面细节还原©章鱼见筑
建筑结构的空间支撑 为保证建筑的使用功能与视觉效果最优化,设计针对入口处出挑的体量,设置土建结构以完成大出挑的可行性;在二层室外露台则采用双层结构,保证立面完整性与采光通风的功能同时实现。
▲入口土建与室外露台结构节点
▲技术图纸
本资料声明:
1.本文为建筑设计技术分析,仅供欣赏学习。
2.本资料为要约邀请,不视为要约,所有政府、政策信息均来源于官方披露信息,具体以实物、政府主管部门批准文件及买卖双方签订的商品房买卖合同约定为准。如有变化恕不另行通知。
3.因编辑需要,文字和图片无必然联系,仅供读者参考;
推荐一个
专业的地产+建筑平台
每天都有新内容
扫描二维码关注

微信公众号“搜建筑”(ID:sjz9999)
合作、宣传、投稿
联系微信:soujianzhu006


