▲ 更多精品,关注“搜建筑”
/
只要我们把家宅当作给人安慰和内心的空间,当作压缩并保卫内心的空间,家宅就立刻开始人性的转化。
——加斯东·巴什拉
项目视频
▽
设计图纸
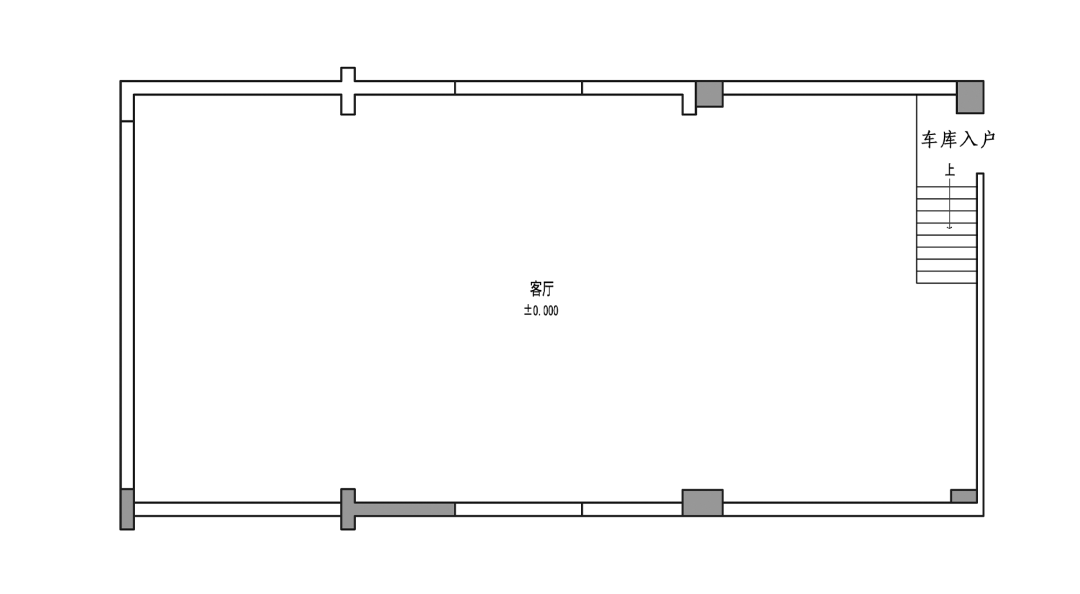
<< -1F 改造前后平面图 滑动查看 >>
<< 1F 改造前后平面图 滑动查看 >>
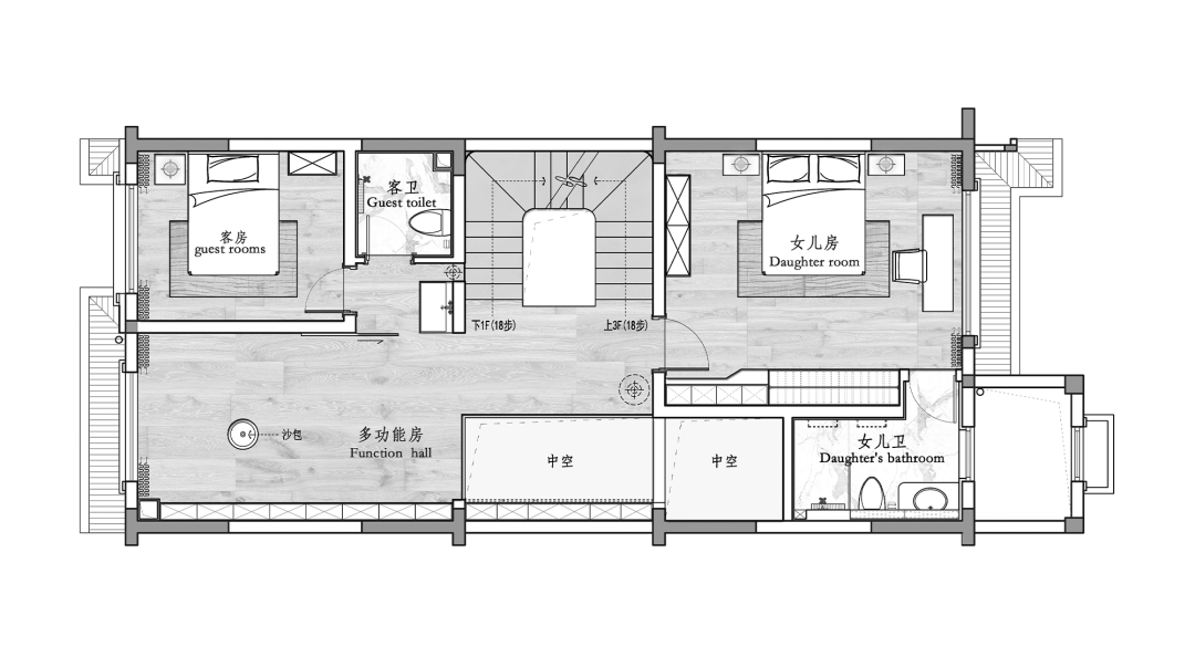
<< 2F 改造前后平面图 滑动查看 >>
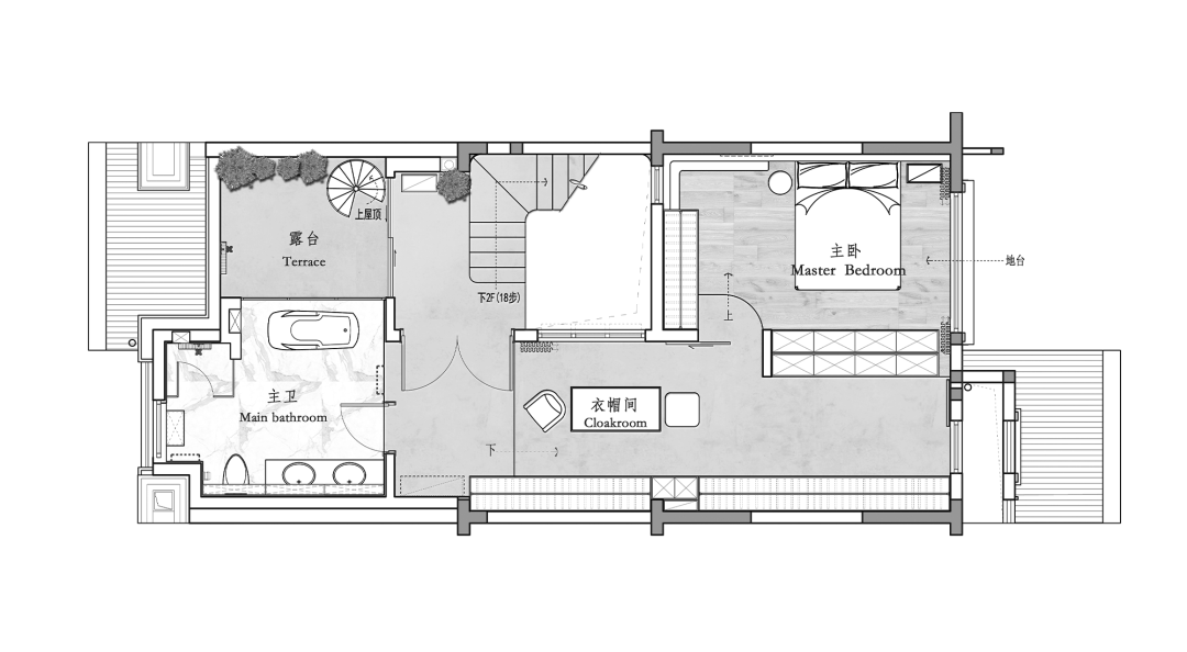
<< 3F 改造前后平面图 滑动查看 >>
面对这座500㎡的大宅,ACE DESIGN思考的,是当代居住生活方式正在发生的变化 —— 挣脱浅层装饰先入为主的束缚性,从表面相似的生活背后,挖掘出与居者同频共振的“居住哲学”。
在其笔下,一切自然的意象或物件、手法,带来了居者的主体性及其与世界的深刻关联度,让人放松身躯、安抚心灵,日复一日的生活轨迹拼凑出一幅多姿多彩的美好图景。
而家宅的意义,也因此从纯粹的“居住”,化身为艺术的载体、自然的链接,更加注重体验的本质。
“我们认为体验的本质,应该服从于心灵的力量,因此本案的设计,更加关注‘身体’在空间中的感知,以自由游走的动线、尺度、光线,带来人与自然的亲近氛围。”设计师谈及创作思路时道。
在空间结构关系上,设计师以简净的轮廓去承载风、光自由对流的轨迹,使其与人的生活场景无隙交织。无论是一段阶梯的造型结构,或是一个扶手的精巧细节,均是对造景关系与互动视野的双重考虑,让自然的气息萦绕于室。
人们的生活是由场景关系、器物关系、互动关系建构起来的,居住空间的包容度十分重要。近距离观察本案业主的生活后,设计师发现,从跑步、瑜伽、健身、户外、旅行、石头、古玩、旧物、茗茶到宠物的每一项兴趣与活动,共同影响着业主对家的期待。“因此我们希望以纯白作为空间背景色亦作为生活的画布,让居住者可自由书写多元的生活姿态,气质简约而优雅。”
在本案的初期,设计师着力于重新梳理空间动线,在理性逻辑的基础上加入了仪式感的考量,让归家的第一视觉落点,变得更有期待感。步入通道,穿过拱门,设计师特别的设置,让人的身体仿佛置身于一种温柔的包裹中,回到生活的主场之中。
楼梯处作为秩序井然的“桥”,以艺术化的“中空”留白,让人眼前豁然开朗,而墙角处随意散落的点缀,标记着主人游走于世界的痕迹。
业主一家的生活方式丰富多彩,动静活动兼具,修身亦养心,因此设计师特别留出空间的多功能状态,以灵动的可能性,适应不同活动的需求。“比如,对目前已经完成85个全马的女主人来说,马拉松是她的生活常态,她可以在负一层的休闲区招待运动好友,或是举行分享会和酒会。”
二层多功能区以开敞的布局,带来场景的功能延展与体验交错 —— 向下与门厅场景隔空对望,向上与通透天井光影相接,这里随着自然的轮转呈以动态化的美。同时,设计师依据居者的习惯规划出多变的空间功能,这里既是运动场所,也可演变为第二客房,更是容量巨大的储存室,无形之中大大提升空间利用率。
倚光而居的哲学,是对自然的最大限度解放,亦是本案的核心。设计师以蜿蜒周折的楼梯造型,改变了原结构下的行走方式,让自然顶光绕着漩涡般的“传导装置”,由外及内地洒入了负一层及夹层之中。
每一层的中间部分被点亮,同时在通道与动线的串联下,一层客餐厅、二层多功能房与三层主卧等功能区共享阳光的眷顾,居住空间的体验感变得层次分明。
持续的光影,滋养着旁逸斜出的自然景观,打破纯白画面的迟滞感,于是空间场景变得极富生命力。面对尺度自由的层高条件,设计师大胆构建出一个夹层空间,在上下两处分别留有采光顶窗,与中部楼梯天井的自然诗意遥相呼应。这里随意陈列着男女主人的生活旧物与艺术收藏,他们时常邀三五好友品茗、聚会,天光云影下,场景氛围和乐融融。
自然的可生长性,与生活的多彩斑斓,是本案空间美学的两大向度。在丰富中归纳,在多变中凝练,设计师对生活的诠释不是刻意为之,而是在简单中体悟本质,在平凡日常中感受非凡灵魂。
时光的流转,在空间场景中留下痕迹,貌似不可捕捉的无形之物,定格于空间本身、器物之上,勾勒出时刻在变、无法预测的风景。在物理空间的实体之外,这里衍生出精神上的第二层“空间”,印证着生活的趣味性、日常的艺术感,层层递进的背后是无限的惊喜。
“我们设计新居,并不舍弃旧物,而是将其视作业主人生的一部分,融入空间的长久体验之中。”空间中的大部分家具陪伴了业主长达10年甚至20年,浸染着浓浓的岁月感,其朴实的质感侧面烘托出业主一家亲切念旧的性格。伴光而行,便如怀抱自然,时光映心,于是共鸣过去、当下及未来,居者在自由之境安放灵魂。
从意象、材质、手法到工艺,设计师不拘于追求完满,而是接纳自然素材的不完美,在独特的肌理之间,让任意某个器物或装饰与相应的空间场所产生细微的联系,这时便触发了美的感知,愉悦身心的生活也开始了。
“家必须被体验。空间只追求美是很容易的,但是场域的美感往往会消散在生活的琐碎中,如何达成美与趣味、与日常的持续互动,始终是我们探索的课题。”ACE DESIGN于本案中重构动线秩序,延展光影的戏剧性,在自然中对话生活的情致,在生活中归于自然的造化。倚光而居,徐徐过渡,在变与不变中致敬生活的真意。
项目信息 / Project Information
项目地址丨中国 成都
服务方式丨全案实施
设计面积丨500㎡ (室内)
设计总监丨谢辉
设计团队丨谢辉、王琦琅
设计单位丨ACE DESIGN
软装设计及执行丨木上艺术
项目摄影丨视方摄影-翱翔
项目视频丨视方摄影-翱翔,何祉涓
∧设计团队(王琦琅)
本资料声明:
1.本文为建筑设计技术分析,仅供欣赏学习。
2.本资料为要约邀请,不视为要约,所有政府、政策信息均来源于官方披露信息,具体以实物、政府主管部门批准文件及买卖双方签订的商品房买卖合同约定为准。如有变化恕不另行通知。
3.因编辑需要,文字和图片无必然联系,仅供读者参考;
推荐一个
专业的地产+建筑平台
每天都有新内容
扫描二维码关注

微信公众号“搜建筑”(ID:sjz9999)
合作、宣传、投稿
联系微信:soujianzhu006

