“美的建筑是真正用心灵构想而成的有机体,
也是在灵感的指导作用下用最佳技艺创作而成的艺术品。”
—— 安藤忠雄
梧桐凤鸣 万象更新
置地中心•幸福里位于浙江省桐乡市。桐乡作为长三角沪杭走廊与环杭州湾的重要节点,规划定位高,战略定位重,有“一市三城,以城带区”之说。
△ 项目区位图
作为华润置地在桐乡的首开项目,该地块位于老城核心与市政府相邻的市中心板块,并处于城市主要发展轴线上的核心结点。在这样的定位条件下,该树立一个怎样的形象?该如何从城市、建筑、空间等多维度打造“桐乡文化名片”?
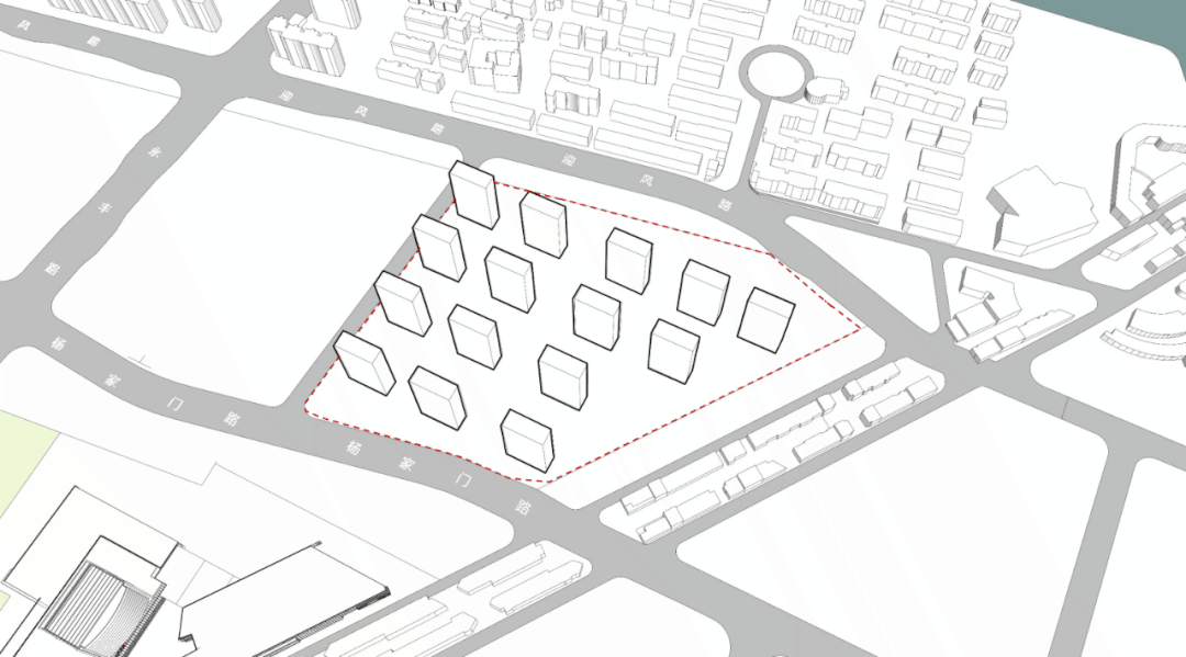
△ 大规划生成
项目前期,经过多轮规划设计,利用优越城市区位,从片区宏观发展的视角考虑,链接既有商业资源,整合水系,公园优势,打造“一轴 • 一芯 • 两环 • 三带”的片区规划框架。
融合城市片区规划,置地中心•幸福里希望以拥抱未来的姿态、鲜明的个性、对美学与空间的极致追求,成为刷新城市天际线的崭新名片,同时,也为桐乡市带来内外兼修的生活品质提升。
精雕细琢 序章徐开
△ 规划生成
置地中心幸福里(一期)包括14幢现代高层天幕塔尖住宅,其面积段为105-142㎡,满足全龄段的住户需求,其设计中采用大开大合、北高南低、外高内低的整体布局,打破平缓的城市天际线,有效地遮蔽嘈杂的城市界面,围合出超大尺度中心庭院,实现居住生活的通透感与连续城市界面的平衡感。
△ 整体鸟瞰
△ 中心景观
在总体布局、立面形式、景观设计等方面上,体现出对城市环境的尊重和关注,并通过合理的布局策略,使得这一区块能够积极地融入周边环境的整体氛围中,成为城市形态中的有机组成部分。
△ 主题景观打造
△ 中心景观
公建立面 品质为王
在建筑立面的推敲中,借鉴了现代都市精致与挺拔的气质,同时吸取东方美学的气韵,采用干净、简洁的设计手法,摒弃了繁琐的线条与细节。具体到设计层面,置地中心•幸福里结合基地环境,在规划、产品、立面等方面进行了全面的设计升级,充分联动区域资源,精细研究每个设计模块,实现从整体规划到单体产品的全面溢价,打造城市级品质立面。
△ 多轮方案设计
△ T4南立面透视
△ 银杏大道
△ 大高山墙面
在建筑形态上,清晰明确的体块交接,大体块的虚实对比,简洁锐气,达到现代工艺和经典比例的和谐统一。在立面材质上,主要采用铝板线条,增加建筑的雕塑感,同时采用天幕玻璃加持,简约大方,突显精致品质,引领桐乡新风向。
△ T2南立面透视
△ 中心景观
△ 南立面细节
建筑顶部的虚实格栅向天空延伸,塑造出独特的城市天际线形象。细节处理以明确的金属线条装饰,加强了建筑顶部的力度感,局部采用穿孔铝板代替玻璃板,美观而不失品质,打造城市级灯塔,形成一道美丽的风景线。
△ 塔冠透视
△ 塔冠透视(夜景)
星级入口 归家礼序
住宅区公共空间包括入户大堂、公共配套等,较为常见的处理方式是以门厅作为室内外空间的界限,并通过路径和空间来营造归家仪式感。
随着对居住环境品质的更高需求,底层架空的设计逐渐成为住宅设计的趋势。架空后的底层平面自然形成半室外空间用于邻里交往、景观营造、社区活动等多样化功能,一定程度上解放了用地范围内的土地资源,也界定了建筑内外空间分界限。
△ T2门头方案对比
△ T2入户门头
△ T4门头方案对比
△ T4入户门头
独立信报箱区配置,门头局部挑高,与住宅立面呼应。置地中心•幸福里秉承气度高于形式的理念,打造仪式感、私密感、尊崇的归家大堂,锻造匹配都市尊贵气度,在宁静无扰的归家之中,呈现仪式感带来的动态尊崇意趣,尽显大宅风范。
△ 南侧小区主入口
西侧主入口由人行入口通过社区大堂,进入小区内。两侧分设两处机动车出入口,实现人车完全分流,启鉴尊崇的待客礼序,打造国际星级酒店式入口。
△ 南侧社区大堂
在满足便民需求的同时,将配电房、垃圾房合理设置在地块边缘,减少对社区景观的影响,提高居民生活环境。同时结合架空层设置儿童活动中心,打造趣味一体的“享乐”空间。
反复推敲 细节呈现
对外构成简洁连续的城市界面,每间户型均能获得最大化的景观视野;对内户型功能空间采取精细化设计,重点把握餐厅和起居室的尺度,南向房间占有绝对面积比例。动静合理分区,南北正向和阳台侧面通风采光,同时预留足够的弹性空间,来满足现代生活居住空间的需求。
△ 标准层
在设计中,我们对在窗墙系统如何实现幕墙效果,进行了深入研究。在最终效果中,如何高质量的实景呈现,需要建筑师在造价、规范等现实问题和立面理想效果之间做平衡。
△ 幕墙立面模块化思考
△ 细节展示
严格品控 精益求精
从2020年中开始立面选材,到2021年中立面工程巡场,置地中心•幸福里立面选材及工艺研究耗时一年。疫情期间,居家SOHO办公,与业主及其他端口默契配合。从实际正式启动方案设计到扩初、施工图设计,周期仅5个月。出于对设计的尊重,高品质的追求,社会的责任心,设计团队在材料选择、幕墙节点处理及现场施工工艺做法上进一步和各专业探讨研究,并和业主一起高频率现场巡场,查缺补漏,可视化交底解决问题。
△ 现场多轮巡场
项目前期阶段,设计团队从整体效果、材料颜色、工艺做法三个维度进行系统研究与考察。赴杭州,实地踩盘,对比做法立面选材。同时与材料供应商互动打样聚焦样板,形成2-3套材料展示样板,各个相关部门积极配合,最终选取涂料和木纹冷暖色调上墙做再次大板比选。
△ 部分工程样板手册
针对工程样板材料及工艺,通过模型及图纸结合,近乎实景还原,精工打磨。力求工程样板展示查缺补漏,为工程进度和落地呈现度奠定夯实基础。
巡场与工程互动,了解最大线条尺寸,通过实景模拟,优化线条分缝。
△ 铝板分缝研究
关于山墙铝板分缝及收边材料,现场工程做了“层间层层通缝”(型材收边)及“层间间隔错缝”(铝板收边)比选,为打破呆板立面形象及精细化设计,从而选择了“层间间隔错缝” (型材收边)。
在整个施工阶段,设计师对此进行高密度的巡场分析,关注项目进度,从工程样比选开始到主管中心、大区设计端口一致获得认可。
结语
每一个作品,都是设计给予城市与时代最好的献礼。在置地中心·幸福里中,设计团队立足城市的空间诉求,捕捉当代的生活需求,构建多方生活共识,以纯粹空间打造城市IP,以高配生活诠释企业价值,以兼具实用与美观的作品满足当代人居,三位一体,重塑桐乡的城市印象。
项目名称:置地中心·幸福里
项目地址:浙江·桐乡
项目业主:华润置地
用地面积:55307㎡
建筑面积:200461㎡
建筑设计:DC国际
主持建筑师:揭涌
设计团队:王雷鸣、贾新飞、杨昱、黄鸣飞、李业发、
王波、谭业尊、李君怡
完工时间:2022年9月
景观设计:澜道佑澜
施工图设计:上海原构设计院
项目摄影:DC国际
本资料声明:
1.本文为建筑设计技术分析,仅供欣赏学习。
2.本资料为要约邀请,不视为要约,所有政府、政策信息均来源于官方披露信息,具体以实物、政府主管部门批准文件及买卖双方签订的商品房买卖合同约定为准。如有变化恕不另行通知。
3.因编辑需要,文字和图片无必然联系,仅供读者参考;
推荐一个
专业的地产+建筑平台
每天都有新内容
扫描二维码关注

微信公众号“搜建筑”(ID:sjz9999)
合作、宣传、投稿
联系微信:soujianzhu006
阅读原文:“DC国际”更多精品

