▲ 更多精品,关注“搜建筑”
杭州仁恒滨江园
gad作品

高密度城市是当下及未来的发展趋势,高密度、高容积率的住宅开发也成为必然。在满足地产开发经济效能的基础上,如何探寻这类设计的新突破——既能与城市对话,又能在超尺度的建筑环境中给予“人”更多关怀,成为设计需要思考的新问题。仁恒滨江园项目便是我们对问题思考的一次设计回应。
鸟瞰图 ©shiromio studio

南星桥地处杭州老城区与新兴核心区之间,东至钱塘江、北至钱江新城CBD核心区,南至飞云江路紧挨南宋皇城。区域规划结构清晰、城市边界平整,人文历史氛围浓厚,是钱江新城最具生活气息的区域。仁恒滨江园是南星桥区域开发的新住区。
项目区位图 ©gad

项目位于上城区钱江路与甬江路交叉口,基地面积31766㎡,容积率2.7。周边地块多为高密度高层住宅,形成了密集的“城市屏障”,以至于基地环境喧嚣且无更多城市景观资源可借用。于是,我们将设计方向转为营造内向的自治空间。
均质化的行式布局与围合式布局均能满足项目的经济技术指标。均质化布局在设计和规范层面更易实现,但与周边住区并无空间本质上的差异,且会自然形成“中心楼王”独占最多景观资源;但我们更希望实现内向景观资源的“均好性”,让每栋楼都获得更好的经济价值,住户也都能拥有更好的居住体验,所以设计最终选用“围合式”布局。
空间生成 ©gad
园区内景 ©shiromio studio
“围合”的空间形制,在一定程度隔离了城市喧杂干扰的同时,形成了5000㎡的内向中心庭院。面对尺度如此巨大的庭院,不同于建筑面对城市街道展示的完整几何性,我们更希望通过一些零碎的、不规整的、不完整的建筑和景观设计语言,去消解巨大尺度带来的疏离感,在人可感知的范围内构建一个内向的、安全的、有层次的、丰富的、日常的生活空间——广场、水榭、草地、亭廊……——既平添回家的仪式感,也为高楼中的人提供可休憩、可交往的公共活动空间。
完整的城市界面 ©shiromio studio

园区中心景观 ©shiromio studio

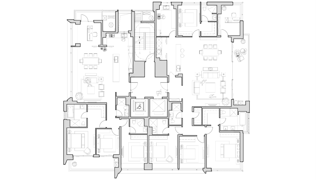
仁恒滨江园的户型,延续了南星桥住区市场认可度最高的大户型,但我们通过大面宽、大边厅、大阳台的设计布局,在保证私密性的前提下,让住户在有限空间内获得最大的空间感受和更多内庭院景观。
户型平面图 ©gad
建筑立面 ©shiromio studio
融创望江府 ©gad
信达滨江壹品 ©存在建筑
滨江上品 ©shiromio studio
©gad
项目名称
项目地点
详细地址
项目类型
设计时间
建成时间
用地面积
建筑面积
容积率
设计单位
施工图设计
景观
室内
业主
摄影/视频
仁恒滨江园
浙江杭州
杭州市上城区银鼓路与吟潮路交叉口
住宅
2018年9月
2022年3月
31776㎡
132583㎡
2.7
gad 杰地设计
杭州市城建设计研究院有限公司
TROP: terrains + open space
上海无间建筑设计有限公司
木君建筑设计More Design Office(MDO)
郑仕樑室内设计(上海)有限公司
杭州滨恒房地产开发有限公司
shiromio studio、gad、存在建筑
滨江集团、170MDO
本资料声明:
1.本文为建筑设计技术分析,仅供欣赏学习。
2.本资料为要约邀请,不视为要约,所有政府、政策信息均来源于官方披露信息,具体以实物、政府主管部门批准文件及买卖双方签订的商品房买卖合同约定为准。如有变化恕不另行通知。
3.因编辑需要,文字和图片无必然联系,仅供读者参考;
推荐一个
专业的地产+建筑平台
每天都有新内容
扫描二维码关注

微信公众号“搜建筑”(ID:sjz9999)
合作、宣传、投稿
联系微信:soujianzhu006
阅读原文:“gad”更多精品

