▲ 更多精品,关注“搜建筑”
不同与大平层产品,墅院带来的居住体验是其它住宅无法比及的,不论是独栋、合院,还是叠墅,都将愈发珍贵。
可以预见,随着高净值人群加速进场,“墅居”将越来越受青睐。这一点,市场迹象也越来越明显窥见——比如越来越多的大平层项目推出“别墅化”的产品。
我坚信的一点就是,别墅比大平层更能展现出生活的态度。
◎ 院墅产品稀贵度高,卖一套少一套,已成藏品
◎ 立体墅居空间结构,一层一世界,功能分隔也更彻底
◎ 占据优越的景观资源,且更低密更宜居
◎ “有天有地有院”,丰富的院落空间
◎ 面积大,空间感强,居住舒适度高,且私密性强
◎ 功能更复合,可拓展空间大
◎ 趣味性、灵活性、社交性更强
◎ 可展现不同的生活方式和居住模式
……
2022年,万科全新王炸产品——万科·吾山,作为主城山居院墅,不仅实现了住宅的更高形式,更是在城市与自然之间找到了更佳的平衡点。

示范区实景图
项目通过新一代住区的打造,带来全新的山居生活方式,疫情的当下,足不出户露营、轰趴、徒步、登山……
• 万科10年营造,山居迭代产品
• 创革空间营造,重新定义生活空间尺度
• 国际东方美学立面
• 融于自然的度假式山居景观
……
山居迭代产品
他处难寻的生活体验
世界上所有美好的事物,都是创造力的果实。
——米尔
生活的美好,源于不断地设想与突破,万科为全新的生活又做了哪些努力与突破呢?
① 徐州万科10年营造,真正的主城山居院墅
万科·吾山位于主城东五山公园梅花坞景区。西邻繁华市区,东毗邻城市山体公园,项目“依山而建,顺势而为”,融建筑于自然,融山无界,与山无界,让房子“长在了山上”。

效果图
设计更大程度利用了山景资源,实现“推门见山,以城为景”的人居新体验,更大程度保障了居住的舒适度。

示意图
更重要的是,这个低密城市墅居项目的容积率只有1.1,在当下的徐州市场,这样的超低容积率已十分难得。
巧用山地独特地形、天然的地理高差,使得“负一层”跃然平面之上,形成阳光“双首层”设计,抬高的不止是地下空间,更抬高了生活的品质。空气阳光穿透室内,每一层都可以实现超大面宽的景观面与采光面。

示范区实景图
“双首层”设计也让社交拥有更多可能,家庭聚会,亲友雅集,兴趣创意空间等生活的无限可能场景都可以预设。
创革空间营造
重新定义山居生活
万科对传统院墅产品进行了空间和功能上的升级,升级之处都是围绕“墅感”在努力,发力点不是单一或局部的,而是站在用户思维和产品思维,从入户升级、采光格局、地下空间等多个方向都做了系统提升。
万科·吾山作为低密墅区,它的叠墅建面约162㎡-343㎡,合院建面更是达到了约301㎡-350㎡,保证了真正墅居生活的空间尺度。
我们详细来看下:
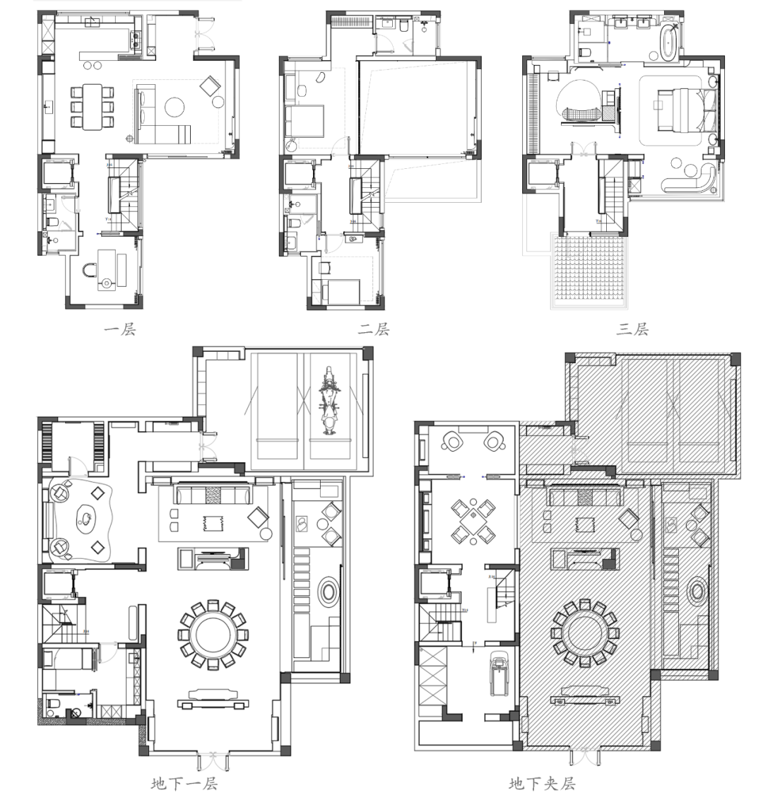
建筑面积约410㎡合院户型,地上三层+地下一层,室内空间将公共活动空间,与私人生活空间实现了明确划分,关注每位家庭成员的需求,也保证了每个家庭成员的交互性和独立性。

建筑面积约410㎡合院户型
① L形围合式布局,采光面更大,私密性更高
采用独门独院的设计,L形围合式布局,不仅私密性更高,采光面大,空间向心力也更强。
② 独立双车位车库+独立内部电梯,实现三大入户方式
合院户型实现三大入户方式:地下车库直接入户、一层惬意南向入户,北向仪式玄关入户。
不仅预留了电梯井,还设计有独立双车位车库,这对于业主而言,车停在自家车位里具备着避免了与其他车的剐蹭,保证了车子的洁净,停入与开出也更为方便等。


客厅实景图
融入国际化生活方式的开放式中西厨+岛台,让做饭的过程不再封闭苦闷,更方便家人的交流。

餐厨实景图
二层独立双孩专属空间,拥有更好的成长空间。

二层实景图
三层独立主人私密专享:豪华超大酒店式主卧套房设计,面积达到约74㎡,实现奢侈的尺度,设置独立休息区、起居空间、5件套双面盆分离式卫生间、步入式衣帽间……独立衣帽间自带采光窗,不仅采光、通风好,面积也足够大,绝对令女主人惊喜。

合院三层户型图
更是配备了270°大尺度自由观景阳台,进深达2米,户外景色一览无余。
惊喜还没有完,约12㎡露台彻底打破居住空间与自然的界线,直接拉进了与山的距离。

卧室实景图
主卧实景图

地下实景图

地下实景图
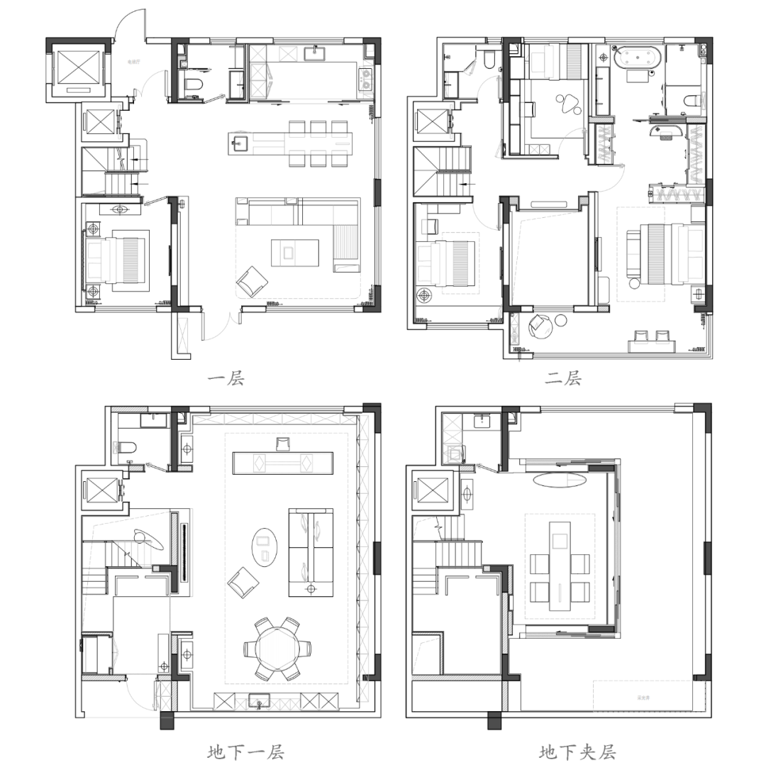
建筑面积约309.37㎡听山下墅,地上两层+地下一层,大面宽、大采光、居住舒适度高,更新空间格局,为生活方式再定义。

建筑面积约307.37㎡下叠户型
① 三大入户方式+预留电梯位
预留内部电梯位,实现三重归家入户方式:地下车库归家、一层南北双入户。
② 南向三开间,更大面积拥抱阳光
不同于市场上主流的开间尺度,万科·吾山实现单层南向三面宽设计,整体面宽约10.15米,大面的采光效果,更引自然入内,让墅居空间明媚敞亮。

下叠一层平面
③ 垂直维度上的功能空间,创新“叠”代生活
当生活从平面到立体,人们对居住空间的要求会随着家庭的升级,呈现出不同的需求迭代。垂直维度上的功能空间,楼上楼下拥有更明确的功能分区,会客、休息、娱乐,都能各得其所。
首先来看一层,设计师并非简单地拉大面宽,而是将面宽进深比控制在接近1:1。如此,一层获得了一个巨型方厅,开间约6.7米、进深约6.8米。270度观景客厅,LDK一体化,约6米局部挑高设计,配合大落地门窗,提高室内开阔尺度。

下叠一层平面
中西双厨设计可自由烹饪,中式美食、西式风味随意切换,照顾多代人的烹饪需求。一层卧室,方便年事渐高的父母,免去频繁上下楼的辛苦。

客厅实景图

下叠二层平面

卧室实景图
地下:约100㎡、约5.25米挑高全明百变地下空间,可以呈现多重理想生活方式。

地下一层实景图

地下夹层实景图
空间与艺术的考究
国际东方美学立面+山居生活的还原营造
最好的建筑是这样的,我们身处在其中
却不知道自然在哪里终了,艺术在哪里开始
——林语堂
林语堂先生的一句诗意的话,道出了建筑艺术与自然园林的内在联系。在万科的眼中,园林和建筑不仅仅是组成,更是一种匠心态度。万科始终以匠心雕琢每一部生活作品,以前瞻视野与美学修为,探索着美好人居。
① 外立面——国际东方美学的当代表达
颜值本身就是一种资产。不少人第一次站在万科·吾山的面前,都会感叹它的设计之美。材质、用色、设计语言风格都完全不同以往的循规蹈矩,别具一格!
项目跳脱出传统的建筑设计,融合现代、国际、东方、时尚的审美趋势,以充满想象力和创造力的手法,精琢考究每一细节,采用国际东方美学立面,融合石材的硬朗、金属的质感与玻璃的通透优雅,最终呈现简约不简单、尽显高级感的国际山居美学。

效果图
石材、玻璃与木纹金属虽材质不同、质地有差,但都有质感浓郁与历经风雨不改色的特性。
巨幅的玻璃窗消解边界,更大限度的将外部的自然景观引进室内,真正的做到了“与山无界”。

效果图
② 园林景观——以自然还原山居生活
利用层层退让的台地设计,项目设计三条逐溪水线,通过台地竖向模拟山林水景,营造跌瀑、曲水、纤溪的场景,打造“人从山中来,归向山中居”的场景,为业主营造度假式的山居生活氛围。
并植入了“人生拾乐”为主题的十大观赏灌木组团,漫步于绿植围绕的巷道中,拾趣生活的无穷之乐。

示意图
一幅山居生活画卷已展开。
社区入口是一座约32米长的东方大屋檐,低调古朴,选用约2990块瓦片铺就而成,在设计上汲取徐州户部山传统古建筑设计肌理,去掉了冗杂的元素,让整个大屋檐更加的当代和国际感,更营造了隐奢、隐贵的体验。

示范区实景图
走出家门就能融入山色之中,步入其中,一种都市之内,尘世之间的生活方式油然而生。
结语
生活方式的进化,从来不是一个地标、一件作品简单的建构,而是从在地共生、城市底盘、设计理念以及生活格局中,兑现人居品质与精神享有的全面进化。
“吾心归处是吾山”,如今,万科·吾山已然成为一个符号,它在对时代墅藏的重新定义中,让每一墅皆是精品。它的出现,将徐州高端人居推向了时代新高度,也再一次证明了万科院墅的独特魅力。
项目名称:万科·吾山
产品面积:
VIP-LINE:0516-8216 8888
项目地址:徐州市五山公园梅花坞景区西北100米
1、本文为建筑设计技术分析,仅供欣赏学习;
2、本资料为要约邀请,不视为要约,所有政府、政策信息均来源于官方披露信息,具体以实物、政府主管部门批准文件及买卖双方签订的商品房买卖合同约定为准。如有变化恕不另行通知;
3、因编辑需要,文字和图片无必然联系,仅供读者参考; 本资料制作时间为2022年11月。
推荐一个
专业的地产+建筑平台
每天都有新内容
扫描二维码关注

微信公众号“搜建筑”(ID:sjz9999)
合作、宣传、投稿
联系微信:soujianzhu006

