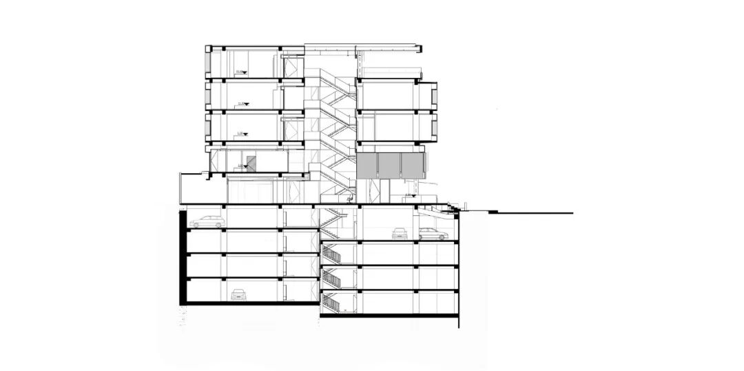
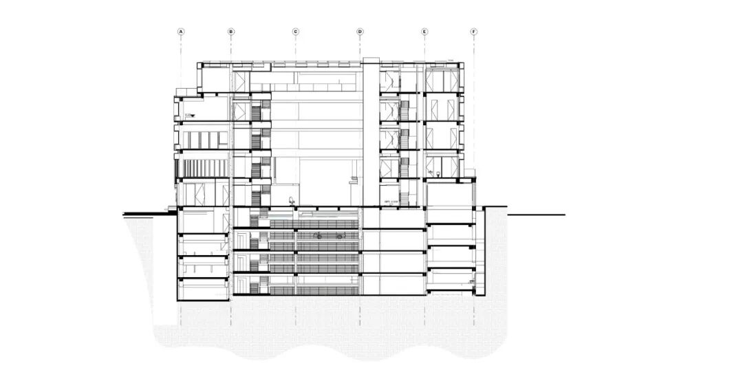
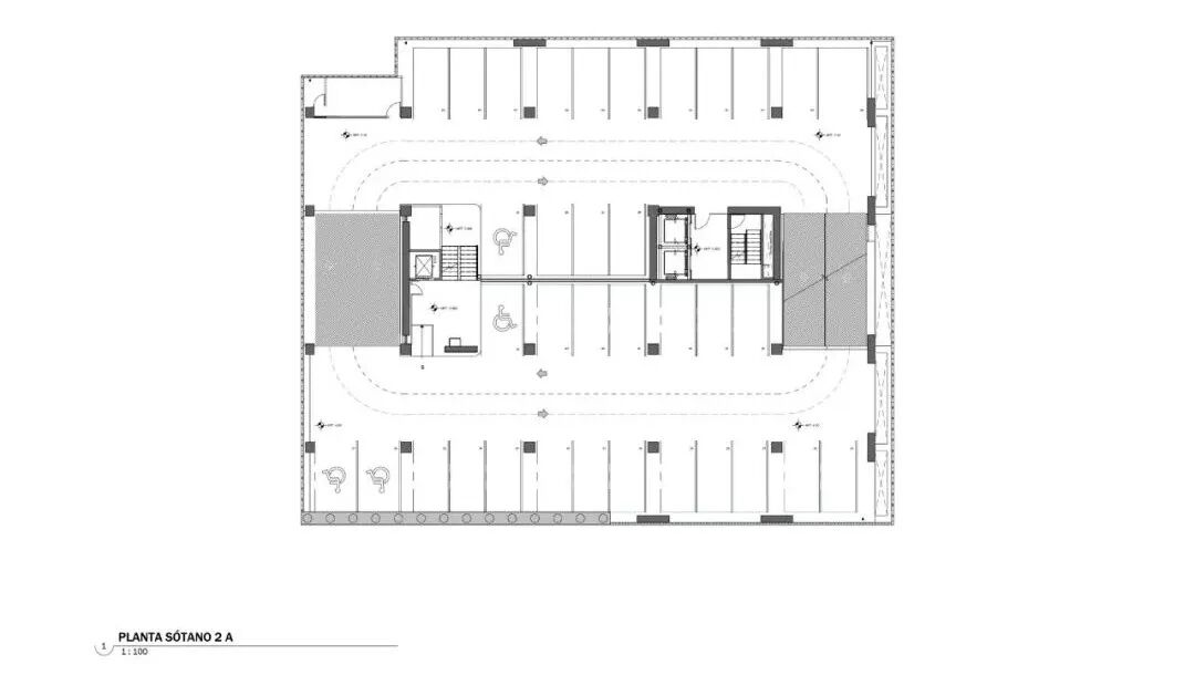
AEME是一座位于危地马拉城的建筑。它有一个开放的平面,一楼专门用于商业用途和餐馆,二楼结合商业和办公室,三楼专门用于办公室。一楼通过一个双高的入口与街道相连,目的是强调向友好的城市用途开放,目的是让一楼被解释为公共空间的延伸。
AEME is a building located in Guatemala City. It has an open floor plan on the first floor dedicated to commercial use and restaurants, a second floor that combines commerce and offices, and three floors exclusively dedicated to offices. The first floor is connected to the street through a double-height entrance with the purpose of emphasizing the opening towards a friendly urban use, with an aim to allow the first floor to be interpreted as an extension of the public space.

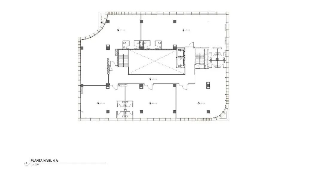
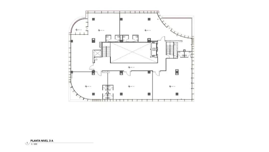
在第五层,有一个供租户使用的露台和四个停车库。其功能围绕着一个中央中庭,为整个建筑提供自然照明。在中庭有两部全景电梯,还有一个由金属和白色大理石组合而成的雕塑支架模块。
On the fifth floor, there is a terrace for tenant use and four parking garages. The functionality revolves around a central atrium that provides natural lighting to the entire building. There are two panoramic elevators in the atrium and a module of sculptural stands built in a combination of metals and white marble.

几位当代视觉艺术家被邀请创作与该建筑建筑有直接关系的合作作品。这些艺术家是Luis González Palma, Andrea Monroy Palacios, Angel Poyón, Alejandro Paz, Gabriel Rodríguez, and Darío Escobar。
Several contemporary visual artists were invited to create collaborations with a direct relationship with the architecture of the building. The artists are Luis González Palma, Andrea Monroy Palacios, Angel Poyón, Alejandro Paz, Gabriel Rodríguez, and Darío Escobar.

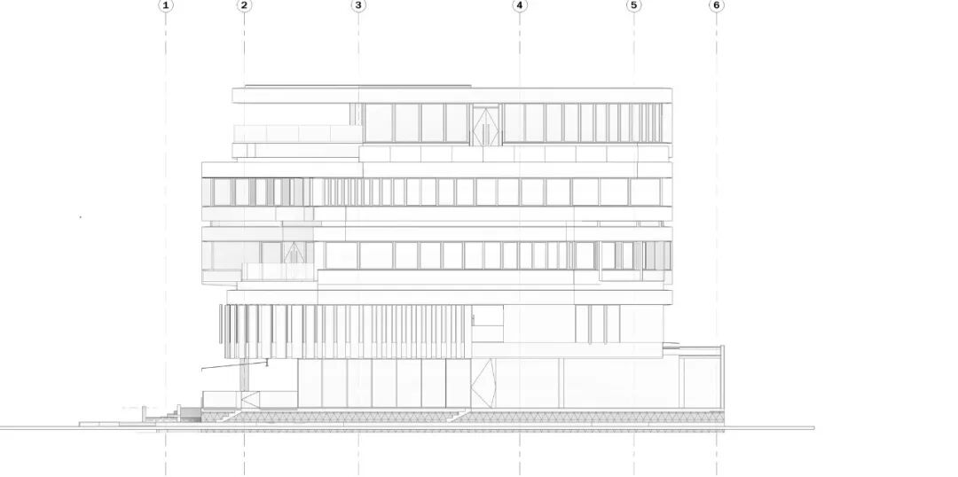
该建筑试图反映时间流逝的基本概念。其几何形状的严格性与通过元素应用的不断运动相混合,这些元素在建筑的不同层面上循环,创造了一个循环的梯度。虽然时间是严谨的,但我们正在寻求以简单的方式打破外墙的形状,但总是诉诸于圆形和精确的几何形状。
The building seeks to reflect the basic concepts of the passage of time. The strictness of its geometry mixed with the constant movement applied through elements (mullions) that circulate the different levels of the building create a cyclical gradient. Although time is rigorous and strict, we're seeking to break the shape of the facades in a simple way, yet always resorting to circular and exact geometries.

建筑的颜色是一种近乎黑色的灰色,旨在寻求一种中性和持久的颜色,反过来突出赋予其外墙、木材和光线以生命的柔和元素。该建筑力图强调透明度和使用自然光作为生命的元素。
The color of the building is an almost black shade of gray, aiming for a neutral and persistent color that in turn highlights the soft elements that give life to its facades, wood, and light. The building seeks to emphasize transparency and the use of natural light as a life-giving element.


















本资料声明:
1.本文为建筑设计技术分析,仅供欣赏学习。
2.本资料为要约邀请,不视为要约,所有政府、政策信息均来源于官方披露信息,具体以实物、政府主管部门批准文件及买卖双方签订的商品房买卖合同约定为准。如有变化恕不另行通知。
3.因编辑需要,文字和图片无必然联系,仅供读者参考;
推荐一个
专业的地产+建筑平台
每天都有新内容
扫描二维码关注

微信公众号“搜建筑”(ID:sjz9999)
合作、宣传、投稿
联系微信:soujianzhu006