▲ 更多精品,关注“搜建筑”

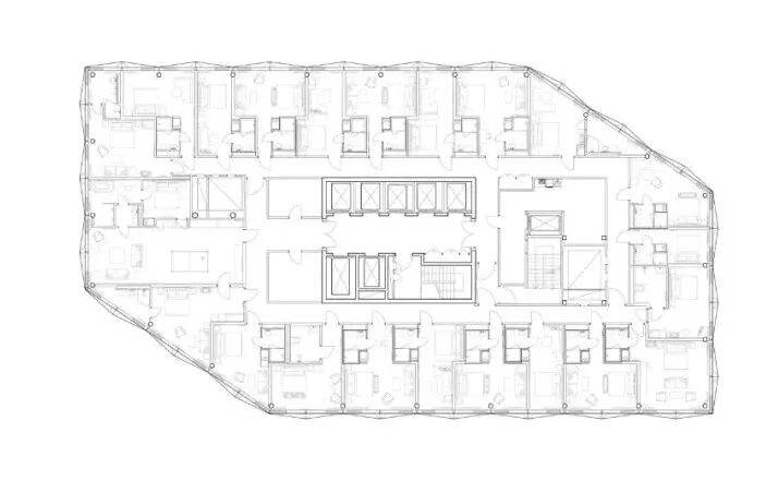
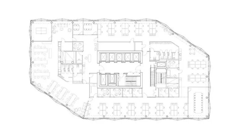
Kineum acquires its name from the Greek “kinéo” meaning “to set in motion”. The concept – of House in Motion – is founded on the idea of creating a pulse, vitalizing the area, and engaging people. With the seamless combination and interaction of hotel guests, office workers, and spa visitors; Kineum is perceived as always moving and bustling. The building generates day and night traffic flows that promote better connectivity and services to the area. Furthermore, it improves the perception of security in an office district that would otherwise seem dormant after working hours.
Constructed with prefabricated concrete slabs and steel frames, the building’s structure holds a cast-in-place concrete core that provides stability and contains the vertical circulation and installations. This free-plan solution allows for the different types of programs to be easily accommodated and adapted. The surrounding façade is built with prefabricated glass and aluminum X-modules. Its design, reminiscent of a fishing net, is intended to celebrate and embrace the traditions of Gothenburg and its close connection to the sea.

Using BREEAM level Excellent as a guide, the project organization is heavily focused on the optimization of the building's energy use. Kineum combines its unique façade design with high-performance glazing to minimize the building’s need for cooling and optimize sun blockage. In this way, the energy performance of the building is 25% better than national requirements.

In addition, to reduce the climate impact, the cement content in the concrete was reduced. Resulting in a carbon dioxide saving of 200 tons and a climate saving of 39% compared to the use of traditional concrete. Kineum is a celebration of movement and human encounters. It answers the post-pandemic challenge of creating attractive workplaces at a time when people are not expected to work in a conventional office environment. Generating an organic exchange between the city and its people, Kineum is a place where people want to work, meet and stay.



本资料声明:
1.本文为建筑设计技术分析,仅供欣赏学习。
2.本资料为要约邀请,不视为要约,所有政府、政策信息均来源于官方披露信息,具体以实物、政府主管部门批准文件及买卖双方签订的商品房买卖合同约定为准。如有变化恕不另行通知。
3.因编辑需要,文字和图片无必然联系,仅供读者参考;
推荐一个
专业的地产+建筑平台
每天都有新内容
扫描二维码关注

微信公众号“搜建筑”(ID:sjz9999)
合作、宣传、投稿
联系微信:soujianzhu006
3月2-3号
杭州·精品楼盘考察活动
▼点击下图,了解报名


