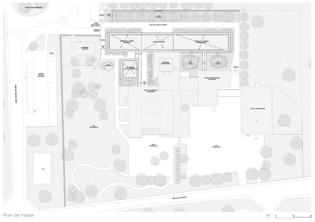
Grandes Terres 小学位于 Conflans-Sainte-Honorine 东北部的一个住宅区。
The Grandes Terres primary school is located in a residential area in the northeast of Conflans-Sainte-Honorine.
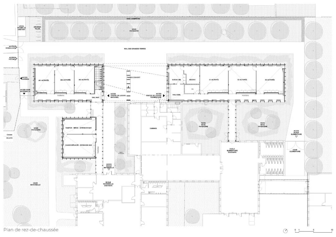
该项目包括重建一个娱乐中心和扩建 Grandes Terres 小学。
The project includes the reconstruction of a recreation center and the extension of the Grandes Terres primary school.
该项目的目标是为场地提供都市风格,并为学校提供新的外观。沿着主立面,一条与树木接壤的轴线重新定义了学校的所有入口。
The objective of the project was giving an urbanity to the site and offering a new façade to the school. Along the main façade an axis bordered with trees redefines all the entrances to the school.
新建筑通过穿过景观露台的全玻璃流通将学校与娱乐中心连接起来。
The new building connects the school to the recreation center through fully glazed circulations that cross the landscaped patios.
这种空间组织确保了小学各组成部分之间的功能自治。该组织允许限制学校社区占用的工地的滋扰。
This spatial organization ensures the functional autonomy between the components of the primary school. That organization permitted to limit the nuisances of the worksite in a site occupied by the school community.
环保建筑,采用木结构。这种生物基材料以各种形式使用:木屋顶、木框架墙、落叶松覆层、开口和内部云杉木制品。外壳的水密性已经过仔细研究和实施,以限制能量损失。
The environmental construction, is made of wooden structure. That biobased material is used in all its forms: timber roof, wood frame wall, larch cladding, openings, and interior spruce woodwork. The watertightness of the envelope has been carefully studied and implemented to limit energy loss.
涂有锌的折纸屋顶似乎漂浮在现有场地之上。屋顶的斜线为这个地方提供了一种柔和的氛围。
The origami roof, coated with zinc, seems to float above the existing site. The oblique lines of the roof offer a softened atmosphere to the place.
沐浴在自然光中的室内空间总是与花园联系在一起。木材为儿童专用空间带来了温暖的氛围。它在内部和外部之间建立了强有力的关系,以增加建筑与景观场地的融合。
The interior spaces, bathed in natural light, are always in relation with the gardens. The wood brings a warm ambiance to those spaces dedicated to children. It establishes a strong relationship between interior and exterior to increase the integration of the building in its landscape site.
本资料声明:
1.本文为建筑设计技术分析,仅供欣赏学习。
2.本资料为要约邀请,不视为要约,所有政府、政策信息均来源于官方披露信息,具体以实物、政府主管部门批准文件及买卖双方签订的商品房买卖合同约定为准。如有变化恕不另行通知。
3.因编辑需要,文字和图片无必然联系,仅供读者参考;
推荐一个
专业的地产+建筑平台
每天都有新内容
扫描二维码关注

微信公众号“搜建筑”(ID:sjz9999)
合作、宣传、投稿
联系微信:soujianzhu006
▼ 扫描二维码咨询+观看