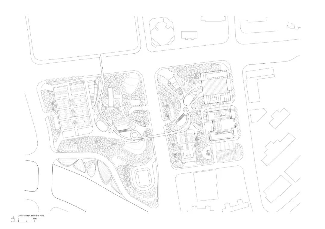
Foster+Partners已经完成了上海新近重建的苏河湾地区的第一座办公大楼。华润置地苏河中心是苏河湾东部城市综合体的核心,为这个以住宅为主的区域引入了丰富的功能组合。这座200米高、42层高的标志性建筑是该市将发展引向东部地区的愿景的一部分。
Foster + Partners has completed the first office tower in the newly regenerated Suhewan area of Shanghai. The Suhe Centre for China Resources Land forms the centerpiece of the Suhewan East Urban Complex, which introduces a rich mix of functions to the predominantly residential area. The 200-meter, 42-story signature tower is part of the city’s vision to draw development towards the eastern quarter.
苏河中心获得了LEED白金认证,并获得了绿色建筑二星评级。这要归功于全面的可持续发展战略,包括回收雨水用于灌溉,优化室内环境和空气质量监测的智能系统,自行车停车场和充电空间。
The Suhe Centre has obtained LEED Platinum certification and has a Green Building 2 Star rating. This is due to a comprehensive sustainability strategy which includes recycling rainwater for irrigation, intelligent systems for optimizing the indoor environment and air quality monitoring, bicycle parking, and charging spaces.
该建筑位于一个新的城市公共绿地和上海苏河中心MixC旁边,与10号线天潼路地铁站有着良好的连接,成为为该地区带来人口和新企业的催化剂。塔楼的表达结构借鉴了历史上浙江路桥和附近仓库建筑的工业美学。塔楼的深色玻璃减少了反射性眩光,并与不锈钢结构框架形成对比,不锈钢结构框架被拉离角落,使视野最大化。
The building is situated alongside a new urban public green area and Shanghai Suhe Centre MixC, with excellent connections to Line 10 Tiantong Road metro station, acting as a catalyst for bringing people and new businesses to the area. The expressed structure of the tower draws on the industrial aesthetic of the historical Zhejiang Road Bridge and nearby warehouse buildings. The tower’s dark glazing reduces reflective glare and contrasts with the stainless-steel structural frame, which has been pulled away from the corners to maximize views.
塔楼大厅内起伏的墙板在视觉上拉长了11米高的大厅空间,为大楼的住户和访客创造了一种宏伟的抵达感。日光透过入口顶棚上方的百叶窗,在墙壁和地板上产生舞动的影子。一个独特的接待台印有苏河的历史地图,以纪念该地的历史。
Undulating wall panels inside the Tower lobby visually elongate the 11-meter-tall lobby space, creating a grand sense of arrival for the building’s occupants and visitors. Daylight filters through louvers above the entrance canopy to produce dancing shadows across the walls and floor. A unique reception desk is imprinted with a historic map of the Suhe River, to commemorate the history of the site.
塔楼的低层可以看到西边的公园。当大楼高于周围的低层住宅结构时,它就会打开令人惊叹的360度全景。塔楼的每个角落都是一个全高的玻璃空间,框住了城市的独特景观。
The lower levels of the tower capture views of the park to the west. As the building rises above the surrounding low-rise residential fabric it opens up to stunning 360-degree panoramic views. Every corner of the tower is a full-height glass space that frames a unique view of the city.
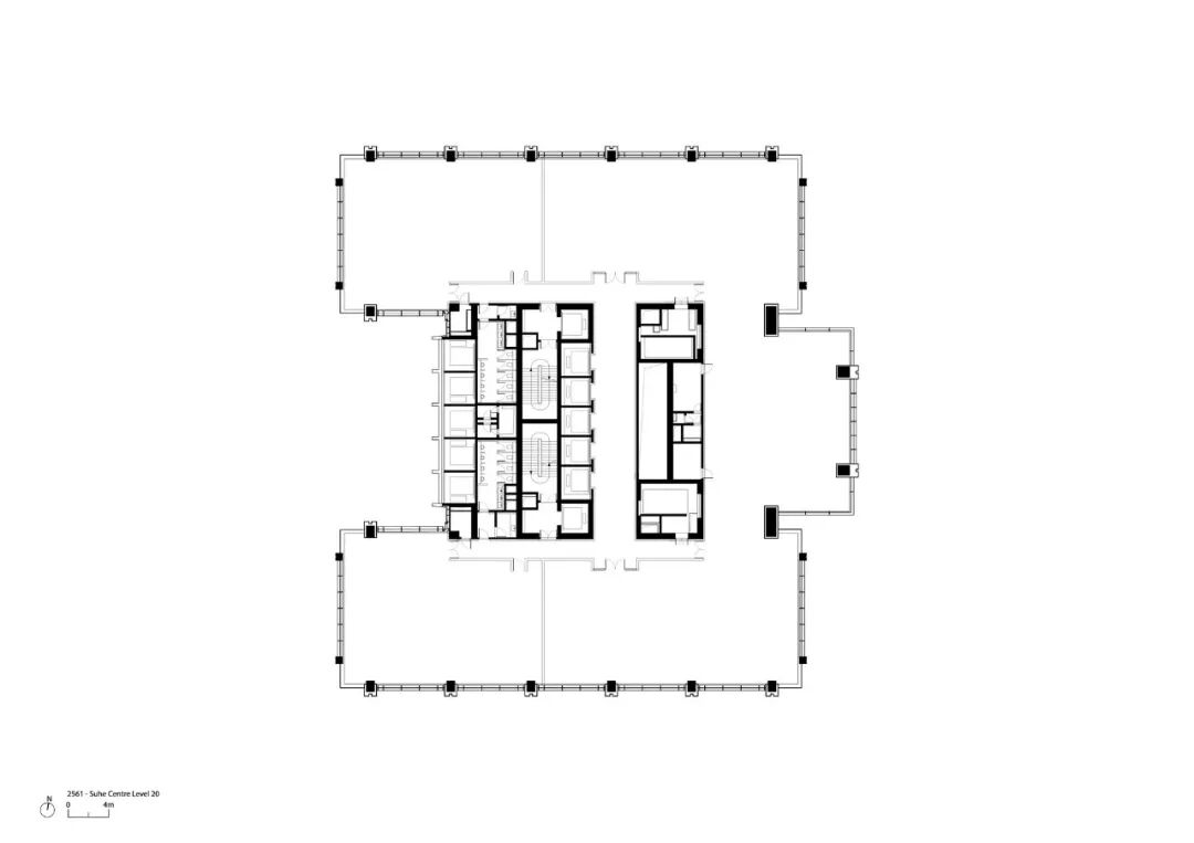
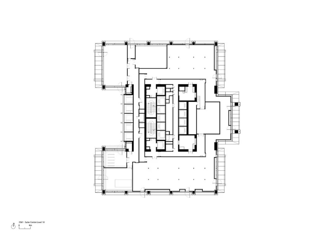
无柱、灵活的办公室楼板被设计为适合各种布局,从单一到多个租户。每一层都有可拆卸的楼板,以便在它们之间进行连接。沿着西面的立面,建筑的中间部分是凹陷的,让自然光照射到办公空间,一排风景电梯位于这个凹陷处,以最大限度地扩大公园和河流的视野。
The column-free, flexible office floorplates have been designed to suit a variety of layouts, from single to multiple tenancies. Every level has detachable floor slabs to allow for connections between them. Along the western façade, the middle section of the building is recessed to allow natural light to flood the office spaces with a row of scenic lifts located within this recess to maximize views of the park and river.
本资料声明:
1.本文为建筑设计技术分析,仅供欣赏学习。
2.本资料为要约邀请,不视为要约,所有政府、政策信息均来源于官方披露信息,具体以实物、政府主管部门批准文件及买卖双方签订的商品房买卖合同约定为准。如有变化恕不另行通知。
3.因编辑需要,文字和图片无必然联系,仅供读者参考;
推荐一个
专业的地产+建筑平台
每天都有新内容
扫描二维码关注

微信公众号“搜建筑”(ID:sjz9999)
合作、宣传、投稿
联系微信:soujianzhu006