▲ 更多精品,关注“搜建筑”

在阿姆斯特丹Donker Curtiusstraat和Van Hallstraat的拐角处,Studioninedots对一栋突出的、1964年的办公楼进行了惊人的改造。在新的DC Van Hall中,我们为毕业生和学生引入了工作室住房,这与创意工作场所和小规模的企业家一起为周围的Staatsliedenbuurt社区带来了新的活力。
At the corner of Donker Curtiusstraat and Van Hallstraat in Amsterdam, Studioninedots has created the surprising transformation of a prominent, 1964 office building. In the new DC Van Hall, we introduce studio housing for graduates and students, which together with creative workplaces and small-scale entrepreneurs bring new life to the surrounding Staatsliedenbuurt neighborhood.


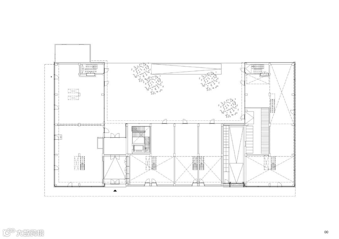
由Ae.G.和J.D.Postma设计的Westerpark工业和贸易大楼,以其办公功能、体量和轻型幕墙外墙,为Kostverlorenvaart沿线的现有工业建筑增加了变化。从那时起,这个U形建筑群与Graficolor和Wodan建筑形成了一个集群,这两座建筑都是战前的工厂,现在都被列入了遗产名录,从街道上看,建筑向内转。由于从技术和能源的角度来看,该建筑的状况很差,需要进行大规模的翻新。
Designed by Ae.G. and J.D. Postma, the Westerpark Industry and Trade building added variation to the existing industrial buildings along Kostverlorenvaart, with its office function, volume, and light curtain wall facades. Since then, the U-shaped complex forms a cluster together with the Graficolor and Wodan buildings – former pre-war factories now both heritage-listed – that turn the building inwards from the street. Due to the bad condition of the building from a technical and energy perspective, an extensive renovation was required.

△ 体量生成
△ 体量生成
△ 体量生成
在设计中,原有的建筑在几个方面仍然可以被识别。我们通过使现有的混凝土结构清晰可见,并与新的外墙和内部的软物质化形成对比,使其恢复了活力。三部分组成的建筑被保留了下来,覆盖在相邻人行道上的原始天棚也被重新创造了出来。金属涂层的外墙元素做出了一个现代的姿态,但又巧妙地反映了工业的过去。
In the design, the original building is still recognizable in several ways. We revived the existing concrete structure by making it visible and contrasting it with both the new facade and the soft materialization of the interior. The three-part building composition has been preserved, and the original canopy covering the adjacent pavements has also been recreated. The metal, coated facade elements make a contemporary gesture, yet subtly reflect the industrial past.

△ 剖面图
△ 剖面图
在体量核心的原石质停车场的位置上,现在有一个供居民和邻居使用的绿色空间。底部的餐厅在这一侧也有一个露台。过去面向街道的商店窗户已经被新的落地玻璃墙重新诠释。
A green space for residents and neighbors now exists on the site of the original stony car park at the volume's core. The restaurant at the base also has a terrace on this side. The shop windows that used to face the street have been reinterpreted with new floor-to-ceiling glass walls.

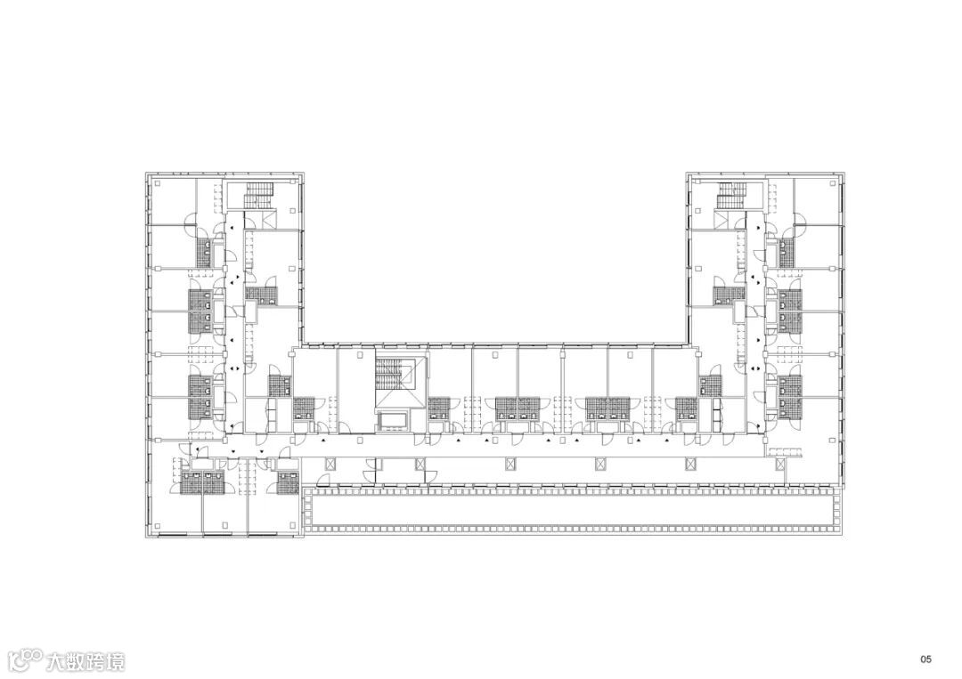
混凝土柱、地板和天花板为新的内部走廊、工作室和共享空间增添了特色。原始的、未抛光的混凝土与集体空间和住房中的柔和色调相得益彰。通过线条和图案的管状照明,我们使入口和楼梯间的空间在内部和外部都能被识别。
The concrete columns, floors, and ceilings add character to the new internal corridors, studios, and shared spaces. The raw, unpolished concrete is complemented by a soft color palette in the collective space and housing. With lines and patterns of tube lighting, we made the entrances and stairwell spaces recognizable both inside and outside.

DC Van Hall新的深色外墙的意义是两方面的。该建筑现在与周围的砖砌建筑在体量上更加一致。然而,与此同时,我们又带回了与砖块外墙的对比,在改造之前,砖块外墙赋予了建筑自主的特性。新公寓的配置可以从外墙元素的交错节奏中感受到。金属元素在日光的影响下颜色各异,使建筑在一天中呈现出变化。网格和窗户朝向角落的加宽创造了一个移位的立面节奏,为DC Van Hall在Staatsliedenbuurt街区提供了其独特的轮廓。
The significance of DC Van Hall's new, darker facade is two-sided. The building aligns more closely now with the surrounding brick buildings in terms of mass. Yet, simultaneously we bring back the contrast with the brick facades that gave the building its autonomous character before the transformation. The configuration of the new apartments is perceptible in the staggered rhythm of the facade elements. The metal elements vary in color under the influence of daylight, giving the building a changing presence throughout the day. The widening of the grid and windows towards the corner creates a shifted facade rhythm, providing DC Van Hall with its distinctive profile in the Staatsliedenbuurt neighborhood.
△ 示意图
△ 示意图
本资料声明:
1.本文为建筑设计技术分析,仅供欣赏学习。
2.本资料为要约邀请,不视为要约,所有政府、政策信息均来源于官方披露信息,具体以实物、政府主管部门批准文件及买卖双方签订的商品房买卖合同约定为准。如有变化恕不另行通知。
3.因编辑需要,文字和图片无必然联系,仅供读者参考;
推荐一个
专业的地产+建筑平台
每天都有新内容
扫描二维码关注

微信公众号“搜建筑”(ID:sjz9999)
合作、宣传、投稿
联系微信:soujianzhu006