Between Islands Brygge, the Port of Copenhagen, and Amager Commons, the School on Islands Brygge is built for middle school pupils, with a special focus on diet and movement. The school's special focus enables pupils to relate theoretical teaching with physical, sensory, and experience-based learning. This type of learning has given shape to New Islands Brygge School.



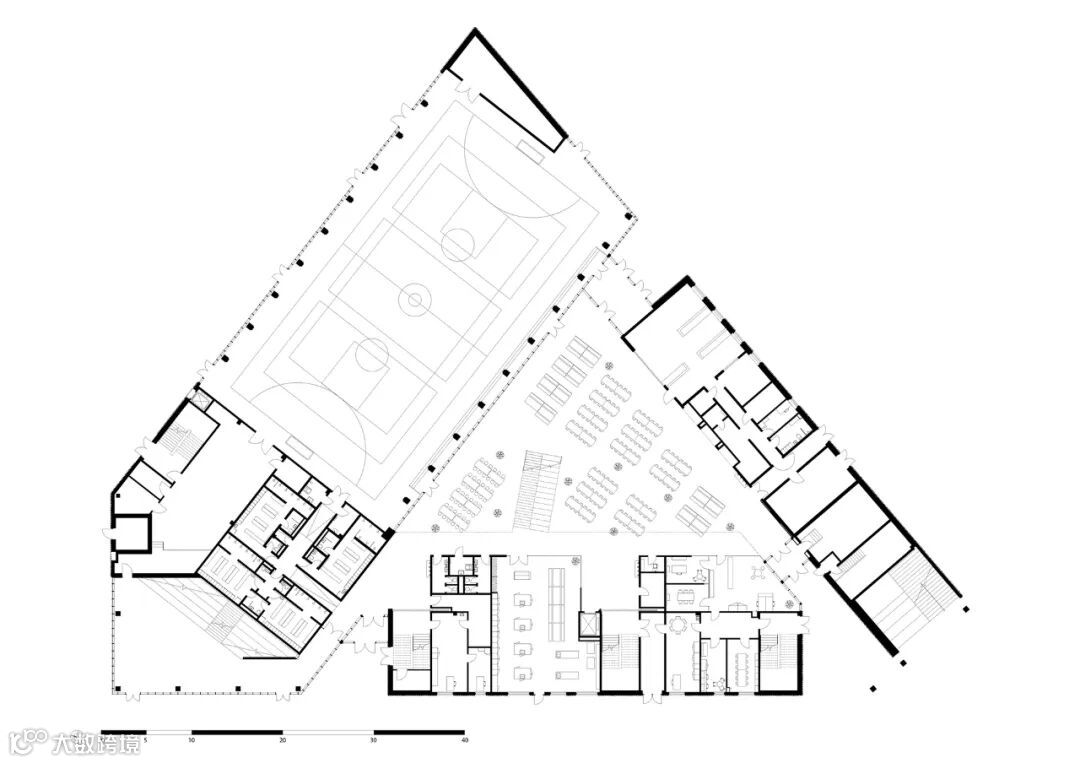
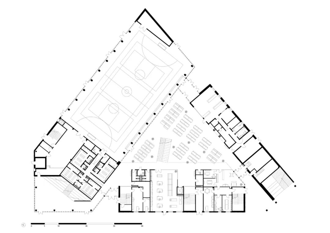
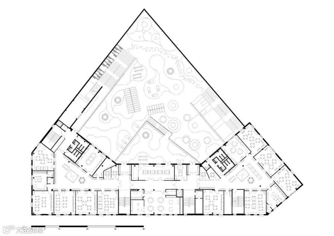
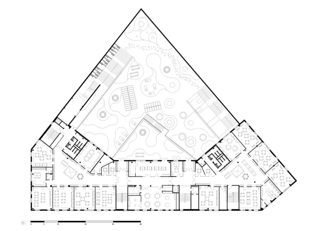
The building takes its triangular shape from the adjacent city, port, and commons, which each serves as inspiration for the choice of materials and colors.


由于食物是学校特征的一个关键因素,因此餐厅是中心房间。双层高顶的餐厅不仅是食堂,也是连接学校所有功能的枢纽。这使得食堂成为学生们可以在学校众多活动中聚会的地方。
Since food is a key element of the school's identity, the dining hall is the central room. The double-high-ceilinged dining hall is not just the canteen, but also the hub which interconnects all of the school's functions. This makes the dining hall the gathering point where pupils can meet across the school's many activities.
Since movement is another focus area for the school, it is important that the school's architecture stimulates physical activity and play. This is achieved in particular through the building's dynamic spiraling design which, with a staircase motif, issues an invitation up to the school's active rooftop area. The roof landscape gives access to several of the school's functions so that pupils can take a fun and active shortcut across the roof. The top part of the roof is the sports area, with ample opportunity for physical activity on the running track, in the parkour area, or in the enclosed ball pitch.
The school's interior and outdoor spaces are designed to be in close contact with each other. Each class, therefore, has direct access to the rooftop landscape, while the school's natural science area is connected to a rooftop zone with a biology garden, a hothouse for physics and chemistry, and gardens that are used in cookery lessons.
项目图纸

平面图

平面图

平面图

平面图

平面图

立面图
立面图

立面图

剖面图

剖面图

示意图
项目信息
建筑师:C.F. Møller, TREDJE NATUR
地点:丹麦
面积:10000 m²
年份:2021
摄影:Adam Mørk, Julian Weyer
本资料声明:
1.本文为建筑设计技术分析,仅供欣赏学习。
2.本资料为要约邀请,不视为要约,所有政府、政策信息均来源于官方披露信息,具体以实物、政府主管部门批准文件及买卖双方签订的商品房买卖合同约定为准。如有变化恕不另行通知。
3.因编辑需要,文字和图片无必然联系,仅供读者参考;
新加坡·精品项目考察
推荐一个
专业的地产+建筑平台
每天都有新内容
扫描二维码关注

微信公众号“搜建筑”(ID:sjz9999)
合作、宣传、投稿
联系微信:soujianzhu006


