▲ 更多精品,关注“搜建筑”
市场主流—— 140㎡面积段户型
市场主流—— 160㎡面积段户型
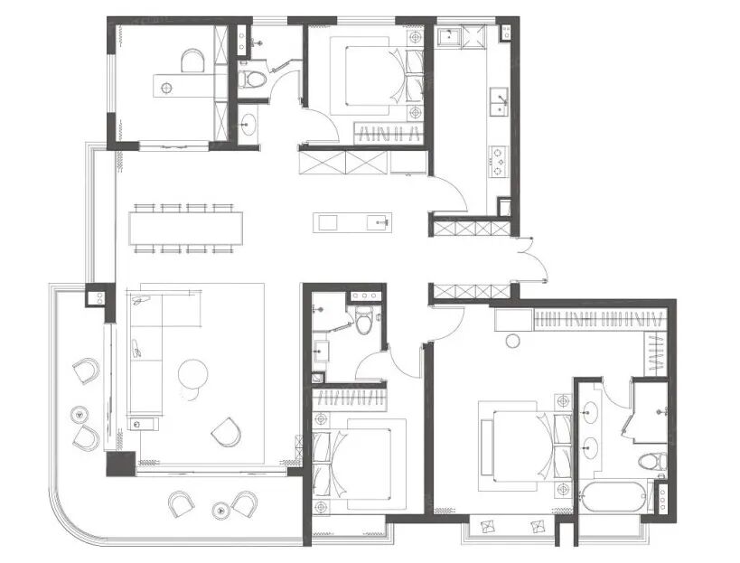
万科创新户型:140㎡面积段
1
大面宽 大格局
户型新“享”法
房子不仅仅只是一个居所,更是承载幸福生活的载体。一个好房子的价值不仅在于居住空间的大小,更多的是空间的舒适度。
大面宽设计可以加大屋内的采光和通风,舒适度更强、利用率更高,以大面宽带来大宽厅、大宽境的产品力革新。
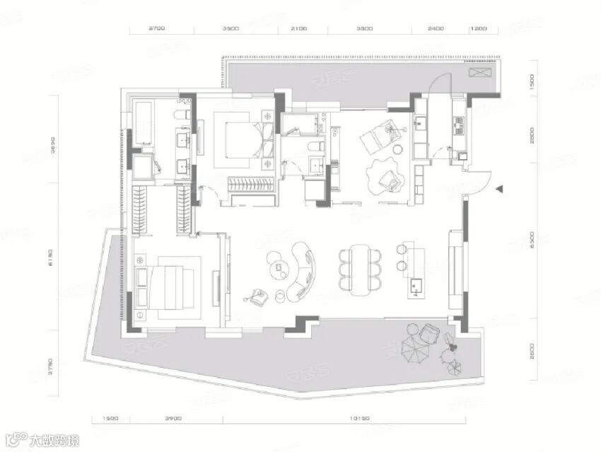
重庆阳光城·天澜道11号建筑面积约182㎡户型,南向开间达到约17.6米。

阳光城 · 天澜道11号182㎡户型图

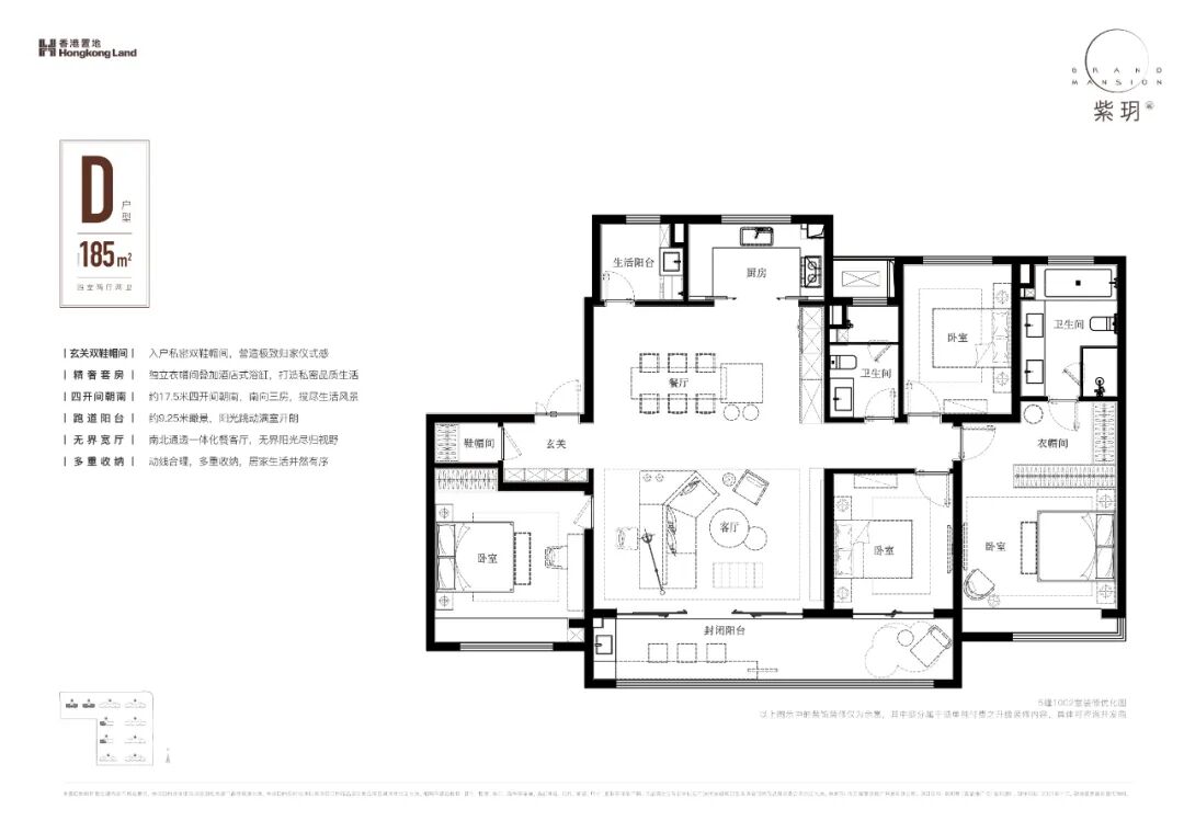
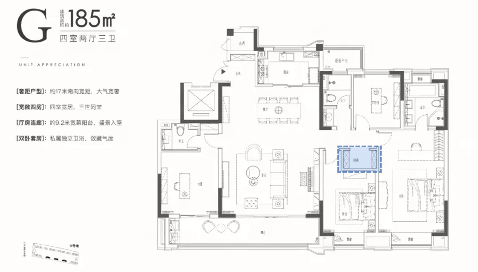
香港置地·紫玥建面约185㎡的户型
重庆首创天阅嘉陵建筑面积约188㎡的户型整户有约16.7m采光面宽,多功能厅设计,生活更加丰富多彩。长约10m,面积约18㎡的景观阳台,全明采光,实在是太诱人了。关注经典人居

重庆首创天阅嘉陵约188㎡户型

建筑面积约188㎡大平层样板间 实景图

宁波绿城·新桂沁澜约182㎡户型
2
场景革新
刻画多元场景,给足情感交流空间
豪宅,不仅是面积的更加,更关键的是生活场景的多元化营造。
客厅+1空间的打造,实现更丰富生活场景的打造。户型空间不再只是承载日常生活的居所,更在潜移默化中契合当代生活方式和未来的居住需求。
①、超尺度横厅
横厅的优势不仅在于空间感更强,超宽尺度,更是营造出一种尊贵奢华的人居环境、大宅的风范。关注经典人居
南京颐和源璟建面约188㎡户型,四室两三卫,多功能客厅落地窗设计,大横向开间达到了约6.8米,约10米的超大开间南向双阳台。


济南龙湖·天奕二期实景图
②、超视野边厅
边厅不仅实现真正的动静分离,观景效果更好,一览无遗的绝佳视野。

常州中建朗诗龍宸壹號约188㎡户型

成都天恒傲云天府约189㎡户型
南京锦云台建筑面积约189㎡户型,边厅设计,推门见景,约12米弧形转角阳台,270°视野,优越采光面;餐客厅一体化,搭配西厨岛台;三卫设计全家互不干扰,客卫干湿分离;主卧豪华套房,配独立衣帽间,主卫四件套,宽敞双台盆设计。

南京锦云台约189㎡户型
成都德信弘阳湖畔云璟,建筑面积约189㎡户型,10余米长L型全观景通透阳台弧度分明,实现了客厅三面采光,柱的设计大大增加了厅的景观视野,双套房设计也能照顾到更多家庭成员的居住体验。关注经典人居
成都德信弘阳湖畔云璟 意境图
成都德信弘阳湖畔云璟 效果图
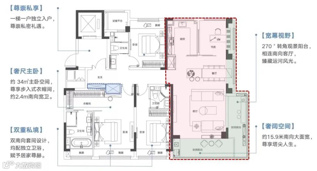
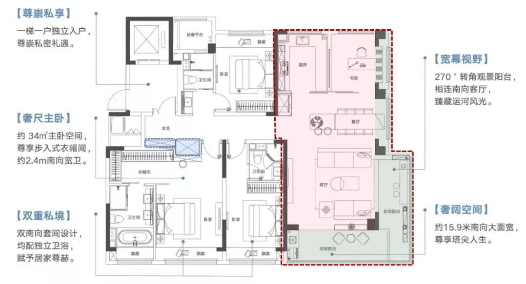
扬州绿城云筑建筑面积约183㎡户型,四室两厅三卫户型,整体空间做到了完全动静分离。关注经典人居
动区,客厅270°的转角阳台,可作为室内的功能拓展区,健身、绘画、音乐,业主可以随心定义。
而这个户型整个东面的窗地比,也令人感到不可思议,不仅阳台视角全开放,就连餐桌边、书房侧面,都毫不吝啬地开了窗,视线稍一偏移,窗外大运河景观跃入眼帘。

扬州绿城云筑建筑面积约183㎡户型
再看静区,南向双套房,北向公卫紧靠北侧次卧,3间卧室均衡配置。
主卧采用方形设计,全朝阳面的主人享受,宽敞主卫,还是双台盆,功能与体验一齐拉满。
③、交互式西厨岛台亲厅
厨房岛台的应用,为家庭营造更温暖的生活场景,当你在厨房准备晚饭时,就能一瞥正在客厅玩耍的宝宝,或者和坐在沙发上的家人亲切交谈,为日常的生活场景营造更多元的美好。在提升空间利用率和舒心度的同时,也让家人始终都能处于同一视野,重新定义了家庭的生活主场。

常州万科·新都会|青藤郡 约189㎡户型图
苏州华侨城龙湖·启元建筑面积约185㎡户型,四室两厅三卫,接近五开间朝南,大横厅、大阳台、大飘窗、大套房、入户独立玄关。关注经典人居
南京锦云台建筑面积约189㎡横厅户型,U型厨房搭配西厨岛台;大面宽短进深,南北通透,南向五开间约16米,约9.5米敞阔双阳台。


常州碧桂园新月时光约185㎡户型

无锡江阴旭辉·公元约185㎡户型
南向面宽约13.1m的大景观阳台 实景
济南绿地·御山台建面约189平方大平层,一梯一户独有的电梯厅,有效保证生活私密与隐蔽性,约19米270°拐角大阳台,约16.5米南向四面宽,阳光可以毫无阻碍的照拂每处角落。

济南绿地·御山台 约185㎡户型
重庆万华麓悦江城建筑面积约180㎡户型,三房两厅两卫,270°双阳台设计,超大阳台面积,前后贯通,视野开阔,前后通风采光效果更佳,可变多功能房间设计。

万华麓悦江城约180㎡户型图
3
居住空间升级
“居住需求”转向“舒适需求”
卧室是日常所处最长的空间,每一处细节都应以最舒适的状态迎接主人的回归。而套卧设计,不管是空间尺度还是空间配套,都有最打动人的细节。
①、双套房设计,各自都拥有私密性
南京建发珺和府建面约185㎡户型,四室两厅三卫,南向主卧是套间设计,空间宽阔,开间4.2m,加上卫生间约30㎡。


②、私享性更高、功能更全的豪华主卧
重庆首创天阅嘉陵建筑面积约188㎡的户型,主卧套房颇具抢眼,书房、步入式衣帽间,卫浴空间一应俱全,还有超大享受的L型转角飘窗。

重庆首创天阅嘉陵约188㎡户型
宁波万科·朗拾建筑面积约188㎡户型,主卧超大衣帽间,分离式主卫,最大一个亮点是创新地做了270度的景观飘窗,尺度相当震撼,极大愉悦了主人的居住体验。

宁波万科·朗拾约188㎡户型
4
精细化设计,生活功能更强大
优化生活方式,改善人群一直有着自己的高标准要求,单单是面积大已经完全不能满足。
如何将空间尺度重新定义?一个优化的空间,更能给生活妥帖照顾。
①、进门玄关,不仅给生活面子,还给了里子
南京金基望樾府建筑面积约185㎡户型,入口玄关+家政间设计,中西厨、U型明亮中厨设计,洗、切、炒动线游刃有余,开放式西厨岛台,简餐轻食、休闲阅读空间,给予现代时尚人居精致的仪式感及家的归属感。

南京金基望樾府约185㎡户型

南京金基望樾府 实景图
南向四开间设计,约7米开放式宽境横厅,拉长升了整个空间的尺度感与韵律感。

南京金基望樾府 实景图
南京江心印建筑面积约180㎡户型,四房两厅三卫设计,入户超大玄关,功能和仪式感兼具。四开间朝南+LDK一体化的餐客厅+约5.8米超大开间的会客厅+南向长约8.9米的超大阳台,整个户型的尺度得到更大化的放大,空间感拉满。
双套房设计,主卧配备大飘窗+衣帽间,卫生间双台盆设计,还有私人大浴缸;次卧卫生间都能直面阳光,非常适合做老人房或者保姆房。关注经典人居

南京江心印建筑面积约180㎡户型

南京江心印 实景图
②、双动线入户,人性化贴心考量

武汉仁恒滨江园约185㎡户型

金地北京壹街区约186㎡户型
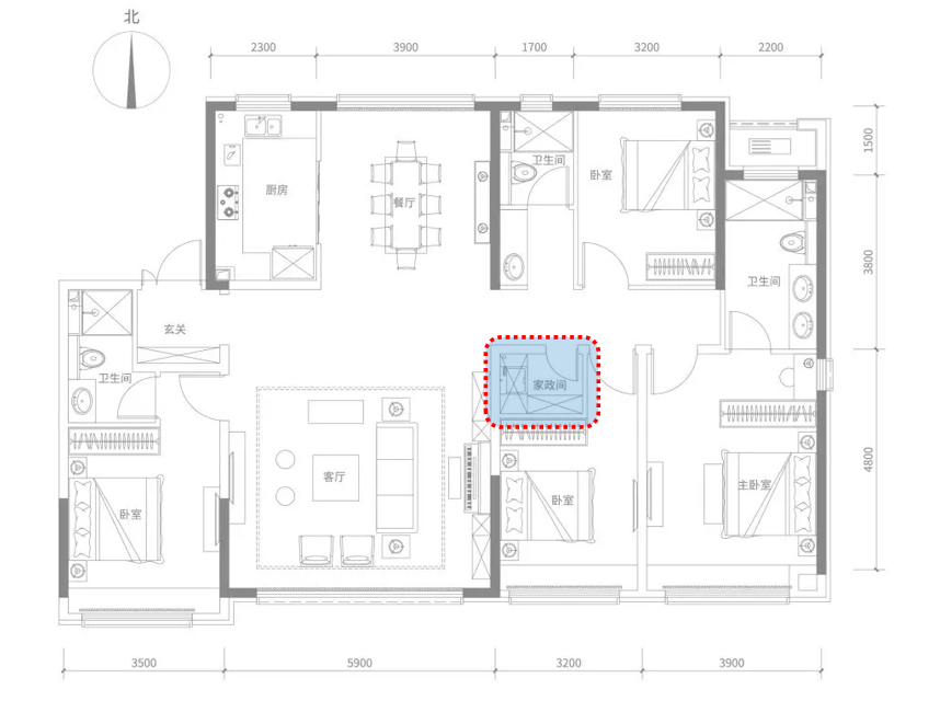
南通中海翠湖溪岸建筑面积约185㎡户型,独立储藏间,收纳加倍。

南通中海翠湖溪岸约185㎡户型
结语:
是什么让生活变得更丰盛?是更好的产品。
好的产品,敬畏市场,敬畏需求。各大地产努力在通对生活场景的深层变革,让房子变得更聪明,同时也让生活变得更高级。
延伸阅读:
一层一户, 洋房+高层+顶层……户型布局特点
一层一户,230-760㎡面积段大平层
郑州·精品项目考察
本资料声明:
1.本文为建筑设计技术分析,仅供欣赏学习。
2.本资料为要约邀请,不视为要约,所有政府、政策信息均来源于官方披露信息,具体以实物、政府主管部门批准文件及买卖双方签订的商品房买卖合同约定为准。如有变化恕不另行通知。
3.因编辑需要,文字和图片无必然联系,仅供读者参考;
推荐一个
专业的地产+建筑平台
每天都有新内容
扫描二维码关注

微信公众号“搜建筑”(ID:sjz9999)
合作、宣传、投稿
联系微信:soujianzhu006



