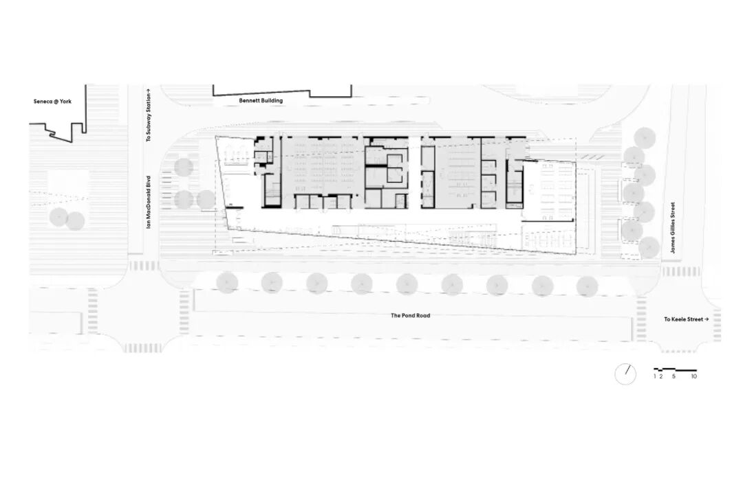
York University’s School of Continuing Studies (SCS) was dispersed across a series of temporary accommodations-a critical shortcoming for the School’s students and faculty. In response, the University articulated the need for a dedicated building to assert the School’s identity and culture, define a campus gateway, and meet ambitious sustainability targets.
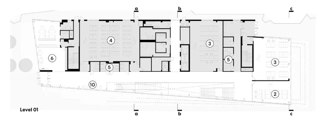
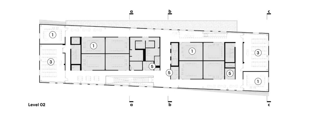
The bold twisting form creates a new home for the School and defines the south edge of the campus and shapes a new pedestrian plaza. The building accommodates highly flexible learning environments, social and collaboration spaces, and offices for students and faculty in a space that is lofty, and bright promoting community, culture, and identity for SCS.
At the core of the project are the goals of reducing embodied carbon and improving occupant health. The design explores the potential for Net-Zero Energy and Net-Zero Carbon and is designed to achieve LEED Gold certification. Strategies include a building envelope designed using Passive House strategies, direct outdoor air ventilation, and active chilled beams throughout. The use of Passive House design strategies combined with highly efficient HVAC and energy systems reduce energy loads greatly, minimizing the extent of the renewable energy production needed to aid the project in achieving the Net-Zero Energy target.
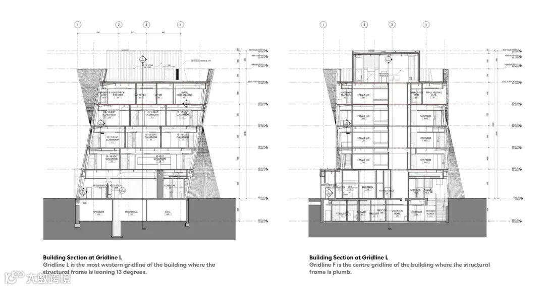
The design approach formally departs from the surrounding built fabric with a strict economy of means. With high energy efficiency and occupant comfort targets, the budgetary premium associated with the twisting form needed to be minimized. The design, in response, deploys a rigorous geometry that optimizes the repetition of standard, off-the-shelf components. Thus, the building’s dynamic form is generated through simple geometric logic, with rectangular floor plates rotated around a common centroid.

The rotation of the overall form introduces a two-way curve into the north and south facades. As the building rotates about its centroid, a triangulated panel pattern takes advantage of regular and biaxial symmetry to create zones of repeat panel shapes on both the long and short facades of the building. Through this simple twisting gesture, the brief of creating a striking new home for the School of Continuing Studies, which promotes the combined agendas of energy efficiency, occupant well-being, and campus building, is accomplished.


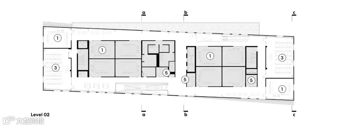
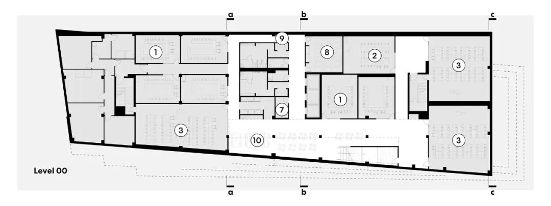
平面图

平面图

平面图

平面图

剖面图

剖面图

剖面图

剖面图

示意图

示意图

示意图

轴测分析图

模型图

项目信息
建筑师:Perkins&Will
地点:加拿大
面积:11200 m²
年份:2022
摄影:Doublespace Photography, Tom Arban Photography
青岛·精品项目考察
本资料声明:
1.本文为建筑设计技术分析,仅供欣赏学习。
2.本资料为要约邀请,不视为要约,所有政府、政策信息均来源于官方披露信息,具体以实物、政府主管部门批准文件及买卖双方签订的商品房买卖合同约定为准。如有变化恕不另行通知。
3.因编辑需要,文字和图片无必然联系,仅供读者参考;
推荐一个
专业的地产+建筑平台
每天都有新内容
扫描二维码关注

微信公众号“搜建筑”(ID:sjz9999)
合作、宣传、投稿
联系微信:soujianzhu006


