西北农林科技大学北校区图书馆

As a new big building in the old campus, the design fully considered the relationship with the axis of the campus and the surrounding landscape. Building in a peaceful, simple, open form, to the campus. We try to build a campus culture center that integrates study and research, knowledge innovation, and leisure experience.

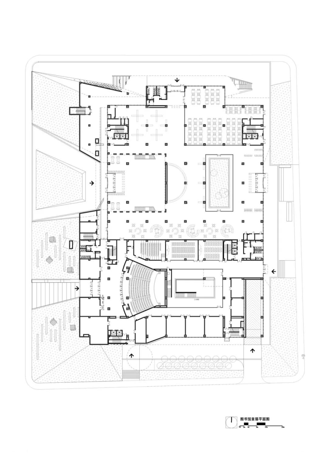
The Ark in the Forest - We designed a slope on the west side of the first floor, echoing the park on the west side of the slope. Create a piece for students to rest, read, activities on the landscape platform. The building is in simple form, like an ark suspended on a grassy slope.

The building facade is designed digitally. GRC curtain wall uses four standard-size units, forming a rich facade effect. The curtain wall unit is made of a large GRC prefabricated panel, the size of one panel is 4.6 mx1.5 m. GRC plate and windows, thermal insulation, and waterproofing for integrated installation, can quickly complete the external walls. The special vertical texture of the precast plate has different light and shadow effects at different times and in different directions.

These give the building a wealth of detail We used LiTraCon to make the name of the library, at the top of the building in the northwest corner. The LiTraCon name is integrated with the building during the day and has a special lighting effect at night.

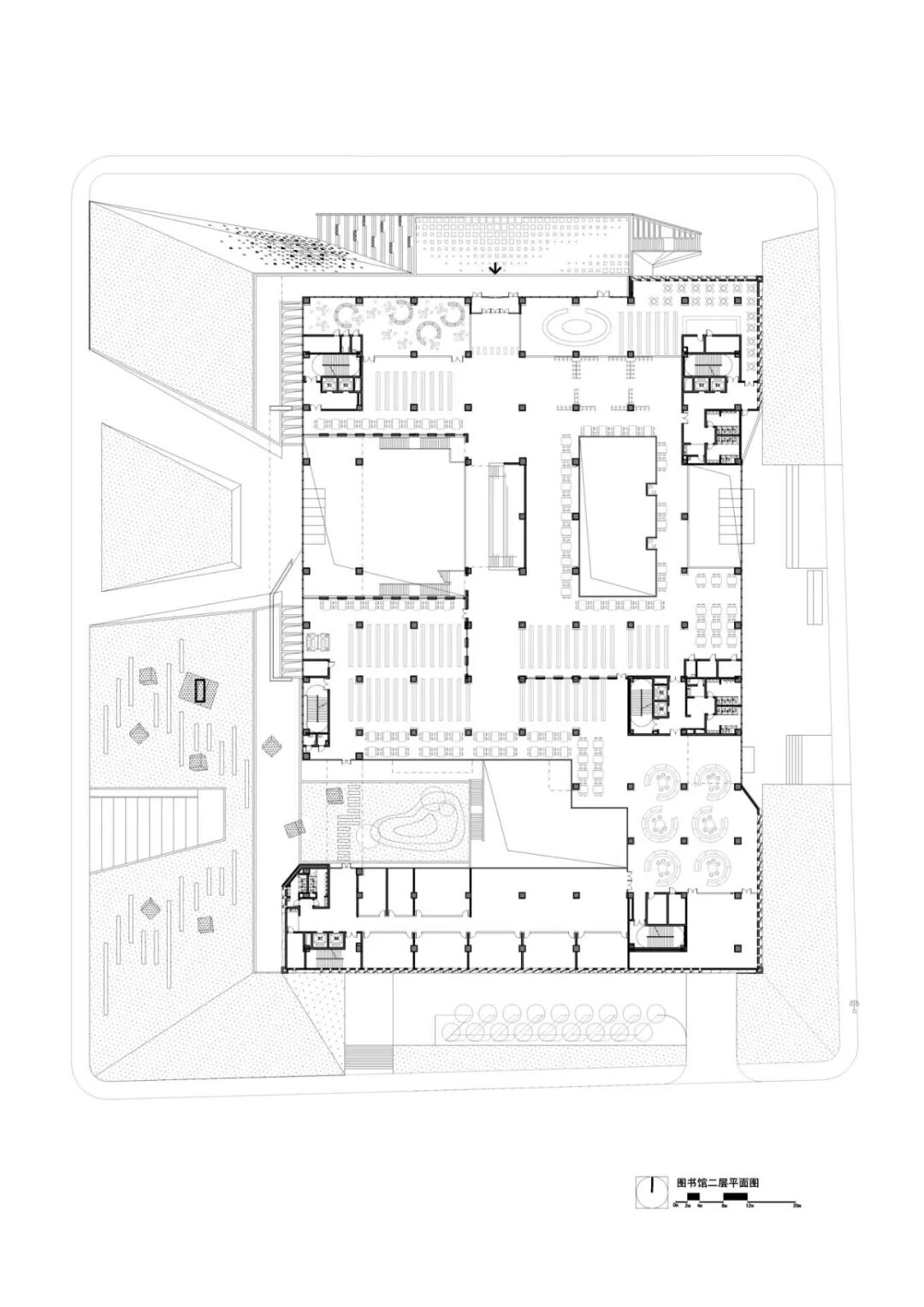
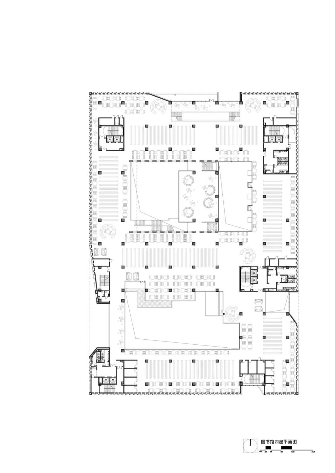
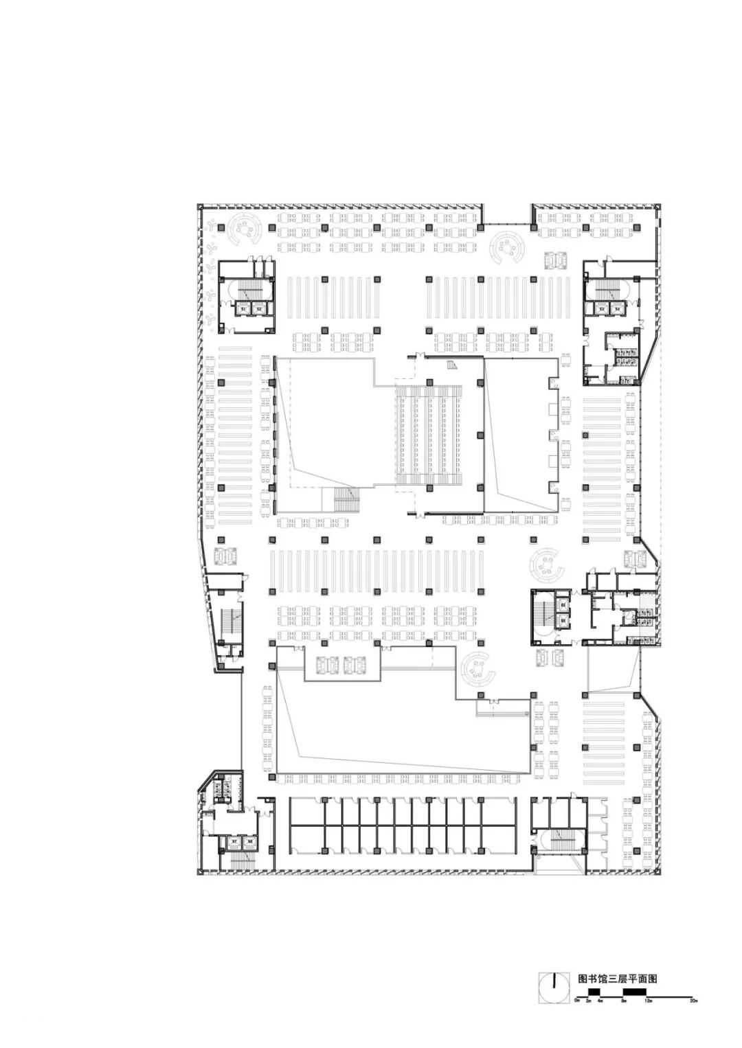
Book mountain - The inspiration for interior design comes from the ancient poem“There is a road in the book mountain. The interior spaces are surrounded by an atrium and two courtyards.

The atrium of the staircase space, bookshelves, and walls, steps into one, to create a multi-functional reading space.

Several staircases were designed between floors to organize a path from the first floor to the top floor. Readers can use these interesting paths to reach the various levels of the reading space.

The atrium skylight uses frosted glass and shade louvers to convert direct sunlight into soft light, creating a comfortable and pleasant reading environment. Structural dampers are exposed as decorative elements on the interior walls.

剖面图
项目信息
本资料声明:
1.本文为建筑设计技术分析,仅供欣赏学习。
2.本资料为要约邀请,不视为要约,所有政府、政策信息均来源于官方披露信息,具体以实物、政府主管部门批准文件及买卖双方签订的商品房买卖合同约定为准。如有变化恕不另行通知。
3.因编辑需要,文字和图片无必然联系,仅供读者参考;
厦门·精品项目考察
《厦门国际石材展》+《设计高峰论坛》
推荐一个
专业的地产+建筑平台
每天都有新内容
扫描二维码关注

微信公众号“搜建筑”(ID:sjz9999)
合作、宣传、投稿
联系微信:soujianzhu006


