▲ 更多精品,关注“搜建筑”


项目位于天津市河西区新梅江区域,为市场公认的高端改善版块。
用地分为南北两块,东侧紧邻南北绵延3.7公里的中央绿轴,作为绿轴头排的首开地块备受瞩目,于2020年5月被中海竞得。但从2019年开始市场持续走低,紧接着的疫情让市场雪上加霜,项目前景并不乐观。
面对突破困局的命题,天空之镜项目以跳脱常规的全新设计于2021年2月底亮相:
现象级网红豪宅大盘 ,高端居住标杆
打破北方住宅建筑的封闭感官
全铝幕墙,玻璃天幕立面
北方保温体系下营造镜面通透立面形象
6.8m无界宽厅、IMAX全景落地窗
270°弧窗,极致视野
会所级礼遇的超大方厅、大公区
一经出场迅速成为市场热议焦点,以“4w+”单价首开热销,高出同区域竞品近万元。而在随后以降价为常态的疫情周期内,一路逆市上涨,尾盘收官单价“5w+”,成为天津市场当之无愧的高端居住标杆。
▲示范区、样板段、大区不同阶段实景
逐步呈现的园区实景,让设计的价值被看见
“在地产以效率换取利润的模式下,面对规范、成本、工程等多种限制条件,住宅的标准化、同质化成为必然,而北方寒冷的气候条件更加限制了居住建筑的多样性。市场的变革为设计的突破带来了契机,但也提出了更高的要求:我们无法抛开地域性、规范和行业规律去谈创新,那么要如何实现人居建筑新的可能?
天空之镜项目中,我们给出的答案是:立足当下和在地性,回归建筑学本源,从居住者普适性需求和特定场域气质出发,围绕居住建筑内在的空间性和外在的视觉语言,将生活的温度融于日常,打破定式,创造超越天津乃至北方区域原高端居住产品的全新设计谱系。”
——项目总负责人 徐强
01
立面视觉语言的营造
External Of Comprehensive Product Strength
▎VISUAL LANGUAGE ,
IN INSULATION WORK
北方保温体系下,全新的视觉语言营造
北方地区受限于冬季寒冷的气候条件,住宅建筑多以封闭感和强装饰性的风格化效果呈现。除了审美价值的取舍,更多是出于节能的要求,一方面需要控制窗墙比使得实墙面偏大,同时住宅建筑以涂料偏多,装饰性造型细节能够修饰因外墙保温造成的墙体基层不平整问题。
但随着大众设计审美的提升,国际性的极简设计开始被更多人接受。市场的变革,更需要差异化的住宅形象来塑造项目的独特性。
因此我们希望能够跳脱常规,以更加契合绿轴场域气质的弧线元素、轻盈感、通透性为形象特征,与北方常规住宅形象形成反差。同时,以建构直面北方保温体系下的技术难题,以精细化的构造节点与务实的建造逻辑来直面返潮、冷桥、施工难度等方面的实际问题,打造去风格化、构造即装饰的国际性视觉语言,树立项目的标志性。

— — 以建构为基础的视觉语言营造 — —

01. 墙体 WALL
消隐的墙体
HIDDEN WALLS
为打破北方住宅建筑的固有印象,我们希望去除封闭感、营造通透感,因此需要让墙体尽量消隐。
随着建筑技术的进步,窗户隔热性能和密闭性能的大幅提升,更大窗墙比成为现实。除此之外,在合理的结构经济性下将部分横向墙肢转换为异形柱,并通过飘窗形式的调整,将无法缩减的部分隐藏在飘窗之后,从而获得更加纯净的通透感以及开阔的户内视野;剩余无法转换的墙体我们通过外面梭形的铝板造型,实现视觉上的弱化。
▲消隐墙体
减少横向墙肢,梭形造型处理弱化墙体
02. 窗户 WINDOWS
极致的通透
TRANSPARENCY
出于对户内感官和形象审美的高度追求,我们将客厅及阳台窗做了落地窗的设计,并且端户采用了弧形飘窗以获得更广的视野。但高颜值、强体验的设计追求也带来了诸多设计难点。
落地窗
VISUAL LANGUAGE
为了实现落地窗效果,我们需解决住宅上下层间1.2m防火间距和高层防护栏杆的规范要求,为此我们做了不同的措施对比。
第一种,在普通落地窗内增加防火+防护玻璃栏板,但栏板和玻璃之间会形成卫生死角无法清理,同时玻璃栏板需要固定立杆支撑,影响室内效果。
第二种方式,将整个固定扇玻璃都改为了防火玻璃以及钢化夹胶处理,兼顾防火和防护,从而取消室内的防护栏板。看似浪费,但对比第一种防护栏板的额外的金属支撑杆件等综合安装成本,两者成本相差无几。通过对构造措施的优化调整,换来了室内外更极致的观赏体验。
飘窗
BAY WINDOW
在最初的方案设想中,我们希望将上下层飘窗做成统一连续的整体,形成极致的立面观感。但在经过论证后,此种做法存在两个弊端:首先内部土建窗台与窗进出位之间的施工误差难以控制,影响户内精装;其次飘窗空腔部分。在冬天受热不均会使玻璃形成返霜。
为了营造通透的玻璃质感,同时适配北方保温体系,控制完成效果及总体造价。我们最终选用了在飘窗处通过窗墙体系和装饰玻璃窗,搭配梭形金属型材和窗框结合对飘窗挑板进行弱化,实现类幕墙做法,打造简洁纯粹的立面形象。
03. 弧线 CURVE
统一与变化
UNIFICATION AND CHANGE
为了强化与绿轴的联系,我们采用了曲线元素。整体以纯粹的横向曲线,搭配弧形转角玻璃,跳脱居住建筑常规的方盒子形象。
主体线条选用了银灰色铝板搭配古铜色金属勾边,同时在线条端头将古铜色线条进行放大处理以增加线条层次与精致度。这样做一方面能在远人尺度以银灰色阵列的横向线条突显秩序感与纯净感,在近人尺度古铜色的收边则起到丰富肌理感与精致感的作用。
同时对影响幕墙效果的空调室外机和通风口等进行隐蔽处理,实现更纯净的立面效果。
▲横向线条
古铜色线条在端头放大增加线条层次与精致度
▲精致的线条
横向线条远人尺度的纯净感,近人尺度的精致感
▲空调遮蔽
结合空调外机通风测算,对比不同百叶形式和通透率
▲隐藏式通风口
装饰构件与功能构件的结合,通风口通过穿孔铝板进行隐蔽处理
04. 大堂 LOBBBY
幕墙&灯光&标识一体化
INTEGRATION DESIGN
入户大堂作为最能体现建筑品质的位置,在设计当中我们格外重视。除了对灯光、标识进行了整合以外,入口两侧的仿铜材质选用了钢板来代替铝板,用以加强整体造型的平整度,以焊接的方式取消了横向的材料胶缝,竖向胶缝也通过型材进行遮蔽,结合竖向型材格栅,大幅度提升构件精致度。
▲一体化设计
建筑/幕墙/灯光/标识/室内的整体设计
▲效果把控
从选材到呈现全程现场追踪
▲入户大堂
雨棚与基座的横向铝板腰线整体设计
05. 材料 MATERIALS
成本与效果的平衡
BALANCING COST AND EFFECT
高品质的效果呈现和成本控制,绝不是靠简单粗暴的材料替换来实现的。而是在设计过程中,有针对性地去平衡材料性价比、施工难度等多方面因素来寻求最优解。
为了保证建成效果,材料的选择上从打样到样板墙再到实体上墙,每个步骤材料的挑选,都细心斟酌仔细对比,力求建成效果能达到最优。并在不同的阶段对现场情况进行实时的跟踪,针对施工过程中出现的问题进行及时的调整和应对。
为了平衡造价,在山墙面和北立面选择了幕墙搭配金属漆的材料组合。北方地区外墙保温面层不平整,金属漆如何实现与同色铝板最接近的效果,对设计和施工来说都是一大考验。
设计上,我们首先以铝板线条来框定涂料范围,保证涂料交接的精致度。其次,涂料分缝加大尺度并且尽量规整,突出铝板加工规格的可塑性。再次,经过多轮打样在不同光照条件下上墙对比,才最终确定涂料色块。
在施工中,中涂层采用了含有骨材的高耐候性造型材来加强基层平整度并避免开裂,面层则采用高光泽耐候金属漆来形成金属质感。依靠设计和施工的双向配合,最终实现了近乎金属质感的涂料效果。
▲接近铝板质感的涂料墙面
设计和施工的双向配合,实现了近乎金属质感的涂料效果
03
居住建筑内部的空间营造
creating of residential building interior space
▎SPATIALITY OF RESIDENTIAL ,
INTERACTIVITY WIDER LIVING SPACE
居住建筑的空间性,交互性的全系宽厅
在多维的限定之下,住宅设计的颠覆性创新很难出现,但设计视角的转换,有助于探索人居环境更具吸引力的新可能。
将设计的聚焦点从地产商转移到居住者,户型设计上,回归到生活的尺度,以进深和面宽的平衡为基础,实现空间的高效利用,围绕家庭成员日常起居和社交需求,以更具交互性和丰富度的宽厅空间组织L-D-K功能,构筑家庭核心区,打造充满生活温度的起居空间。
01. 无界空间 SPATIAL LIMITLESS
极致空间交互体验
INTERACTIVE EXPERIENCE OF EXTREME SPACE
中海天空之镜容积率只有1.9,全部规划15-17层的小高层。这意味着更大的出房率、更低的居住密度、更好的居住感受。
天空之镜户型产品做到,具有超大公区的极致体验,尽可能大开间、短进深,保证户型空间的“薄透漏”;与客厅同宽的IMAX超大玻璃落地窗,以及交互性宽厅空间,结合不同面积段,以“一字”横厅、“L型”宽厅、通透“方厅”、景观“端厅”等不同形式。
▲宽厅体系对空间更高效的整合利用
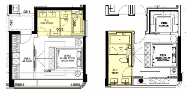
▎ IMAX极致观景宽厅,灵活改造, 168㎡户型
15.8米整体开间,进深9.2米,南向约6.8米宽IMAX宽厅,开阔的空间,宽厅结合落地窗,为生活起居带来更加通透的延伸感。
近56㎡的客餐公区,灵活改造,会所级空间感受。


▲超大客餐公区,会所级空间体验
卧室采用大面积的玻璃幕,将空间营造成一个极具透性的生活“盒子”,充分释放采光面,与此同时,弧形飘窗最大限度扩展视野面,在城市与生活之间,形成自然的亲密互动。
从实用角度出发,兼顾设计美学,在三个卧室均设计了收纳空间,主卧独立步入式衣帽间,“U”型布局。
不同的主卧卫浴模块,更好的迎合不同业主的定制化需求,将主卧套卫生间,从北挪到了南,保证四个半南向观景开间。
02. 产品逻辑延伸 LOGIC EXTEND
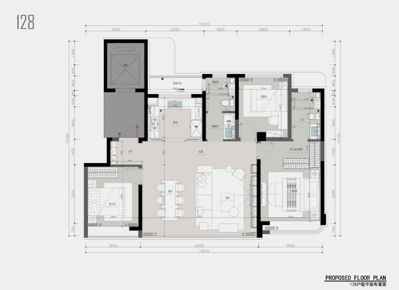
▎ “L”型弧转角,实现270°观景,206㎡四室户型
景观资源最优,为最大化利用景观,将各朝向窗墙比做到了极限值,实现270°观景,保证了最极致的观景体验。
206㎡户型客厅“L”型转角约8m的超大落地窗,搭配转角处户型比例,部分剪力墙用圆柱代替,减少视线遮挡,实现90°视野。
▲L型端厅设计,最大化利用景观资源
▎10.5m大进深,餐客通厅,143㎡三室户型
三室两厅两卫户型。6.6m奢阔横厅,视野开阔,尽纳阳光与美景,10.5m大进深餐客通厅,待客、 欢聚,纵享欢乐时光;岛式西厨搭配中式厨房,厨房打开,南北全通透。
▲超大尺度通厅,带来无限可能
▎宽敞&一体化的 125㎡户型
三室两厅两卫户型。6.6m奢阔横厅,视野开阔,尽纳阳光与美景,10.5m大进深餐客通厅,待客、 欢聚,纵享欢乐时光;岛式西厨搭配中式厨房,厨房打开,南北全通透。
03
景观资源导向的总体规划
Landscape resource-oriented planning design
▎SPATIALITY OF RESIDENTIAL ,
BUILD THE BASEPLATE OF LIVING
居住建筑的空间性,承载生活的超级底盘
空间是承载一切活动的载体,而建筑设计本身可以广义地理解为是对空间的规划。但作为承载生活的载体,居住建筑的空间性很少被提及,是因为在以地产服务为主导的住宅设计中,我们习惯性将设计工作拆解为设计子项,而忽视从居住者视角去统筹生活的空间。
在多维的限定之下,住宅设计的颠覆性创新很难出现,但设计视角的转换,有助于我们探索人居环境更具吸引力的新可能。我们将设计的聚焦点从地产商转移到居住者,把总图规划、配套等等统一到生活需求的多义性空间之上,以生活空间的构成与感知为设计主体,营造承载生活烟火气、生态性、仪式感、艺术性以及情感共鸣的超级生活底盘。
01 规划空间
在规划设计上,以景观资源为导向,对外于南北地块之间以配套商业打造生活情景大道,串联解放南路大型商业MALL及绿轴公园;对内以空间通透性、中心花园尺度、楼宇景观视野、轴线序列感进行综合考量,最大程度发挥地块景观价值。
▎收放之间的烟火气与绿意盎然
收放有序的规划空间序列,为景观造园提供了良好的基础,以丰富的室外空间容纳多样性的日常生活场景。
▲精致的迎宾序列
城市、公园和居住的衔接中,凝聚了生活的烟火气
▲大开大阖、绿意盎然的中央景观
大尺度中央花园,为全龄化的景观营造预留了充足的条件
02 社区客厅
酒店化的社区大堂、下沉庭院和地下会所相结合,为日常生活提供星级配套服务的同时,并通过一系列空间转换,打造富有艺术性和情感共鸣的社区客厅。
▲社区客厅
以下沉庭院和挑空串联的社区大堂和地下会所
▎俯仰之间的仪式感和情绪递进
经由社区大堂,从城市到家,以物理空间的起伏,在豁然开朗的空间转换中,构筑心理空间上的层层铺垫。
▲流动起伏的社区大堂
面向下沉庭院层层递进,串联地上和地下功能
▎ 高差的消解,雕塑感和艺术性
为了加强地面层景观和下沉庭院的联系,以分层平台逐级跌落消解高差,并形成可观赏、可驻足的立体景观。
▲充满雕塑感的立体景观
层次丰富、逐级跌落的体量,为生活注入艺术气息
▎光影流转下的温度
下沉庭院和采光天窗分别为地下会所的功能房间和交通走廊注入光影和温度,打造生活的艺术画廊。
▲以光影连廊串联地下会所
为业主提供会客、健身、儿童活动等星级服务
04
结 语
Cncluding Remarks
▎DESIGN LEADERSHIP
设计的引领
作为深耕北方的设计团队,我们长期致力于城市标杆人居营造,并深度参与到多个头部房企在北方的高端产品系研发。天空之镜项目,则在天津中海的信任和鼎力支持下,实现了北方人居建筑的新探索,从逆市困囿实现破局引领。
除了来自市场的强烈反馈,天空之镜项目也得到专业领域的广泛赞誉,分别在中海地产集团设计评选和国内外的设计奖项中斩获颇丰。
从疫情开始至今,变局加速,一切都在打破,一切又在重建。而我们相信,居住建筑的创新边界会不断拓展。生活的意义在于灵魂共振,我们会坚持以设计的引领,在商业逻辑的价值之下。为生活融入和诠释更多在地文化的多样内涵,并用精细化设计和合理性建造,塑造丰富而动人的空间体验。
| 设计总负责 |
徐强
| 项目负责人 |
刘佳龙
左洪涛
项 目 档 案
项目名称: 中海·天空之镜
项目地点: 中国·天津·河西
用地面积: 132523.00㎡
建筑面积: 162541.20㎡
建筑方案: 天津天华北方建筑设计有限公司·建筑一所
总建筑师: 徐强
建筑一所所长: 刘佳龙
方案设计主创: 左洪涛 杨高川 李天畅
方案设计团队: 张金诚 王姣姣 郭成成 蔡照云 刘杨庆 李鹏飞 邵田子
合作单位:
景观设计:上海以和景观设计 重庆加特林景观规划设计
售楼处及会所室内设计:SCDA
住宅室内设计:深圳丹健环境艺术设计 上海恩威建筑设计
幕墙设计:德立工程咨询(北京)有限公司
施工图设计:天津天友设计 天津华汇设计
项目摄影:甄视觉摄影 麒文摄影 河狸摄影
效果图单位:山子建筑
青岛·精品项目考察
本资料声明:
1.本文为建筑设计技术分析,仅供欣赏学习。
2.本资料为要约邀请,不视为要约,所有政府、政策信息均来源于官方披露信息,具体以实物、政府主管部门批准文件及买卖双方签订的商品房买卖合同约定为准。如有变化恕不另行通知。
3.因编辑需要,文字和图片无必然联系,仅供读者参考;
推荐一个
专业的地产+建筑平台
每天都有新内容
扫描二维码关注

微信公众号“搜建筑”(ID:sjz9999)
合作、宣传、投稿
联系微信:soujianzhu006
阅读原文:“天津天华”更多精品


