▲ 更多精品,关注“搜建筑”

项目背景
国家重型汽车工程技术研究中心位于济南市高新区的中心地带,北临汉峪金谷,紧靠舜奥公园,坐拥便利的交通和良好的景观。
The National Heavy Vehicle Engineering and Technology Research Center is located in the center of Jinan High-tech Zone, adjacent to Hanyu Golden Valley in the north, and close to Shunao Park, with convenient transportation and a good landscape.
项目用地面积22 861 ㎡,总建筑面积为145 516.21 ㎡,塔楼幕墙高度为96 m,结构顶板高89.85 m。
The project covers an area of 22861 square meters, with a total building area of 145516.21 square meters, a tower curtain wall height of 96m, and a structural roof height of 89.85 meters.

设计理念
办公总部强调效率与体验相结合。项目毗邻我们之前参与设计的汉峪金谷,周边高楼林立,而本项目凭借其极简的悬浮体量与丰富的内部空间形成的强烈对比,成为一个鲜明的标识,让人印象深刻,也给人难忘的体验。
The headquarters office emphasizes the combination of efficiency and experience. In the surrounding environment where we participated in the design of the high-rise buildings in Hanyu Golden Valley before, the strong contrast between the extremely simple suspended volume and the rich internal space, forms a certain mark, which is unforgettable.

我们希望通过塑造有活力的、品质更高的人性化办公空间,激发重汽的创新之心,让更多的创意在这里产生。
We hope to stimulate the innovation of CNHTC by creating a more dynamic and high-quality humanized office space and believe that there will be more creativity here in the future.

总体布局
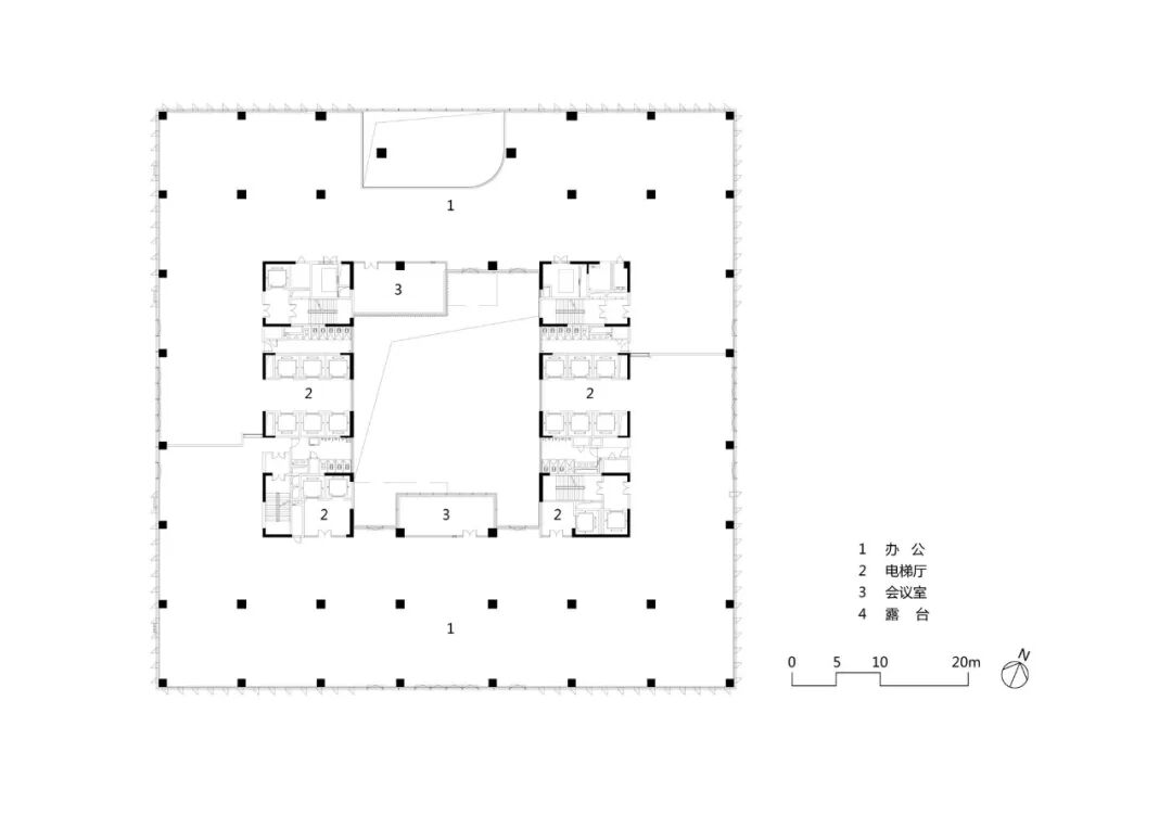
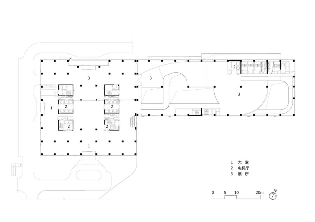
项目基地呈东西向的“L”型,西低东高,东侧窄,西侧宽。在功能布局上,设计将办公塔楼布置于西北角以突出主要形象,企业展厅则自然而然地沿东西向水平布置,以拓宽展示面。在外观上,建筑整体呈极简的几何形体关系,办公塔楼如同纯粹的白色立方体,悬浮于裙房之上,与一期建筑形成一种新旧对话。简洁的设计语言体现出业主崇尚高效的企业文化。
The project base is a long and narrow "L" shape from east to west. In terms of functional layout, the office tower is located at the Northwest Angle to highlight the main image. The enterprise exhibition hall is horizontally arranged along the east-west direction to broaden the display area. The overall appearance of the building presents a minimalist geometric relationship, with the office tower floating like a pure white cube above the podium, forming a dialogue between the old and new with the first phase of the building, reflecting the efficient corporate culture of China National Heavy Duty Truck Corporation.

水平裙房首层为企业展厅,其上为会议中心及食堂。悬挑的体量将东侧地面空间释放给园区及城市,形成人性化的灰空间。
The first floor of the horizontal podium is the enterprise exhibition hall, and above it is the conference center and cafeteria. The suspended volume releases the ground space on the east side to the park and the city, forming a humanized gray space.

立面设计
建筑对标绿建二星标准,采用了超白玻三银Low-E玻璃。外部极简精准的建造,以及隐藏式开启扇的可呼吸式幕墙,既保证了立面的干净完整,同时又解决了办公空间自然排烟和自然通风的需求。
The building is based on the standard of Green Building Two Stars and adopts ultra-white glass with three silver Low-E glasses. The minimalist and precise construction of the exterior, as well as the breathable curtain wall with concealed opening fans, not only ensure the cleanliness and integrity of the facade but also solve the problems of natural smoke exhaust and ventilation in office spaces.

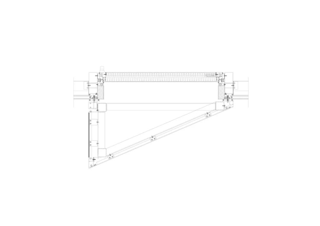
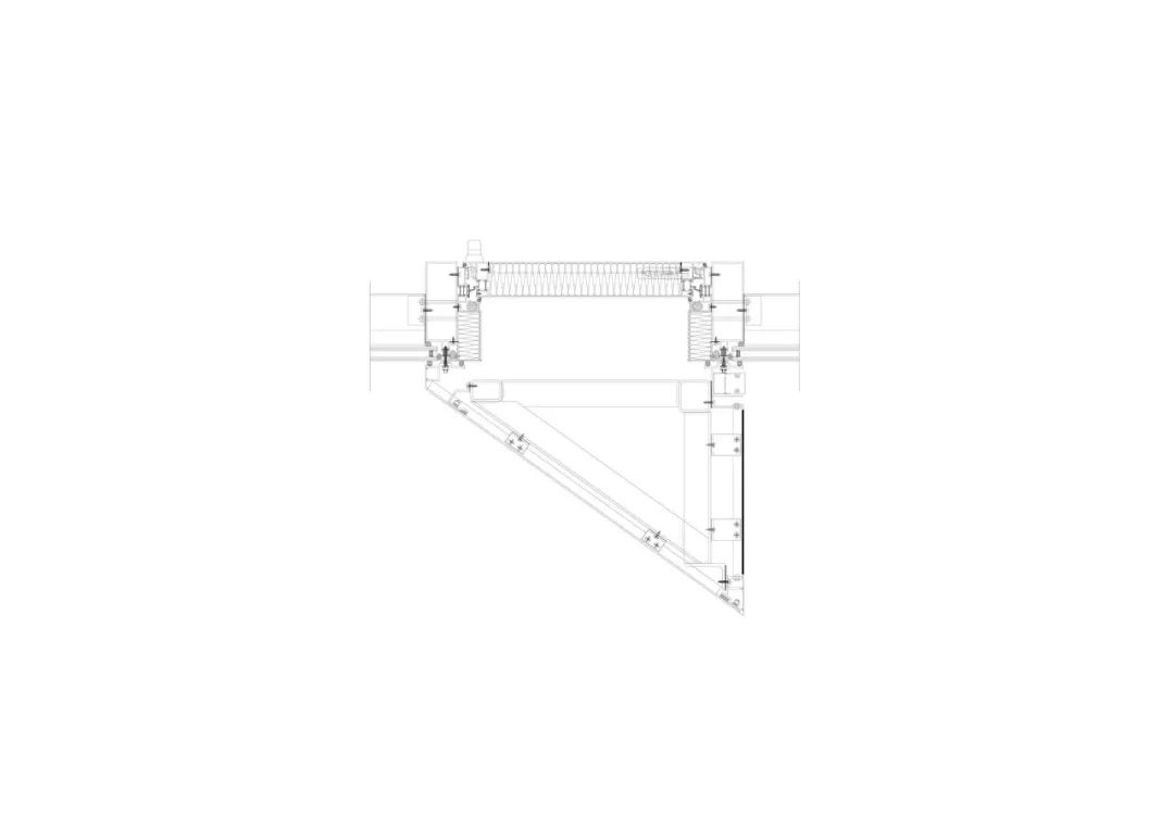
塔楼与裙房采用两种不同尺度和方向的竖向三角杆件,创造出独特的韵律。三角形的阳极氧化板装饰线条,自然地形成遮阳,环保节能。阳极氧化铝板的材料应用也加强了建筑气质中的稳定感和力量感。入口雨棚采用了布纹不锈钢,强调了金属质感,进一步提升整体的视觉效果。
The tower and podium adopt two vertical triangular members of different scales and directions, creating a unique rhythm. The triangular anodized board decorative lines form a sunshade, which is environmentally friendly and energy-saving. Moreover, the material application of anodized aluminum plate emphasizes the stable and powerful temperament of the building, and the entrance canopy adopts cloth-patterned stainless steel, emphasizing the metallic texture, further enhancing the overall visual effect.
塔楼幕墙装饰线条
在泛光设计上,隐藏式灯槽使得建筑立面更为纯粹。通过洗墙的泛光形式将灯光投射到三角斜面上,见光不见灯,营造出一种高级内敛的灯光效果。
In terms of floodlighting design, the hidden light groove makes the building facade more pure. Through the floodlighting form of washing the wall, the light is cast onto the triangular slope, creating a high-level and introverted lighting effect.

内部空间
简洁的外观之内,建筑也具有丰富的内核。建筑内部多层次的共享空间营造出效率与体验并重的氛围,激发员工的创造力。
The concise appearance has a rich kernel inside. The interior of the building creates an atmosphere that emphasizes both efficiency and experience through multi-level shared spaces, stimulating employees' creativity.

服务空间与被服务空间界面完整清晰。方形塔楼内,设计创造出一个竖向从六层至十八层通高的天井,在物理环境上增加了采光,并强化自然通风,提高了舒适度,减少过渡季节的能耗。
The interface between the service space and the serviced space is complete and clear. The square tower creates a six to eighteen-story vertical raised courtyard, which increases lighting and enhances natural ventilation in the physical environment, improves comfort, and reduces energy consumption during the transition season.

设计围绕着天井在东西两侧布置核心筒。核心筒电梯厅正对天井,打破一般办公楼电梯厅的封闭效果,提升员工出入电梯厅的舒适感;塔楼卫生间均为明卫,细条纹的U玻在保证私密性的前提下满足了采光的需要。细密的梭形金属百叶给中央庭院带来了细腻的光影变化,结合中庭的井格形天窗,使得经过滤的阳光洒入中庭,将建筑变成了一个捕光的机器。
The core tube is arranged on both sides of the east and west around the courtyard, with the elevator hall facing the courtyard, breaking the closed effect of the elevator hall in general office buildings and improving the comfort of employees entering and exiting the elevator hall. The bathrooms in the tower are all Ming Wei and the fine striped U-glass ensures privacy and better meets the needs of lighting. The shuttle-shaped dense metal blinds bring delicate light and shadow changes to the central courtyard, combined with the well-shaped skylights in the atrium, filtered sunlight is poured into the atrium, turning the building into a light-harvesting machine.

内天井南北两侧,如百宝阁一般错动的会议室体量形成了具有丰富体验感的庭院空间。错位的露台让办公人员能够就近到达邻近的花园平台,接触自然绿化、呼吸新鲜空气、沐浴冬日暖阳。
The staggered size of the conference rooms on both sides of the inner courtyard, like the Baibao Pavilion, creates a rich and experiential courtyard space. The misaligned terrace allows office staff to reach the nearby garden platform to access natural greenery, breathe fresh air, and bathe in the warm winter sun.

塔楼在面向主干道的北侧设置了从九层至十八层的通高边庭,象征企业与城市对话的窗口。弧形错位的边庭挑空空间,寓意着重型汽车中轴承齿轮相互咬接的互动关系。多种活化办公空间,进一步丰富了内部的办公体验。边庭立面上采用了拉索玻璃幕墙。超过一千平的光电玻璃作为城市舞台,给银灰色的纯净悬浮建筑体量带来了未来科技感。
The tower has a nine to eighteen-story high-side courtyard facing the north side of the main road, symbolizing the dialogue window between the enterprise headquarters and the city. Diverse public spaces further enrich the experience of internal office work. The fa ç ade of the side courtyard adopts a cable glass curtain wall, with over a thousand square meters of photoelectric glass. As a city stage, it brings a futuristic sense of technology to the silver-gray pure floating building volume.
项目图纸

剖面图
主要建筑师:王浪,黎宇明,金艾,聂昌宁,黎宇明,吴昊,陈虎,曹宇胜,李瑶,王韵菁,付凌峰,郝紫葶
机电工程师:朱永斌,焦培荣,孙俊鸿,杨德志,张李智,胡琼芳,农情宇,王励,刘康荣,吴干文,冯倩倩
本资料声明:
1.本文为建筑设计技术分析,仅供欣赏学习。
2.本资料为要约邀请,不视为要约,所有政府、政策信息均来源于官方披露信息,具体以实物、政府主管部门批准文件及买卖双方签订的商品房买卖合同约定为准。如有变化恕不另行通知。
3.因编辑需要,文字和图片无必然联系,仅供读者参考;
5月25-26号
▼点击下图,了解报名
推荐一个
专业的地产+建筑平台
每天都有新内容
扫描二维码关注

微信公众号“搜建筑”(ID:sjz9999)
合作、宣传、投稿
联系微信:soujianzhu006