▲ 更多精品,关注“搜建筑”

« Crac » is a public management organization located in the heart of the city. The project involved energy and aesthetic renovation of the building envelope while maintaining the building's activity. Ultimately, the operation reduced the building's energy consumption for heating and cooling by a ratio of 1 to 10! These performances are now better than those required for a new building.


The construction concept was based on a simple idea: to wrap the entire building in a new prefabricated insulating skin, without touching the existing façade. This meant that employees could remain in the building while avoiding the costs of moving twice and having to stop work.

Following a digital scan of the entire facade, dozens of prefabricated wood panels were fixed to the existing balconies, revealing the whole volume in just a few days.

All the building's new technology was placed in the gap created between the old and new facades, to enable the occupants to continue working in the best possible conditions. The existing facade was dismantled and removed as soon as the new façade was operational.

The project also gives the building a new architectural expression, fully consistent with its construction system. The materials used are simple, and light and emphasize the connections between the panels.

The contrast between aluminum and yellow highlights the entrance device and sunshades. The inside of the skin, in contact with the building's interior spaces, is warmer: the interior fir wood finishes contrast with the technological character of the exterior façade, offering a soothing dimension to the spaces. The construction of a series of furniture units integrated into the facade takes advantage of the interstitial space, offering occupants new storage facilities.

项目图纸

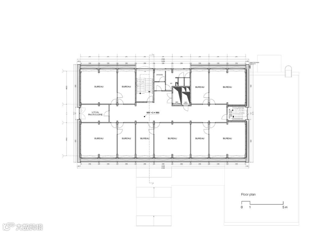
平面图

立面图

剖面图

示意图

示意图

示意图
项目信息
建筑师:URBAN architectes
地点:比利时
面积:2200 m²
年份:2018
摄影:Charlotte Lamby / Julien Forthomme
本资料声明:
1.本文为建筑设计技术分析,仅供欣赏学习。
2.本资料为要约邀请,不视为要约,所有政府、政策信息均来源于官方披露信息,具体以实物、政府主管部门批准文件及买卖双方签订的商品房买卖合同约定为准。如有变化恕不另行通知。
3.因编辑需要,文字和图片无必然联系,仅供读者参考;

微信公众号“搜建筑”(ID:sjz9999)
合作、宣传、投稿
联系微信:soujianzhu006

