品牌地产 | 精品楼盘考察 | 天津
本次楼盘考察时间
7月13日 、7月14日两天

中海•天空之境
绿城•凤起悦鸣
建投•誉山院
融创•梅江壹号院
绿城•水西雲庐
金地•阅千峯
绿城•柳岸晓风
招商•江山玺
融创•阿朵云岛
金地•水西印
温馨提示:天津楼盘活动,以上项目中安排7-8个参观,部分项目根据现场情况可能会有调整。时间为7月13日-7月14日,满员即止,感兴趣的朋友请及时联系报名。
报名+咨询

咨询微信:soujianzhu008

咨询微信:soujianzhu03
2、联系电话:181 3265 9430
中海 • 天空之境
建筑方案:天津天华
中海天空之境项目,由2020年中启动设计到2023年,以突破“北方定式”的全新设计和高品质呈现,成为近三年天津市场上最受瞩目的现象级红盘,并一举带动了天津市整体居住产品的设计迭代浪潮。

▲项目实景

▲项目实景图
出于对户内感官和形象审美的高度追求,我们将客厅及阳台窗做了落地窗的设计,并且端户采用了弧形飘窗以获得更广的视野。单高颜值、强体验的设计追求也带来了诸多设计难点。

▲项目实景图
入户大堂作为最能体现建筑品质的位置,在设计当中我们格外重视。除了对灯光、标识进行了整合以外,入口两侧的仿铜材质选用了钢板来代替铝板,用以加强整体造型的平整度,以焊接的方式取消了横向的材料胶缝,竖向胶缝也通过型材进行遮蔽,结合竖向型材格栅,大幅度提升构件精致度。

▲入户大堂实景图

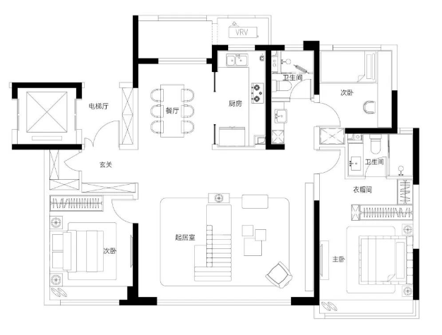
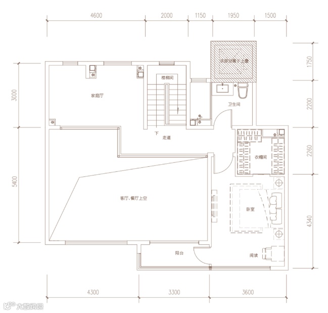
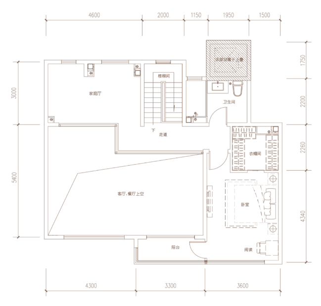
▲建面约168㎡户型图
近56㎡的客餐公区,灵活改造,会所级空间感受。

▲超大客餐公区,会所级空间体验
卧室采用大面积的玻璃幕,将空间营造成一个极具透性的生活“盒子”,充分释放采光面,与此同时,弧形飘窗最大限度扩展视野面,在城市与生活之间,形成自然的亲密互动。
不同的主卧卫浴模块,更好的迎合不同业主的定制化需求,将主卧套卫生间,从北挪到了南,保证四个半南向观景开间。
景观资源最优,为最大化利用景观,将各朝向窗墙比做到了极限值,实现270°观景,保证了最极致的观景体验。

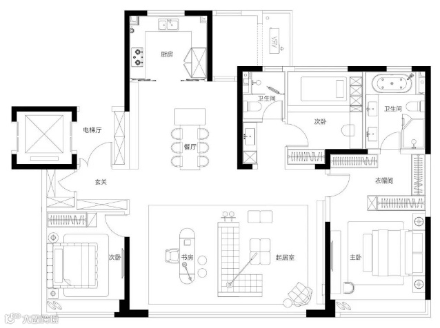
▲建面约206㎡户型图

▲建面约168㎡样板间
10.5m大进深,餐客通厅,143㎡三室户型
三室两厅两卫户型。6.6m奢阔横厅,视野开阔,尽纳阳光与美景,10.5m大进深餐客通厅,待客、 欢聚,纵享欢乐时光;岛式西厨搭配中式厨房,厨房打开,南北全通透。

▲建面约143㎡户型图

▲建面约143㎡样板间
宽敞&一体化的 125㎡户型
三室两厅两卫户型。6.6m奢阔横厅,视野开阔,尽纳阳光与美景,10.5m大进深餐客通厅,待客、 欢聚,纵享欢乐时光;岛式西厨搭配中式厨房,厨房打开,南北全通透。

▲建面约125㎡户型图

▲建面约125㎡样板间
高品质的效果呈现和成本控制,绝不是靠简单粗暴的材料替换来实现的。而是在设计过程中,有针对性地去平衡材料性价比、施工难度等多方面因素来寻求最优解。
为了保证建成效果,材料的选择上从打样到样板墙再到实体上墙,每个步骤材料的挑选,都细心斟酌仔细对比,力求建成效果能达到最优。并在不同的阶段对现场情况进行实时的跟踪,针对施工过程中出现的问题进行及时的调整和应对。
为了平衡造价,在山墙面和北立面选择了幕墙搭配金属漆的材料组合。北方地区外墙保温面层不平整,金属漆如何实现与同色铝板最接近的效果,对设计和施工来说都是一大考验。
设计上,首先以铝板线条来框定涂料范围,保证涂料交接的精致度。其次,涂料分缝加大尺度并且尽量规整,突出铝板加工规格的可塑性。再次,经过多轮打样在不同光照条件下上墙对比,才最终确定涂料色块。
在施工中,中涂层采用了含有骨材的高耐候性造型材来加强基层平整度并避免开裂,面层则采用高光泽耐候金属漆来形成金属质感。依靠设计和施工的双向配合,最终实现了近乎金属质感的涂料效果。
▲接近铝板质感的涂料墙面
设计和施工的双向配合,实现了近乎金属质感的涂料效果
天津天华作为深耕北方的设计团队,长期致力于城市标杆人居营造,并深度参与到多个头部房企在北方的高端产品系研发。天空之镜项目,则在天津中海的信任和鼎力支持下,实现了北方人居建筑的新探索,从逆市困囿实现破局引领。
绿城 • 柳岸晓风
天津绿城柳岸晓风,是全国第七座“晓风系”作品,是绿城黄埔湾玻璃幕大宅的精神续作,同时也是天津首座低密玻璃天幕洋房社区。

▲项目实景图
绿城·柳岸晓风以Super flat艺术赋能建筑,遵循轻盈、透明、流动三个美学原则。建筑横向线条精致,竖向格栅庄重有序,立面呈线性肌理,利用巨幅玻璃窗体填充建筑面孔,呈现专属于“晓风系”的建筑美学。
▲项目实景图
晓风园林从美学细节出发,承袭天地工笔,采撷自然山石,营造极具文化符号的雅致之境。入户大堂入口“苍松迎客”,细水潺潺,映见不远处光幕玻璃建筑的质感与璀璨,光、影、声、色在此浑然天成,让人一步体验度假酒店般的安逸与悠闲。

▲园林实景图
▲入户实景图
▲建面约130㎡ 户型图
▲样板间实景图
绿城 • 水西雲庐
绿城·水西雲庐,作为天津绿城豪宅扛鼎力作,撬动水西板块市场热度,成就了一场“里程碑”式的成功,更以中式生活之诗意与高雅,致敬名仕的内心向往。

▲洋房实景图
项目将“中式”做到极致之后并未止步,立足水西推出超越别墅的新作——E地块新品,再次震撼天津豪宅市场。E地块新品由goa大象倾力设计,产品主义与理想主义的共融,在水西这片难得的珍罕土壤之上,带来了天津房地产市场上的新品,成为天津豪宅市场的惊艳项目!
▲洋房示意图
E地块新品的户型面积约125-300m²,外立面在A地块基础上做了升级,弱化了奇数层的腰线体量,使得建筑侧面更为通透,而且具备了270度观景视野。在偶数层采用大出挑宽檐,视觉上更为协调轻盈,配合转角窗设计,侧立面层次更加丰富。
▲洋房示意图
左右滑动查看更多

▲合院实景图

▲庭院实景图
绿城·水西雲庐,在建筑体表上,从戗角飞檐、雕梁画栋、精制檐口的刻画细节,到“柱、墙、檐、瓦、脊、院、材”七大传统建筑元素的转译,在遗落的经典中再造基因,以现代东方视角,在建筑中呈现自由、多元、前瞻的天津精神。

▲合院实景图
项目在中式院墅的设计中,采用了中式传统的歇山顶与硬山顶,屋脊则由甘蔗脊与黄瓜脊合理构成,在高低错落的变化中,实现东方味十足的坡屋顶。

▲合院实景图
绿城 • 凤起悦鸣
绿城·凤起悦鸣特邀国际建筑事务所line+联合创始人朱培栋,以高级定制的态度打造国内首创的3D凸窗钻石立面,通过极致精湛细腻的侧向斜切,凸显一个个闪耀的玻璃晶格,将窗户的景观性与舒适性发挥到极致。

▲项目示意图
绿城凤起悦鸣生活美学馆,景观设计细细研磨都会客群的品味与需求,溯源千古东方雅韵,从中找寻契合的艺术载体;然后以当代设计语言,打造一脉相承的文化浸润场域,从思想层面链接产品和客户未来生活的精神内核。

▲生活美术馆实景图
钻石窗增加了窗户的延展面,相对于传统平面窗的正向景观视野,扩大观景视域,营造“全景仓”式观景空间。窗体网格内侧反曲倒角柔化出纤细挺拔的建筑骨骼,同时嵌套古铜色金属内框,在阳光的照耀下熠熠生辉。

▲项目示意图
从东侧的社区大堂,到西侧的规划市政公园,绿城凤起悦鸣设计了“五进”空间。在社区大堂处,绿城特意将入口内退,预留出一条港湾式车道。为业主归家提供如同酒店般的落客区。
▲项目示意图
绿城·凤起悦鸣建面约150㎡【流金岁月】样板间,独立玄关入户,步步尊荣,敬启美好归家礼序;入眼即为LDKB一体设计方厅,全方位定制居者对家的无限想象,纵享人生大从容;套房式主卧,步入式衣帽间、双台盆主卫等高定奢配,彰显塔尖身份与品位。

▲建面约150㎡ 样板间示意图
绿城·凤起悦鸣建面约180㎡【摩登时代】样板间,独立玄关设计,尊崇入户体验,敬启美好归家礼序;朗阔厨房,合理分区,满足不同家庭成员烹饪习惯;南北通透LDKB一体化设计,营造灵动可变空间;灵动书房空间,墨韵书香,外观浩瀚星空,内观学识气度;扩大空间设计,多重收纳空间,收藏生活的琐碎。

▲建面约180㎡ 样板间示意图
凤起悦鸣的实楼样板场景,兼具国际化审美标准,与摩登美学文化精髓。富有层次的设计肌理与享誉世界的超凡制作工艺碰撞,再加上光影的流动变幻,皮革、玉石、国际奢品的灵动运用,让空间与物得以升华,诉说着鳳起悦鸣的奢定故事。

▲样板间实景图
融创 • 梅江壹号院
融创·梅江壹号院,融创Top级壹号院系作品。“不中心,无产品,只定制,不复制”也是融创壹号院项目一直秉承的原则,超越城市居住水准,用国际流行的研发理念打造未来理想居住空间,也是融创壹号院系产品的终极目标。

▲项目示意图
首席景观设计师庄镇光、首席建筑设计师任治国、首席装饰设计师郑忠,他们数十年的人居设计经验与前瞻思想成为了这中国第22座壹号院的源泉与基调。

▲大门实景图
融创的设计师,以梅江壹号院为参考,根据树木的高度、四季变化,注重颜色搭配及搭配观赏植物的栽种,在同纬度区域精致挑选了符合园林设计标准的三十六颗大树,分别点缀在五园九景内。

▲景观实景图
艺术使人类在其宇宙中旋转,也让我们流连在自我空间里、享受内心的优雅静谧。天赋独壹的石材、自然木品、生态织品,经由材质、工艺、细节、持续专注地反复推敲,融合进壹号院的时空场景里,终成艺术赠品。
▲项目示意图
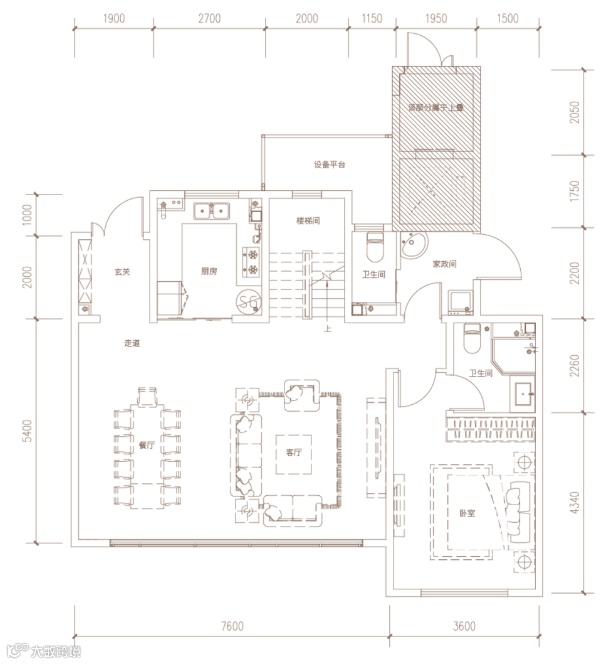
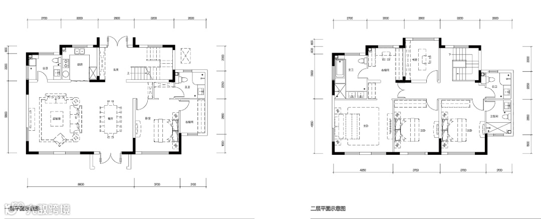
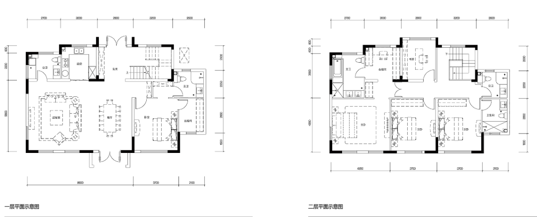
建筑面积约210㎡户型,约14.9米南向全面宽,三室两厅三卫,约7.2米宽幅LDKS一体化中央聚厅,餐客厨三向互动。主卧大套房、次卧全套房双南向布局,入户玄关衣帽间、独立电梯私家入户。

▲建面约210㎡户型图
建筑面积约252㎡洋房,整体面宽约20.25米,进深约10.4-11.9米,刷新“天津最宽洋房”的记录。约7.8米巨幕横厅,面积约52㎡,大落地窗约6.2米宽、2.5米宽、面积约15.5㎡大,方显人生壮阔。

▲建面约252㎡户型图

▲建面约252㎡样板间实景图
建投•誉山院
建投•誉山院于寸土寸金的土地之上倾情力筑全洋房住区,再次迭代产品力,以纯粹洋房、现代立面、宽幕落地窗、宽阔方厅、超高附加值打造新一代5D洋房,造极理想生活新著。

▲项目实景图
项目配色选取中国传统色系中的鹿角棕与鲸鱼灰作为主色系精致、静谧、迷人。摒弃复杂的肌理和装饰,融合现代时尚元素,利用简洁的几何形式,通过不同比例的组合,和细节的刻画,让整体形象更加立体且充满艺术性。从而更加彰显入住其中用户们的不凡品位,从而提升产品力。

▲项目效果图
抛去高楼层的压抑感和紧凑感,将更宽敞的绿地以及更丰富的自然景观留给居住者,以纯粹洋房承载理想生活新高度。
▲园林效果图
宽幕落地采光窗,IMAX宽幕般的视野享受,重新定义生活,在同样的高度,拥有更广阔的的视界,时刻享有四时自然美景。
左右滑动查看更多

▲样板间实景图

▲样板间实景图
金地 • 阅千峯
金地·阅千峯,为峯汇系的中国旅程恢弘开篇。半径三公里内汇聚代言天津高度的商业配套和文化地标,承经济与文脉交汇之地的天壤贵土之上,集金地31载开发经验之大成,为天津献上TOP峯汇系作品。

▲示范区实景图
全社区仅有不足五百席平墅大宅,圈层纯粹。室内精装部分特别定制了来自欧洲皇室御用品牌,礼赞城市峯层的至上品位,引领天津国际化人居的潮流。

▲项目实景图
园林设计运用巴塞罗那德国馆造园理念,匠造「室外艺术馆」园林,呈现“开则闹市,闭则重山”的隐居意境;金地独创微气候,通过空间形态、场地朝向、地形、水体、材料、植物六大因子,打造“冬无凛风,夏无暴晒”的户外环境。

▲园林实景图
社区依照金地独创的微气候场地分析技术,为业主定制可独享的社区气候,打造适合各个年段段业主体验的全龄游憩场,并配以媲美博物馆安全等级的安防系统和天津第一个光合车库,营造舒适安宁的生活氛围。

▲地下车库示意图
建面约172㎡洋房户型,超12米宽境大宅,三开间朝南;奢阔采光面,悠享阳光与自然的健康生活;客/餐/厨一体布局,打造约60㎡LDK家庭聚厅;阔绰双套房,兼具身份感与舒适度。

▲建面约172㎡ 洋房样板间实景图
建面约180㎡洋房户型,敞阔门厅与电梯厅,犒赏一个阶层的荣归;独立待客与家政动线,居家礼序各得其所。多功能阔绰四居,百变生活随心而动;南向双套房设计,身份感与私密性并重。

▲建面约180㎡洋房户型图

▲建面约180㎡ 洋房样板间实景图
建面约171㎡洋房户型,双洄游归家动线,提升居住私密性与功能性;约6.55米巨幕超宽客厅;三卧室双套房,每一个家庭成员均有私密空间;岛式西厨搭配中式厨房,一展主家气度。

▲建面约171㎡高层户型图

▲建面约171㎡ 高层样板间实景图
招商 • 江山玺
作为精英圈层的构筑者,招商·江山玺通过高品质艺术展览领域的优质内容营造与输出,为城市精英人群提供多重艺术场景,丰盈城市精英圈层的生活方式。

▲项目鸟瞰图
在中环稀贵地段,保有对土地的崇高致敬,以品质革新南开高端人居新标准。专注一毫一厘,重视一砖一瓦,以招商独创828工艺工法呈现高标准品质。

▲售楼部实景图
融贯“超平面”主义风格,全面屏天幕落地窗的灵动水晶质感,叠映舒展线条,于流畅的层次间彰显摩登,展示属于南开的城市人居风景线。

▲项目实景图
招商江山玺外立面,仿佛把玻璃盒子插进了金属框架,超窄的铝板线条+超大幅的玻璃立面,展现出了更加轻盈的气质。铝板边框由冷灰色+银灰色交错拼接,排列起来有一种钢琴键既视感。

▲项目实景图
空间的尺度定义了生活的高度。地上入户大堂金属门框、石材通铺、约4.7米净高,玺系珍本臻装宅邸,更懂峯层品质感,敬献显赫大人物。

▲入户大堂实景图
▲建面约143㎡样板间实景图

▲建面约169㎡户型图

▲建面约169㎡样板间实景图
金地 • 水西印
金地·水西印傲立水西C位,近享水西生活场之上的全维超配资源。从交通、休闲、低密住区到医养资源等,天花板级的城市资源为我所享,项目当仁不让成为万众瞩目的水西VIP。
▲项目实景图
金地·水西印不吝重金,以超越所见的成本,匠造艺术园林。五进归家尽展尊崇,一环双轴七园,揽胜大美;前庭后院双核心景观,每一处皆是观景台。

▲示范区实景图
现代宽幕洋房结合中国传统建筑元素,缔造全新的人居样本。玻璃、铝板、不锈钢、石材等艺术交织,让建筑成为特色景观。
▲项目效果图
143㎡御景宽邸 三室两厅两卫户型,专梯前室、外延私域双重附加;客卧客卫一脉相承 ,静谧微套房;约6.8米光幕巨厅。

▲建面约143㎡样板间户型图

▲建面约143㎡样板间效果图
169㎡家族平墅 三室两厅两卫户型,约8米无界宽厅;礼宾玄关划界隐私领地;尊崇礼序不显自彰;奢阔餐厨空间 包揽格调真味;豪奢双套房轩阔天地。

▲建面约169㎡样板间户型图
▲建面约169㎡样板间效果图
融创 • 阿朵云岛
融创阿朵云岛,可以更直观地体验未来居住的真实场景,更真切地感受到空间设计的相融相合,更真实地触摸到产品细节的精工匠筑。

▲项目鸟瞰图
项目拥享约7000亩天嘉湖生态旅游康养景区,涟涟湖光化作映照天空的镜子,天空中一朵朵云在湖的镜面显现,与湖中岛屿重合,一座座岛屿仿佛正化作一朵朵白云,飘落湖间,难得的湖灵水秀之地。

▲项目实景图
围湖成湾、坐湖成岛、伴湖成岸,阿朵云岛的“湾、岛、岸”规划,将世界湾岛的魅力与美好生活的缤纷有序联结。
项目采用国际化社区理念,以焕发全新的岛居生活为概念,充分运用每片岛屿的地域优势,将“观湖”“亲水”的景观生活做到极致,令业主家人沉浸在悠然舒逸的湖居、岛居生活。

观澜庭叠墅产品建筑设计为简洁素雅的现代风格,立面设计充分体现叠拼产品“多开间大面宽”的特点,沿水的外窗设计,力争将单块玻璃面积做到最大。使得室内的观景体验做到最大化,立面质感更为通透,也更好的匹配上本产品大面宽的特性。外窗上下口都做了金属线脚勾边,功能上减少窗户的雨水挂落问题。

▲叠墅样板间 实景图

▲建面约180㎡下叠 首层户型

▲样板间实景图

▲建面约180㎡下叠 二层户型

▲样板间实景图
项目更打造瞰湖高层、观湖大宅以及湖心叠墅,打破传统人居的空间桎梏,进一步拉近与自然的距离,令居者与湖泊水韵亲密会晤。阿朵云岛的新型生活理念,拓宽了人们对于美好生活的想象边际。
▲项目实景图

▲建面约252㎡联排户型图

▲联排样板间 实景图
【活动时间】
2023年7月13日、7月14日两天
温馨提示:本次活动名额有限,满员即止,感兴趣的朋友请及时联系报名。
【活动报名】
■活动组织:
主办方:搜建筑 & 经典人居
■报名+咨询 联系如下
1.扫描二维码 加好友咨询

咨询微信:soujianzhu008

咨询微信:soujianzhu03
2、联系电话:181 3265 9430
2023年·新产品方向
《 品牌地产 | 精品楼盘活动 》
杭州、苏州、上海
成都、郑州......
广州、福州、重庆
西安、青岛......
扫描二维码 加好友咨询
领队微信:soujianzhu03
本资料声明:
1.本文为建筑设计技术分析,仅供欣赏学习。
2.本资料为要约邀请,不视为要约,所有政府、政策信息均来源于官方披露信息,具体以实物、政府主管部门批准文件及买卖双方签订的商品房买卖合同约定为准。如有变化恕不另行通知。
3.因编辑需要,文字和图片无必然联系,仅供读者参考;
推荐关注
全球精品楼盘考察
扫描二维码关注

微信公众号:全球精品楼盘考察
合作、宣传、投稿
联系微信:soujianzhu006

