▲ 更多解读,关注“图图规范”
全文强条规范——《民用建筑通用规范》已经实施。
其中“靠墙扶手边缘距墙面完成面净距不应小于40mm”,对11~18层的楼梯间影响巨大。(点击我了解)
很多设计院没有深入研究,认为2700mm开间楼梯间已不能满足要求,简单粗暴地将楼梯间开间扩大到了2800mm。

今天我们来探讨下:新强条下,2700mm开间楼梯间——还能不能做?
▽▽视频讲解▽▽
不止开头说的主要原因,我们具体来看下:

规范要求:
《民用建筑设计统一标准》
6.8.7 楼梯应至少于一侧设扶手,梯段净宽达三股人流时应两侧设扶手,达四股人流时宜加设中间扶手。

贴墙扶手 剖面示意图
图图规范解读:
扶手中心线距墙面净距不应小于75mm,
扶手内侧距墙面净距不应小于95mm(普通饰面层厚度:15mm)。
关于梯段净宽计算目前有两个标准,图图规范之前也解读过,点击查看:

如果按新算法(扶手内侧来定的话),扶手内侧距墙面净距需≥95mm(普通饰面层厚度:15mm)。
我们今天就按最严的标准来讨论。

规范要求:

什么是钢丝网片?

钢丝网片具体做法要求是什么?

图图规范解读:
楼梯间及人流通道的填充墙,应采用钢丝网砂浆加强,标准图示要求抹灰厚度30mm。
下图为某工程钢丝网片错误做法示例,可以看到两处错误:
1、钢丝网片不能直接贴于砌体墙上,钢丝与墙面需5mm找平
2、示例只是将钢丝网简单地钉于墙体之上,需用Φ6钢筋预埋勾连

某工程钢丝网片错误做法示例
延伸说下为啥厚度需要30mm
先来看下钢丝网片都需要考虑哪些数据:
• 钢丝与墙面净距应≥5mm
• 网片保护层厚度应≥15mm
• 预埋Φ6拉筋
• 钢丝网片本身厚度(Φ4的话即4mm)

这些数值是否可以减少呢?不能
参考《混凝土结构设计规范》中对保护层厚度的内容包括可以看到,不仅钢筋本身需要保护,对箍筋、构造筋、分布筋等也需要保护。

因此,对于钢丝网片来说,网片保护层厚度15mm,不可省略。预埋Φ6拉筋也不可省略。
所以,以Φ4钢丝网片4mm计算,得出最小抹面厚度为:5+15+6+4=30mm。
基于以上3大问题元素,下面我们来看下2700mm开间楼梯还能不能做?
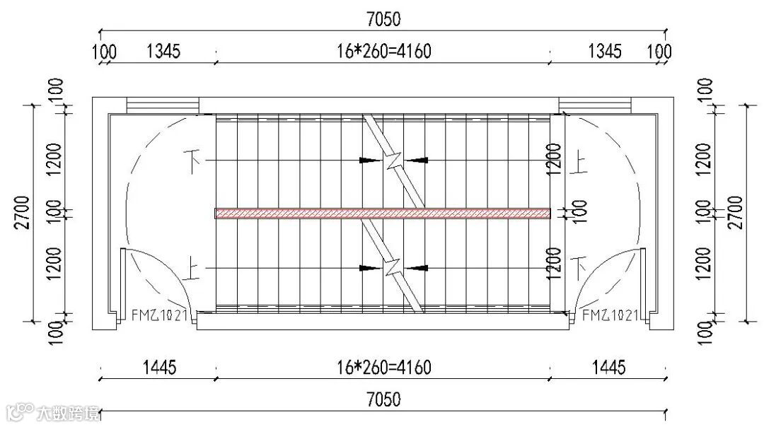
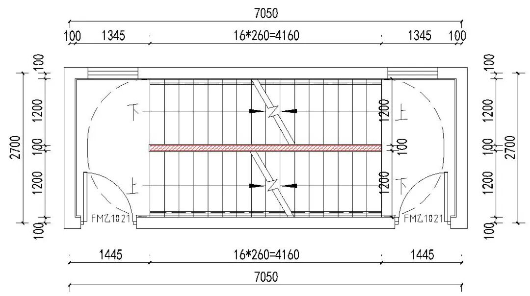
剪刀梯
正常做法下,梯段净宽为:
1200-95(靠墙扶手)-30(钢丝网片)=1075mm

结论得出:
剩余净尺寸仅为1075mm,不满足疏散净宽1100mm的要求,因此正常做法下,2700mm楼梯间无法实现。
此外,普通楼梯首层也同样无法实现。( 此处注意,新规要求:地下楼层的疏散楼梯间与地上楼层的疏散楼梯间,应在直通室外地面的楼层采用耐火极限不低于2.00h且无开口的防火隔墙分隔。)

95的扶手我们无法改变,且扶手的墙体为混凝土承重墙体,那如何再减宽度呢?
唯一的办法就是换中间隔墙,将中间隔墙材料换为蒸压加气混凝土板(AAC板),其面层只有3mm(后面详解AAC板)。
中间隔墙换为AAC板后,梯段净宽为:
1200-95(靠墙扶手)-3(AAC板面层)=1102mm。

结论得出:
将中间隔墙材料换为蒸压加气混凝土板(AAC板),2700mm开间楼梯,刚好能满足。
因此,剪刀梯要想实现2700mm开间楼梯
解决方案为:将中间隔墙材料换为蒸压加气混凝土板(AAC板)。
在采暖区,楼梯间有时需刷保温砂浆,此时需注意,需将保温砂浆刷到户内(一般刷保温砂浆饰面层达20-30mm厚)或加宽楼梯开间。

示意图

保温饰面做法
通过式楼梯
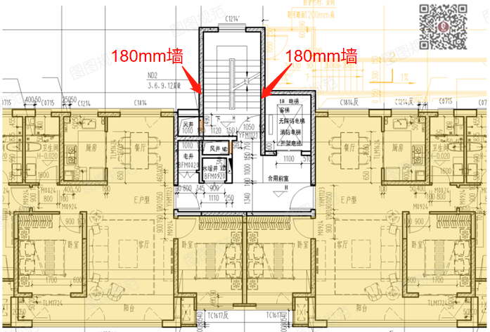
困惑最大的是通过式楼梯,2700mm开间能不能实现?

标准层平面

首层平面图
对于通过式楼梯,一般为11~18层住宅,通过计算,低抗震的一般地区两侧墙体为180mm墙厚完全可行。在此,探讨通过式楼梯,前提是两侧墙体为180mm墙厚。


标准层平面
先来看规范要求:

图图规范解读:
由上以规范可以得出:通过式楼梯,对于首层来说,除了要满足下地下室楼梯的疏散净宽1100mm外,还要满足无障碍通道净宽不应小于1.20m的要求。

首层平面图
当两侧墙体为180mm,正常做法,中间墙体为加气混凝土砌块墙体下,
下地下室楼梯结构尺寸需为:
95(扶手)+30(钢丝网)+1100(楼梯净宽)=1225mm

通道结构宽仅余:
2700(楼梯总开间)-180(两边墙厚)-100(中间墙厚)-1225(下地下室楼梯宽)=1195mm
通道总结构宽就仅余1195mm了,连无障碍1200mm都无法满足,更别提各墙面面层了。
因此,通过式楼梯,中间墙体为加气混凝土砌块墙体,2700mm开间正常做是无法实现的。
2700mm开间楼梯间要想实现,解决办法是首层门厅需同时满足三个条件:
① 两侧墙体180mm厚
② 需换中间隔墙材料
③ 换无机涂料或贴片石
具体如何做?
① 两侧墙体180mm厚
(略)
② 换中间隔墙材料(蒸压加气混凝土板)
将中间加气混凝土砌块墙体换为蒸压加气混凝土板(AAC板):

什么是蒸压加气混凝土板?

蒸压加气混凝土板(AAC板)预制板材无需考虑钢丝网片做法,且AAC板面层更薄,参考轻质隔墙做法仅需3mm。

刮腻子做法
当中间墙体为蒸压加气混凝土板(AAC板)时,
下地下室楼梯结构尺寸需为:
95(扶手)+3(AAC板面层)+1100(楼梯净宽)=1198mm
剩余通道结构宽为:
2700(楼梯总开间)-180(两边墙厚)-100(中间墙厚)-1198(下地下室楼梯宽)=1222mm
通道净尺寸为:
1222-3(AAC板面层)-15(普通面层)=1204mm。

通道净尺寸1204mm,满足无障碍1200mm要求,因此尺寸上来说,2700mm开间可以实现。
再来看,首层门厅层高较高,那100mm厚AAC板是否适用于首层门厅?
根据隔墙板长厚比为1:40,100mm厚的板,板最高可达4000mm,满足门厅高度需求。

③ 面层要求——需为无机涂料或贴片石
楼梯2700mm开间尺寸十分紧张,不仅要换中间隔墙材料,还要控制装饰面层的厚度。
A、普通做法——无机涂料
对于首层门厅来说应采用A级装修材料,所以必须使用无机涂料。
普通加气混凝土砌块墙体,其总抹面厚度为15mm。

中间隔墙为AAC板时,面层厚度仅为3mm。

刮腻子做法
B、高档做法——贴片石
大部分地区要求门厅需美观、高档、气派,因此需贴石材或大面砖。

入户大堂
对于首层通道净距仅剩余1230mm来说,尺寸非常紧张,很难满足。且AAC板表面光滑不易直接贴大面砖,而为贴大面砖等要考虑更复杂的工序,尺寸会更难以满足。
更重要的是,从抗震安全角度来说,为了避免在地震的时候,楼梯间墙体材料掉落,要做钢丝网加强,而若在如此高的门厅贴面砖的话,不符合抗震目的和要求,且门厅贴面砖危险系数很高。


那么,有没有既美观,又更薄、更轻柔、更合适的材料,实现更优的效果?
贴片石是一款柔性轻薄的墙面装饰贴片材,以天然石英砂、石粉为原料,能体现天然石材的质地,其厚度约3mm左右,平均自重3.5KG/㎡,最小弯曲直径可达10cm,具有天然石材的理化特性,且规格比常规面砖产品规格还要大。

贴片石
安全性高,杜绝高空坠落安全隐患:
贴片石重量轻,仅为石材的1/20,瓷砖的1/10,柔性的特点使其不会因热胀冷缩产生的剪切应力和建筑物的不均匀沉降产生的剪切力矩而脱落,而且可以通过贴片石是否有翘边起鼓的情况判断并提早介入维修,不会像瓷砖、石材一样突然掉落。即使坠落,因其轻柔薄的特性,坠落时的轨迹也是一条温柔的弧线,将伤害降到最低,在安全性方面绝对让人放心。

贴片石 实景
且贴片石燃烧性能为A级,满足耐火极限要求。

贴片石规格:

参考面砖做法,来看贴片石内墙面层厚度:
贴于AAC板之上:
3mm(粘胶厚)+3mm(贴片石材料厚)=6mm

贴于其他墙体之上:
9mm(找平层)+3mm(粘胶厚)+3mm(贴片石材料厚)=15mm

由此可以得出:
通道饰面层改为贴片石后,通道净宽剩余:1222 - 6(贴片石)-15(贴片石+找平层)=1201mm,满足无障碍1200mm要求。

基于墙体均为180mm厚下,两侧贴片石,中间隔墙蒸压加气混凝土板(AAC板)
2700mm开间楼梯可实现。
此外,贴片石不仅可用于首层门厅,还可应用于其他楼层的候梯厅及其他公共区域。
了解更多相关
新型材料——贴片石
扫描下方二维码

搜建筑材料专员
中间隔墙若选用100mm轻钢龙骨隔墙是否可行?

图图规范解读:

因此,轻钢龙骨隔墙不是实体墙,不可选用。

对于通过式楼梯而言,仅仅因为首层一个1.2m宽*2m深的通道,而整栋楼扩大楼梯间,有点得不偿失。作为设计师我们应该更负责任的做出更深入的研究。
我们为什么在2700mm开间楼梯设计上这么费心费力,做2700mm开间楼梯的意义是什么?
最大的目的是——可减少公摊面积

标准楼梯间图示
我们来计算一下:
通过式楼梯
2700mm开间比2800mm的楼梯节省面积:
(2800-2700)*5100=510000mm² (0.51㎡)
一个楼梯间可节省面积:0.51㎡
以一栋18层2个单元住宅为例:
一层节省面积约1㎡
18层住宅可节省18㎡

平面示意图
剪刀楼梯
2700开间比2800的楼梯节省面积:
(2800-2700)*7050=705000mm²≈0.7㎡
一个楼梯间可节省面积:0.7㎡,以一栋33层2个单元住宅为例,一层节省面积大概1.40㎡,33层住宅可节省46.2㎡

剪刀梯-标准楼梯间图示

平面示意图
3、装饰面层材料不应贴石材和面砖,需换为无机涂料或更高档轻质更薄的贴片石。
你还有更优的做法吗?欢迎留言评论
了解更多相关,新型材料——贴片石
扫描下方二维码,咨询搜建筑材料专员


粉丝超级重磅福利来了
本资料声明:
1.本文为建筑设计技术分析,仅供欣赏学习。
2.本资料为要约邀请,不视为要约,所有政府、政策信息均来源于官方披露信息,具体以实物、政府主管部门批准文件及买卖双方签订的商品房买卖合同约定为准。如有变化恕不另行通知。
3.因编辑需要,文字和图片无必然联系,仅供读者参考;
推荐关注
建筑规范平台
深度解读、剖析

合作、宣传、投稿
联系微信:soujianzhu006



