▲ 更多精品,关注“材料公社”
随着建筑行业的飞速发展,各种新型材料的研制,面板材料日新月异种类繁多,这期我们就来了解一种材料——纤维水泥板。
在上世纪70年代,在人们了解了吸入石棉的危害之后,便开始广泛地寻找其替代品。
纤维水泥板(fiber cement board 缩写为FC板),又称水泥纤维板,又称纤维增强水泥板,以水泥为基本材料和胶黏剂,以矿物纤维水泥和其它纤维为增强材料,经过制浆、抄取、加压、养护而成的一种新型建筑材料,以其优越的性能被广泛应用于建筑行业的各个领域。

相互交错的纤维水泥板模块 © iMAGE28, Daniel Wong
-01-
产品规格及分类
Classification
一、材料规格
其常规规格:长度:2000mm-2440mm
宽度:1000mm-1220mm
常见厚度:4-12mm
在国内厚度可延伸2.5mm-90mm,国内的板从尺寸一般为1200×2400或1220×2440,前者为国内通用标准,后者为国际通用标准。(其他较小尺寸可以任意切割)
二、材料类别
1、按里纤维来分:
①石棉纤维-以石棉纤维作为支撑,叫做石棉纤维水泥平板。
②不含石棉纤维-用纸浆、木屑、玻璃纤维来替代石棉纤维起增强作用的无石棉纤维水泥平板。
2、按密度来分:
低密度0.9-1.2g/cm3、中密度1.2-1.5g/cm3、高密度1.5-2.0g/cm3。

低密度水泥纤维板
低密度一般用于普通建筑吊顶隔墙等部位,中密度一般用于中档的建筑隔墙吊顶,高度密一般用于高档建筑的钢结构外墙,钢结构楼板等。
3、按压力来分:
有无压板和压力板之分。中低密度的纤维水泥板都是无压板,高密度的是压力板。

中密度水泥纤维板

高强度压力板
压力板又称为纤维水泥压力板,需要专门的压机生产,无压机的企业做不了。根据密度的高低,纤维水泥压力板分为:①普通板,密度1.5-1.75g/cm3;②优等板,密度1.75-1.95g/cm3;③特优板,密度1.95g/cm3以上。
4、按厚度来分:
①超薄板2.5-3.5mm ②常规板4-12mm ③厚板13-30mm ④超厚板31-100mm
-02-
材料特性
Performance
1、防火绝缘:不燃A级,火灾发生时板材不会燃烧,不会产生有毒烟雾;导电系数低,是理想的绝缘材料。
2、防水防潮:在半露天和高湿度环境,仍能保持性能的稳定,不会下陷或变形。
3、隔热隔音:导热系数低,有良好的隔热保温性能,产品密度高、隔音好。
4、质轻高强:经5000吨平板油压机加压的板材,不仅强度高、而且不易变形、翘曲;重量小适宜应用于屋面吊顶等方面。
5、施工简易:干作业方式,龙骨与板材的安装施工简单,速度快。深加工的产品也具有施工简便及性能更优的特点。
6、经济美观:轻质,与龙骨的配合,有效降低工程和装修成本;外观颜色均匀、表面平整,直接使用可使建筑表面色彩统一。
7、安全无害:100%不含石棉、苯及甲醛等有害物质,低于国家“建筑材料放射卫生防护标准”。
8、寿命超长:耐酸碱、耐腐蚀、也不会遭潮气或虫蚁等损害,而且强度和硬度随时间而增强,保证有超长的使用寿命,与建筑物同寿命。
9、可加工及二次装修性能好:可根据实际情况进行锯切、钻孔、雕刻、钻钉、涂饰、粘贴瓷砖、墙布等材料,既可以是质朴的清水混凝土效果又可以是纹理质感丰富、色彩多样的立面效果。
-03-
施工及安装节点
Install node
一、施工工具:
手锯、电动圆盘锯、裁刀、钻或群钻、手推刨或电刨、射钉枪、伞形螺栓、系墙螺栓、自攻螺栓、木螺丝、螺钉、射钉、吊钩、柔性纸带、密封膏、泡沫塑料条、金属护角、金属镶边等。
二、纤维水泥板施工法:
1、干式施工法:
① 螺丝应用大头绞利马螺丝,架簧可用0.8mm以上之防火镀锌骨料。
② 30cm下-65mmx35mm立柱。
③ 120cm下-加强横柱。
④ 室内施工板材衔接处需要3mm,室外需留5mm。
⑤ 锁螺丝距离边距最小需1.5cm以上,10cm间距锁-螺丝。
2、混式施工法:
① 螺丝应用大头绞利马螺丝,架簧可用1.0mm以上之防火镀锌骨料
② 40cm下-65mmx35mm立柱
③ 锁螺丝距离边距最少1.5cm以上,横向10cm间距锁一螺丝;从向最上,最下一排螺丝距离5cm,其他10cm。
④ 两层板材衔接处不可连续。
⑤ 板材完工灌浆前可在外侧横向锁上加强横柱,待灌浆完毕后拆除。

水泥纤维外墙挂板 · 安装步骤-示意图
3、外墙安装:
① 外墙现场加工,背面朝上防止正面崩边,切勿带水切割,切割后及时涂抹防水剂。房八斗提示板材切开后,及时安装,防暴晒和雨淋。
② 水泥挂板水平安装,起始安装披水横板,离地20cm。
③ 为适应环境湿度及气候变化热胀冷缩,上下板之间应留有0.2-0.4mm间隙,防止挂件不受力而下面一组挂件多度承重,造成整体墙面板下垂。安装前可以准备若干对应厚度的铁皮,确保安装间隙,防止脱挂。

外墙安装
④ 水泥挂板应悬挂于镀锌处理的轻钢龙骨或经防火、防腐处理的木龙骨上,采用防锈蚀挂件、自攻螺钉固定,填缝应使用耐候性好、弹性好的硅酮密封胶。
⑤ 板与板横向预留3-5mm伸缩缝,左右板之间放置铝合金接缝条,也可在间隙使用泡沫棒。
⑥ 水泥挂板安装时要与墙面保持一定距离,上下留置空气通道,防潮隔热。
三、纤维水泥板施工注意事项:
1、墙体可分为单层轻钢龙骨双面固定纤维水泥板和双层轻钢龙骨双面纤维水泥板错缝固定在龙骨上,中间填充岩棉或其它保温材料,这主要取决于隔户墙还是隔室墙,也就是取决于建筑隔声设计要求。纤维水泥板的厚度应取8-10mm(内墙)、12mm(外墙)板,光面向外。国外大都采用压条法或明缝施工。
2、卫生间、浴室等湿度较大的场所,板面须贴瓷砖,板面毛面朝外。待确认板的含水率低于10%以后,在板面上刷封闭胶,待胶干后,用AB胶粘贴瓷砖,切不可使用水泥砂浆以防止纤维水泥板脱落。

纤维水泥板立面 © iMAGE28, Daniel Wong
3、固定墙板的轻钢龙骨框架一定要平整稳固,具有可靠握钉力。
4、固定纤维水泥板时一定要从板面中心开始,逐渐向四周逐步延伸固定,方可避免板面由于固定不当而产生内应力,造成板面整体不平整。
5、用自攻钉固定水泥压力板时,其钉距:吊顶板200mm,墙板中间为300mm,四周为200mm,钉孔中心距板的边缘为13mm--15mm,钉头应低于板面0.3mm。
6、每个钉固定好后应该立即在钉头上涂抹底漆,以防止钉头生锈,影响整体美观。
7、在固定好的纤维水泥板面上需要开孔的部位按略大于实物的尺寸画好线,如是方孔,应在方孔四角各钻一孔,孔径10mm,再用手提式云石锯沿线切割。如是圆孔则在内切圆上钻一个孔,然后用曲线锯沿线切割,钻孔径10mm,清除飞边即可。
-04-
价格
Price
纤维水泥板可按平米也可按张计算。价格根据厚度,高低密度以及品牌的差异有所不同。
功能性板价格20-50元/平米左右,6-12MM。装饰性板60-200元/平米,6-12MM。阁楼板80-120元/平米,厚度20-30MM。
(材料价格根据其不同项目,不同品牌,以及订制等多方原因会有较大浮动,仅供参考)
-05-
应用案例
Application case
纤维水泥板应用范围十分广泛,薄板可用于吊顶材料,可以穿孔作为吸音吊顶;常规板板可用于墙体和或装饰材料,室内(卫生间)隔板幕墙衬板,复合墙体面板,户外广告牌,冶金、电炉隔热板,电工配电柜,变压器隔板等;厚板可当作LOFT钢结构楼层板、阁楼板、外墙保温板、外墙挂板等。
1、纤维水泥板在外墙的运用

全新的立面 © iMAGE28, Daniel Wong
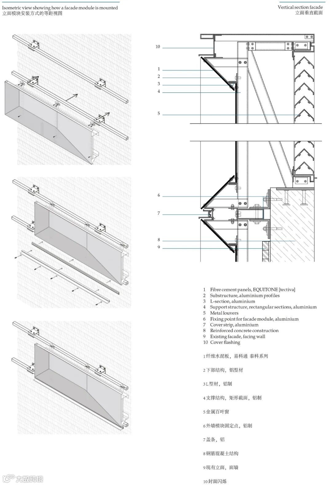
香港艺术馆,这座博物馆已有 23 年历史。现在已经被改造成一座现代博物馆,新的正面会立即吸引人的注意。模块化和三维质量塑造了全新设计的元素的特征:灰色纤维水泥板被切割成预定尺寸,并现场安装在铝制底座上。

相互交错的纤维水泥板模块 © iMAGE28, Daniel Wong
立面的设计灵感来自维多利亚港的海浪以及中国传统的砖砌建筑。由纤维水泥板制成的模块相互交错安装。面板安装的不同方式,有些是垂直的,有些是张开的,有些是平行于后面的混凝土结构,使外墙呈现出迷人的波浪状外观。
这些模块使用专门生产的各种铝型材来形成灰色纤维水泥板的子结构。

构造详图 ©香港特别行政区政府建筑署
成都大邑东部天府田园度假区,打造以田园酒店(民宿)为核心,以科普亲子,主题乐园,康养文化体验为活动内容的川西林盘田园综合体。

农科基地展示中心外观 ©聂欣

建筑外观局部 ©聂欣
选用光敏高密度水泥纤维板这种现代材料作为建筑屋顶与部分立面的材质,部分墙面选用了灰白色火山岩与木纹贴面,在感官上延续了传统民居质朴感的同时,也发挥了现代科技环保节能的优势。

项目结构及材料详解 ©成都天华西南建筑设计有限公司(杭州XXL设计团队)

本案采用的纤维水泥板节点示意图 ©成都天华西南建筑设计有限公司(杭州XXL设计团队)

本案采用的纤维水泥板示意图 ©成都天华西南建筑设计有限公司(杭州XXL设计团队)
白马涧lim咖啡餐吧坐落于苏州白马涧龙池景区,为建筑改造。

湖边鸟瞰 ©徐英达

从侧面看向建筑 ©徐英达

入口视角 ©徐英达

外立面光影 ©徐英达

入口夜景 ©徐英达
新建的外立面以钢结构框架与水泥纤维板组合搭建,局部新建外墙与内部原始墙体围合形成内庭院,引入自然光线。
2、纤维水泥板在室内的运用

入口区域 ©wen studio
东坡大剧院位于杭州西子湖畔,于1992年建成开放至今,由于时间的长久,大剧院日渐陈旧,希望通过改造,将无用的的装饰舍弃,回到建筑最初始的状态。大剧院于2019年完成整体改造。


单纯而有秩序感的门厅 ©wen studio
东坡大剧院的改造设计采取了减法的方式,把剧场中不同时期的构筑装饰拆除,还原空间的原始面貌,将空间、结构、设备再次梳理后,对观众可触及的空间进行必要的修饰。


竖向肌理的水泥纤维板 ©wen studio
剧院建设初期墙体的粉刷装饰以及休息厅阶梯护栏的元素留下并加以使用,墙面竖向肌理的水泥纤维板和不可忽视的楼梯栏杆是向历史的记忆,体现不同时代的印记。


观众厅 ©wen studio
拆除观众厅的吊顶和墙面装饰后重新塑造了一个更为开敞的观演空间,消除了原有观众厅的压抑感。


以最少的干预来重塑空间 ©wen studio
通过减法的方式,还原剧院的最原始面貌。
项目了解材料
材料厂家合作
扫描二维码 加好友联系
▼

电话:181 3265 7351
延伸阅读:(点击蓝字查看)
2.本资料为要约邀请,不视为要约,所有政府、政策信息均来源于官方披露信息,具体以实物、政府主管部门批准文件及买卖双方签订的商品房买卖合同约定为准。如有变化恕不另行通知。
推荐一个
专业的地产+建筑平台
每天都有新内容
扫描二维码关注

微信公众号“搜建筑”(ID:sjz9999)
合作、宣传、投稿
联系微信:soujianzhu006

