南京星河World幼儿园
Galaxy World
中国,南京
Nanjing, China
“我们不能切断孩子与自然的联系”
—— 手塚贵晴
愿景
VISION
_
每个孩子宛若童真部落里独一无二的精灵,精灵夜晚栖息于树屋。白天则择一处草坪,一处坡地,亦或一片森林,在其间肆意地奔跑、游戏、活动,感受四季的变换交替,触摸光影的流动变幻,吸闻泥土的芬芳气息,好一派天真无邪、纯真烂漫无忧无虑的部落孩提时代。
项目位于玄武区核心区,玄武湖近在咫尺,紧邻两条城市干道,位置优势明显。
设计之初,我们思考如何在5400㎡的城市空间,创造一个能让孩子感受自然的温度自由探索城市的空间的童真部落。
◎概念分析图
幼儿园设计中采用U型平面布局,由7个的错落有致“容器”组合而成,每个容器作为童真部落的生活空间,不同主题空间和公共活动区域串联起来的“容器”将内外院空间限定出来。
◎鸟瞰图
十二个班级,构成了一个城市的小型微缩部落,我们希望在这个专属于儿童的空间部落当中,能够营造出一个可以由孩子们自己主宰,接触自然,无限探索的游乐空间,在无形的欢乐当中健康自由地成长。而这个专属的童真部落正是建筑师想象成为天真烂漫的孩童,从孩子的角度出发,考虑孩子爱玩的天性,送给城市的一份礼物。
◎功能流线分析图
梦想
DREAM
“小世界”
_
◎中庭剖透图
成人的世界充满高楼大厦,车水马龙,而一棵树,一个白色的树屋,一方浅水,这就是孩子们的小世界。建筑承载了功能,树屋承载的是梦想,迷你的形态使它富于想象,打开它也许会蹦出一只兔子。
围绕内院是室内的回廊空间,尽量多的玻璃面,将内院之景纳入其间。同时,在中心的建筑体量上,试图创造一个通畅的场所,模糊内外的界限,激发孩子的探索精神。可以想象在不远的将来,这里会充满孩子们欢声笑语,如同流动的血液,生生不息,这是一个起点,也是一个回忆。
奔跑
RUNNING
“乐园”
_
◎活动空间串联
穿过中心的建筑,这里便是孩子们的专属乐园。利用场地与道路的高差,将折板的建筑屋顶形式运用到沿街市政绿化空间中,巧妙形成非传统形式的围墙。奔跑、攀爬、躲藏,儿童的乐园不是限定他们的行为,而是释放他们的天性。
◎屋顶活动场地
屋顶室外活动场地是乐园在空间上的延伸,天窗提供充足自然光的同时,让小尺度的“天空之城”激发孩子们的好奇心和想象力。
建筑在后场空间里,成为一个背景,强调实与虚的对比,透过玻璃面,视线可以到达内院的树屋,前场的廊架与广场,实现更多元的层次与空间的变化。
停留
STAY
“退让”
_
幼儿园的开口朝向西侧,设计退让出一个方形的广场,作为接送小孩的等候区域,退让的广场与城市共享,不但减少密集的人流对城市街道的压迫,为建筑与街道之间提供缓冲,而且使整个建筑形成了富有变化的城市界面。通过水与植被做为幼儿园的隔断,建筑做为一个背景,搭建出一个连接城市的空间,孩子们的家长可以在这里等候与交流,透过廊架,隐约可见园中孩童欢快的身影。
城市
CITY
“品质”
_
两个城市界面,分别都为三个盒子,天际线与围墙线统一为折板的形式,变化中带有一些俏皮感。除此之外,建筑并未过分渲染幼儿园的建筑特性,色彩上采用大面的白色和少量的木色,营造一个质朴自然、现代简约的建筑氛围。
材料最终选用浅灰色岩态板,大幅轻质环保板材本身可以实现与门窗一致的模数。南向及内院界面加入了跳动的阳台,磨砂玻璃在阳光的作用下,增添朦胧的美感。
◎城市面效果图
结语
THE END
_
儿童且不懂得空间形体
儿童或不懂得构建装饰
儿童亦不懂得设计语言
他们的心理往往就是可以玩
可以跑、可以跳、可以爬、可以藏、可以躲
可以摸的各种互动玩乐体验
寻觅专属于儿童的小小世界
聆听简单、纯真、质朴、无邪、烂漫的欢声笑语
守护未来花朵们的童真部落
是我们追求本真的一种探索
技术图纸
DRAWINGS
_
◎总平面图
◎一层平面图
◎二层平面图
◎三层平面图
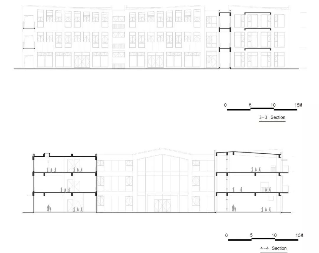
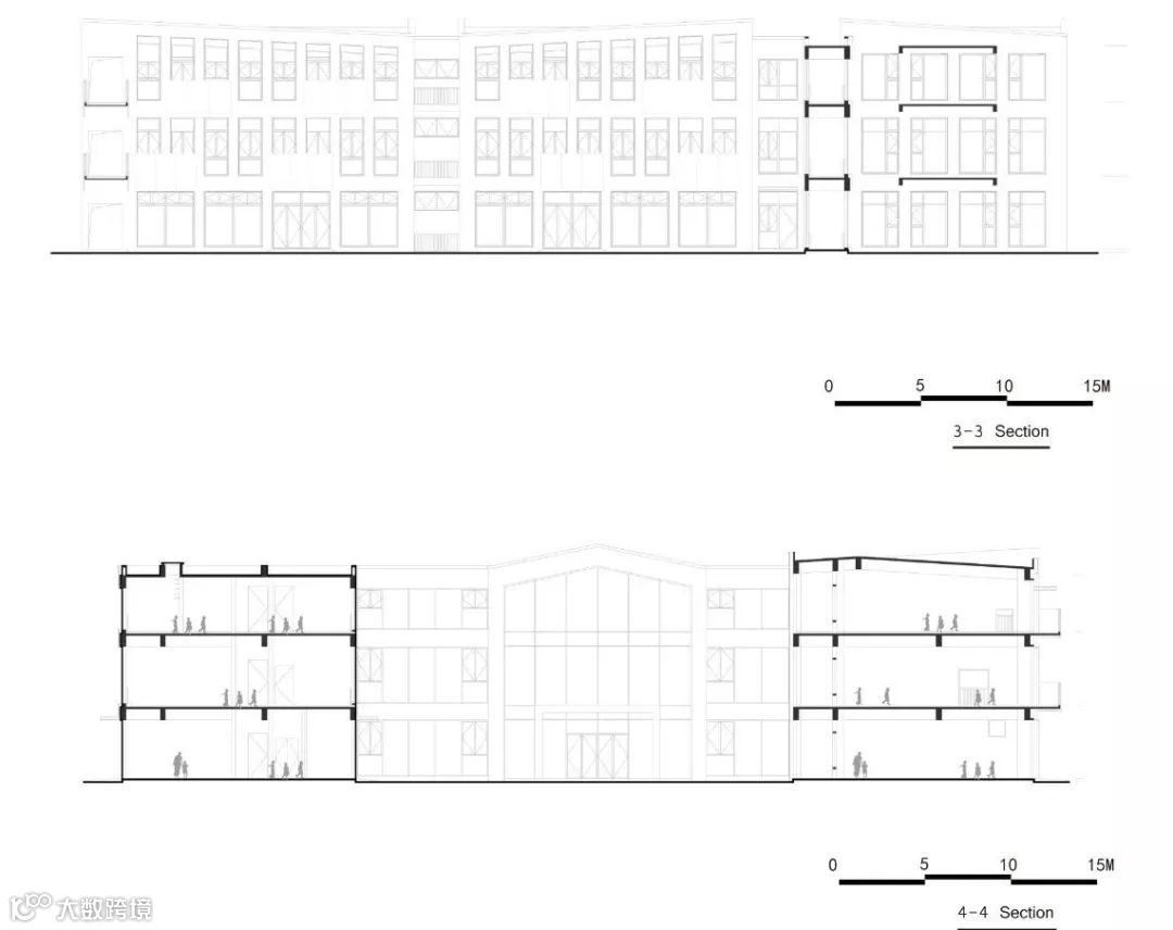
◎立面图

◎剖面图
◎节点图
工程档案
项目名称丨南京星河World•南京星河幼儿园
项目位置丨南京市玄武区红山支路以北
项目类型丨幼儿园
业主单位丨星河地产华东区域公司
业主团队丨丁云麟,周辰,柏祥飞,刘佳琦,王文丰,高俊,唐永强,郭翼
建筑设计丨上海日清建筑设计有限公司
建筑团队丨熊星,林琼华,朱建林
景观设计丨上海日清景观设计有限公司
景观团队丨章翼 王静 侯建邦 黄雪龙 王东皓 李朋城 郑碧峰 袁佳宾 吴蓓莉
建筑施工图设计单位丨南京长江都市建筑设计股份有限公司
建筑幕墙设计单位丨浙江亚厦幕墙有限公司
室内方案设计单位丨集艾室内设计(上海)有限公司
景观软装设计丨上海午忱艺术设计有限公司
建筑面积丨4326.37M ²
竣工时间丨2019.06
专业摄影丨张虔希
图文整理/Eric
本资料声明:
1.本文为建筑设计技术分析,仅供欣赏学习。
2.本资料为要约邀请,不视为要约,所有政府、政策信息均来源于官方披露信息,具体以实物、政府主管部门批准文件及买卖双方签订的商品房买卖合同约定为准。如有变化恕不另行通知。
3.因编辑需要,文字和图片无必然联系,仅供读者参考;

微信公众号“搜建筑”(ID:sjz9999)
合作、宣传、投稿
联系微信:soujianzhu006

