▲ 更多精品,关注“搜建筑”
厨房作为住宅中一个必不可少的功能区域,承载了每天的一日三餐和柴米油盐。作为家中的一个重要生活空间,厨房空间设计至关重要。
尤其是对于偏小户型来说,厨房空间太小、餐厅空间缺失等是很常见的现象,那么如能做到合理规划空间方位、布局安排等,还能简化家中的生活动线,同时增加空间层次感?
基于主流客群年轻化趋势,当下房企住宅产品的餐厨空间在布局、功能和外观上都有了新的迭代升级。
搜建筑本期带大家思考一下:
合理的餐厨尺度、动线及布局
① 尺度需十分考究
厨房作为烹饪的场地,面积不能太小。根据设计规范,设计时,两房一厅上以的户型,厨房面积至少为5m²;使用面积小于45m²的小户型,厨房面积至少为4m²,而单身公寓的厨房面积不应小于3.5㎡。厨房的尺度空间,最小不能小于3.5㎡。

JG/T 184-2011 住宅整体厨房规定:

搜建筑往期详细解析过厨房设计,感兴趣的可移步查看:厨房多种布局:精细化研究
② 空间布局更加灵活
厨房常见的布置形式有:一字型、双一字型、L型、U型等,如今的餐厨设计,已经不仅仅是U型厨房能做出亮点了,下面搜建筑带大家来看一下:
• 开放式厨房,餐厨一体化,放大空间延伸
U型社交餐厨+6人长桌,U型厨房是各类厨房布局中占地面积最小,收纳空间超大,厨房操作动线很短、最舒适的布局。
比如天津保利时代建筑面积约113㎡户型,厨房开放模式适合朋友聚会秀厨艺,在厨房做饭也能清楚的看到餐厅和客厅,和家人朋友互动。

天津保利时代建筑面积约113㎡户型图

天津保利时代样板间实景图
我们都知道U型厨房做开放式设计很简单,而且可开可合,L型厨房其实也可以,能使空间瞬间放大。
比如重庆·当代城MOMΛ建筑面积约88㎡户型,原本封闭的厨房设计做了开放式,L型厨房+餐厅设计,操作台连接餐桌,减少占地面积的同时也方便传菜出菜,约88㎡做出了100㎡效果。

重庆·当代城MOMΛ88㎡户型图 © ABD琥珀设计

© ABD琥珀设计
全开放式厨房,对中国家庭来说有不小挑战,最大的问题就是油烟,据说集成灶方案足以解决这一问题,那么大家就放心做开放式吧,整个空间会十分舒朗开阔。
如果实在接受不了全开放式设计,可以做半开放式,需要炒菜时,把折叠门窗关上,隔绝油烟。
可开可合厨房示意图
• 围合式厨房,实现空间的功能复合
比如南京中海方山印建面约127㎡的户型样板间,映入眼帘的是约4.5米大面宽LDK餐厨厅一体化的通厅设计,餐厅、厨房、客厅一样宽,将餐厅和厨房的空间进行叠加,实现了空间的功能复合,提高空间利用率,增加空间的流动感。

南京中海方山印建面约127㎡户型

南京中海方山印样板间实景图

南京中海方山印样板间实景图
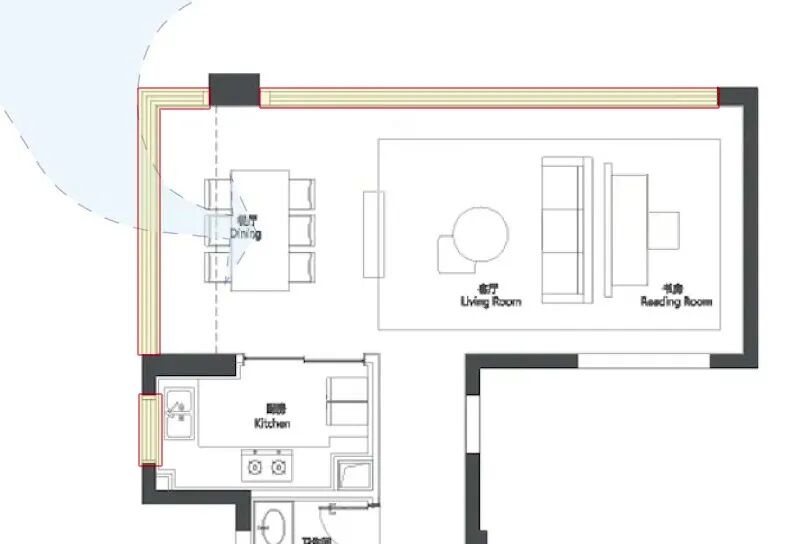
③ 科学合理的家政动线
比如水石设计研发的约144㎡新户型,由入户玄关+厨房+餐厅+客厅形成的大区域洄游。从玄关处进入,一边是更「享受型」的起居室,而另一边则是更「服务型」的厨、卫、家政区。

约144㎡房型的洄游空间
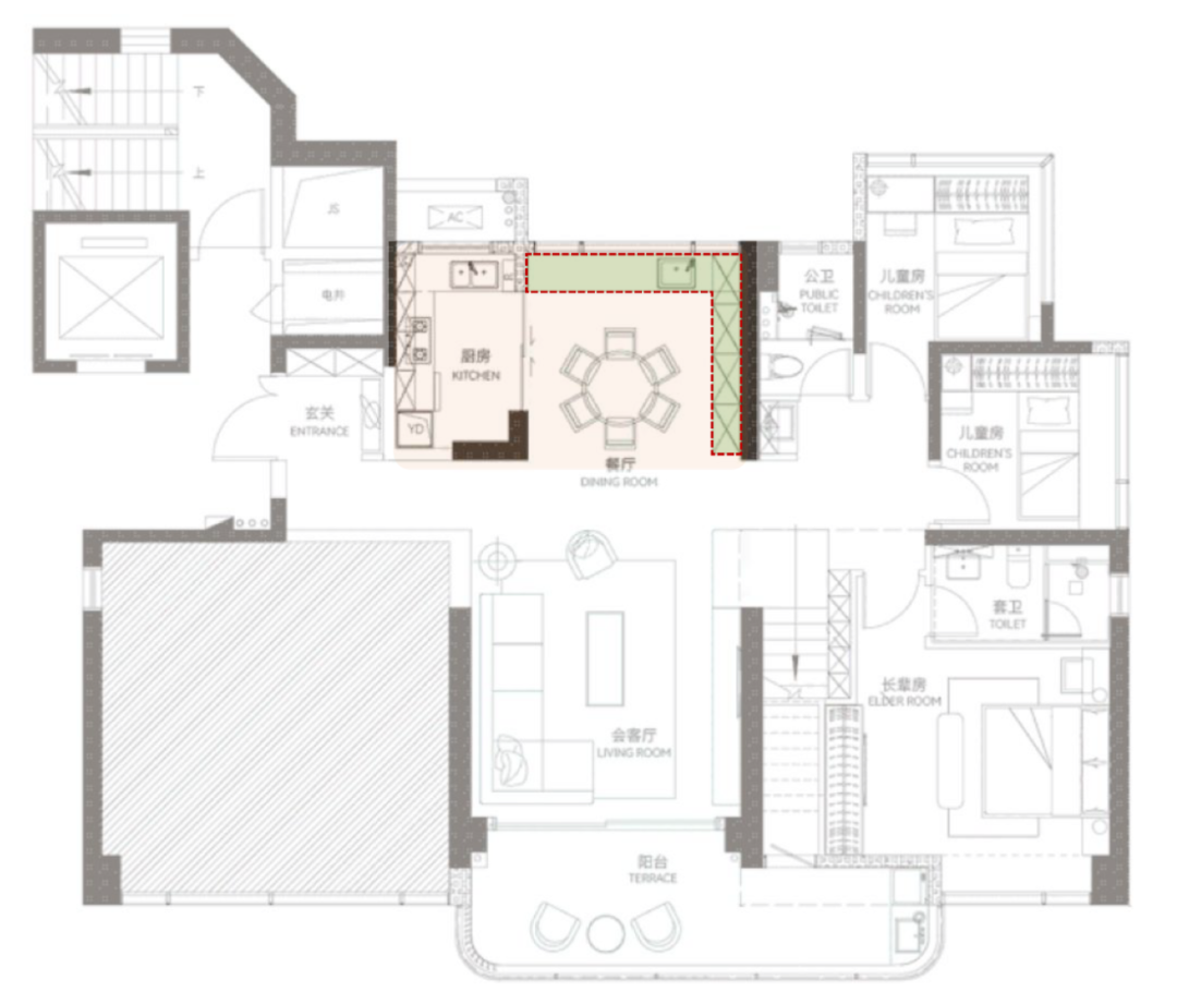
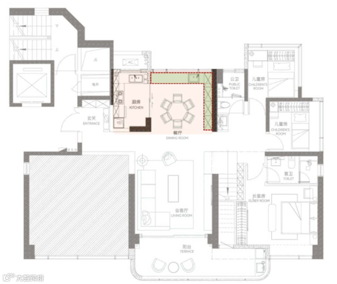
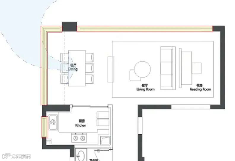
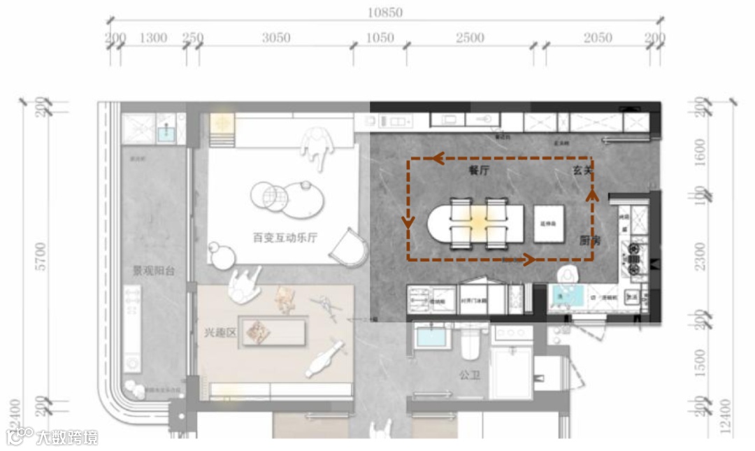
再比如保利新研发的约135㎡创新户型,通过将零散空间整合打通,形成环绕整各公区的环形动线,提升效率的同时节约了大量的套内面积。

环形动线示意图
餐厨示意图
动线环绕岛台、开放书房、X空间、仪式玄关和客餐厅。空间由固定变为流动,家庭活动变得轻松高效,有更多时间和空间可以与家人共处。开放厨房、家政柜、可开合书房,所有空间都有180°视野,做饭、洗衣、加班都能和家人产生交流互动。视线纵感和视野加强,带来超配感受。
延伸阅读:户型动线设计——怎样更合理?有对户型动线的详细分析。
餐厨附属功能更加复合
① 增加岛台,进一步强化餐、厨互动
近年因为疫情原因搜建筑发现,无论户型大小,都不太能满足居住者对厨房的需求,那么在餐桌的右侧延展出一段西厨台面,设计成西式厨房中的岛台成为了很不错的选择。
比如郑州保利·拾光年90㎡样板间开放式餐厅和厨房空间连为一体化,岛台配置增加了厨房与餐厅、客厅的互动性,使空间更大化利用,除了就餐以外,可以是厨房的延长操作台,也可以是夜幕降临下的一个小吧台。

郑州保利·拾光年90㎡改造方案

郑州保利·拾光年90㎡样板间实景图
② 餐边柜
比如中海龙湖百賢府建筑面积约163㎡户型,精心设计的明亮西厨和餐边柜,与餐厅相接,不仅方便使用还增加了大量的收纳空间。

中海龙湖百賢府建筑面积约163㎡户型图
中海龙湖百賢府厨房实景图
再比如下面万科这个建筑面积约115㎡户型,空间的活动区更加丰富,餐厨一体化形式,中岛台配置,大量的餐边柜设计,也成为强大餐厨功能的一部分,还可以存放经常使用的小家电等。
建筑面积约115㎡户型图
人性化细节设计
① 明餐明厨
对于厨房而言,需要窗户来保持通风,排走油烟,同时,餐厅也需要开窗,明亮的采光也会提升人们烹饪与就餐时的愉悦感。
比如北京禧瑞学府建面约120㎡户型,开放式厨房设计,可开可合与餐厅相连,一边做饭一边与家人互动交流。餐厅与厨房均做了全明设计,整个做饭、就餐环境大幅提升。

北京禧瑞学府建面约120㎡户型图
再比如温州外滩尚品建面约143㎡的看江户型,大面积的全明U型厨房,足以容纳多人同时操作,让生活多了一份烹饪时光的幸福。加上餐客区全明落地窗设计, 带来了270°全景环绕瞰江体验,在这用餐,不由自主地生出一股优越感。

温州外滩尚品建面约143㎡公区示意图

示意图
广州越秀居山涧建筑面积约190㎡户型,整个餐厅面积高达约17.6㎡,再加上约6.5m转角大飘窗,阳光透过全明落地窗铺洒一地,270°端厅推门见景,制造环幕震撼景观。
广州越秀居山涧建筑面积约190㎡户型图

广州越秀居山涧餐厨示意图
其实市场这么做飘窗规划的其实不太常见,倒不是有多难,但是只有尽可能这么去做才能带给业主从未有过且又真正需要的生活场景。
② 收纳
如今厨房愈发年轻化,(半)开放式的空间意味着家里的杂物将会一览无余,那么就要增大餐厨的储物空间。
• 厨房:合理规划橱柜,落地柜和挂柜的数量分配;户型无论大小尽量设计岛台,中岛柜体也可增加收纳。
• 餐厅:设计好餐边柜,用来收纳碗碟、酒类等东西,可以安放各种心爱的小家电,好看又实用。
储物收纳充足的厨房和餐厅空间,生活品质瞬间提升。尤其疫情后,很多人已经被迫养成了长期囤积食物的习惯,更应进一步增加厨房的收纳量。
比如柘壹设计的广州中海·观雲府户型,依据生活中的收纳痛点,对厨房等收纳系统全盘分析,以系统化解决,满足人居日常中的各种需求。
广州中海·观雲府建面约130㎡户型图
餐厨效果示意图


收纳示意图

餐厨实景图
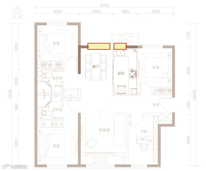
再比如水石设计对后疫情时代的健康住宅做了研究,改变窗户形式,可以使厨房扩大储藏量。

厨房窗设计示意图
传统厨房窗户设计通常是从地面1.1m处开至梁底, 宽度0.7-1.5m之间。由于窗户的原因往往会损失整面墙的上柜。

厨房窗设计示意图
若把普通窗改为“横向条形窗”,既能增加上柜储物量,操作台面也能更敞亮。有过装修经验的人应该了解,橱柜购买时都是按照延米计算(买下柜送上柜),一举两得。注:考虑整体采光,不建议在T4高层住宅中间户使用条形窗
③ 精装交付
对于精装品质的追求,是高品位人群的共识,各大房企如今也是越来越卷了,对精装细节层层把关,反复推敲。
比如万科翡翠东第约4.2米*2.3米的厨房,预留双开门冰箱位,烹饪区、操作区、洗涤区和贮藏区分区明确,只要小幅度的转身移动,就可以完成整个“洗、切、炒”整个操作流程,减少了人们的劳动强度与时间消耗。

万科翡翠东第建面约143㎡户型图
在细节考量上,橱柜抽屉采用阻尼设计,在保证推拉顺滑时,有效降低冲击力,愉悦使用心情;上悬轨道推拉门,地面无轨道免去了卫生清理的麻烦,还可避免厨房门开启占用厨房操作空间的问题;滴水沿设计将水盆四周的水导引至地面,防止水渗入橱柜,延长橱柜使用寿命。
结语
在快节奏的城市生活中,下厨房应当为居住者的生活减负,让厨房功能更具人性化。
本资料声明:
1.本文为建筑设计技术分析,仅供欣赏学习。
2.本资料为要约邀请,不视为要约,所有政府、政策信息均来源于官方披露信息,具体以实物、政府主管部门批准文件及买卖双方签订的商品房买卖合同约定为准。如有变化恕不另行通知。
3.因编辑需要,文字和图片无必然联系,仅供读者参考;

微信公众号“搜建筑”(ID:sjz9999)
合作、宣传、投稿
联系微信:soujianzhu006









