▲ 更多精品,关注“搜建筑”
GLA建筑设计
项目进程:施工已至车库顶板±0
01 源点
—— 企业科技创新的孵化之地
项目选址安吉灵峰山和龙山之间通山视廊的城郊狭长河谷地段,位于灵峰休闲度假与创意产业风貌展示区,东临浒溪西邻灵峰湖,山水环绕、山静水幽,是不可多得的山水宝地。
02 难点
—— “新”与“旧”、“松”与“紧”之间的矛盾



03 核心
—— 朝露玉笋,智慧编织,因地制宜,融于山水

山水环境里的产业园最生动的地方在于公共空间里人与人、人与自然、人与建筑的交流和对话,这种融情于景的办公体验,正是当下城市生活最缺乏的特征。山水环境既是空间秩序和流线组织的依据,也是设计对象本身。
建筑四面环水、东西面山,通过借景、框景、漏景、对景、障景等中国传统造园手法对山水环境进行限定,提供下沉广场、院落、连廊、露台、架空层、屋顶花园等公共交流休憩空间,与周边湿地景观相互渗透,视线与流线可见即可达,虚实掩映、情景交融、化整为零,将建筑体量消解于群山绿水之间。

04 未来
—— 激发创新创业的科创之心
本项目定位为科创类办公,需满足企业发展的全过程、全阶段对办公空间的使用需求。
根据发展规模,依次有苗圃期、孵化期、加速期、产业期等四个发展阶段,每个阶段对建筑面积、功能流线、企业形象的要求各不相同。

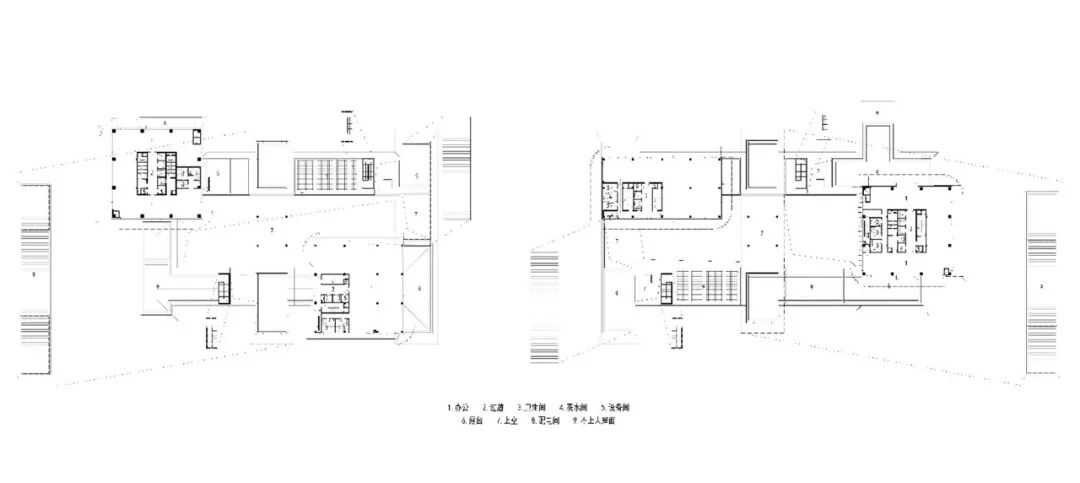
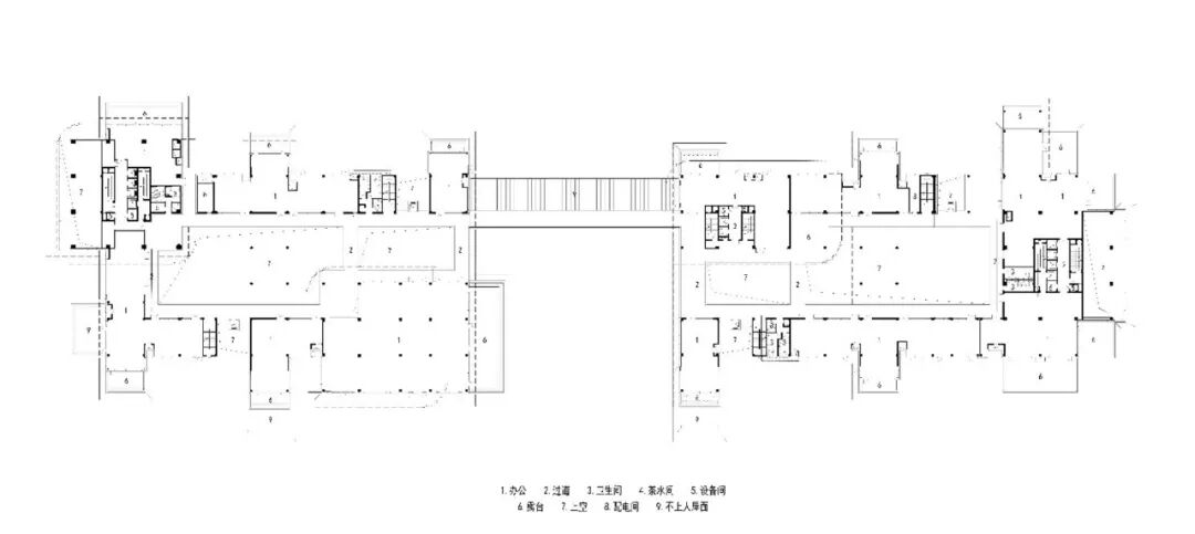
底部裙房以二层为主,局部一层。首层设置了精品超市、花园餐厅、健身房、咖啡吧、书店、体验中心、展示长廊、多功能厅、独立大堂、酒店式落客门厅等配套功能,二层及以上为办公。
裙房进深控制在12m左右,既满足双边自然采光、通风,室内又能自由灵活布局工位。每个办公单元之间可分可合,灵活划分,满足企业对不同面积段的要求。塔楼标准层平面1000平方米左右,可根据需求划分为大平层、两间、四间、六间、八间等。
05 结语
—— 与自然山水的碰撞
*技术图纸
项目地点:浙江安吉
本资料声明:
1.本文为建筑设计技术分析,仅供欣赏学习。
2.本资料为要约邀请,不视为要约,所有政府、政策信息均来源于官方披露信息,具体以实物、政府主管部门批准文件及买卖双方签订的商品房买卖合同约定为准。如有变化恕不另行通知。
3.因编辑需要,文字和图片无必然联系,仅供读者参考;
推荐一个
专业的地产+建筑平台
每天都有新内容
扫描二维码关注
微信公众号“搜建筑”(ID:sjz9999)
合作、宣传、投稿
联系微信:soujianzhu006
搜建筑·矩阵平台
阅读原文:“GLA建筑设计”更多精品



