
四大精品楼盘考察+董事长论见会
《新形式 新起点 新策略|区域房产高质量发展论见会》
2023年12月15

分享会亮点:
一、金沙集团的逆势发展之道
二、“红盘”背后的设计力量——金沙案例解析
三、高品质和成本控制的平衡
四、如何借鉴金沙的发展之路

2023年12月15日
金沙集团高管带队讲解
金沙集团,以全国领先的产品力和精细化管理能力吸引全国数千企业超万人到访参观学习的业内标杆,“稳健金沙有三宝,建筑、景观、物业好”的金沙品牌,已从商丘火至大江南北。
徐辉设计是金沙集团战略合作伙伴,金沙·東院、金沙·天悦、金沙·壹号院等代表性现象级红盘建筑/规划设计单位。
报名+咨询

咨询微信:soujianzhu03
咨询微信:soujianzhu008
金沙 • 東院
克而瑞2023年全国十大高端作品、产品力红盘
2022年河南省工程勘察设计行业奖 一等奖
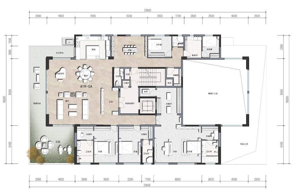
创新户型:420㎡一层一户,6.6m超高挑空


▲ 项目效果图
通过对户型的创新设计、严苛的尺度考究,打造极致和超尺度户型。

▲ 420㎡户型首层平面
420㎡户型首层设置超尺度惬意花园,推门即景,尽揽自然风光。
极简+理性:“无边界”设计手法

▲ 金沙 · 東院实景图
▲ 项目效果图
约90㎡开放式客餐厅搭配6.6m超高挑空,超大开间及超大落地窗设计营造无边界视觉效果,搭建疏朗开阔的空间,使房间通透感十足,视野豁然开朗。

▲ 户型平面图
精细化毛坯交付


▲金沙·東院交付样板间实景
2022年河南省三大轻奢美宅作品
2022年河南省工程勘察设计行业奖 一等奖
金沙·天悦是金沙集团首个金质项目。位于日月湖板块东侧约1.5公里,北邻城市公园,东拥包河景观,周边生态资源丰富,具备打造轻奢产品的天然基础。

△金沙天悦立面及下沉庭院效果图
在项目景观视野最好的高层楼栋,户型设计为多面宽超大尺度南向布局,将景观优势最大化展现,提高户型的价值点和竞争力。

▲ 多面宽超大尺度南向布局
金沙壹号院
2022年河南省工程勘察设计行业奖 一等奖
2022年河南省土木建筑科学技术奖 一等奖
在2022年市场最艰难的时期,创下开盘劲销、三月清盘的佳绩!
▲ 金沙壹号院实景图
在项目西侧,用极简手法和曲线艺术营造极具美感的生活艺术馆,形体设计灵感源于游艇流体美学,运用曲线的建构语言,赋予建筑更多元的外在表达,几何流线的韵律感,仿佛与周边湖面的微澜起伏共舞。

▲ 金沙壹号院实景图
▲ 金沙壹号院实景图
在产品设计上,一梯一户及私家电梯厅设计营造出居住的尊崇感;极致的大面宽——所有户型均3至4面宽朝南,保证南向采光;考虑社区景观及日月湖景观优势设计端厅户型,结合端厅设计转角阳台,270°观景,“巨幕”私享日月湖无限风光。
建筑顶部的飘板设计让立面线条富有更多的灵性与层次,整个建筑以无限延伸的姿态舒展于天幕,艺术张力及感染力得到释放。
▲ 金沙壹号院效果图
曲线在透视上拥有比直线更丰富的空间变化,这样的设计在实际居住体验上,往往能给人一种向两边无限延伸的视觉感,让住户能够看到更加宽阔的景观视野,同时也用曲线打破了高层住宅随处可见方正锐利的边缘传统。
▲ 金沙壹号院效果图
在用色和材料选择上,使用铝板营造低调的铝面效果,加之大面积LOW-E玻璃及石材的搭配,营造出丰富而纯净的视觉序列变化。同时也更好的反馈周边光影变幻,映射光影的层次和肌理,营造出无限的遐想和可能。
金沙 • 天和
金沙·天和位于日月湖核心发展区,与市一中新校区紧紧相邻,是金沙集团累积14年开发经验,集大成之作。
金沙·天和是金沙集团深耕日月湖片区的第一个高端项目,从前期规划设计、严格把控落地,再到交付前的联合验收,每一个环节,每一道工序,金沙集团高度重视。项目周边大道纵横交错,并与名校市一中新校区为临,且景观资源丰富,而在此基础上,金沙融入商丘传统特色,从格局到尺度,从建筑到景观,将品质贯穿每一个环节。






▲金沙 · 天和实景图

▲金沙 · 天和地库实景图

▲ 金沙 · 天和地下洗车服务中心实景
徐辉设计以“创意、技术、质量、标准化、服务”为核心优势,倡导“为城市负责,为业主负责,为公众负责,为未来负责”的设计宗旨,致力于以设计赋能产品,与客户携手共进。合作客户覆盖碧桂园、保利、绿地、万科、远洋、新城控股、龙湖、绿城等地产百强企业及政府部门、建设投资单位。

咨询微信:soujianzhu03
咨询微信:soujianzhu008
2023年·新产品方向
《 品牌地产 | 精品楼盘活动 》
杭州、苏州、上海
成都、郑州......
广州、福州、重庆
西安、青岛......
扫描二维码 加好友咨询
领队微信:soujianzhu03
推荐关注
全球精品楼盘考察
扫描二维码关注
微信公众号:全球精品楼盘考察
合作、宣传、投稿
联系微信:soujianzhu006


