不知道大家有没有一种感觉,110平左右的是一个很容易被“牺牲”的面积段,当下在满足了基本居住需求后,人居住宅设计不断演变,开始将更多的注意力集中到居住的舒适度,在小面积段的刚改户型对此也非常重视,大开间、短进深、多面宽朝南、南北通透、餐厅独立、动静分区等要素。
客餐厅,是现代家庭关系中最为重要的活动空间,随着人居时代不断更迭,关于客厅的设计潮流也一直在变,我们的房子也逐渐从早期的“竖厅”户型向“横厅”进阶。
著名建筑家约翰·波特曼曾经说过:“建筑的实质是空间,空间的本质是为人服务。”
也在近一两年的新推出房源中,将“大横厅”设计能用尽用。甚至有面积约110㎡的小三室做到了客厅南向面宽约6、7米的横厅、方厅户型。
今天小编就带大家一起鉴赏一批成都市场上新出的110㎡左右的“横厅户型”。看看都是如何做的呢?
成都东安湖畔花园,8栋住宅,整个小区建筑密度仅19%。
得益于此,项目采用的是双中庭设计,东西楼间距最大约105米,南北楼间距最大约88米,这样面积的双中庭相当于一个足球场那么大,跑步健身都不用健身房,下楼即可。
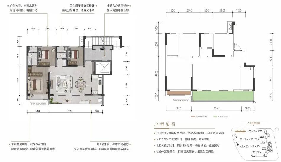
整个小区只有A、B两款户型,建面分别130㎡和110㎡,每栋楼有且仅有一个户型,今天来看一下建面约110㎡户型。
建面仅约110㎡的户型,但同样拥有约101%的得房率,赠送面积也高达22.5㎡。
这个户型独享约12㎡独立电梯厅,且是全透明设计,打造为入户花园、储物空间等,不用下楼也能有天、有地、有花园。
约9米的全景大阳台与约7.1米的大横厅组合而成的LDKB厅,比肩市面上不少140㎡户型的尺度,在同级别户型中是非常领先的。
整个户型三室两厅两卫,主卧采取的是递进式设计,房间-衣帽间-卫生间-淋浴间,双向通透,另外两个次卧的建面都超过了10㎡,兼具功能与尺度。

立面上,项目同样“别具一格”,以现代风格为基调,搭配曲线型立面设计+大面积LOW-E玻璃幕墙,整体色调以香槟色为主,同时用暖色铝板切割出恰到好处的立体留白,让项目超具辨识度!
成都万科·朗拾交子建面约113㎡的三室两厅两卫户型,为一梯两户纯板式结构,南北通透,南向约6.6米宽的可变宽厅,惊喜打造百变X空间,让这个空间可以是孩子的琴房,爸爸的书房,妈妈的收纳间……为同面积段产品品类中的佼佼者。
全屋全明设计,每个卧室都带有飘窗,让生活更加舒适。客卫干湿分离设计,让生活更方便。南向主卧为套房设计,约3.9米大面宽设计,让居者私享生活的乐趣。
成都邦泰·云璟的户型,层高均约在3.1-3.15米,这是市面上同面积段产品中很难见到的配置。
建面约113㎡户型很值得推荐,单梯独立归家,楼梯将两户完全分隔,房门前标配有约10㎡的独立归家门厅,门厅开窗面宽约达5米,独立性很好,同时在居住私密性上也有所保障。
该户型在室内整体做了动静分区,保证了主人家生活的隐私,可在一定程度上降低动区生活对主卧休息的干扰。
动区为大横厅设计,南向四面宽,客餐厅整体建面超35㎡,配合上约7米的横厅、约3.15米的层高,空间感拉满,居住的舒适度非常高。
静区,主卧采用了横置套房设计,相比传统的竖置套房主卧,本户型主卧会有更宽的采光面,主卧整体开间约达5.1米,有利于室内的通风和采光效果提升。
成都蜀道·宽境建面约117㎡的三室两厅两卫户型,全明归家,南向约12.5米四面宽设计,超大采光面。
本户型做了一个开间约7.05米的大横厅,外带约8.85米的大阳台,不仅突出室内空间尺度阔绰,同时也将室外美景充分引入,奢适生活尽享。
整个公区是LDK设计,形成一个中央大公区,不仅视觉上增加空间感,还具备很强的社交属性,能给生活带来了更多可能性。


主卧套房设计,配备步入式衣帽间、独立卫浴间,还带有约3.6米的大飘窗,让生活拥揽清风阳光。
成都建发华润·玺宸和著建面约116㎡的三室两厅两卫户型,全明独立归家,配有独立归家门厅,还有独立入户玄关,一外一内形成双重归家保障,出入更有仪式感的同时,也便于收纳随身物件,另外更加保障了居住者的私密性。
全屋全明设计,南向四开间,约6.6米横厅,让阳光照亮整个屋子,让生活更加阳光通透。
酒店式主卧套房,独立衣帽间、独立卫浴间,约3.5米大面宽设计,让居者私享生活的乐趣。
成都人居云缦林语建面约119㎡的三室两厅两卫户型,动静分区,将客厅放在了北边,实现客厅南北双向采光,约6.9m的大横厅,搭配宽幕景观阳台,270°视野无遮挡。客厅与阳台无缝衔接形成了将近50㎡的家庭聚会空间,功能性和尺度感双双在线。
卧室均位于内侧,超约20㎡的套房主卧面积,带“步入式衣帽间+干湿分离卫生间”,宽绰且私密,兼具功能与尺度。


大横厅空间整体通透度更高,更加开阔,减少了过道空间,空间利用率会更高。以上几个户型在小面积上同样做到了这些。
本资料声明:
1.本文为建筑设计技术分析,仅供欣赏学习。
2.本资料为要约邀请,不视为要约,所有政府、政策信息均来源于官方披露信息,具体以实物、政府主管部门批准文件及买卖双方签订的商品房买卖合同约定为准。如有变化恕不另行通知。
3.因编辑需要,文字和图片无必然联系,仅供读者参考;

微信公众号“搜建筑”(ID:sjz9999)
合作、宣传、投稿
联系微信:soujianzhu006