▲ 更多精品,关注“搜建筑”
正象设计
▲东南侧局部 ©DONG建筑影像
▲项目区位 ©ZEN
▲场地分析 ©ZEN
▲吴冠中画笔下的苏州
▲东南侧半鸟瞰(城市街角) ©DONG建筑影像
▲东北侧半鸟瞰(高架视角) ©DONG建筑影像
▲方案生成 ©ZEN
一个社交友好、全年龄友好的社区中心。
不只是把各个年龄的人汇聚到一个建筑空间里,而是可以做到空间有划分,各类人群都有专属空间,又能在公共的空间相遇,产生交互。
▲建筑与城市及社区景观融合 ©DONG建筑影像
▲朝向南侧城市街角的建筑入口 ©DONG建筑影像
▲朝向东侧城市公园的建筑入口 ©DONG建筑影像
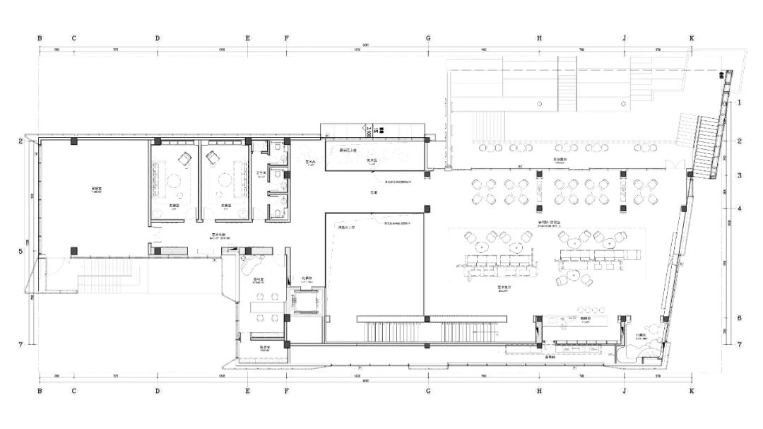
▲1层平面图 ©ZEN
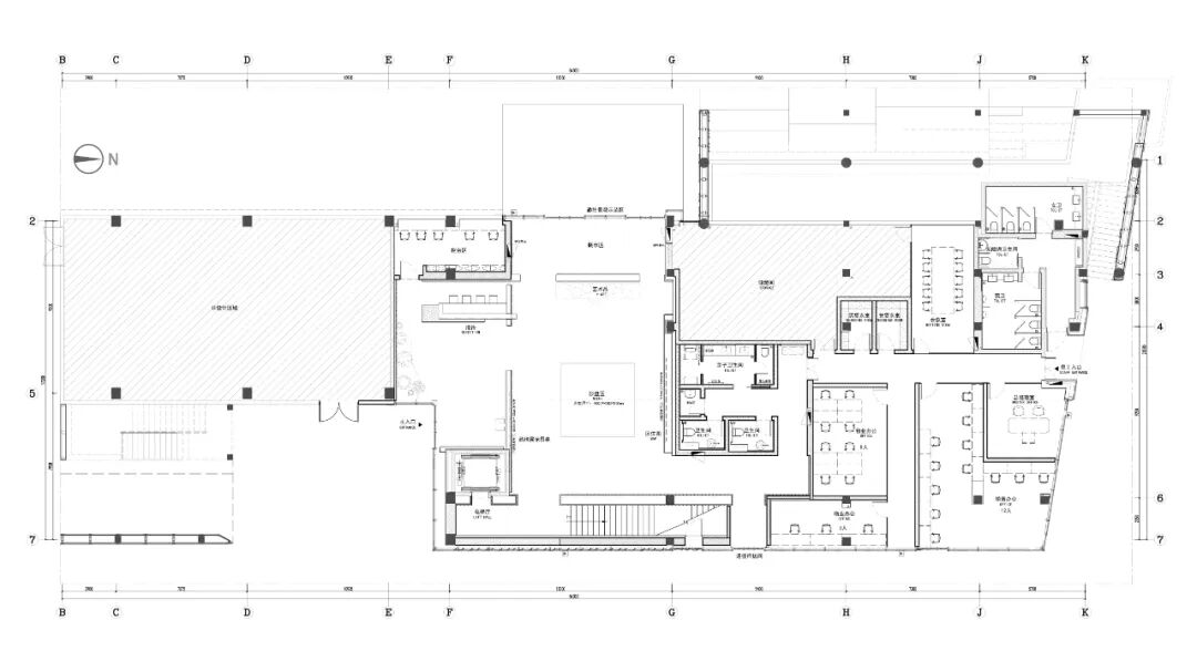
▲2层平面图 ©ZEN
▲1层主入口区域 ©DONG建筑影像
▲室内通高中庭 ©DONG建筑影像
▲2层公共区域 ©ZEN
▲2层冥想空间 ©DONG建筑影像
▲2层冥想空间 ©DONG建筑影像
—空间营造 —
▲狮子林平面图(局部)
▲进入建筑的路径 ©ZEN
▲进入室内的路径 ©ZEN
入口空间廊架:面向城市街角,透风漏雨、光影斑驳。进入建筑的过程中,感受着散落的光斑和轻拂地微风, 身处人工构架,却能体验到自然林荫中的心境。
▲入口空间廊架 ©DONG建筑影像
▲社区景观平台(在建)©ZEN
—材料工艺 —
▲设计灵感来源于瘦、皱、漏、透的太湖石
▲双层冲孔板幕墙系统 ©DONG建筑影像
▲全金属幕墙效果 ©DONG建筑影像
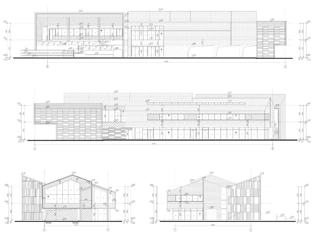
▲建筑立面图 ©ZEN
▲墙身设计 ©ZEN
▲细部设计 ©ZEN
—结语 —

项目名称:仁恒溪棠社区中心
项目地点:苏州木渎
建筑设计:正象设计
项目指导:聂欣
设计团队:刘科 赵永年 常磊
建筑面积:1708㎡
设计时间:2022.09
建成时间:2023.05
业主:苏州仁恒
景观:重庆市承迹景观规划设计有限公司
室内:木君建筑设计咨询(上海)有限公司
摄影:DONG建筑影像
本资料声明:
1.本文为建筑设计技术分析,仅供欣赏学习。
2.本资料为要约邀请,不视为要约,所有政府、政策信息均来源于官方披露信息,具体以实物、政府主管部门批准文件及买卖双方签订的商品房买卖合同约定为准。如有变化恕不另行通知。
3.因编辑需要,文字和图片无必然联系,仅供读者参考;
微信公众号“搜建筑”(ID:sjz9999)
合作、宣传、投稿
联系微信:soujianzhu006



