郑州中海·云鼎湖居
郑州中海·云鼎湖居位于郑州北龙湖北岸、魏河之滨,作为郑州发展的新核心地段,悦享交通便利,通达全城,坐拥板块内完善的医疗、休闲、商业、教育等配套设施。得天独厚的地理位置和少有资源使其拥有无与伦比的宜居环境。
△效果图
△视频来源:中海地产
▉ 总体规划
项目用地势平坦,地块呈矩形,北侧与魏河相望,紧邻绿地景观资源,居住价值最好,东西侧其次。团队以打造东方气质的院落空间为设计目标,希望通过合理规划布局,达到城市发展的和谐,人与环境的和谐与高质量的生活方式。
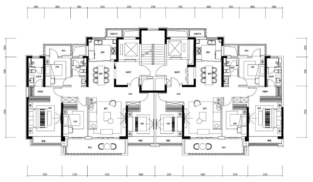
项目由22栋14-16层小高层组成,通过五排四列的规划布局,使得楼与楼之间间距合理化;点板结合的形式构成富有节奏感的建筑形态。
利用楼栋错位布局的方式对内营造大尺度、多层次、私密感极强的庭院空间;对外结合周边景观资源,促进院落空间与城市空间景观的相互渗透与交流。从而把整个项目打造成北龙湖外隐内奢,低调雅致的生态居所,为业主提供舒适独有的生活体验。
▉ 归家礼序
社区大堂前期做售楼处,交付后为物业配套用房。既可以前期承接销售和展示的功能,后期又是功能完善的社区大堂。整个社区大堂低调内敛,朴实有华,契合项目轻奢的调性。
秉持“归家即归心、归家即归境”的理念,团队精心打造轴线对称的环抱式建筑分布及围合的高层形象,结合景观空间形成多重礼序归家。
层层递进的空间关系,流线的迂回设置,自然的环绕合围,空间之间互相渗透,室内室外互相融合。业主从入口进入社区内部,瞬间就从繁华都市转入悠然秘境。
此外,水、树、建筑的融合搭配,把愉悦、松弛的慢时光体验真切植入,让生活真正走向舒适,且实现与居者的精神共鸣。
▉ 产品设计
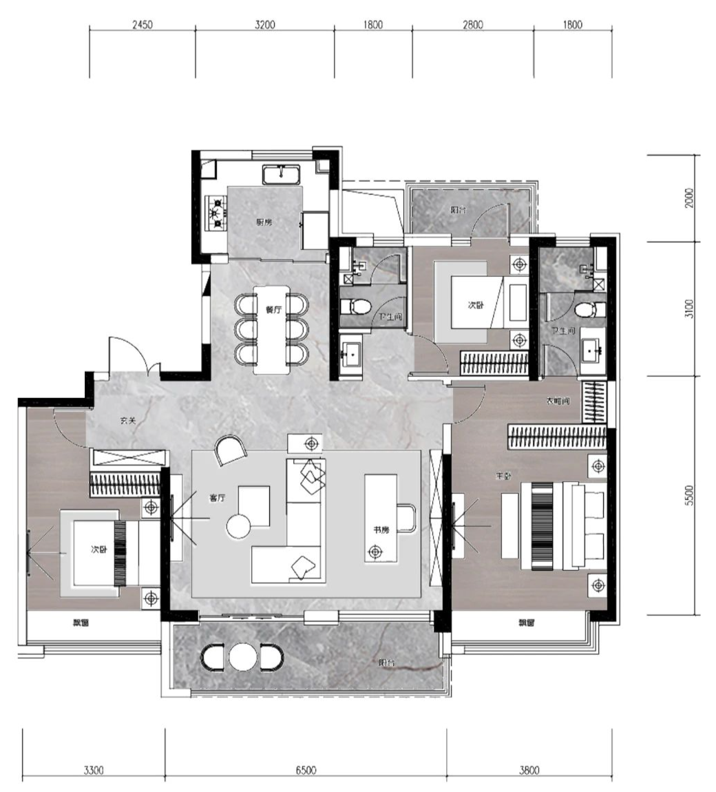
中海云鼎湖居全部实现2梯2户,首层层高3.5米,其它楼层层高3.05米,均是大面宽短进深、南北通透的户型设计。
整个项目有175㎡、149㎡、149㎡(宽厅)、127㎡四种户型,其中的149㎡户型,做到了四面宽朝南设计,还有LDKG客餐厨一体化形成一个以合厅为中心的居家空间,满足业主对于功能组合和居住舒适感的需求。
△室内实景(电梯厅/客餐厅/客厅/主卧)
同时入户的超大玄关,南北双向大阳台和南向卧室飘窗设计,使整体的视觉感受更加通透,也使得通风和采光条件变得理想。
▉ 立面设计
结合郑州“中原腹地”“文化深厚”“现代都会”的印象标签,建筑以现代风格为主。在塔楼一、二层到7.1米处,选用质感温厚的米黄色石材,彰显端庄典雅的品质。配以灰色铝板、陶彩石诠释屋顶和门窗阳台的装饰。
色彩分明的立面更加注重细节的打磨,通过线条粗细进行平面划分和组合变化,立面效果更加丰富,富有机理。屋顶挑檐打造,使自然光线和阴影撒落于玻璃之上。
△大门实景
门口以大面积的米黄色石材、香槟色铝板、玻璃砖构造出温馨的归家氛围,对称为主的设计体现秩序之感。
△鸟瞰图
我们试图在人居产品的迭代中实现居者、环境与城市的“多赢”——为居者创造独特的品质,为环境创造共生式的场所,为城市创造标志性的封面。在悠然园林与建筑光韵中连接出新的空间维度,傍河而居的惬意感,浸入人们心中。
完整项目信息
项目名称:郑州中海·云鼎湖居
项目地点:河南省郑州市金水区
用地面积:约72440㎡
建筑面积:约258300㎡
业主单位:中海地产郑州公司
业主团队:刘鹏飞、陈延聪、曲萌
设计单位:深圳市库博建筑设计事务所有限公司
服务范围:建筑方案设计
参与人员:向大庆、何光明、李勇、寻孝发、瞿颖、卢永勤、云泽飞
施工图单位:长厦安基工程设计有限公司
景观单位:深圳奥雅设计股份有限公司
室内单位:上海恩威建筑设计有限公司
设计时间:2020年
建成时间:2023年
照片来源:罗汉工作室陈俊伟
本资料声明:
1.本文为建筑设计技术分析,仅供欣赏学习。
2.本资料为要约邀请,不视为要约,所有政府、政策信息均来源于官方披露信息,具体以实物、政府主管部门批准文件及买卖双方签订的商品房买卖合同约定为准。如有变化恕不另行通知。
3.因编辑需要,文字和图片无必然联系,仅供读者参考;
微信公众号“搜建筑”(ID:sjz9999)
合作、宣传、投稿
联系微信:soujianzhu006



