▲ 更多精品,关注“搜建筑”
越来越多的90后单身贵族,或者年轻夫妻,不再满足父母自住的老房子,将生活品质作为置业的主要考虑原则。打破传统定义,在空间的使用上有了新的追求,90后自身的精神、游戏、文艺、运动、社交方面的需求,需要特别关照。
然而,市面上动辄120平的洋房户型,让购买力有限的年轻客户望而却步(本期暂不考虑成熟家庭,多数90后的家庭人数N小于等于3)
本期围绕客、餐厨空间、卫浴空间、卧室空间,来解读万科是如何进行空间升级的?

将传统上相对独立封闭的空间关联起来,生成功能多变的生活场景,以更多的空间容纳全家人互动。
① 客厅
客厅,不只是用来看电视的。年轻的90后更容易接受越来越多元的知识与信息,更注重自由与健康,放松与乐趣。作为家人聚集的场所,客厅承载了休息、交流、健身等功能。

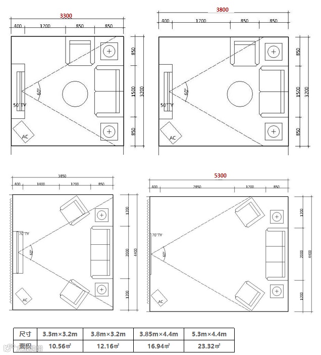
客厅使用场景示意图

客厅尺寸示意图
90后需要的是一个可躺可玩可休闲放松的起居厅,南向超大横厅,夜晚则可以关闭作为温馨的观影室。
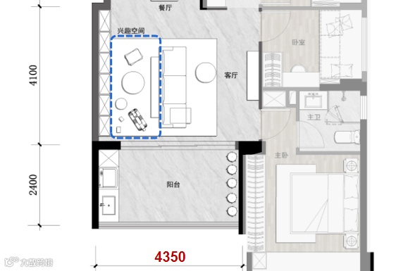
比如深圳万科都会四季花园约94㎡户型,客厅变家厅,约4.3m超广角竖厅设计,客厅变家厅,散点式家具布局和兴趣角落,营造出更多的家庭交互空间。

深圳万科都会四季花园户型示意图
这样的起居厅拥有无限可能:可以作为儿童游乐场,可以作为轰趴、交友空间,更可以作为影音室、电游室、健身房、书房等多功能室。

深圳万科都会四季花园示意图
万科东望90㎡三房两厅,看起来平平无奇,但是这个厅是270度的边厅,边厅的好处就不多说了,懂得都懂,出现在90平的户型上,可以说是非常厉害了。

万科城市之光东望90㎡户型示意图

万科城市之光东望样板间实景图
② 餐厨
做饭,不单是为了吃饭,而是一种生活方式,90后他们的厨房承担了社交功能,更是朋友圈打卡的重要场地。
90后厨房需求调研
随之而来的厨房问题也是不少:
• 厨房收纳空间太少,放不下“设备控”的那些小家电;
• 厨房太小,操作时显得拥挤;
• 厨房操作台面不够,备菜、拉面不够用;
• 厨房没有放双开门冰箱的位置;
• 厨房的洗切炒动线不合理;
......
• 开放式厨房+岛台
现在年轻人的生活方式,如健身餐、早餐空间、水果空间或亲子陪伴等无油烟操作,使得他们需要一个新的操作场景更喜欢半开放式厨房。
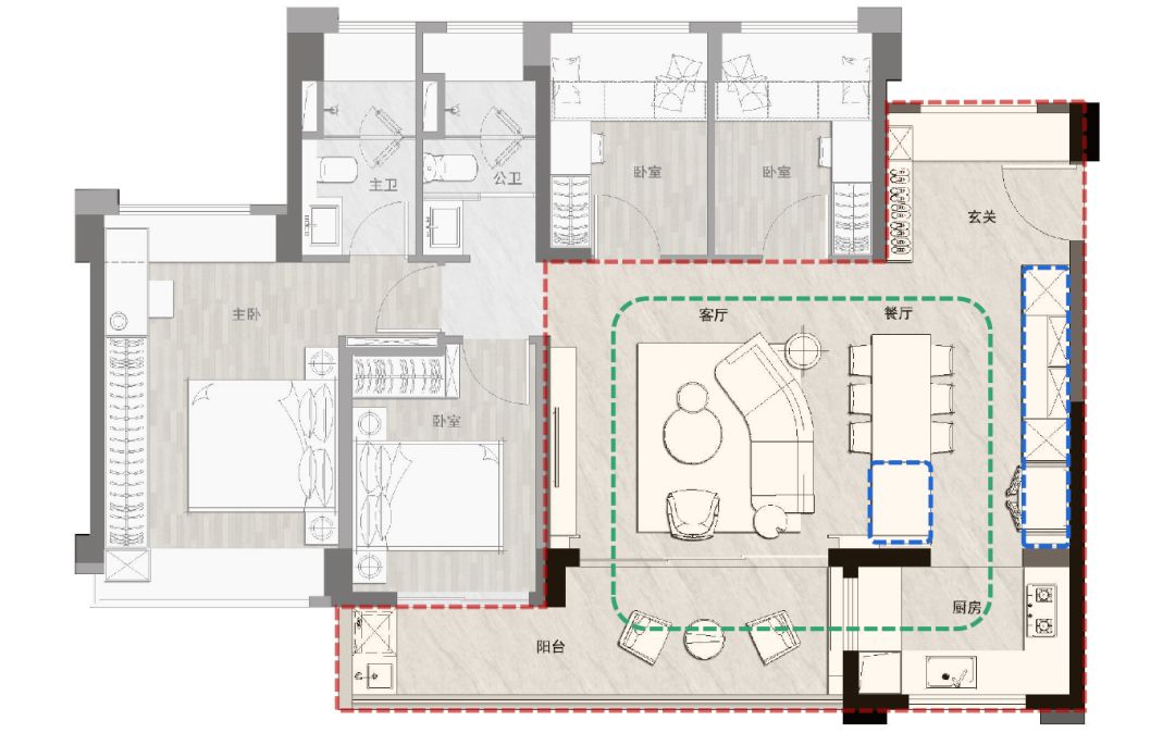
比如下面这个建筑面积约115㎡户型,空间的活动区更加丰富,餐厨一体化形式,中岛台配置,除了就餐以外,可以是厨房的延长操作台,也可以是夜幕降临下的一个小吧台,客厅与超大阳台相连,可以和家人一起畅谈聊天。
深圳万科都会四季花园约115㎡户型示意图
比如万科新家观2.0岛台的引入,成为连接厨房和客厅的重要设计,也成为强大餐厨功能的一部分。这一开放空间,既可以存放、使用小家电,还能完成配菜、摆盘等简单操作,变成融合社交、西厨、工作、休憩的复合型区域,让厨房社交走进每家每户。

万科里享家 岛台实景图
岛台的引入,成为连接厨房和客厅的重要设计,也成为强大餐厨功能的一部分。这一开放空间,同样820mm科学台面设计,既可以存放、使用小家电,还能完成配菜、摆盘等简单操作,变成融合社交、西厨、工作、休憩的复合型区域,让厨房社交走进每家每户。
以前一般是豪宅户型才会做岛台,上海万科启宸甚至连75平户型都做了岛台,可见岛台已经作为单独的模块引入户型迭代中了。

上海万科启宸样板房示意图
很多人会说,开放式厨房不符合中式厨房的特点,因为我们做饭都是重油烟,敞开式未来会很不实用
是的,这个确实是,仅仅为了打开厨房而让油烟乱串,这样的创新没有必要
但是这就是万科厉害的地方,因为整体的设计逻辑,万科是牵动工程、设计、精装修一起参与的,所以对于这一块,精装修部分早就考虑到了

上海万科启宸样板房示意图
整体的两侧都做了移门,在实现了空间通透性之后,厨房依然可以保持可分可和的存在,丝毫不影响未来的实际使用。
由于厨房移门的巧妙设计,万科苏州让厨房既在开放式和封闭式之间自由切换。

苏州万科实景图
• 人人都是“设备控”
食材获取和加工变易,传统烹饪功能减弱,利用厨房器具和空间进行有别于传统烹饪的兴趣交流等成为厨房功能的新拓展,全都是“设备控”。

厨房家电尺寸示意图
操作流程:1储存食品取出——2洗切——3粗加工——4爆炒——5备餐——6用餐:
厨房操作流程示意图

厨房布局示意图
广州增城万科城约95㎡样板房实景图
• 收纳系统
家电种类增多,厨具类型增多,占用空间却在减少。
厨房设备日益复杂化、专业化,设备集成化也使得家电功能不断合并,占用空间减小,布置方式趋于合理,收纳集成化使收纳空间合理精确。

橱柜及餐桌收纳示意图
岛台可以作为一个收纳系统来使用,比如万科里享家餐厅就作为一个交流平台来设计,同时具备强大的收纳功能。这样的岛台,不仅女主人喜欢,孩子和男主人也喜欢。

万科里享家 岛台实景图
天津万科116平米的户型,厨房做得非常非常小,是一个1.5米乘以2.7米的空间:

看户型图感觉还好,但是你看下边实景图:

厨房空间很小,餐厅的面积大的有点过分,未来整体装修之后交付的样本是这样的:

未来餐厅的位置
围绕着餐厅的部分整体的墙面都规划了收纳体系而操作台体系,换句话来说:万科并不是把厨房做小了,而是把厨房细分成了两个区域。
中厨收纳系统:
提供充足的吊柜地柜收纳空间,灶台下方的三个大抽屉为餐具碗碟收纳提供了充足的空间。
“大L”西厨收纳墙体系:
独立的区域就是集约洗切烹这三个工种,而对于厨房其他的冰箱、收纳、设备等功能,整体设计整体选择放在了餐厅的部分。


西厨收纳系统示意图
③ 阳台
阳台不仅增加了室内空间延伸性,也增加了功能的多样性:

阳台使用示意图
在这里,可以健身、休闲、手工DIY、孩子在这里养宠物,父母在这里养点花花草草,妻子在这里练练瑜伽,丈夫在这里喝茶看风景,如果有朋友来访,这里就是能充分享受自然的会客厅......满足年轻人对小资生活方式的需求。

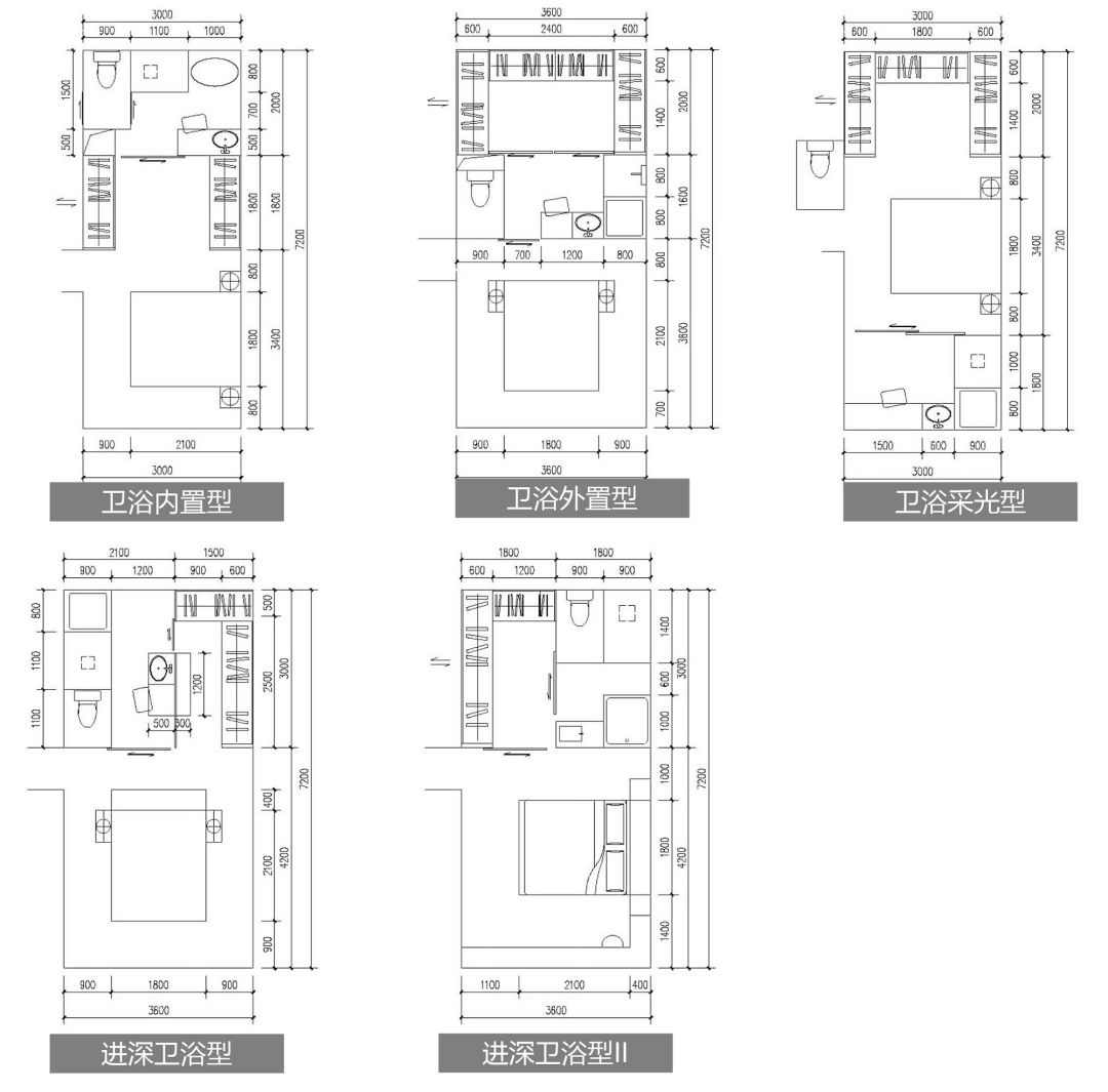
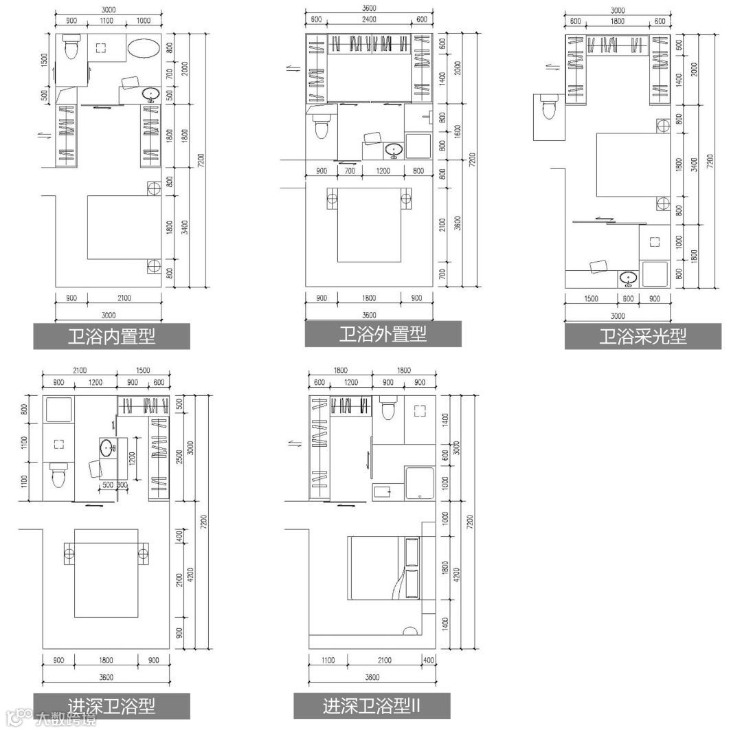
现代的卫生间是住宅设计中很重要的功能空间,随着社会文明的发展,人们对卫生间的功能需求不止于入厕了,需要同时具备洗漱、洗衣、化妆、沐浴等功能。

卫浴用品示意图
卫浴器具示意图
比如广州增城万科城项目的洗手间采用飞机头等舱的洗手间材质,更容易打扫、保持洁净,加上干湿分离,全家洗漱不排队。一体式洗手盆,避免接缝胶的发霉或断裂。浴室配备浴霸,冬天洗澡前后都保暖。

广州增城万科城户型示意图
广州增城万科城约89㎡样板房实景图

卧室,不只是用来睡觉的。年轻人更在意享受当下,喜欢多元的空间体验。所以摒弃以往只有睡眠功能的居住空间,提供更灵活可变的空间体验。

主卧模式示意图

收纳空间示意图
收纳空间示意图
比如南京首开万科·江悦光年约113㎡户型主卧完全是一个独立的“小家庭”,
南京首开万科·江悦光年约113㎡户型示意图
关上门成为超级主卧套房,集起居、学习、衣帽、梳妆、主卫生间五大功能为一体。空间使用率超高,又使活动更加自由方便。
结语:
年轻人而言,对精致生活的渴望是不分年龄的,真正精致的人,对于美的追求,从来都不只是用金钱衡量的表面,而存在于生活的点点滴滴。户型创新的逻辑,亦是如此。
本资料声明:
1.本文为建筑设计技术分析,仅供欣赏学习。
2.本资料为要约邀请,不视为要约,所有政府、政策信息均来源于官方披露信息,具体以实物、政府主管部门批准文件及买卖双方签订的商品房买卖合同约定为准。如有变化恕不另行通知。
3.因编辑需要,文字和图片无必然联系,仅供读者参考;
微信公众号“搜建筑”(ID:sjz9999)
合作、宣传、投稿
联系微信:soujianzhu006










