
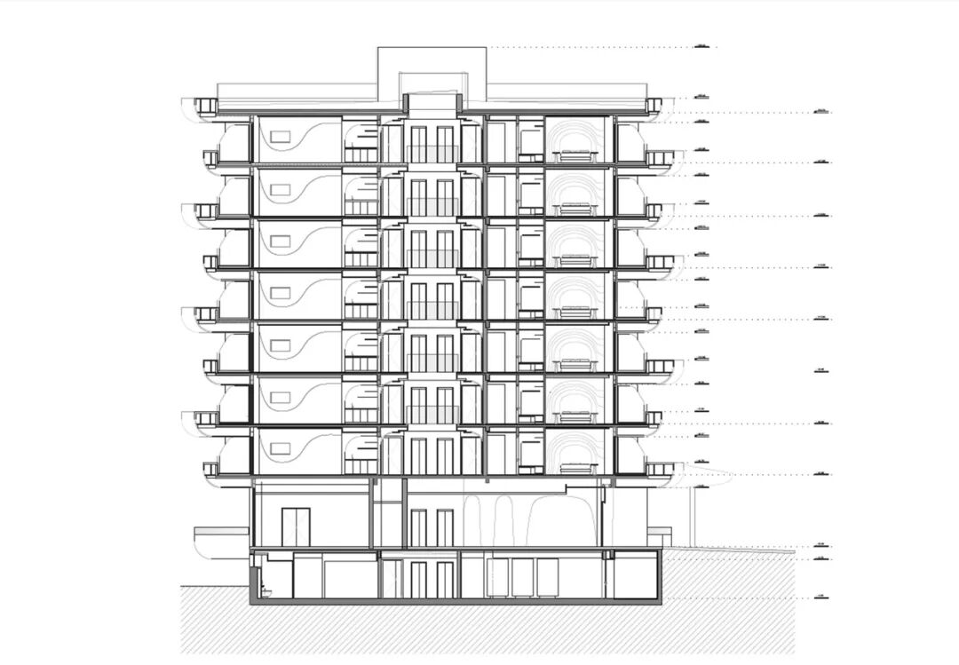
The total redesign of the iconic, mid-70s, “Hanikian” hotel, embodies elements of the topography of its legendary location on the Corinthian Gulf, shaping a new architectural identity. The formerly rectangular, repetitively formed, modernist building was endowed with an organic form, inspired by landscape formations under the bright natural light.

The design concept for the new hotel highlights the material and sensual properties of its location on the northern edge of the Greek Volcanic Arc, besides “Sousaki, a craterless volcano silent for 2.7 million years. Inspired by a mythological embodiment of a volcanic eruption, the design introduces panoramic views, and emulates the fluidity of lava: The square volumes of the building become a stack of white “pebbles” while successive curved surfaces on the facades of the building give a dynamic form and a sculpture effect that creates an overall sense of movement.

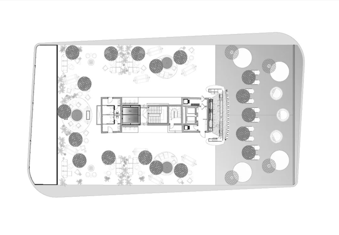
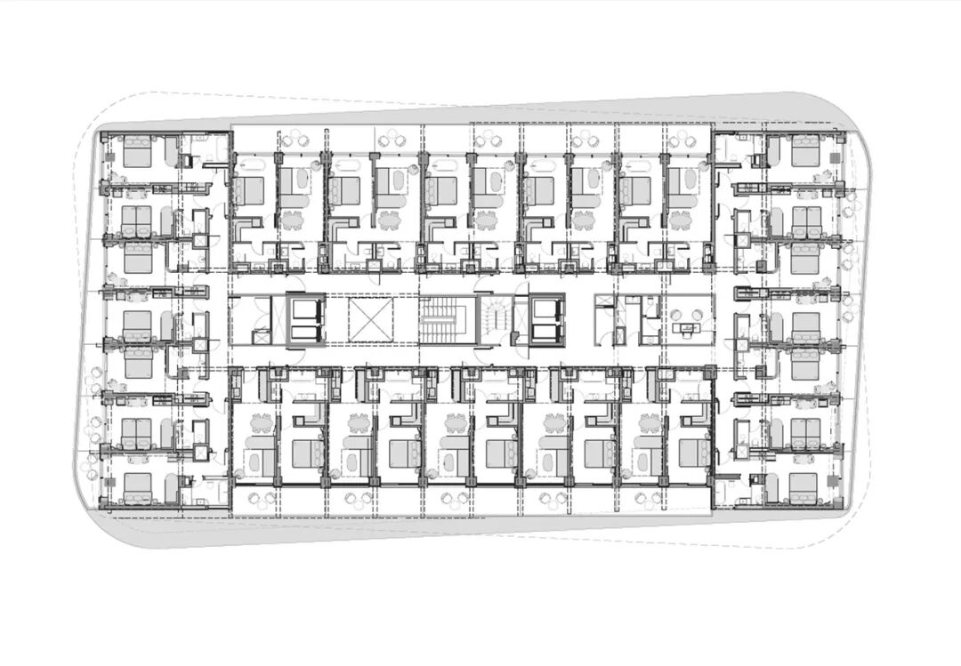
The hotel offers 166 luxury rooms and suites providing indoor dining, two bathrooms, and freestanding bathtubs. Common spaces include a lobby, an indoor sea view bar with a bronze sculptural countertop under an undulating ceiling, an all-day dining restaurant, gym, and spa, as well as a magnificent infinity rooftop shallow pool with bar and lounge seating areas offering extended views over the Corinthian Gulf. Consecutive curved surfaces create a renewed visual identity, in exterior and interior walls, finishes, lighting design, and decorative elements.

The color palette features volcanic shades of terracotta and amber, bronze mirrors, gold, and tinted glass. Bespoke furniture designed for all common spaces offers functionality while following contemporary aesthetics, inspired by distinctive natural elements. Emphasizing energy savings during hotel operation and a low energy footprint, the hotel was designed with creativity and innovation while encompassing functionality, sustainability and cutting-edge aesthetics.

Isla Brown Corinthia was awarded the IDA 2022 Architecture/ Hotels & Resorts Design GOLD Award. The International Design Awards (IDA) recognizes, celebrates, and promotes exceptional design visionaries and discovers emerging talent in Architecture, Interior, Product, Graphic, and Fashion Design worldwide. The project also emerged as the winner in the Excellent Architecture Category of the prestigious international German Design Awards 2024, presented by the German Design Council. The German Design Awards set international standards for innovative design developments and competitiveness in the global market.
分析图
项目信息
建筑师:Elastic Architects
地点:希腊
面积:8918 m²
年份:2022
本资料声明:
1.本文为建筑设计技术分析,仅供欣赏学习。
2.本资料为要约邀请,不视为要约,所有政府、政策信息均来源于官方披露信息,具体以实物、政府主管部门批准文件及买卖双方签订的商品房买卖合同约定为准。如有变化恕不另行通知。
3.因编辑需要,文字和图片无必然联系,仅供读者参考;
微信公众号“搜建筑”(ID:sjz9999)
合作、宣传、投稿
联系微信:soujianzhu006



