
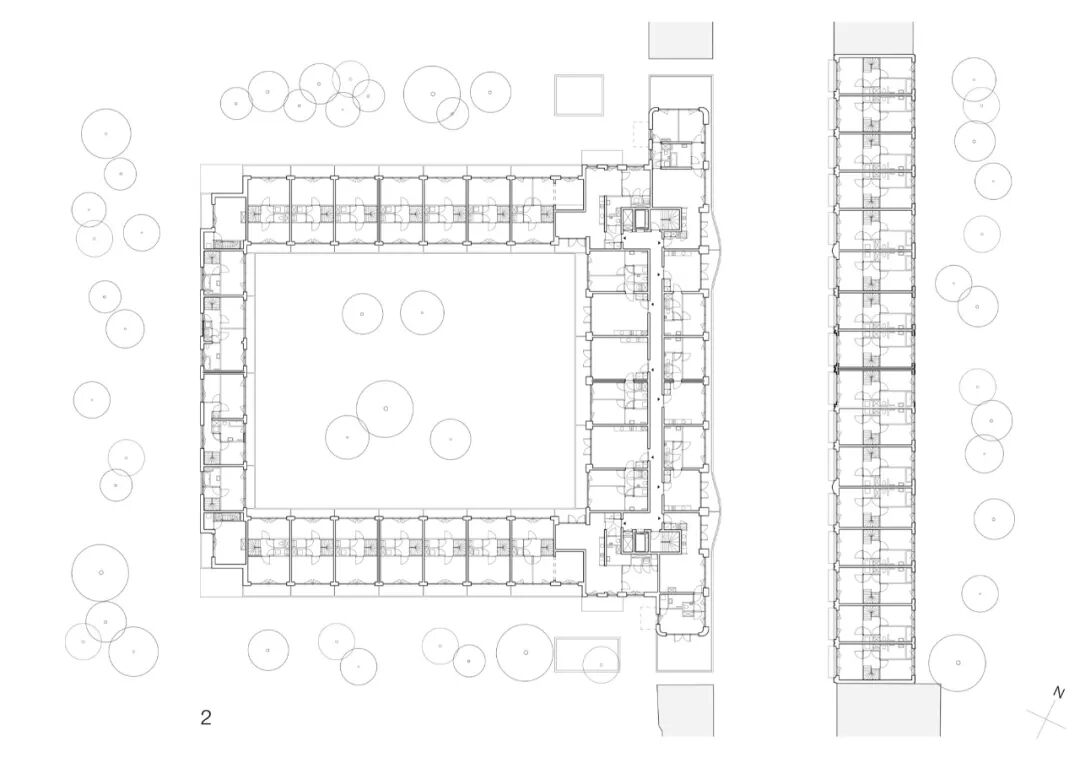
The Spaarndammerhart restores the urban fabric of the Spaarndammer neighborhood. The street that disappeared in the 1970s for the construction of the local school, Spaarndammerschool, has been restored. The plan also brings back two street walls and adds a public courtyard to the neighborhood. Accessible through two large gates, it also connects to De Klerk's iconic ‘The Ship’ building. In fact, the neighborhood is characterized by several world-famous monuments of the Amsterdam School.

The project’s location is surrounded by not only De Klerk’s Het Schip and Spaarndammerplantsoen, but also Walenkamp’s Zaanhof and De Bazel’s Zaandammerplein. And while the architecture of Spaarndammerhart is unmistakably contemporary, it also has subtle references to these Amsterdam School classics. For instance, the building features rich and nuanced masonry in red and yellow brick, glazed bricks for the 'interior facades' of the courtyard, slender profile frames in an unambiguous facade structure, and ‘soft’ progressions along the building’s mass. In addition, visual art – in this case by Martijn Sandberg – is an integral part of the larger architecture and landscape design.

In the large block, houses and apartments have been designed in different categories and typologies: including social rental housing for starters, seniors and larger families, rental apartments for the private rental sector, and owner-occupied homes in a communal courtyard. The apartment entrances are located at two gates, which provide access to both the houses and the courtyard. The ramp to the underground parking garage is also located at the southern gate.

The balconies above the gates protrude so they clearly mark the entrances from the street. In the gates, the art of Martijn Sandberg depicts the 'connections in time' with the neighborhood. Two social spaces and a communal area for residents provide space for neighborhood functions and underline the concept of ‘collectivity’. A 'green cushion' has been laid out in the courtyard following a design by DS Landscape Architects. A collective garden is placed between the existing buildings and the new construction, which is also accessible to the surrounding houses.

The small block consists of ground-level living/working homes in four stories (owned sector). The characteristic of this block is the vertical articulation per house and the two narrow gates to the rear garden and the underground storage rooms. Here too, the gardens are collective in order to ensure the green character is retained for the long term. So-called 'encroachment zones' have been applied throughout the project. These are transition zones between the public street and the private home.

They consist of a deep recess paved with bluestone. It invites residents to appropriate these places. This fits in with an Amsterdam tradition of having houses oriented towards the street. The residential block comprises a total of 80 homes, including 26 social housing, 18 private sector rental, and 36 owner-occupied homes. In addition, there are two community areas, a common room, an underground parking garage for 56 passenger cars, and more than 100 facilities for insects, bats, and birds.

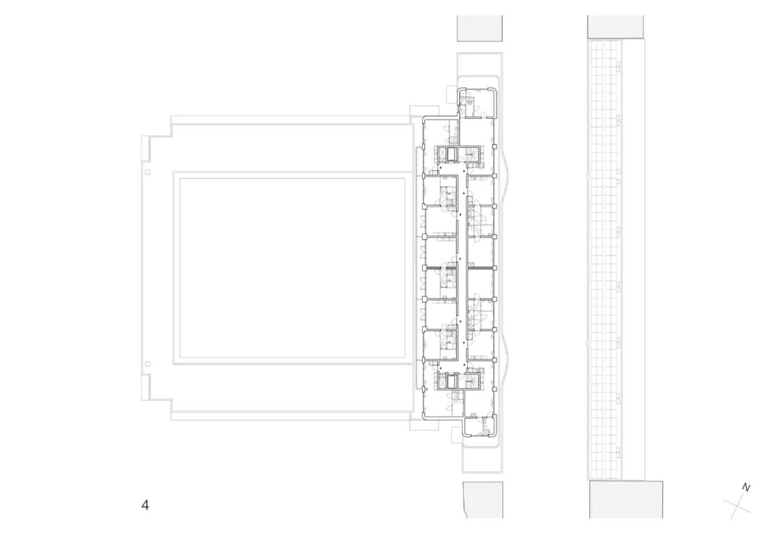
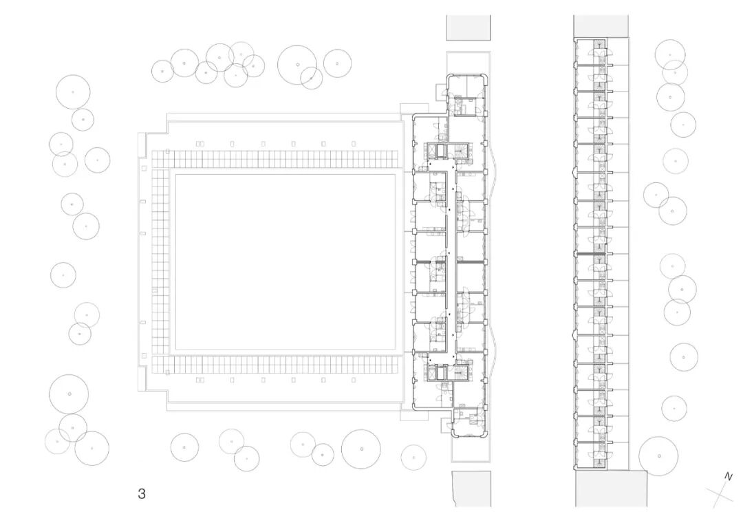
平面图
平面图
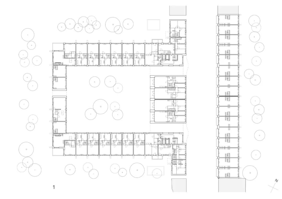
剖面图
项目信息
建筑师:Korth Tielens Architects, Marcel Lok_Architect
地点:荷兰
面积:12676 m²
年份:2021
本资料声明:
1.本文为建筑设计技术分析,仅供欣赏学习。
2.本资料为要约邀请,不视为要约,所有政府、政策信息均来源于官方披露信息,具体以实物、政府主管部门批准文件及买卖双方签订的商品房买卖合同约定为准。如有变化恕不另行通知。
3.因编辑需要,文字和图片无必然联系,仅供读者参考;
微信公众号“搜建筑”(ID:sjz9999)
合作、宣传、投稿
联系微信:soujianzhu006


