▲ 更多精品,关注“搜建筑”
新时代下,人们越来越看重生活方式、生活品质,改善势头如今愈发强劲。
什么才是真正的改善,改善住房到底改善的是什么?它不仅关乎居住舒适度,包容家庭结构变化多方面的需求,还直接关系到房子作为资产的潜力等方方面面。
在“改善市场极其火热”的当下,建面约180㎡左右的四房户型成为卷王之王,各个产品都在争夺高端改善客户且户型设计前沿。
今天我们整理了多个高层住宅的180㎡左右的产品分享给大家
1
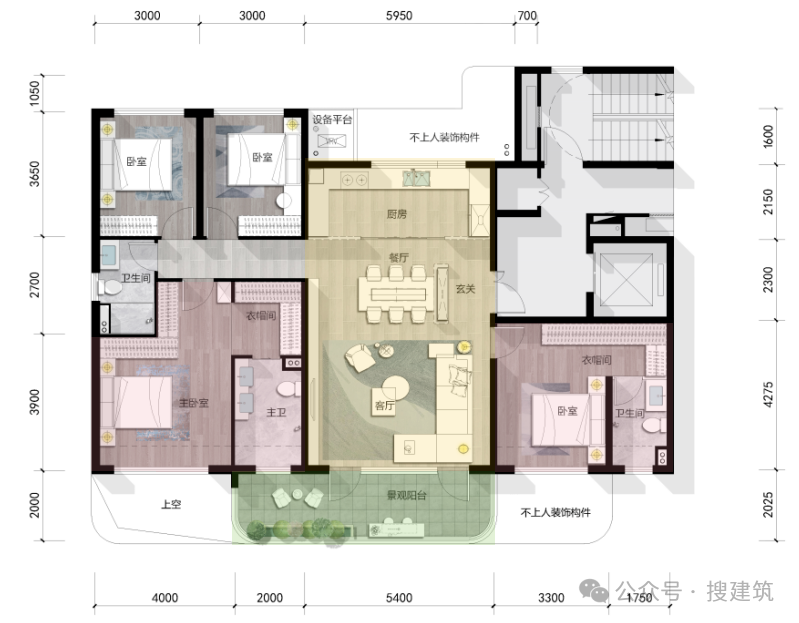
成都东安湖壹号建面约181㎡户型是成都罕有的高公区、大面宽、双阳台豪改产品,LDK空间占比超50%,非常强调豪宅的公共空间尺度。

四房两厅三卫的设计,约17.6m的南向面宽,经典的LDK布局,约13㎡的厨房向着客厅半开放,大大延伸了横厅的空间层次。
约14.3m半开放式中西厨合用厨房,约6.3m长操作台面可多人共享,交流互动感更为强烈。复合型的酒店式主卧,衣帽间、双台盆、淋浴间、私人浴缸都统统配齐,充分发挥“小家化”概念,品质感、尊贵感、私密感十足。
成都东安湖壹号立面实景图

成都东安湖壹号立面实景图
外立面为金属铝板+大面积的玻璃幕墙,甚至连山墙都做了蜂窝铝板;金属网幕墙遮蔽核心筒,建筑顶部高约10米的玻璃幕墙塔冠。在建筑立面、硬件配置上在豪宅圈里都算佼佼者。
2
航天新城的德通映南山采用第四代住宅设计,打造13座17-25F观山大平层产品,空中悬浮花园,建面约143、171、186、225㎡。
其中建面约171㎡户型约16.5m面宽,五开间朝南,南北通透,采用大宽厅、长阳台设计,阳台采用柔化弧形处理。

入户的超大仪式玄关,居住尊贵感从步入家门的那一刻就油然而生。南向双套房的配置,从功能设置到局部尺寸,将舒适度拉满,充分尊重三代同堂隔代不同的生活习惯。
3
建面约186㎡户型更是采用端厅设计,实现了“270°转角厅+270°转角阳台”,L型露台的无敌视野,尺度优越的一体化客厅等细节,以空间焕新开启改善家庭更多精彩生活。

独立电梯厅,打造出深具专属感的空间维度,双侧入户玄关空间阔绰,既有超强的收纳功能,又给业主满满的归家仪式感。
主卧套房也大有乾坤,面积约30㎡,包括豪华卫浴四件套能通通搬进浴室。
德通·映南山建筑效果示意图
德通·映南山-建筑效果示意图
4

5

长辈房与景观阳台相连,方便长辈早起直出阳台锻炼,避免作息互相打扰。同时,长辈房采用非承重墙设计,可以将空间融入公共空间,打造约85㎡霸气客餐厅+南北双阳台空中会客厅。
还有双套间设计,均带有L型阳台及270°环形景观,多重美景包揽了整个卧房。

项目实拍图
项目主入口门楼,在豪宅圈也是顶级的存在。直接复刻国际级瑰丽酒店待客模式,约25米的大尺度门楼堂宽,配置顶豪专用的港湾式落客区,挑高约7.2米,宽约6.4米超大外沿,真正实现无雨归家。
6

该户型采用洄游动线设计,四开间朝南,户型方正,南北通透,整体约16m南向超大面宽,加大了采光面和景观效果。
采用LDKG一体化设计,无过道走廊等浪费面积,客厅连通大尺度双联式观景阳台,餐厅与厨房相对关联又独立成区,形成流畅的居家动线。北向朗阔阳台,正对L型半开放式全明厨房。行政级套房约270°L型无柱转角飘窗,奢享堪比巨幕影厅的恢弘视野,居住品质全面跃升。


苏州建发·缦云效果图
立面上,项目将传统中式屋檐转化为全新的戗角飞檐,形似中国书法里的写意一捺,别有一番飘逸灵动。飞檐下方,是通透、大面的玻璃窗,形成了一种“全面屏”的效果。

苏州建发·缦云效果图
经典三段式布局,大面玻璃、高级金属板材、石材等不同材质交叠,大面窗像一种“留白”艺术,让建筑整体呈现出水墨江南画的质感。
7

天地源·高新宸樾-效果图
8

客餐厅在偶数层连接南向私家花园,在奇数层连接侧向私家花园,私家花园均为18㎡,大尺度花园环绕客厅,体现第四代住宅特质。双露台+奇偶层错落设计,在保证居住私密性的同时,又确保了观景/采光效果,两全其美。

保利·国贸天琴湖实景图

保利·国贸天琴湖效果图
9

10
另一个建面约185㎡户型,同样是是四房三卫的格局,该户型南向3.5面宽,四开间朝南分布三个卧室,其中带阳台的主卧也是朝南。

客餐厅一体,空间大气宽敞;U型厨房,操作面宽敞;宽景阳台,观景体验好。户型整体规整,走道面积浪费较少,利用率高。
无论是哪个面积,层高均约3.1米,而且户户都拥有独立电梯厅,从踏出电梯的那一刻,实际上就算到了“自己家”。
除了空间上的奢侈,云启之江更是配置了东芝的中央空调、威能地暖、百朗的新风;厨房的油烟机、燃气灶和洗碗机都是博世品牌;主卫用的则是汉斯格雅的龙头......

结语:
总而言之,在180㎡这个面积段的产品,高改/豪改房企务必把设计、品质、细节做到位,客户同样不能只看户型图、效果图,而是更多的要关注尺寸和舒适性。
本资料声明:
1.本文为建筑设计技术分析,仅供欣赏学习。
2.本资料为要约邀请,不视为要约,所有政府、政策信息均来源于官方披露信息,具体以实物、政府主管部门批准文件及买卖双方签订的商品房买卖合同约定为准。如有变化恕不另行通知。
3.因编辑需要,文字和图片无必然联系,仅供读者参考;
微信公众号“搜建筑”(ID:sjz9999)
合作、宣传、投稿
联系微信:soujianzhu006


