▲ 更多精品,关注“经典人居”
豪宅时代,大平层项目一般不会把户型面积设定过大,主力户型仍以150-180平米为主,200平以上的产品还是偏少数,再往上探,基本都是别墅产品了,300平以上的大平层更是鲜有。
放眼全国,可以发现300方以上大平层正处于集体“闪耀”的时代,他们当中的许多,已然成为了大神级别的存在,一房难求。
今天我们来看几个真正的兼具尺度、地段和品质三大要素,符合市场导向的“300平米以上的豪宅大平层”。
这些项目的出现,可以说是大势所趋,给了终极改善群体多一个选择。
01
豪宅客户对动区的需求越来越多元化,如何满足他们对场景的需求呢?
社交客厅、社交餐厨
下面万科这个户型,真是亮点满满:

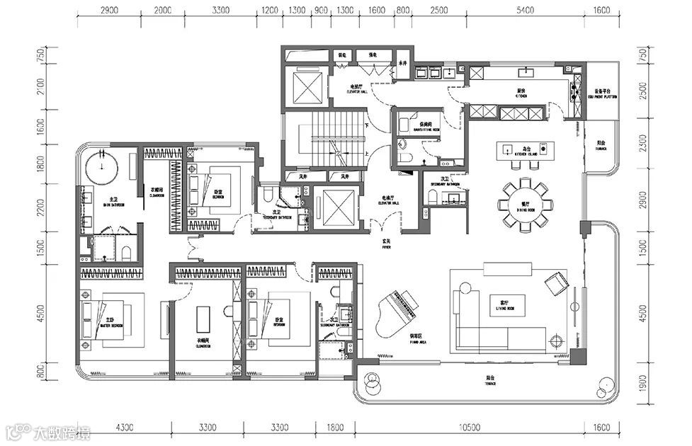
南通万科半岛国际315平米户型
首先是公区,是经典LDKB一体化生活轴线,社交空间、会客空间、烹调空间连成一体。超10米面宽的大边厅连接L型跑道阳台,中岛台,担纲社交厨房重任。

南通万科半岛国际
两部电梯自然划分出两条平行动线,将公区与家政动线分开,由主入口进门,便能感觉满满尊崇感。

南通万科半岛国际
龙盛•福新里约307平方米四房两厅五卫户型,格局方正,南北通透,动线清晰。

龙盛•福新里约307平米户型
入户采用独立入户门厅设计,面积近一个房间大小,彰显名门气势;
客厅餐厅南北分区,更加独立,餐厅与厨房紧密连接,约18.8米南向面宽搭配客厅全落地窗设计,更营造出景观视觉效果,更大限度拥揽苏州河景;
成都融创国宾雅集307平米户型:

一梯一户、电梯入户。动静分区的双十字动线,L型三厅:景观客厅、艺术展示厅、共享大厅。12m*7m的家庭社交区域,外加20余米的L型阳台。
成都中铁建西派国樾:

中铁建·西派国樾350楼王平面图
15米长度的社交区域,摆放16人的宴会级餐桌,尺寸上看确实是首屈一指。20米长的270°阳台,目前成都在售项目中绝无仅有。只是为了规避“阳台宽度超过1.8米即算全面积”,这处大阳台的进深被控制在1.8米。

中铁建·西派国樾样板间
昆明中国铁建西派国樾约365平:
华润深圳湾瑞府400㎡户型:

现在的房子社交属性越来越强,主人需要在居家模式和待客模式之间切换。华润瑞府,通过隐形门和家庭休息室的设置,创造出完全分隔的两个区域。
社交厨房设计,增加了户型的“社交”属性。东面景观会客厅、客厅、餐厅和社交厨房(开放式西厨)组成了四重交流空间。还有单独的洗衣室,家政空间。
融创滨江壹号院“滨江ONE",384㎡高端豪宅户型:

这也是南京首座壹号院基因作品。动静分离,两梯一户,整个边厅位于户型右侧,270°视野俯瞰江景、园景、城景,5室2厅5卫设计。

滨江ONE室内效果图
北京城建·世华龙樾作为“楼王”户型的330平米四室三厅三卫产品,户型方正通透,南向三面宽达到16.35米,尺度远远好于同面积别墅产品。

北京城建·世华龙樾330平户型
面积近100平米的客厅+餐厅,明亮通透,不仅可以供家人朋友欢聚,还可根据家庭成员爱好需求,专门辟出区域来摆放钢琴、书法台、品茶台,或打造儿童游乐天地,让一家人在有情天地其乐融融。
02
景观资源的更大化利用
当代建筑艺术大师斯蒂芬·霍尔曾说过,“居住的价值,隐藏于其中最核心的,是其与城市之间的关系。只有那些既能享受稀缺自然资源,又有俯瞰城市繁华背景的区域,才是最具有价值的居所。”
① 景观最大化

重庆万科锦绣滨江约326平米户型,全景大落地玻璃窗、超长观景阳台,以达到景观视野最大化。

重庆万科锦绣滨江约326平米户型
居高临下之际,把楼下大美园景、滨江新区璀璨CBD和观澜湖公园的盎然生机收于眼底,一股大道之境油然而生。


重庆万科锦绣滨江样板间
香港置地&招商蛇口长嘉汇 · 两江峯460平米户型:

取消了过往客厅和阳台间的那道滑门,让客厅和阳台连成了一片,一个尺寸达到13.5X10米、使用面积达到135平米、两面落地玻璃270度采光、正看两江交汇的会客厅,是一种什么样的气场?

香港置地&招商蛇口长嘉汇 · 两江峯样板间
② 户外空间更丰富
南京万科翡翠滨江380平米户型:

从公布的户型图来看,亮点颇多,恪守瞰江原则,万科翡翠滨江打造了32°楼体瞰江角度、270°观景面等设计,将一线江景的核心资源价值融入到户型设计中。


南京万科翡翠滨江室内效果图
豪宅有很多,但在阳台上设有私人泳池的却很少。

贵阳·铁建城约410㎡户型平面图
贵阳·铁建城阳台总长度约22.4m,进深约3m,配置面积超过约10㎡的游泳池,这样的尺度,是豪宅大平层才敢有的奢侈。

贵阳·铁建城样板间实景图
泳池一侧为整面落地玻璃窗,这块玻璃重1600斤,高约5.7m,安装难度很大,由12个工人完美配合将玻璃严丝合缝地安装到窗户上,采光视野俱佳。
所有空间均拥有露台,结合立面建筑体的美感更加突出,所以该户型阳台面积总共达到了约80㎡,阳台作为每个房间的延伸空间,实现了室内与城市、自然的无缝对接,保证了室内的采光度,并且可以享受一览无余的视野。
流线型的设计,让建筑立面更为简洁灵动,更具未来感,正是这种对于工艺的偏执,才让整个项目立面呈现出与众不同的视觉效果,这样的设计在贵阳未来十年,可能都是领先的。

贵阳·铁建城效果图
03
静区多套房设计
主卧增加情趣空间
西安星河湾约415m²户型,做了6个卧室全都是套房设计。

西安星河湾约415m²户型


西安星河湾约415m²样板间实景
龙湖舜山府主卧套房拥有超过10米的开间(卧房+主卫),面积接近100㎡,超越普通三房的面积。主卧入口处过渡的换衣玄关区、男女独立衣帽间、主卫四件套,卧室书房一体化,做足了仪式感,更大程度满足主人的奢华享受。

重庆龙湖舜山府套内约354㎡观山大平层户型图
昆明融创文旅城海潮和鸣约293㎡户型:

双动线入户,主人及宾客主动线与后勤服务次动线互不干扰。
下面这个400多平的大平层,涵盖了豪宅的标配:保姆间、中厨、西厨、衣帽间。

图源:真叫卢俊
这套户型一共四个房间,可以同时居住两代人或者多子女家庭。
卧室的重点都放在了主卧的打造,主卧不仅包含卫生间、书房,还有两间分开的衣帽间。
衣帽间是这个户型的一大亮点,做了两个分开的衣帽间,男主人的衣帽间和女主人的衣帽间,这一点真的符合当下男女平等家庭分工。
从功能性上来说,中西厨房、保姆间、存储间、书房等,基本齐全,而且户型方正,布局合理。拐角阳台尺度较大,提升房子的采光通透性的同时,也提高了生活品质。

图源:真叫卢俊
保姆间联通了后阳台及安全通道,保姆坐电梯上下楼和主客分开,这点细节做得很周全。
再比如华润悦玺的338㎡4房,专门设置了一个多功能室,可以在家里打造一个工作室,器乐房。也可以作为客房,使用灵活。

华润悦玺338㎡4房户型
结语:
大户型的产品,比小户型更难标准化。不是房间大就可以了,要打动客户,一定要增强空间的趣味性、功能性;景观和私密性等精神层面的需求,要充分满足。
本资料声明:
1.本文为建筑设计技术分析,仅供欣赏学习。
2.本资料为要约邀请,不视为要约,所有政府、政策信息均来源于官方披露信息,具体以实物、政府主管部门批准文件及买卖双方签订的商品房买卖合同约定为准。如有变化恕不另行通知。
3.因编辑需要,文字和图片无必然联系,仅供读者参考;
微信公众号“搜建筑”(ID:sjz9999)
合作、宣传、投稿
联系微信:soujianzhu006


