
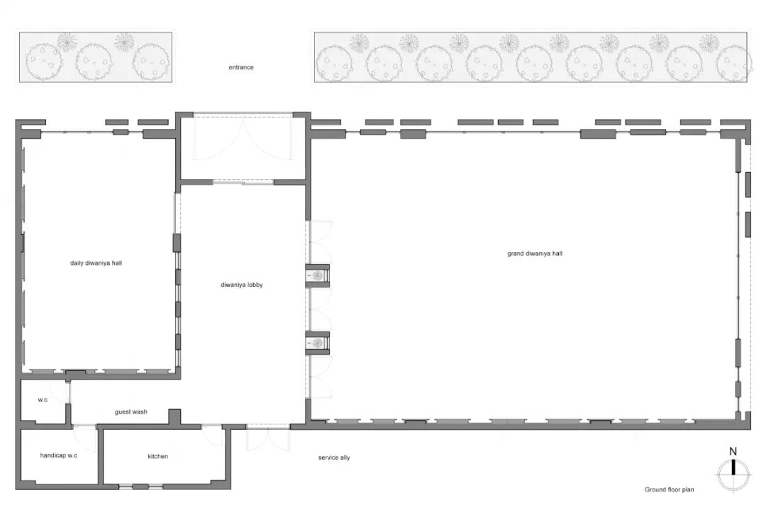
The diwaniya in Kuwait is a traditional space used primarily for male social gatherings. In the newly completed AlOsami diwaniya, guests are welcomed with a main iconic wooden door, a minimalistic version of its traditional counterpart. The visitor then enters a reception hall, which leads them to the smaller daily diwaniya room, where people gather and socialize. Just opposite the daily is the grand diwaniya hall, usually used for male and female weddings, funerals, and other family occasions.

The concept of this project is derived from the Arabian palm grove, which once surrounded the site. Each column shape represents an abstracted palm tree and together form a repetitive pattern, creating an intriguing contemporary traditional vernacular expression. The façade speaks to the environment and culture using modern technology and construction. The concrete structure is covered with mocha cream limestone, chosen for its durability and harmony in the harsh desert landscape.

On the inside, the design attempts to echo the façade back to the interiors, creating a modern, sophisticated, yet warm, vibrant feeling. All the walls are also covered with the same limestone and oak wooden panels of similar patterns to shape the main diwaniya walls. Different coves and backlights provide a comfortable and balanced ambiance, while modern chandeliers are used as a statement piece at the center of the grand reception hall.

项目图纸
分析图
项目信息
▼ 更多精品·点击关注
本资料声明:
1.本文为建筑设计技术分析,仅供欣赏学习。
2.本资料为要约邀请,不视为要约,所有政府、政策信息均来源于官方披露信息,具体以实物、政府主管部门批准文件及买卖双方签订的商品房买卖合同约定为准。如有变化恕不另行通知。
3.因编辑需要,文字和图片无必然联系,仅供读者参考;
微信公众号“搜建筑”(ID:sjz9999)
合作、宣传、投稿
联系微信:soujianzhu006



