文化地标的华丽变身
上海书城改造背后的技术实现
上海书城福州路店一直是上海重要的文化地标之一,也是陪伴上海市民一路走过的书香记忆。2021年12月,上海书城福州路店宣布谢幕重装,在经过近两年的升级改造后,2023年10月28日,阔别两年的上海书城重新回归大众视野,成为福州路上最亮丽的一道风景线。
本次改造Wutopia lab用“以书为城”的理念,对建筑立面和内部空间及业态功能进行全面的升级改造,而三益负责本次项目的设计深化,三益的建筑师从平时看不到的背后,对建筑的结构、消防、设备等等进行精细优化与设计,以匠心、技术和创造力最终完美实现了上海书城的华丽变身!
项目视频 ©Wutopia Lab
华丽背后的「技术实现」
透光的"垂直"城市
上海书城位于福州路整长的三分之二处,历经时光的打磨,改造前的上海书城稍显黯淡,而改造后的上海书城建筑外立面被设计成许多册书堆积成的巨大城市形象,夜幕降临,用白色穿孔铝板做成的“书城”外立面闪闪发光,成为福州路上最引人注目的风景线。
项目区位 ©Wutopia Lab
上海书城傍晚街景 ©CreatAR Images
上海书城主立面夜景 ©CreatAR Images
上海书城主立面局部夜景 ©CreatAR Images
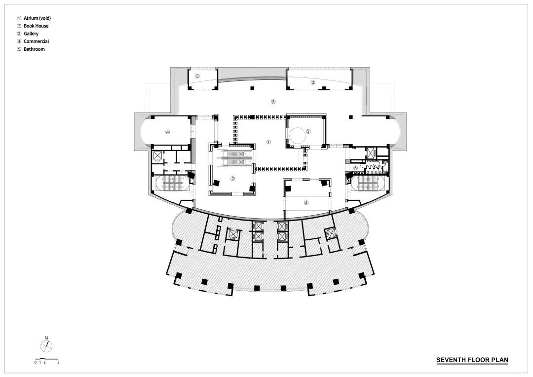
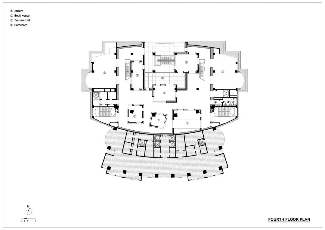
整个书城内部空间共有七层,改造后的书城内部彻底打破了原有结构,设计“以书为城”,将原本平面的路线塑造成垂直的空间路线,打造了一座“垂直”的微型城市,在二楼、四楼、六楼分别打造了三个垂直挑高、被书架环绕的中庭,成为“垂直”城市内部的三个“文化广场”,分别作为广场、礼堂和剧院。
“垂直”城市内部的“三个文化广场” ©TRACEIMAGE
#“垂直”城市的消防疏散
上海书城建于1996年,设计行业规范的更新以及客户群体的变化,使得原有的疏散条件不能满足现在的使用。对于改造项目而言,变更原有的疏散核心,需要统筹考虑诸多的因素。书城的柱网相对较小,而在与塔楼交界处的柱网,更是弧形的设置。
要如何落位疏散核心,如何设计满足疏散宽度的楼梯,将更多的面积留给使用空间呢?三益的建筑师与结构工程师紧密配合,将可改造的结构构件进行计算、加固等研究,将疏散楼梯落位在建筑两侧,并通过将楼梯设计成交叉梯,在相同的空间里,增加了一倍的疏散宽度。同时将楼梯间位置的墙面打开,将三面墙体设计成仅有栏杆,没有墙体围护,使得楼梯变为室外楼梯,从而进一步减少防烟前室的面积,最终完美的解决了消防疏散问题,并将疏散面积控制在最少。
疏散楼梯落位 ©Wutopia Lab
疏散楼梯采用交叉梯,落位在建筑两侧 ©TRACEIMAGE
#“垂直”城市的极限结构
以书为城,三个中庭空间体现着不同的室内风格,如何打破原本每层“平坦”的空间,便是要在不同交错的位置,实现每两层的中庭空间联系。将平面的路线塑造成垂直的空间路线,是方案设计的贯穿理论,因此结构设计以实现这个空间效果作为从始至终的设计理念。
书城内部结构生成图解 ©Wutopia Lab
在框架体系的建筑中,建筑平面布置楼板开洞是普遍存在的,在改造项目中,因使用功能和建筑平面布置变化而局部楼板开洞、取消部分框架梁也是常见的改造方式,但本次书城改造是七层裙房部分,裙房与二十四层主楼结构又是一个整体,裙房楼板开洞和取消部分框架梁不能增加新的超限项从而影响主楼,因此需要严格控制拆除原有结构框架梁的数量和楼板开洞的宽度。
三个两层高的中庭空间 ©TRACEIMAGE
而三个中庭空间,方案要体现的是大气、整体和视线无遮挡,对于空间大小及尺度要求非常高,不太容许结构梁横穿中庭的情况出现,在这种极端的限制条件下,三益的结构工程师经过多轮的多方案的计算和比对,并在过程中与建筑师不断沟通和思想碰撞,最终三个中庭空间效果被完美的呈现。更是在三层局部结构不可变动的情况下,与建筑师一起发挥空间构思能力,优化了三层的中庭空间,将结构构件的连系打造成了玉石桥,面对大的落地玻璃,站在中庭的玉石桥上,也是别有一番风味。
将结构的连系打造成了玉石桥 ©CreatAR Images
可以在桥上驻足阅读 ©TRACEIMAGE
#“垂直”城市的透光中庭
“垂直”城市内部的三个小型文化广场,其实是一个从顶楼屋顶一直到地上二层的贯通中庭,每两层楼之间用可以上人行走的玻璃顶进行区隔,形成了三个采光中庭,站在中庭抬头就能感受到顶楼直射的光线,整个书城变得通透、轻盈起来。
三个中庭侧剖面 ©Wutopia Lab
从顶层贯穿到二层的透光中庭 ©TRACEIMAGE
作为整个中庭空间的核心元素,玻璃顶的消防喷淋铺设要如何在保证功能的前提下实现美观呢?三益的机电专业设计师通过对玻璃分隔造型的高度和喷头位置反复的推敲对比,最终确定了合适的采光顶区域深度及喷头位置,实现了消防喷淋相对隐藏的视觉效果。
采光顶细部 ©TRACEIMAGE
此外,屋顶的玻璃顶是将光引入中庭的入口,而由于上人和防火等因素的影响,防水成为了亟待解决的问题。为此,三益的建筑师对防水的翻口高度与屋面景观绿化厚度进行计算,并增加土建与钢梁之间防水的钢板,将玻璃顶的翻口不锈钢延伸到土建的翻口,同时将玻璃顶设计了细微的坡度,保证了玻璃屋顶防水万无一失。
玻璃采光顶施工过程照片 ©SUNYAT
#“垂直”城市的隐秘管线
公共建筑的设备管线复杂,尤其是像书城这样的改造建筑。水平管线的布置要保证净高,竖向管井的设置要结合平面。机电的管线、管井和机房所占的都是“高度”和“面积”。而书城作为改造项目,由于历史条件的限制,层高和空间不足的问题尤为突出,怎样综合与协调机电三专业的管线和路由,是摆在机电工程师面前最大的难题。
隐秘的设备带 ©TRACEIMAGE
按照新规范要求,通过计算,每层大空间排烟量增加很多。为了减少排烟风管对净高和吊顶的影响,三益的机电工程师在方案阶段提前介入,将建筑平面合理分为左右两个区域,两侧分设排烟立管,在满足规范要求的前提下,尽量缩短水平排烟管的长度,避免排烟管横穿整个空间。同时,协调排烟管与桥架、喷淋管之间关系,最终实现了大空间3.3m的净高。
合理规划设备管线减小对吊顶和净高的影响 ©TRACEIMAGE
此外,为了保证建筑中庭及中央公共区域使用的合理性与平面的规整性,三益的机电工程师将机电设备全部放置于屋面,这样既避免设备机房对平面功能的影响,又避免了每层百叶对立面美观的影响。在楼梯与电梯的周边位置设置竖向管井,从而避免管井对平面功能和美观的影响。所有的新风及排风、排烟均通过竖向管井接至屋面,通过屋面上设置的百叶排向室外。
合理规划布置管线避免对平面功能的影响 ©TRACEIMAGE
部分管线施工过程照片 ©SUNYAT
而屋顶更是将原本已经“捉襟见肘”的设备机房,排起了叠叠高,以“集中设置,释放空间”为原则,规划一定的区域留给设备机组,比如在电梯机房的屋面、架空区域的夹层等区域,都是我们安置设备的绝佳场所,利用有效空间,既满足了使用要求,又把黄金位置归还给花园。最后再用围挡将设备区和景观区彻底分开,保证了屋顶花园的美观。
项目鸟瞰 ©CreatAR Images
舒适背后的「节能环保」
铂金级碳中和建筑
“读本书,喝杯茶,看看风景”,全新开业的上海书城也为读者带来了全新的空间体验,内部一改往日的封闭黯淡,为读者提供了一个明亮、舒适、静谧、沉浸式的阅读空间。
而项目作为铂金级碳中和建筑,在保证空间健康舒适的前提下,三益的建筑师更是从设计、施工、选材全过程都融入绿色低碳的理念。
主立面局部夜景 ©CreatAR Images
#舒适自然采光享受
从顶楼屋顶一直到地上二层的贯通中庭,提供充足的自然采光,使整个书城变得通透、轻盈起来,站在中庭抬头就能感受到顶楼直射的光线。
从顶层贯穿到二层的透光中庭 ©TRACEIMAGE
整个书城内部空间明亮舒适 ©CreatAR Images
不仅中庭,沿街一侧还设计了众多超大落地玻璃窗,随手拿起一本书,在窗边座位静静阅读,享受阳光的同时,还可以看到福州路上来来往往的人流,在快节奏的都市里享受一方宁静。
立面众多落地玻璃窗 ©Wutopia Lab
4&5F中庭的9米通高的落地玻璃 ©CreatAR Images
通过增加开窗面积和中庭设计,建筑能够更好地利用自然采光,减少对人工照明的依赖。而在此基础上,设计选用了玻纤增强聚氨酯节能耐火窗,采用气凝胶外墙内保温系统,显著提高建筑的隔热及保温性能,进而减少能源的消耗。此外,项目还在建筑屋顶部署了分散式光伏发电系统,利用清洁能源为夜晚屋顶提供照明。
夜晚立面落地玻璃窗 ©CreatAR Images
#全店智能空气体验
尽管书城内部拥有三个挑高的中庭空间以及众多大落地窗,但是三益的机电专业设计师通过合理配置空调系统,确保整个空间温度始终维持在一个舒适的范围内。
书城内部空间明亮舒适 ©CreatAR Images
同时为了确保阅读空间的卫生和空气质量,书城还引入了纳米水离子技术,在新风系统及空调室内机送风管上设纳米水离子消杀模块,消除或杀灭空气中各种有害物质,特别是那些常规的过滤器过滤不了的微小颗粒和病毒、细菌等微生物,提高空气质量,防止各种传染病的传播,为读者提供一个健康宜人的阅读环境。
引入纳米水离子技术
其中新风系统采用了设于屋顶的直膨式全热回收新风机组,全热回收效率从常规的50%提升到了60%以上。室内回风经转轮余热回收后排向机组冷凝器,大大降低了其进风温度,从而提高机组的能效比。此外,项目风冷式热泵型多联式空调采用能效等级为2级机组,其能效比APF值较基准提高了18%以上,大大提高了使用效率。
隐藏在黑色设备带中的空调风口 ©TRACEIMAGE
隐藏在书架中的新风口 ©TRACEIMAGE
#上海碳中和文化地标
建筑师与碳中和设计密切沟通,对保温、门窗、光伏、储能、热回收等进行全方位的综合改造,通过这些先进的碳中和技术和解决方案的应用,在功能业态全方位丰富升级的情况下,改造后的上海书城综合能耗强度预估是90 kWh/㎡·a(千瓦时每平方米每年),比改造前的能耗降低了约40%,每年折算减少碳排放约480t CO2(480吨二氧化碳),成为上海绿色低碳理念的文化新地标。
上海第一个“碳中和铂金级文化地标改造项目”
结语
上海文化新地标
重生归来的上海书城不仅焕发出崭新的面貌,更被赋予文化业态的迭代创新升级。通过精湛的设计和技术实现,这座以书为城的“垂直”城市,不仅为读者带来了更好的文化体验,也展现了可持续发展的未来愿景,必将成为上海市民引以为傲的新地标。
上海书城鸟瞰 ©CreatAR Images
上海书城黄昏街景 ©CreatAR Images
上海书城黄昏街景 ©CreatAR Images
项目图纸
建筑平面图 ©Wutopia Lab More >>
项目信息
项目名称:上海书城改造
项目类型:商业文化
项目地址:上海市福州路465号
基地面积:1420㎡
建筑面积:11936㎡
设计时间:2021.07-2022.07
建造时间:2022.07-2023.10
建设单位:上海新华传媒股份有限公司
主持建筑师:俞挺
建筑及室内设计单位:Wutopia Lab
施工图设计单位:上海三益建筑设计有限公司
项目总负责人:高栋
建筑设计:祝宇梅、叶霞、张雨
结构设计:胡文晓
机电设计:茅娅倩、王弈钦、徐智峰、刘宁、叶淋、石佳莹
总图设计:祝宇梅、叶霞
室内设计:于兵、沈睿、张芳、杨扬
景观设计:郑志成 、王粲、郭雨琪、张晋
给排水设计:叶淋、石佳莹
电气设计:茅娅倩
暖通设计:王钦、徐智峰、刘宁
技术支持:王晓红、蒋虹、陈英
合作单位
幕墙设计:上海结宇建筑设计有限公司
照明顾问:张宸露,尉诗羽
景观顾问:袁媛
施工单位:上海建筑五建集团有限公司
建筑摄影:CreatAR Images、TRACEIMAGE
▼ 更多精品·点击关注
本资料声明:
1.本文为建筑设计技术分析,仅供欣赏学习。
2.本资料为要约邀请,不视为要约,所有政府、政策信息均来源于官方披露信息,具体以实物、政府主管部门批准文件及买卖双方签订的商品房买卖合同约定为准。如有变化恕不另行通知。
3.因编辑需要,文字和图片无必然联系,仅供读者参考;
微信公众号“搜建筑”(ID:sjz9999)
合作、宣传、投稿
联系微信:soujianzhu006


