▲ 更多精品,关注“搜建筑”
西安高新第一中学(高中部)改扩建
在我国城市发展逐渐进入到精细化的新时期下,建筑的设计、建设、使用三个环节的融会贯通是提升建筑品质的关键源头。如何在一线实践工作中去落实相关要求,也成为了设计团队所面临的主要挑战。
The interconnected nature of buildings’ design, construction and application is the key of improving building quality. In the current era, where China's urban development is approaching into a new period of refinement, the implement of regulations in the front-line practice has become the main challenge for design teams.

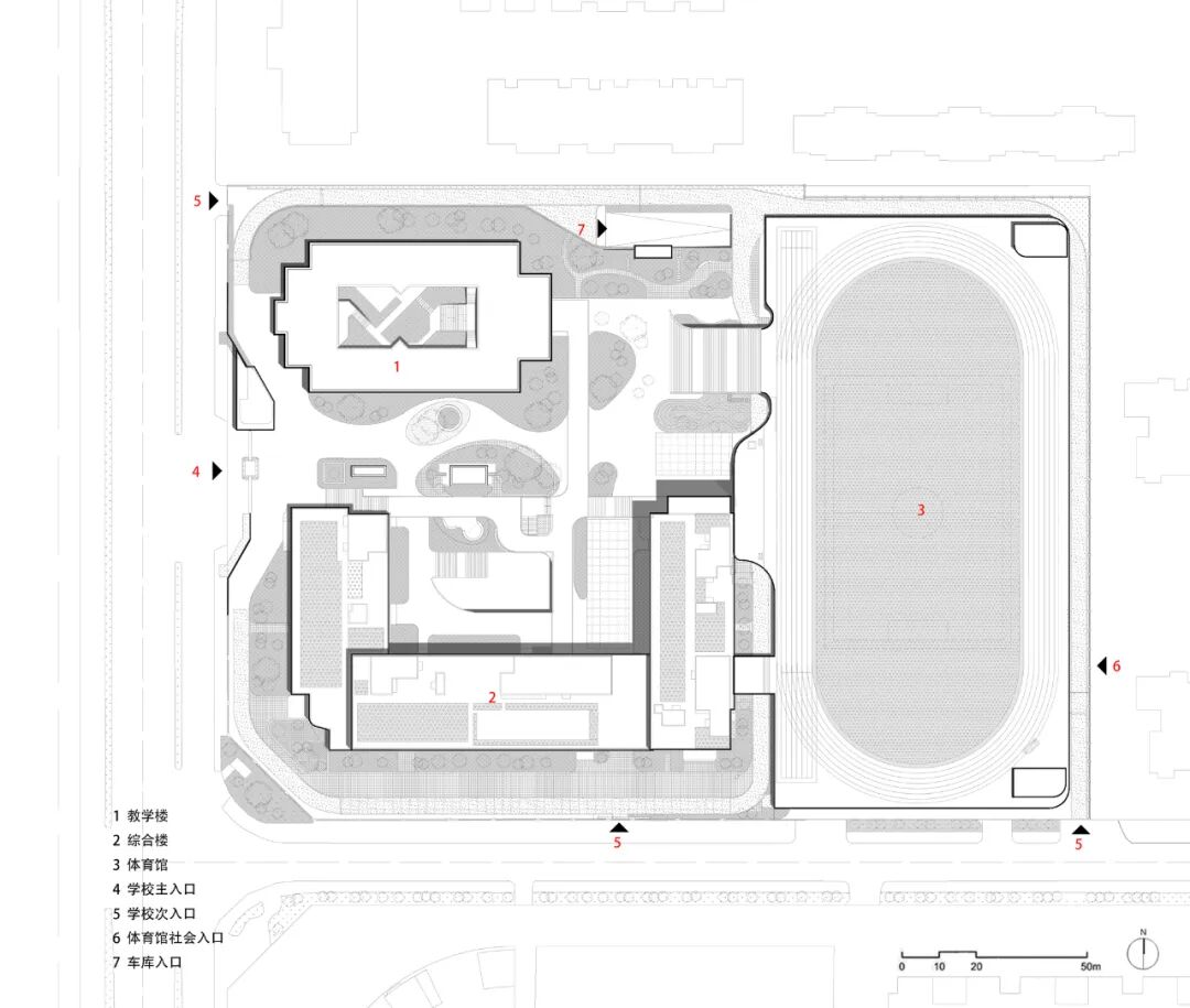
本次项目为西安高新一中高中部校区,位于西安高新区腹地,用地面积约45.6亩,东临唐延路,南临科技三路。现状由三栋教学楼,一栋宿舍楼组成。随着城市核心区域的快速发展,以及国家新高考改革背景下对办学条件的更高需求,高新一中高中部面临着校内各类教学空间不足,校外交通拥堵等多重压力,原有校园亟需进行更新改造。
This project is located in the heart of Xi'an Gaoxin District, with a site area of 45.6 acres, bordering Tangyan Road to the East and Keji No.3. Road to the South. The current site consists of three teaching buildings and one dormitory building. As the urban core area is developing rapidly and the demand of school’s operational condition is increasing, in the context of the new National College Entrance Examination Reform, many schools are facing challenges such as the lack of sufficient spaces, traffic congestion and as such. As the matter of fact, the original campus is in an urgent need of renewal and reconstruction.

从城市和教育两个维度的梳理之后,项目以“书山绿岛,拾级而上”为概念目标并明确了两个建设原则——“校社共享”和“立体化”。在此基础上,本项目设计团队与校方、政府相关部门、建设单位协同研判,形成了以下三个项目定案策略。
With the regard to two dimensions from the city and education, the project takes the conceptual goal of ‘stepping up the book mountain and green island ’, as well as the two constructional principles of ‘shared campus space’ and ‘three-dimensionality’. On such basis, the following strategies are formed under the collaboration between the design team, the school management committee, government departments and construction units.



本项目伊始于2021年8月,历经两年的设计建设期,于2023年8月底正式交付。项目名称——西安高新第一中学(高中部)改扩建暨社会共享停车场建设项目充分体现了前期策划中不同维度的定案。
The project started in August 2021 and was officially delivered at the end of August 2023 after a 2-year design and construction period. The project’s name (Xi’an Gaoxin No.1 High School (High School) Expansion and Social Shared Car Park Construction Project) fully reflects the different meanings in the pre-planning phrase.


项目总建筑面积78549.31㎡,地上总建筑面积49886.68㎡(其中计容面积48831.17㎡),地下总建筑面积28662.63㎡,容积率1.61。项目原建筑保留原主教学楼(博学楼),其余辅助建筑予以更新重建。
It has a total construction area of 78,549.31 square metres, which includes a ground construction area of 49,886.68 square metres (including 48,831.17 square meters of capacity), and an underground construction area of 28,662.63 square metres. The design retains one original teaching building, leaving the rest to be renewed and rebuilt.


新建建筑包含综合教学楼(含宿舍)、架空操场(含架空下体育馆和报告厅)、下沉庭院及庭院周边教学辅助空间、地下2层停车区和室外交通连廊。设计团队从城市、校园、造型、功能、成本的建设全程中赋予相关理念和管控措施,保证了项目的完整落地。
New buildings consist of one comprehensive teaching building (including dormitories), a lifted playground (including a gymnasium and a lecture hall), a sunken courtyard, an underground parking area and a long outdoor corridor. The design team has applied concepts and controlling-measures, from the city, campus, form, function and cost, during the whole construction process to ensure the integrity of the project.






















总平面图

地下室负一层平面图

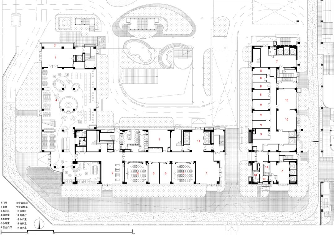
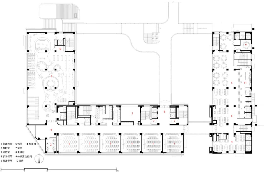
综合楼一层平面图

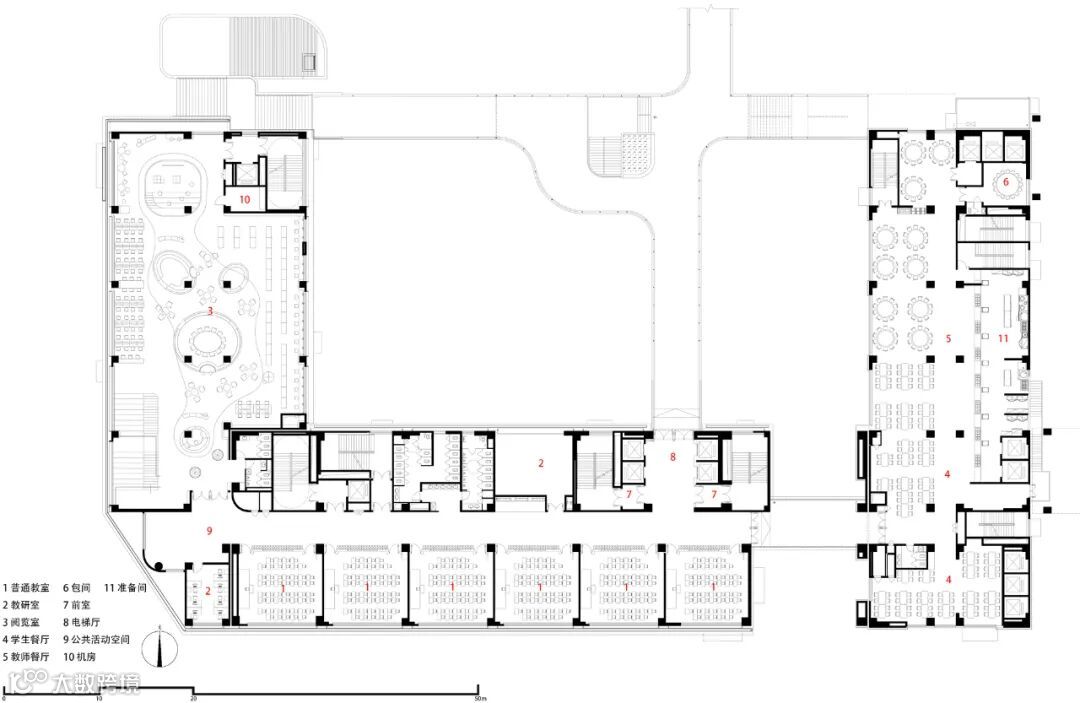
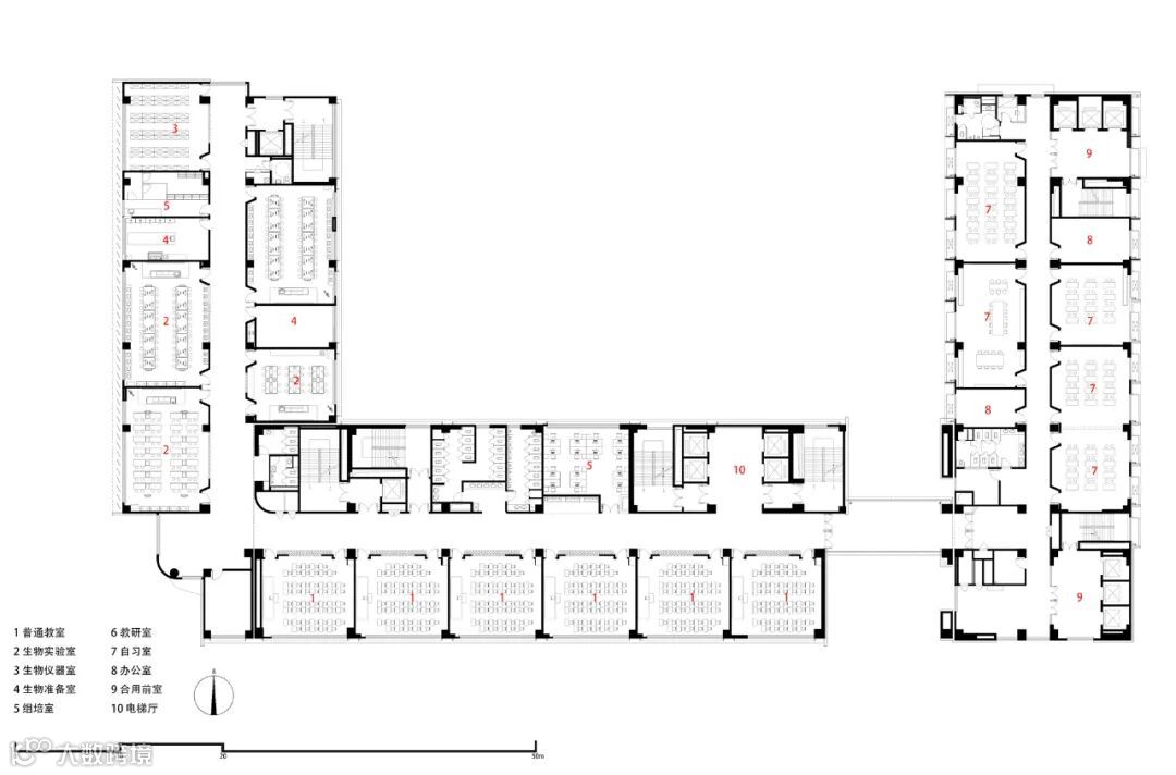
综合楼二层平面图

综合楼四层平面图

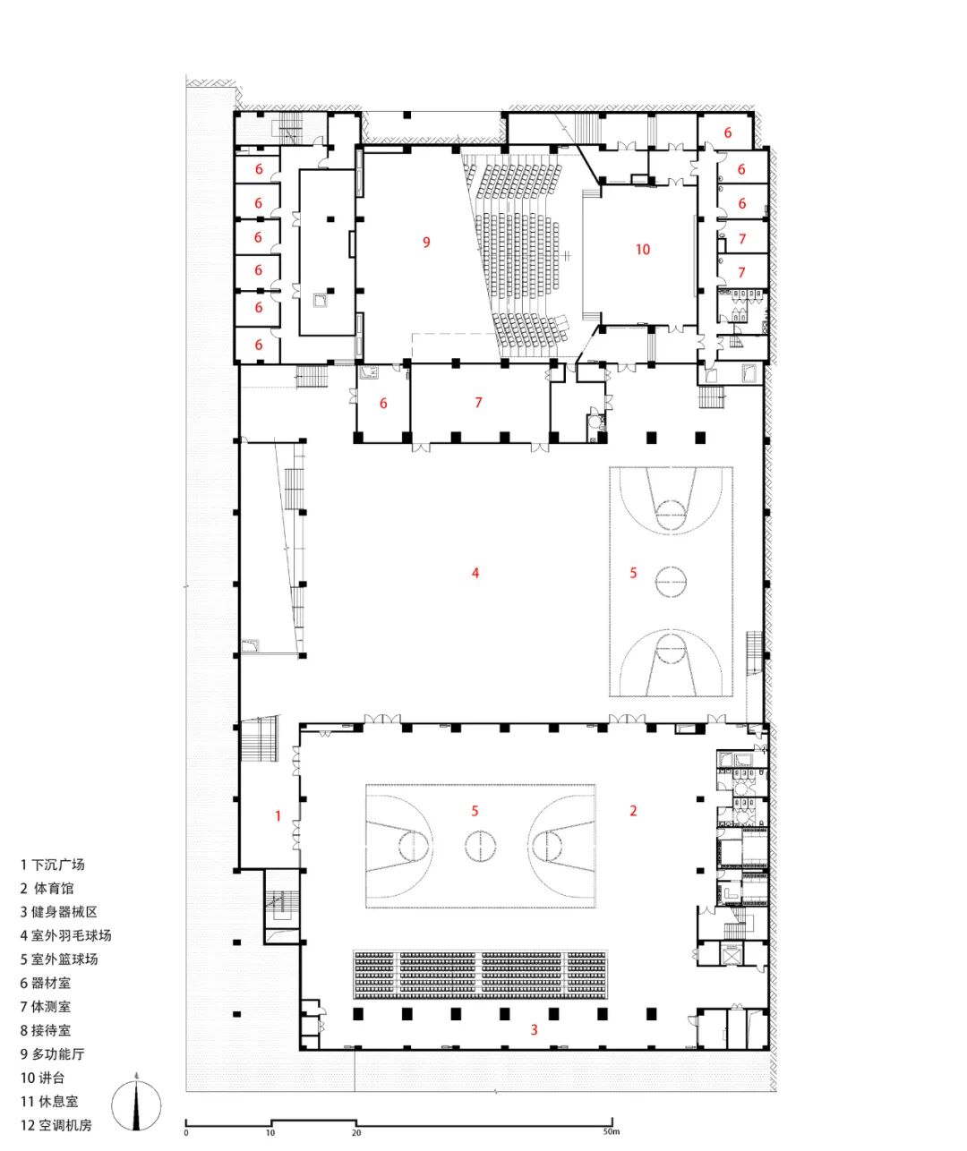
操场一层平面图

综合楼南立面图

综合楼西立面图

剖面图

项目信息
项目名称:西安高新第一中学(高中部)改扩建暨社会共享停车场建设项目
建设单位:西安高新控股有限公司
代建单位:西安高新区基础设施配套建设开发有限责任公司
使用单位:西安高新第一中学
设计单位:中国建筑西北设计研究院有限公司
总建筑面积:7.85万平方米
容积率:1.6
地上建筑面积:4.98万平方米
地下建筑面积:2.87万平方米
计划交付时间:2023年6月
建筑设计团队:中国建筑西北设计研究院有限公司 屈培青工作室
景观设计团队:同济大学建筑设计研究院(集团)有限公司
室内设计团队:陕西奥格见造建筑设计工程有限公司
▼ 更多精品·点击关注
2.本资料为要约邀请,不视为要约,所有政府、政策信息均来源于官方披露信息,具体以实物、政府主管部门批准文件及买卖双方签订的商品房买卖合同约定为准。如有变化恕不另行通知。
3.因编辑需要,文字和图片无必然联系,仅供读者参考

合作、宣传、投稿
联系微信:soujianzhu006